- Typ projektuWolnostojący
- Powierzchnia użytkowa150.5 m²
- Kondygnacje
- GarażBez garażu
- DachDwuspadowy
- Kąt nach. dachu40°
- Odbicie lustrzaneTak
- Czas realizacjimax. czas realizacji 10 dni Zobacz więcej >
Opis
Zgodność z WT 2021 i Eurokodami
Ze względu na dostosowywanie projektu do standardu WT 2021, czas realizacji może się różnić od standardowego.
Skontaktuj się z nami aby poznać szczegóły dotyczące wybranego projektu.
Opis projektu
Dom Dla Ciebie 10 bez garażu to większa, poszerzona wersja popularnego projektu Dom Dla ciebie 1 - to projekt domu o często wyszukiwanej powierzchni około 140 m2. Tak jak pozostałe projekty z tej serii Dom Dla Ciebie 10 zaprojektowany został z zachowaniem podziału na strefy użytkowe: ogólnie dostępną na parterze i prywatną na poddaszu. Na parterze przewidziano wiatrołap z wnękowymi szafami, hol, kuchnię od strony ogrodu, salon z kominkiem doświetlony od frontu budynku, jadalnię oraz pokój zlokalizowany od frontu do wykorzystania np. jako gabinet. Z jadalni i z salonu możemy dostać się na zewnętrzne tarasy. Z holu dostaniemy się do niedużej łazienki z prysznicem oraz do kotłowni. Na poddasze dostaniemy się jednobiegowymi schodami. Mamy tu przewidziane trzy ustawne i dobrze doświetlone pokoje - każdy z własnym balkonem. Jest tu też ogólnie dostępną łazienkę z narożną wanną i prysznicem. Poddasze wygospodarowane jest pod dwuspadowym dachem zaprojektowanym na tradycyjnej więźbie dachowej opartej na ściance kolankowej o wysokości około 1m. Projekt domu Dom Dla Ciebie 10, jest idealną propozycją dla szukających projektu domu tradycyjnego o stylowej architekturze, dobrze zaprojektowanej funkcji i o dobrych energooszczędnych parametrach.
Konstrukcja
fundamenty: betonowe
ściany zewnętrzne: porotherm+styropian termo organika
rodzaj stropu: teriva i
elewacje: tynk strukturalny, okładzina klinkieerowa
pokrycie dachu: dachówka cementowa, ceramiczna lub blacha dachówko podobna
Rzuty
Parter
- m²
- 1. Wiatrołap4
- 2. Hol6.7
- 3. Salon+Jadalnia38.1
- 4. Kuchnia10
- 5. Łazienka4.2
- 6. Kotłownia + pralnia*8.5
- 7. Korytarz3.6
- 8. Schody3.5
- 9. Pokój12
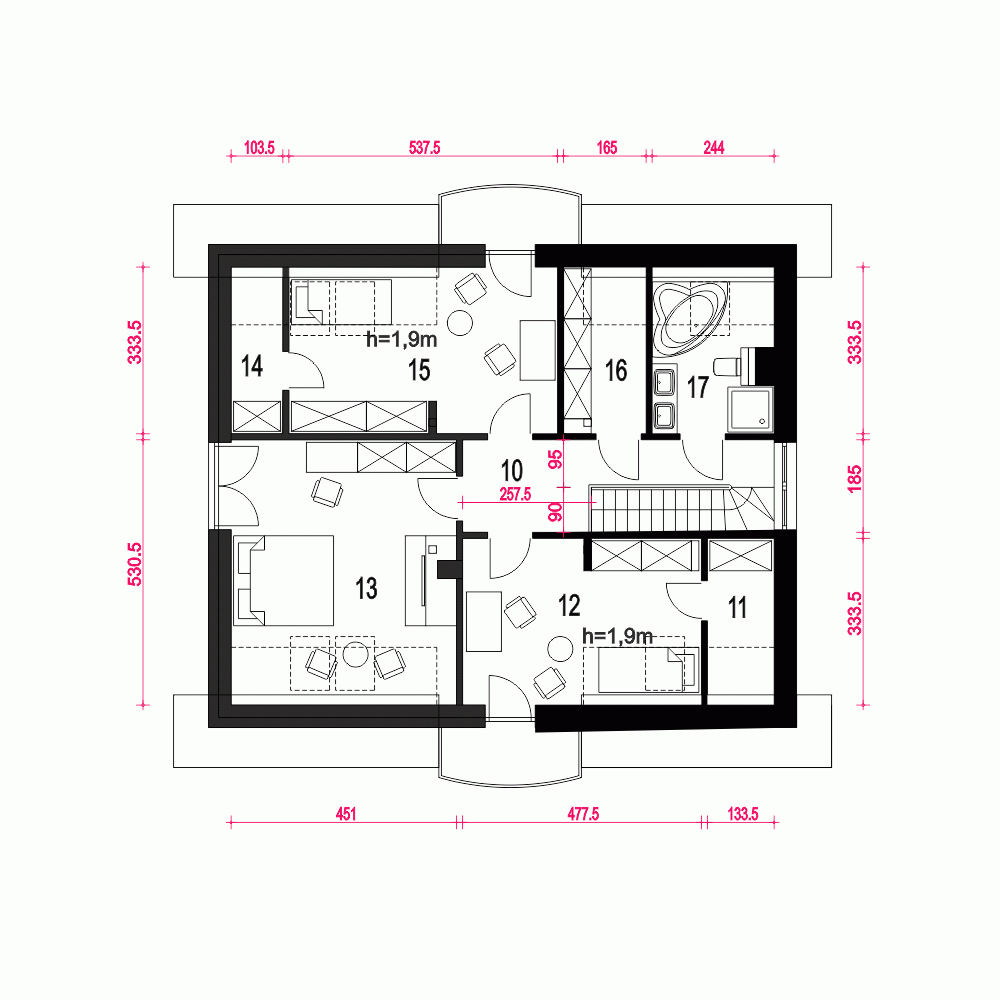
Piętro
- m²
- 10. Przedpokój8.2
- 11. Garderoba3
- 12. Sypialnia12.7
- 13. Sypialnia19.1
- 14. Garderoba3
- 15. Sypialnia13.5
- 16. Garderoba3.8
- 17. Łazienka5.1
Przekrój
Usytuowanie na działce
Dane techniczne
- Powierzchnia użytkowa150.5 m²
- Powierzchnia zabudowy114.3 m²
- KominekTak
- Liczba łazienek2
- Liczba pokoi5
- Powierzchnia dachu200 m²
- Kubatura444 m³
- Długość domu9.7 m
- Szerokość domu11.8 m
- Wysokość domu8.8 m
- Minimalne wymiary działki17.7 x 19.8m
- GarażBez garażu
- Rodzaj dachuDwuspadowy
- Kąt nach. dachu40°
Instalacja grzewcza
- Instalacja grzewczaGaz
Zawartość projektu
Zgodnie ze znowelizowaną Ustawą Prawo Budowlane art.34 ust.3, na projekt budowlany składają się trzy części:
- projekt zagospodarowania działki lub terenu
- projekt architektoniczno-budowlany
- projekt techniczny
Nasze projekty oferujemy w 3 egzemplarzach, zawierających projekt architektoniczno-budowlany i projekt techniczny. Projekt zagospodarowania działki lub terenu nie wchodzi w skład projektu oferowanego do sprzedaży. Projekt ten należy zlecić we własnym zakresie lokalnemu projektantowi, który opracuje go na podstawie danych zawartych w projekcie architektoniczno-budowlanym i technicznym, po dostosowaniu projektu do warunków lokalnych i wymagań inwestora.
UWAGA: wszystkie egzemplarze projektu zabezpieczone są hologramami, w części rysunkowej posiadają nadruki zabezpieczające w kolorze zielonym. Zalecamy aby po otrzymaniu przesyłki kontrolować czy na pierwszych stronach projektu znajduje się hologram i czy na rysunkach widoczne są w/w nadruki potwierdzające oryginalność projektu.
Wyrażamy zgodę na wszelkie zmiany zgodne z obowiązującymi przepisami pod warunkiem wprowadzenia ich przez uprawnioną osobę.
Wszystkie zmiany wymienione powyżej powinny być naniesione na oryginał projektu katalogowego trwałą techniką graficzną w kolorze czerwonym lub dołączone jako aneks i podpisane przez osobę uprawnioną dokonująca adaptacji.
**ważne informacje
Projekt w fazie koncepcji dostępny z wydłużonym terminem realizacji. Przy zamówieniu ustalamy termin i pobieramy zadatek 50% podstawowej ceny projektu (jako koszty usługi przygotowania dokumentacji do standardu projektu gotowego, w przypadku rezygnacji z usługi, zadatek nie podlega zwrotowi).
Cena za dodatkowy egzemplarz projektu jest zależna od nazwy projektu!
Dodatki
Bezpłatne dodatki
GratisZestaw umów
GratisZmiany w projekcie
GratisTablica budowy
GratisDziennik budowy
Płatne dodatki

Kosztorys - stan wykończony
540 zł

Projekt wentylacji mechanicznej
1 000 zł








