Projekt domu Dom Dla Ciebie 5 A3 z garażem 2st.
Promocja ważna do
24-04-2026
- Typ projektuWolnostojący
- Powierzchnia użytkowa111.4 m²
- Kondygnacje
- GarażDwustanowiskowy
- DachDwuspadowy
- Kąt nach. dachu40°
- Odbicie lustrzaneTak
- Czas realizacjimax. czas realizacji 10 dni Zobacz więcej >
Opis
Zgodność z WT 2021 i Eurokodami
Ze względu na dostosowywanie projektu do standardu WT 2021, czas realizacji może się różnić od standardowego.
Skontaktuj się z nami aby poznać szczegóły dotyczące wybranego projektu.
Opis projektu
Dom Dla Ciebie 5 z garażem dwustanowiskowym, wariant A3 bez wykuszu, to mniejsza wersja popularnego projektu Dom Dla Ciebie 1. Dom Dla Ciebie 5 to projekt domu o popularnej powierzchni użytkowej około 110 m2. To projekt z użytkowym poddaszem, o tradycyjnej więźbie drewnianej ze ścianką kolankową o wysokości około 1m. Przeznaczony jest dla 4ro osobowej rodziny i tak jak pozostałe projekty z tej serii zaprojektowany został z zachowaniem podziału na dwie strefy: ogólnie dostępną i prywatną. Strefa ogólnie dostępna przewidziana jest na parterze. Mamy tu zaprojektowany wiatrołap z wnękowymi szafami, hol, kuchnię ze spiżarnią, salon z jadalnią i kominkiem oraz dodatkowy pokój od frontu, który może służyć np. jako gabinet. Ponadto jest tu nieduża łazienka z prysznicem oraz przechodnia pralnia z której dostaniemy się do garażu. Za garażem, od strony ogrodu zaprojektowana jest kotłownia, która dodatkowo może spełnić funkcję pomieszczenia gospodarczego. Do części prywatnej, na poddasze prowadzą jednobiegowe schody, którymi ostaniemy się do przedpokoju prowadzącego do 3 wygodnych i dobrze oświetlonych pokoi z balkonami. Bezpośrednio ze schodów możemy się dostać do nieużytkowego strychu nad garażem, który z łatwością możemy zaadaptować na cele mieszkaniowe. Na poddaszu jest też przewidziana ogólnie dostępną łazienka z narożną wanną i prysznicem. Projekt domu Dom Dla Ciebie 5, to propozycja dla szukających projektu domu tradycyjnego o stylowej architekturze, funkcjonalnym wnętrzu i o energooszczędnych parametrach.
Konstrukcja
Rzuty
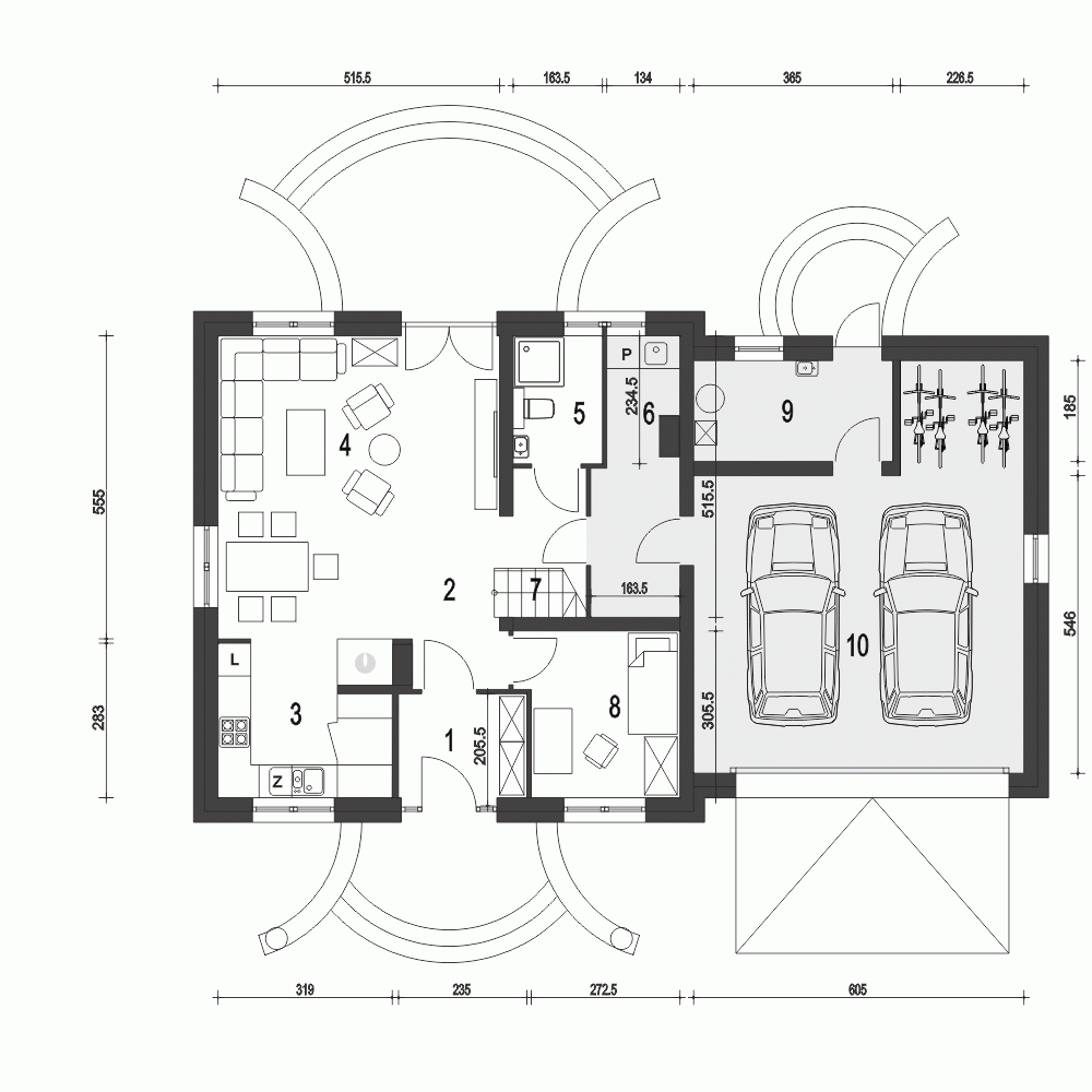
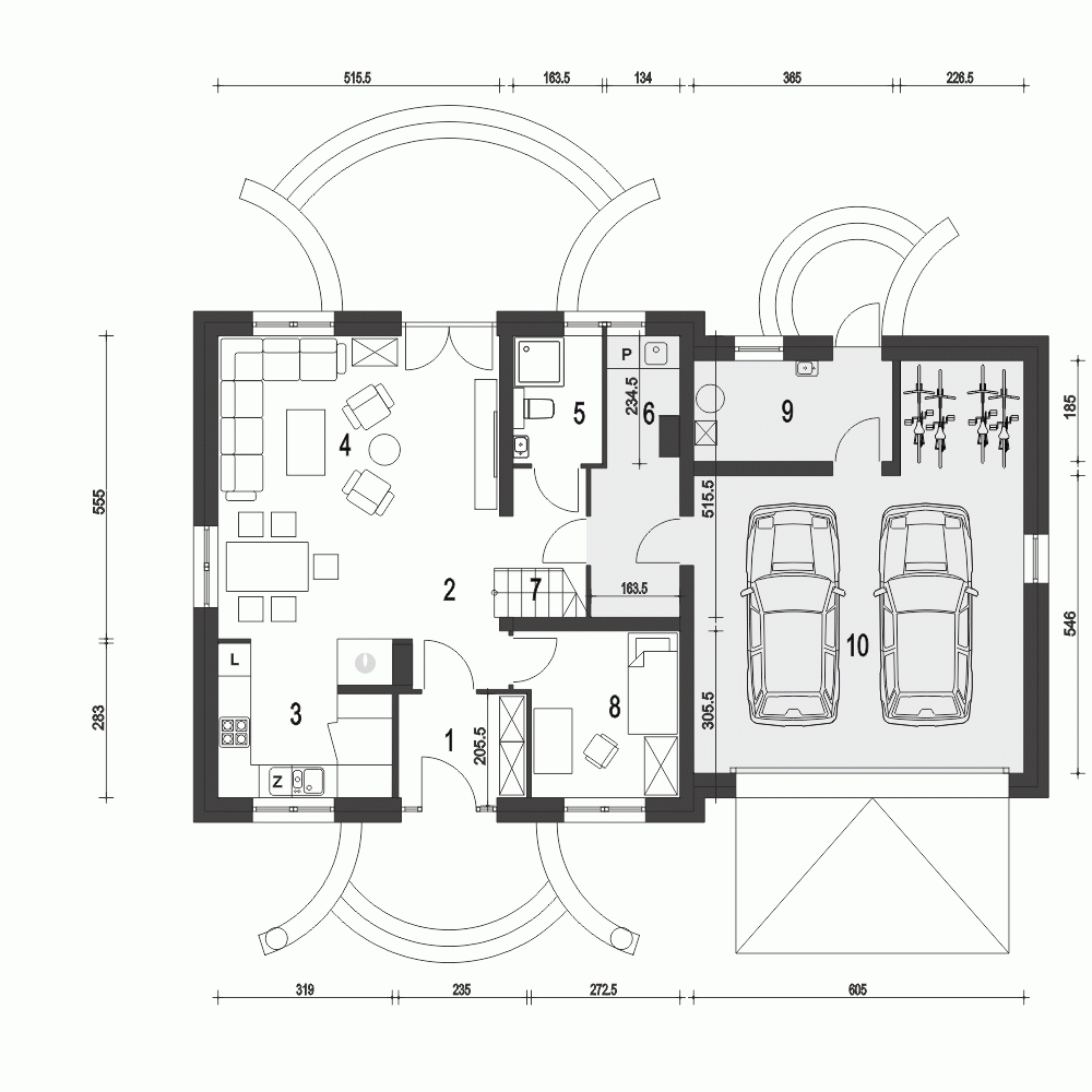
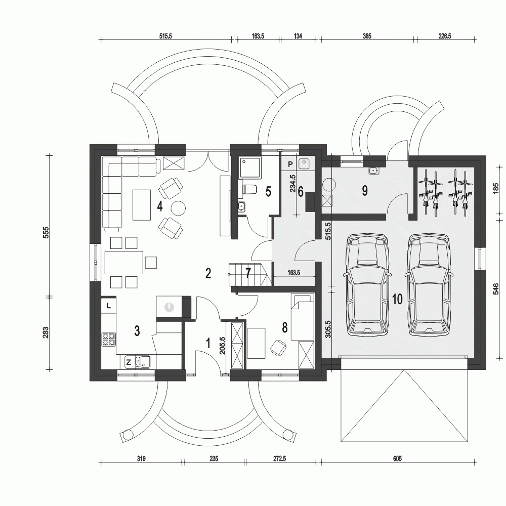
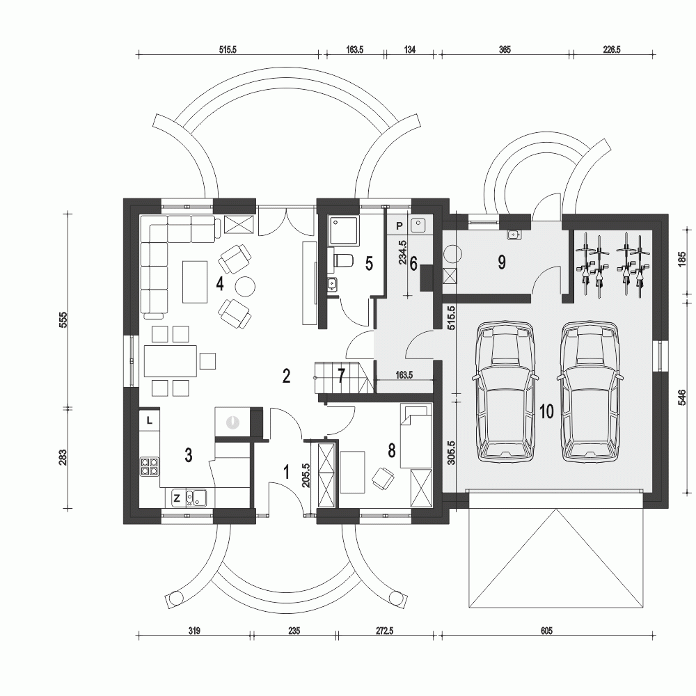
Parter
- m²
- 1. Wiatrołap4.3
- 2. Hol7.7
- 3. Kuchnia+Spiżarnia8.3
- 4. Salon+Jadalnia24.8
- 5. Łazienka3.7
- 6. Pralnia*6.4
- 7. Schody3
- 8. Pokój8.5
- 9. Kotłownia*6.6
- 10. Garaż*37.4
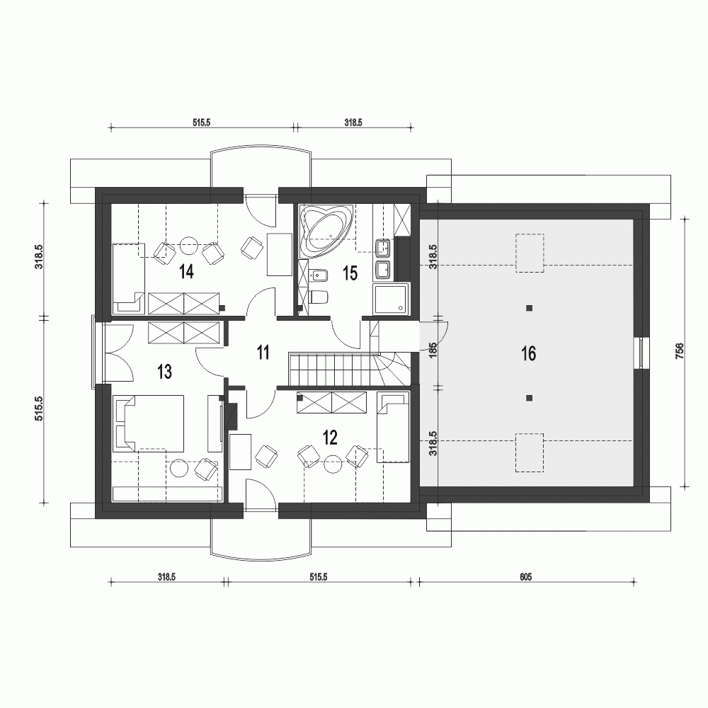
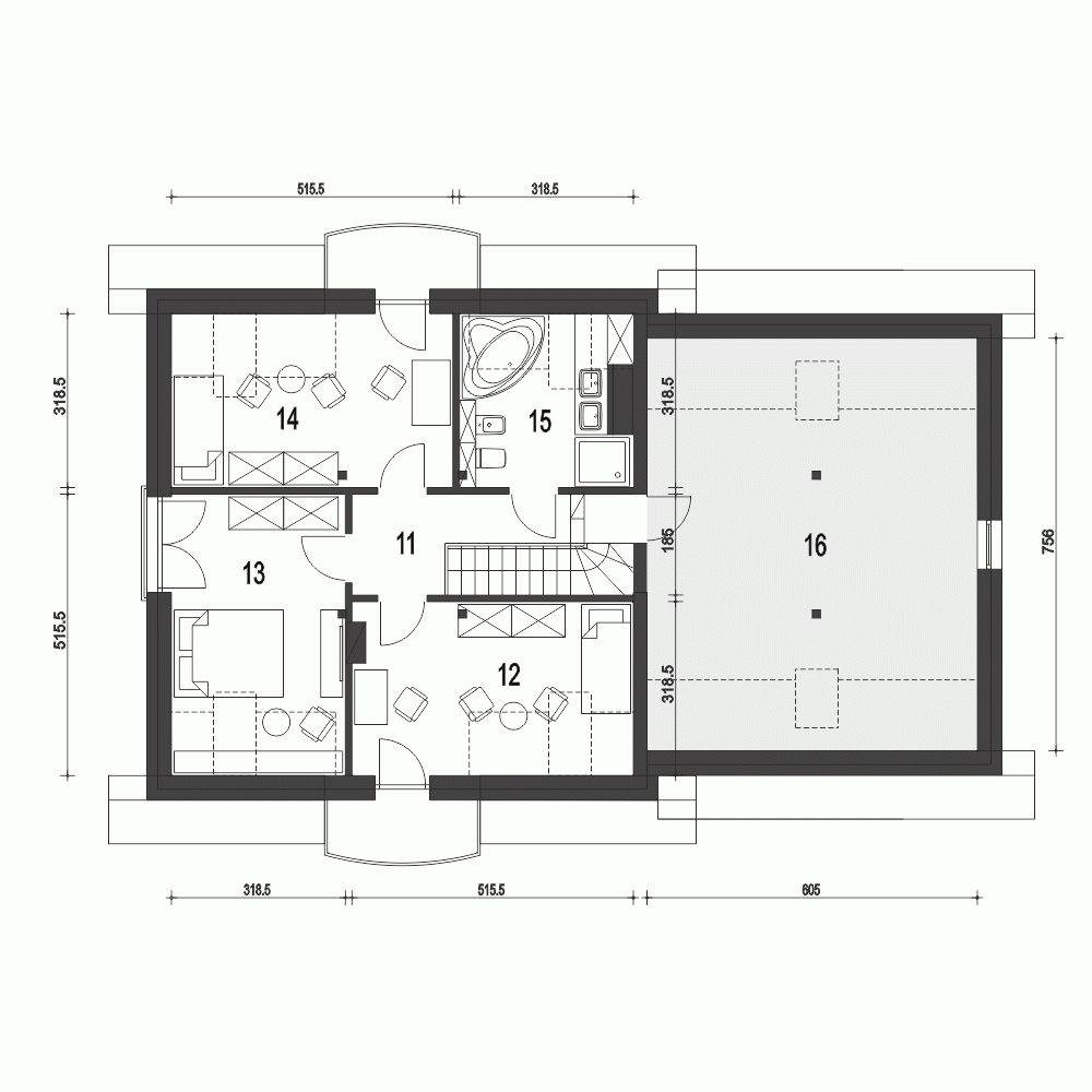
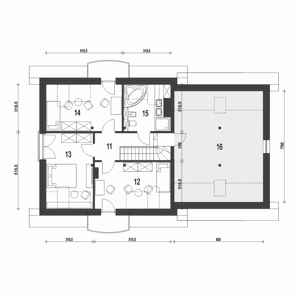
Piętro
- m²
- 11. Przedpokój6.4
- 12. Sypialnia12.6
- 13. Sypialnia12.9
- 14. Sypialnia12.8
- 15. Łazienka6.3
- 16. Strych*29.9
Przekrój
Usytuowanie na działce
Dane techniczne
- Powierzchnia użytkowa111.4 m²
- Powierzchnia zabudowy141.7 m²
- KominekTak
- Liczba łazienek2
- Liczba pokoi5
- Powierzchnia dachu248 m²
- Kubatura481 m³
- Długość domu9.4 m
- Szerokość domu16 m
- Wysokość domu8.6 m
- Minimalne wymiary działki17.4 x 24m
- GarażDwustanowiskowy
- Rodzaj dachuDwuspadowy
- Kąt nach. dachu40°
Instalacja grzewcza
- Instalacja grzewczaGaz
- Instalacja opcjonalna
Zawartość projektu
Zgodnie ze znowelizowaną Ustawą Prawo Budowlane art.34 ust.3, na projekt budowlany składają się trzy części:
- projekt zagospodarowania działki lub terenu
- projekt architektoniczno-budowlany
- projekt techniczny
Nasze projekty oferujemy w 3 egzemplarzach, zawierających projekt architektoniczno-budowlany i projekt techniczny. Projekt zagospodarowania działki lub terenu nie wchodzi w skład projektu oferowanego do sprzedaży. Projekt ten należy zlecić we własnym zakresie lokalnemu projektantowi, który opracuje go na podstawie danych zawartych w projekcie architektoniczno-budowlanym i technicznym, po dostosowaniu projektu do warunków lokalnych i wymagań inwestora.
UWAGA: wszystkie egzemplarze projektu zabezpieczone są hologramami, w części rysunkowej posiadają nadruki zabezpieczające w kolorze zielonym. Zalecamy aby po otrzymaniu przesyłki kontrolować czy na pierwszych stronach projektu znajduje się hologram i czy na rysunkach widoczne są w/w nadruki potwierdzające oryginalność projektu.
Wyrażamy zgodę na wszelkie zmiany zgodne z obowiązującymi przepisami pod warunkiem wprowadzenia ich przez uprawnioną osobę.
Wszystkie zmiany wymienione powyżej powinny być naniesione na oryginał projektu katalogowego trwałą techniką graficzną w kolorze czerwonym lub dołączone jako aneks i podpisane przez osobę uprawnioną dokonująca adaptacji.
**ważne informacje
Projekt w fazie koncepcji dostępny z wydłużonym terminem realizacji. Przy zamówieniu ustalamy termin i pobieramy zadatek 50% podstawowej ceny projektu (jako koszty usługi przygotowania dokumentacji do standardu projektu gotowego, w przypadku rezygnacji z usługi, zadatek nie podlega zwrotowi).
Cena za dodatkowy egzemplarz projektu jest zależna od nazwy projektu!
Dodatki
Bezpłatne dodatki
GratisZestaw umów
GratisZmiany w projekcie
GratisTablica budowy
GratisDziennik budowy
Płatne dodatki

Kosztorys - stan wykończony
540 zł

Projekt wentylacji mechanicznej
1 000 zł







