- Typ projektuWolnostojący
- Powierzchnia użytkowa121.67 m²
- KondygnacjeParterowy, z poddaszem
- GarażDwustanowiskowy
- DachWielospadowy
- Kąt nach. dachu35°
- Odbicie lustrzaneNie
- Czas realizacjimax. czas realizacji 10 dni Zobacz więcej >
Opis
Zgodność z WT 2021 i Eurokodami
Ze względu na dostosowywanie projektu do standardu WT 2021, czas realizacji może się różnić od standardowego.
Skontaktuj się z nami aby poznać szczegóły dotyczące wybranego projektu.
Opis projektu
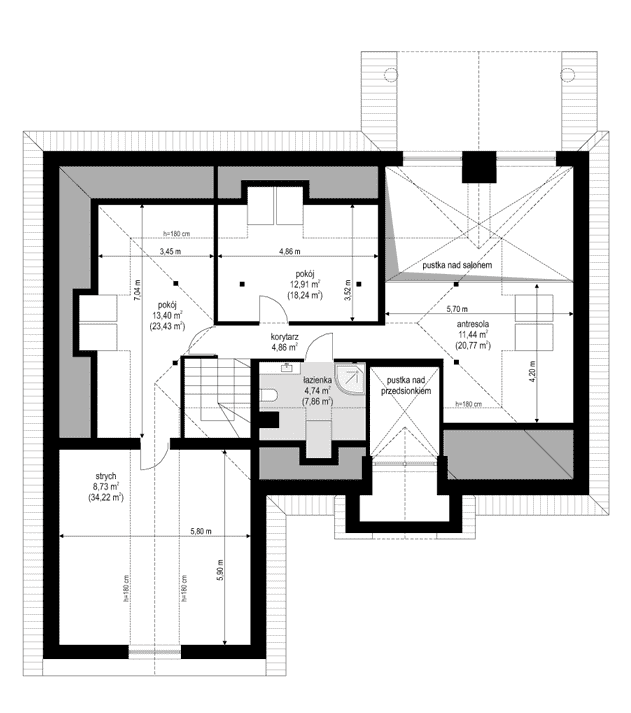
Projekt domu Dom na parkowej 6 to kolejny projekt z kolekcji Domów na Parkowej - tym razem większą wersję tego projektu: Dom na Parkowej 6. Dom jednorodzinny dla 3-6 osobowej rodziny, parterowy, ze strychem, który można zaadaptować łatwo i wykorzystać na poddasze użytkowe. Budynek ma prostokątną bryłę, przykrytą cztero spadowym dachem. Od strony elewacji frontowej dobudowany jest do niej garaż dwustanowiskowy. Reprezentacyjny front domu, przywołujący na myśl amerykańskie rezydencje z bogatych przedmieści, ozdobiony jest pięknym, wspartym na kolumnach zadaszeniem nad drzwiami wejściowymi. Jest to centralny element elewacji frontowej skupiający całą uwagę. Podobnie od strony ogrodu: głównym elementem ozdabiającym elewację jest piękne zadaszenie nad tarasem, oraz duże przeszklenia salonu. Architektura domu nasycona klasycznymi detalami, acz stonowana, tworzy elegancki dom o ponadczasowym wyglądzie. Wnętrze: całość programu użytkowego Domu na Parkowej 6 znajduje się na parterze. Strych może być zagospodarowany jako dodatkowa użytkowa przestrzeń, lub może być pozostawiony jako strych. Jeśli jest wykorzystany jako poddasze użytkowe, wówczas znajdują się tam dwa pokoje, łazienka i antresola nad pustką nad salonem. Do domu wschodzimy przez wygodną sień z szatnią, o podwyższonym suficie, z której dostajemy się do holu, lub w bok - do kotłowni i garażu. Na wprost wejścia wchodzimy do otwartej przestrzeni dziennej połączonego salonu i jadalni, oraz wydzielonej pięknej kuchni ze spiżarnią. Nad salonem otwarto sufit powiększając dodatkowo przestrzeń dzienną. Otwarcie jest połączone z antresolą na poddaszu. W części nocnej domu mamy trzy sypialnie, wc i łazienkę. Sypialnie dzieci mają wbudowane szafy. Sypialnia rodziców-garderobę. Wszystkie sypialnie mają piękne okna z widokiem na ogród. Nad garażem znajduje się dodatkowy strych gospodarczy. Dom na Parkowej 6 jest prosty w budowie i energooszczędny. To doskonała propozycja dla osób nie planujących wydawać bardzo dużej kwoty na budowę domu, lub nie posiadających dużej działki, a jednocześnie nie chcących rezygnować z marzeń. Zapraszamy do zapoznania się z pełną ofertą pracowni MG Projekt: projekt domu Dom na parkowej, projekt domu Dom na parkowej 2, projekt domu Dom na parkowej 3, projekt domu Dom na parkowej 4, projekt domu Dom na parkowej 5, projekt domu Dom na parkowej 7 A, projekt domu Dom na parkowej 7 B.
Konstrukcja
- Fundamentybetonowe ławy i ściany fundamentowe z bloczków betonowych
- Ściany zewnętrzneściany murowane - pustaki porotherm 25 + styropian + tynk cienkowarstwowy
- Stropmonolityczny żelbetowy nad parterem
- Elewacjetynk cienkowarstwowy
- Pokrycie dachudachówka
Rzuty
Dane techniczne
- Powierzchnia użytkowa121.67 m²
- Powierzchnia netto128.55 m²
- Powierzchnia zabudowy203.91 m²
- KominekTak
- Liczba łazienek3
- Liczba pokoi4
- Powierzchnia dachu314.9 m²
- Kubatura742 m³
- Długość domu15.35 m
- Szerokość domu16.5 m
- Wysokość domu7.61 m
- Poddaszedo adaptacji
- Minimalne wymiary działki24.85 x 23.5m
- GarażDwustanowiskowy
- Rodzaj dachuWielospadowy
- Kąt nach. dachu35°
Koszty budowy
- Stan surowy262436 zł
- Stan surowy zamknięty379671 zł
- Koszt wykończenia363960 zł
- Koszt instalacji94622 zł
Zawartość projektu
W komplecie nowej wersji dokumentacji projektowej znajdują się 3 egzemplarze projektu architektoniczno-budowlanego oraz 3 egzemplarze projektu technicznego
Projekt architektoniczno-budowlany zawierający:
-opis architektoniczny z elementami konstrukcji,
-część rysunkowa: rzut parteru, poddasza/piętra, rzut dachu w skali 1:100, przekroje skala 1:50,
elewacje skala 1:100.
Projekt techniczny zawierający:
-opis techniczny i konstrukcyjny (obliczenia statyczne - w zależności od projektu włączone w projekt lub stanowiące odrębną teczkę).
Część rysunkowa architektura i konstrukcja:
-rzuty fundamentów, parteru, poddasza, stropu, więźby, dachu / w skali 1:50,
-przekroje przez budynek / budynek skali 1:50,
-elewacje budynku / w skali 1:50 (*niektóre projekty posiadają rysunki w skali 1:100 lub 1:75),
-zestawienie stolarki budowlanej okiennej i drzwiowej,
-szczegóły konstrukcji i ewentualne szczegóły budowlane,
Część instalacyjna:
-część opisowa do projektów instalacji elektrycznych, wodno-kanalizacyjnych, grzewczych, gazowych (jeśli występują).
Część rysunkowa do projektów instalacji:
-schematy instalacji elektrycznych, schemat rozdzielni, plan instalacji odgromowej,
-schematy instalacji wodno-kanalizacyjnej i ciepłej wody,
-schematy instalacji grzewczych,
-schemat instalacji gazowej (jeśli występują).
Do projektu dołączane jest zestawienie materiałowe, z wykazem elementów drewnianych oraz stali budowlanej.
Do projektu dołączone są kopie uprawnień wszystkich projektantów, oraz aktualne zaświadczenia o przynależności do izb zawodowych.
Projekt zawiera oświadczenie projektantów o poprawności projektu w świetle Prawa Budowlanego, a także zawiera informację dotyczącą bezpieczeństwa i ochrony zdrowia ( BIOZ).
Do projektu dołączona jest także zgoda na zmiany adaptacyjne. Zgoda dołączana jest do każdego projektu bezpłatnie. Na Państwa życzenie zakres zgody na zmiany możemy dowolnie rozszerzyć.
Pracownia zezwala na następujące zmiany i odstępstwa od projektu architektoniczno-budowlanego w trakcie jego przystosowywania do lokalizacji:
- Zmianę obrysu zewnętrznego ścian zewnętrznych.
- Zmianę obrysu wewnętrznego ścian zewnętrznych.
- Zmianę układu ścian wewnętrznych działowych.
- Zmianę funkcji, ilości i usytuowania poszczególnych pomieszczeń na dowolnej kondygnacji w projekcie.
- Zmianę ukształtowania, ilości i kąta nachylenia połaci dachowych.
- Zmianę ilości, umiejscowienia i wielkości otworów okiennych i drzwiowych.
- Zmianę rodzaju materiału i technologii wykonania ścian zewnętrznych oraz wewnętrznych oraz ścian fundamentowych.
- Zmianę rodzaju i technologii wykonania stropów nad dowolną kondygnacją.
- Zmianę umiejscowienia, kształtu i materiału wykonania schodów w budynku.
- Zmianę wielkości, kształtu i materiałów, bądź likwidacja: tarasów, podestów i balkonów.
- Likwidację lub dodanie dowolnej ilości:
- lukarn,
- wykuszy,
- podcieni,
- balkonów,
- loggii,
- kolumn,
- pilastrów,
- ganków,
- werand.
- Zmianę materiałów wykończeniowych, instalacyjnych, izolacyjnych.
- Zmianę rodzaju pokrycia dachowego.
- Doprojektowanie bądź likwidacja podpiwniczenia - częściowego lub całkowitego.
Polecane projekty
Dodatki
Bezpłatne dodatki
GratisZestaw umów
GratisZmiany w projekcie
PromocjaProjekt szamba szczelnego
GratisTablica budowy
GratisDziennik budowy
Płatne dodatki

Pakiet wentylacja mechaniczna i kominek DGP
550 zł

Kosztorys inwestorski
600 zł

Pakiet odkurzacz centralny
550 zł

Wersja elektroniczna projektu
600 zł

Pakiet instalacja solarna
550 zł

Pakiet ogrzewanie podłogowe
550 zł

Pakiet powietrzna pompa ciepła
550 zł

Pakiet płaszcz wodny
550 zł

Pakiet kotłownia na paliwo stałe
550 zł

Pakiet klimatyzacja w domu
550 zł

Projekt ogrodzenia
750 zł

Pakiet instalacja fotowoltaiczna
550 zł

Pakiet kominek z DGP
500 zł

Pakiet gruntowa pompa ciepła
550 zł

Projekt altan i grilów ogrodowych
850 zł

Dodatkowy egzemplarz do projektu
650 zł
















