- Typ projektuWolnostojący
- Powierzchnia użytkowa132.88 m²
- KondygnacjeParterowy, z poddaszem
- GarażJednostanowiskowy
- DachWielospadowy
- Kąt nach. dachu30°
- Odbicie lustrzaneNie
- Czas realizacjimax. czas realizacji 10 dni Zobacz więcej >
Opis
Zgodność z WT 2021 i Eurokodami
Ze względu na dostosowywanie projektu do standardu WT 2021, czas realizacji może się różnić od standardowego.
Skontaktuj się z nami aby poznać szczegóły dotyczące wybranego projektu.
Opis projektu
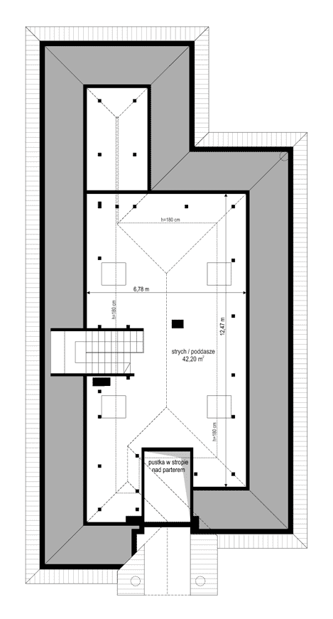
Projekt domu Dom na parkowej 7A jest kolejną propozycją projektu z cieszącej się popularnością serii „Dom na Parkowej”. Budynek zaprojektowano za planie prostokąta, jako podłużną, dość wąską bryłę przykrytą czterospadowym dachem, z dobudowaną częścią z sypialnią rodziców, a od frontu z wystającym garażem. Projekt domu Dom na parkowej 7A to idealna propozycja na wąską działkę o szerokości poniżej 19 metrów. Cała funkcja budynku mieści się na jednej kondygnacji, na parterze, dając mieszkańcom komfort i luksus życia na jednym poziomie - blisko ogrodu. Obszerny strych nad parterem można zaadaptować na dodatkowe poddasze użytkowe z pomieszczeniami, albo pozostawić go jako domowy magazyn. Architektura Domu Parkowego 7A nawiązuje do innych modeli z tej serii – stylizowanych na klasyczne podmiejskie wille, z dworkowo-rezydencyjnymi detalami. Do domu wchodzimy przez piękny przedsionek z łukowym sklepieniem, przez wejściowe drzwi z naświetlami, do przedsionka i wnętrza. Od strony ogrodowej mamy zaprojektowane ogrodowe patio przesłonięte ścianami w układzie litery „L”, z zadaszonym podcieniem nad tarasem. Wnętrze domu to jednoprzestrzenne wnętrze salonu, holu i kuchni, cześć gospodarczo –garażowa, oraz część nocna z sypialniami dzieci i rodziców oraz łazienką. Wnętrze ma przewidziane szafy i praktyczne schowki, każde z pomieszczeń jest ustawne i funkcjonalne. Zapasowa przestrzeń strychu może być dodatkowo zaadaptowana na powierzchnię użytkową i włączona do domu powiększając go znacznie. Dom ma dość prostą konstrukcję i nie powinien być trudny w realizacji. Z kolei bardzo dobre izolacje termiczne i zastosowane nowoczesne instalacje sprawią, że budynek będzie tani w późniejszym utrzymaniu i eksploatacji. Projekt domu Dom na parkowej 7A to idealna propozycja dla Inwestorów lubiących klasyczną architekturę, posiadających wąską parcelę, planujących budowę domu parterowego i dysponujących niewygórowanym budżetem. Zapraszamy do zapoznania się z pełną ofertą pracowni MG Projekt: projekt domu Dom na parkowej, projekt domu Dom na parkowej 2, projekt domu Dom na parkowej 3, projekt domu Dom na parkowej 4, projekt domu Dom na parkowej 5, projekt domu Dom na parkowej 6, projekt domu Dom na parkowej 7 B.
Konstrukcja
- Fundamentybetonowe ławy i ściany fundamentowe z bloczków betonowych
- Ściany zewnętrzneściany murowane - pustaki porotherm 25 + styropian
- Stropmonolityczny betonowy
- Elewacjetynk cienkowarstwowy
- Pokrycie dachudachówka
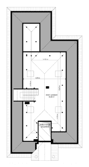
Rzuty
Dane techniczne
- Powierzchnia użytkowa132.88 m²
- Powierzchnia netto140.44 m²
- Powierzchnia zabudowy204.19 m²
- KominekTak
- Liczba łazienek2
- Liczba pokoi4
- Powierzchnia dachu298.3 m²
- Kubatura902 m³
- Długość domu23.19 m
- Szerokość domu10.8 m
- Wysokość domu7.01 m
- Poddaszedo adaptacji
- Minimalne wymiary działki30.49 x 18.8m
- GarażJednostanowiskowy
- Rodzaj dachuWielospadowy
- Kąt nach. dachu30°
Koszty budowy
- Stan surowy269269 zł
- Stan surowy zamknięty369743 zł
- Koszt wykończenia359102 zł
- Koszt instalacji128384 zł
Zawartość projektu
W komplecie nowej wersji dokumentacji projektowej znajdują się 3 egzemplarze projektu architektoniczno-budowlanego oraz 3 egzemplarze projektu technicznego
Projekt architektoniczno-budowlany zawierający:
-opis architektoniczny z elementami konstrukcji,
-część rysunkowa: rzut parteru, poddasza/piętra, rzut dachu w skali 1:100, przekroje skala 1:50,
elewacje skala 1:100.
Projekt techniczny zawierający:
-opis techniczny i konstrukcyjny (obliczenia statyczne - w zależności od projektu włączone w projekt lub stanowiące odrębną teczkę).
Część rysunkowa architektura i konstrukcja:
-rzuty fundamentów, parteru, poddasza, stropu, więźby, dachu / w skali 1:50,
-przekroje przez budynek / budynek skali 1:50,
-elewacje budynku / w skali 1:50 (*niektóre projekty posiadają rysunki w skali 1:100 lub 1:75),
-zestawienie stolarki budowlanej okiennej i drzwiowej,
-szczegóły konstrukcji i ewentualne szczegóły budowlane,
Część instalacyjna:
-część opisowa do projektów instalacji elektrycznych, wodno-kanalizacyjnych, grzewczych, gazowych (jeśli występują).
Część rysunkowa do projektów instalacji:
-schematy instalacji elektrycznych, schemat rozdzielni, plan instalacji odgromowej,
-schematy instalacji wodno-kanalizacyjnej i ciepłej wody,
-schematy instalacji grzewczych,
-schemat instalacji gazowej (jeśli występują).
Do projektu dołączane jest zestawienie materiałowe, z wykazem elementów drewnianych oraz stali budowlanej.
Do projektu dołączone są kopie uprawnień wszystkich projektantów, oraz aktualne zaświadczenia o przynależności do izb zawodowych.
Projekt zawiera oświadczenie projektantów o poprawności projektu w świetle Prawa Budowlanego, a także zawiera informację dotyczącą bezpieczeństwa i ochrony zdrowia ( BIOZ).
Do projektu dołączona jest także zgoda na zmiany adaptacyjne. Zgoda dołączana jest do każdego projektu bezpłatnie. Na Państwa życzenie zakres zgody na zmiany możemy dowolnie rozszerzyć.
Pracownia zezwala na następujące zmiany i odstępstwa od projektu architektoniczno-budowlanego w trakcie jego przystosowywania do lokalizacji:
- Zmianę obrysu zewnętrznego ścian zewnętrznych.
- Zmianę obrysu wewnętrznego ścian zewnętrznych.
- Zmianę układu ścian wewnętrznych działowych.
- Zmianę funkcji, ilości i usytuowania poszczególnych pomieszczeń na dowolnej kondygnacji w projekcie.
- Zmianę ukształtowania, ilości i kąta nachylenia połaci dachowych.
- Zmianę ilości, umiejscowienia i wielkości otworów okiennych i drzwiowych.
- Zmianę rodzaju materiału i technologii wykonania ścian zewnętrznych oraz wewnętrznych oraz ścian fundamentowych.
- Zmianę rodzaju i technologii wykonania stropów nad dowolną kondygnacją.
- Zmianę umiejscowienia, kształtu i materiału wykonania schodów w budynku.
- Zmianę wielkości, kształtu i materiałów, bądź likwidacja: tarasów, podestów i balkonów.
- Likwidację lub dodanie dowolnej ilości:
- lukarn,
- wykuszy,
- podcieni,
- balkonów,
- loggii,
- kolumn,
- pilastrów,
- ganków,
- werand.
- Zmianę materiałów wykończeniowych, instalacyjnych, izolacyjnych.
- Zmianę rodzaju pokrycia dachowego.
- Doprojektowanie bądź likwidacja podpiwniczenia - częściowego lub całkowitego.
Polecane projekty
Dodatki
Bezpłatne dodatki
GratisZestaw umów
GratisZmiany w projekcie
PromocjaProjekt szamba szczelnego
GratisTablica budowy
GratisDziennik budowy
Płatne dodatki

Pakiet wentylacja mechaniczna i kominek DGP
550 zł

Kosztorys inwestorski
600 zł

Pakiet odkurzacz centralny
550 zł

Wersja elektroniczna projektu
600 zł

Pakiet instalacja solarna
550 zł

Pakiet ogrzewanie podłogowe
550 zł

Pakiet powietrzna pompa ciepła
550 zł

Pakiet płaszcz wodny
550 zł

Pakiet kotłownia na paliwo stałe
550 zł

Pakiet klimatyzacja w domu
550 zł

Projekt ogrodzenia
750 zł

Pakiet instalacja fotowoltaiczna
550 zł

Pakiet kominek z DGP
500 zł

Pakiet gruntowa pompa ciepła
550 zł

Projekt altan i grilów ogrodowych
850 zł

Dodatkowy egzemplarz do projektu
650 zł




















