Projekt domu Dom przy Modrzewiowej 17
- Typ projektuWolnostojący
- StylNowoczesny
- Powierzchnia użytkowa130.64 m²
- Kondygnacjez poddaszem
- GarażJednostanowiskowy
- DachDwuspadowy
- Kąt nach. dachu40°
- Odbicie lustrzaneTak
- Czas realizacjimax. czas realizacji 10 dni Zobacz więcej >
Opis
Zgodność z WT 2021 i Eurokodami
Ze względu na dostosowywanie projektu do standardu WT 2021, czas realizacji może się różnić od standardowego.
Skontaktuj się z nami aby poznać szczegóły dotyczące wybranego projektu.
Opis projektu
Dom przy Modrzewiowej 17 to gotowy projekt domu z użytkowym poddaszem, podwójnym garażem i dachem dwuspadowym, ustawionym kalenicą równolegle do drogi. Część dzienną tworzą przestronny pokój dzienny, połączony z jadalnią ulokowaną w wykuszu. Całość jest otwarta na elegancką kuchnię. Pod ręką mamy do dyspozycji dużą spiżarnię, w której przechowamy domowe przetwory i inne artykuły żywnościowe. Pozostałe elementy parteru to dodatkowy pokój, łazienka, pralnia i spora kotłownia z pomieszczeniem gospodarczym, umieszczona za garażem.Na poddaszu zaprojektowano trzy sypialnie, łazienkę i garderobę. Każdy pokój ma wyjście na balkon. Dodatkową przestrzeń do indywidualnego zagospodarowania stanowi duży strych. Budynek projektowany w technologii tradycyjnej, murowanej, z ogrzewaniem gazowym. Dodatkowo opcjonalnie można zastosować wentylację mechaniczną z rekuperacją oraz instalację solarną. Dom przy Modrzewiowej 17 to projekt dla dużej rodziny, która lubi przestrzeń, komfort i doceni nowoczesną stylistykę architektoniczną.Konstrukcja
Ściany zewnętrzne: pustak 25 cm, styropian 20 cm.Ściany nośne: pustak 25 cm.
Strop: monolityczny żelbetowy.
Dach: kąt nachylenia 40°, pokrycie - dachówka ceramiczna lub betonowa.
Rzuty
Parter
- 1 - Wiatrołap4.2 m²
- 2 - Hall8.73 m²
- 3 - Spiżarnia2.59 m²
- 4 - Kuchnia12.72 m²
- 5 - Pokój dzienny25 m²
- 6 - Pokój11.62 m²
- 7 - Kotłownia9.37 m²
- 8 - Garaż35.52 m²
- 9 - Pralnia4.12 m²
- 10 - Łazienka3.92 m²
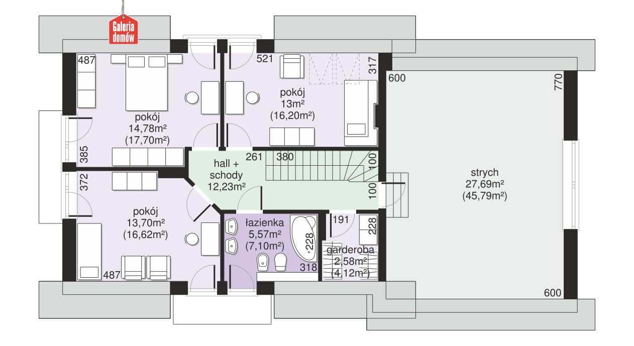
Poddasze
- 1 - Hall + schody12.23 m²
- 2 - Garderoba2.58 m²
- 3 - Łazienka5.57 m²
- 4 - Pokój13.7 m²
- 5 - Pokój14.78 m²
- 6 - Pokój13 m²
- 7 - Strych27.69 m²
Przekrój
Sytuacja
Dane techniczne
- Powierzchnia użytkowa130.64 m²
- Powierzchnia zabudowy153.46 m²
- KominekTak
- Liczba łazienek2
- Liczba pokoi5
- Kubatura829.34 m³
- Wysokość domu8.16 m
- Minimalne wymiary działki26.15 x 17.2m
- GarażJednostanowiskowy
- Rodzaj dachuDwuspadowy
- Kąt nach. dachu40°
Instalacja grzewcza
- Instalacja grzewczainstalacja solarna, instalacja wentylacji mechanicznej
Zawartość projektu
Każdy egzemplarz dokumentacji składa się z z 6 egzemplarzy.Architekt wykonujący przystosowanie projektu gotowego tworzy projekt budowlany składający się z dwóch części - projektu architektoniczno-budowlanego (3 egzemplarze) oraz projektu technicznego (3 egzemplarze).
Projekt gotowy zawiera:
-projekt architektoniczny - zawierający opis oraz rysunki techniczne,
-projekt konstrukcyjny - składający się z opisu, obliczeń statycznych, rysunków oraz zestawień stali konstrukcyjnej i elementów więźby
-projekt wewnętrznych instalacji sanitarnych i grzewczych obejmujący instalacje: c.o., wodną, kanalizacyjną i gazową - zawierający opis, rysunki techniczne i zestawienia materiałów
-projekt wewnętrznej instalacji elektrycznej i odgromowej - składający się z opisu oraz rysunków technicznych.
We wszystkich egzemplarzach znajdą Państwo dołączony komplet uprawnień oraz niezbędne zaświadczenia projektantów o wpisach do izb zawodowych.
Zgoda na zmiany w pełnym zakresie dołączana jest automatycznie do projektu gotowego. Projektant dokonujący adaptacji projektu może wprowadzić następujące zmiany:
- wynikające z dostosowania budynku do warunków lokalnych
- zmiana technologii w zakresie użytych materiałów
- zmiana ilości, wielkości i usytuowania otworów okiennych i drzwiowych
- zmiana funkcji niektórych pomieszczeń
- zmiana wysokości pomieszczeń
- przesunięcie lub likwidacja niektórych ścian działowych
- zmiana obrysu zewnętrznego budynku
- adaptacja poddasza na cele mieszkalne
- zmiana wysokości ścian kolankowych
- zmiana geometrii połaci dachowych: kąta nachylenia, ilości i układu połaci dachowych (np. zmiana z wielospadowego, na dwuspadowy lub odwrotnie)
- zmiana lukarn na okna połaciowe (lub odwrotnie)
- zmiany szerokości biegów schodowych, liczby stopni i wymiarów schodów
- instalacji wewnętrznych
- zmiana ilości, wielkości i usytuowania trzonów kominowych
- zmiana wielkości i kształtu tarasów zewnętrznych
- wprowadzenie częściowego (całkowitego) podpiwniczenia budynku lub rezygnacja z podpiwniczenia
- dobudowanie garażu (wiaty garażowej) lub rezygnacja z garażu
- wykonanie lustrzanego odbicia
- likwidacja lub dodanie balkonu
- zmiana formy wejścia do budynku
- dobudowa do istniejącego budynku lub zestawienie w zabudowie bliźniaczej
- zmiana sposobu użytkowania budynku
- zmiany w układzie konstrukcji budynku na podstawie opracowania przez uprawnionego inżyniera budownictwa lądowego
Zmiany powyższe powinny być zaznaczone kolorem czerwonym w projekcie gotowym i podpisane przez osobę uprawnioną. W uzasadnionych przypadkach należy wykonać rysunki zamienne. Za zakres i poprawność przystosowania projektu gotowego (w tym wprowadzonych zmian) oraz za jego zgodność z obowiązującymi normami i przepisami budowlanymi w dniu składania projektu do zatwierdzenia, odpowiedzialność ponosi projektant przystosowujący projekt gotowy. Obowiązki z tytułu sprawowania nadzoru autorskiego przyjmuje na siebie projektant przystosowujący projekt gotowy.
Inne warianty tego projektu
Dodatki
Bezpłatne dodatki
GratisZestaw umów
GratisZmiany w projekcie
GratisTablica budowy
GratisDziennik budowy














