- Typ projektuWolnostojący
- StylNowoczesny
- Powierzchnia użytkowa110.21 m²
- Kondygnacjez poddaszem
- GarażDwustanowiskowy
- DachCzterospadowy
- Kąty nach. dachu45°, 41°, 38°
- Odbicie lustrzaneTak
- Czas realizacjimax. czas realizacji 10 dni Zobacz więcej >
Opis
Zgodność z WT 2021 i Eurokodami
Ze względu na dostosowywanie projektu do standardu WT 2021, czas realizacji może się różnić od standardowego.
Skontaktuj się z nami aby poznać szczegóły dotyczące wybranego projektu.
Opis projektu
Dom przy Sielskiej 11 to projekt domu jednorodzinnego, z użytkowym poddaszem i podwójnym garażem w bryle budynku. Dom zaprojektowany z myślą o 4,5-osobowej rodzinie. Stylistycznie projekt ten jest połączeniem tradycji z nowoczesnością. Parter mieści salon połączony z jadalnią i kuchnią oraz spiżarnię. Ponadto na tym poziomie znajduje się łazienka, dodatkowy pokój oraz kotłownia z pralnią. Poddasze zaprojektowano jako strefę wypoczynku. Znajdują się tu trzy sypialnie oraz duża łazienka i garderoba. Gotowy projekt domu przy Sielskiej 11 zaprojektowano w technologii murowanej z ogrzewaniem gazowym. Jest to projekt energooszczędnego domu wyposażonego w wentylację mechaniczną z odzyskiem ciepła oraz instalacje solarną.Konstrukcja
Ściany zewnętrzne: pustak 25 cm, styropian 20 cm.Ściany nośne: pustak 25 cm.
Strop: monolityczny żelbetowy.
Dach: kąt nachylenia 45°, pokrycie - dachówka ceramiczna lub betonowa.
Rzuty
Parter
- 1 - wiatrołap3.14 m²
- 2 - hall2.71 m²
- 3 - toaleta3.38 m²
- 4 - pokój9.45 m²
- 5 - pokój dzienny28.78 m²
- 6 - kuchnia11.41 m²
- 7 - spiżarnia1.03 m²
- 8 - garaż31.7 m²
- 9 - kotłownia6.98 m²
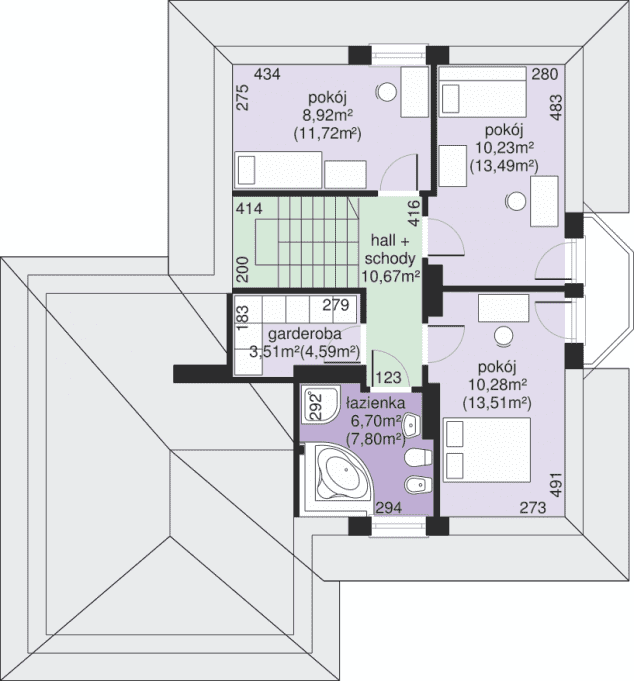
Poddasze
- 1 - hall + schody10.67 m²
- 2 - pokój8.92 m²
- 3 - pokój10.23 m²
- 4 - pokój10.28 m²
- 5 - łazienka6.7 m²
- 6 - garderoba3.51 m²
Przekrój
Sytuacja
Dane techniczne
- Powierzchnia użytkowa110.21 m²
- Powierzchnia zabudowy134.59 m²
- KominekTak
- Liczba łazienek2
- Liczba pokoi5
- Kubatura718.86 m³
- Wysokość domu8.8 m
- Minimalne wymiary działki21.51 x 20.58m
- GarażDwustanowiskowy
- Rodzaj dachuCzterospadowy
- Kąty nach. dachu45°, 41°, 38°
Instalacja grzewcza
- Instalacja grzewczainstalacja solarna, instalacja wentylacji mechanicznej
Zawartość projektu
Każdy egzemplarz dokumentacji składa się z z 6 egzemplarzy.Architekt wykonujący przystosowanie projektu gotowego tworzy projekt budowlany składający się z dwóch części - projektu architektoniczno-budowlanego (3 egzemplarze) oraz projektu technicznego (3 egzemplarze).
Projekt gotowy zawiera:
-projekt architektoniczny - zawierający opis oraz rysunki techniczne,
-projekt konstrukcyjny - składający się z opisu, obliczeń statycznych, rysunków oraz zestawień stali konstrukcyjnej i elementów więźby
-projekt wewnętrznych instalacji sanitarnych i grzewczych obejmujący instalacje: c.o., wodną, kanalizacyjną i gazową - zawierający opis, rysunki techniczne i zestawienia materiałów
-projekt wewnętrznej instalacji elektrycznej i odgromowej - składający się z opisu oraz rysunków technicznych.
We wszystkich egzemplarzach znajdą Państwo dołączony komplet uprawnień oraz niezbędne zaświadczenia projektantów o wpisach do izb zawodowych.
Zgoda na zmiany w pełnym zakresie dołączana jest automatycznie do projektu gotowego. Projektant dokonujący adaptacji projektu może wprowadzić następujące zmiany:
- wynikające z dostosowania budynku do warunków lokalnych
- zmiana technologii w zakresie użytych materiałów
- zmiana ilości, wielkości i usytuowania otworów okiennych i drzwiowych
- zmiana funkcji niektórych pomieszczeń
- zmiana wysokości pomieszczeń
- przesunięcie lub likwidacja niektórych ścian działowych
- zmiana obrysu zewnętrznego budynku
- adaptacja poddasza na cele mieszkalne
- zmiana wysokości ścian kolankowych
- zmiana geometrii połaci dachowych: kąta nachylenia, ilości i układu połaci dachowych (np. zmiana z wielospadowego, na dwuspadowy lub odwrotnie)
- zmiana lukarn na okna połaciowe (lub odwrotnie)
- zmiany szerokości biegów schodowych, liczby stopni i wymiarów schodów
- instalacji wewnętrznych
- zmiana ilości, wielkości i usytuowania trzonów kominowych
- zmiana wielkości i kształtu tarasów zewnętrznych
- wprowadzenie częściowego (całkowitego) podpiwniczenia budynku lub rezygnacja z podpiwniczenia
- dobudowanie garażu (wiaty garażowej) lub rezygnacja z garażu
- wykonanie lustrzanego odbicia
- likwidacja lub dodanie balkonu
- zmiana formy wejścia do budynku
- dobudowa do istniejącego budynku lub zestawienie w zabudowie bliźniaczej
- zmiana sposobu użytkowania budynku
- zmiany w układzie konstrukcji budynku na podstawie opracowania przez uprawnionego inżyniera budownictwa lądowego
Zmiany powyższe powinny być zaznaczone kolorem czerwonym w projekcie gotowym i podpisane przez osobę uprawnioną. W uzasadnionych przypadkach należy wykonać rysunki zamienne. Za zakres i poprawność przystosowania projektu gotowego (w tym wprowadzonych zmian) oraz za jego zgodność z obowiązującymi normami i przepisami budowlanymi w dniu składania projektu do zatwierdzenia, odpowiedzialność ponosi projektant przystosowujący projekt gotowy. Obowiązki z tytułu sprawowania nadzoru autorskiego przyjmuje na siebie projektant przystosowujący projekt gotowy.
Dodatki
Bezpłatne dodatki
GratisZestaw umów
GratisZmiany w projekcie
GratisTablica budowy
GratisDziennik budowy












