- Typ projektuWolnostojący
- StylTradycyjny
- Powierzchnia użytkowa122.17 m²
- Kondygnacjez poddaszem
- GarażBez garażu
- DachCzterospadowy
- Kąt nach. dachu45°
- Odbicie lustrzaneTak
- Czas realizacjimax. czas realizacji 10 dni Zobacz więcej >
Opis
Zgodność z WT 2021 i Eurokodami
Ze względu na dostosowywanie projektu do standardu WT 2021, czas realizacji może się różnić od standardowego.
Skontaktuj się z nami aby poznać szczegóły dotyczące wybranego projektu.
Opis projektu
Dom przy Sielskiej 3 to pięknie zaprojektowany budynek odwołujący się do emocji bliskich niemal każdemu, kto tutaj spojrzy. Uwagę zwraca kompozycja białych ścian i ciemno-grafitowego dachu, podkreślona stylowymi dodatkami. Wyraźne linie podkreślone na rogach boniowaniem. Kolumny przy wejściu w oknie narożnym i wykuszu nadają lekkość ogólnej sylwetce domu. Żadnych zbędnych ozdób, wszystko sprawia wrażenie uporządkowanej całości i bycia na właściwym miejscu. To samo można powiedzieć o wnętrzu domu. Naprawdę czujemy się miło w dobrym klimacie tego domu.Konstrukcja
Ściany zewnętrzne: pustak 25 cm, styropian 20 cm.Ściany nośne: pustak 25 cm.
Strop: monolityczny żelbetowy.
Dach: kąt nachylenia 45°, pokrycie - dachówka ceramiczna lub betonowa.
Rzuty
Parter
- 1 - Wiatrołap3.13 m²
- 2 - Hall4.67 m²
- 3 - Pokój8.88 m²
- 4 - Łazienka4.12 m²
- 5 - Pralnia1.45 m²
- 6 - Kotłownia8.39 m²
- 7 - Pokój dzienny30.67 m²
- 8 - Kuchnia10.45 m²
- 9 - Spiżarnia1.15 m²
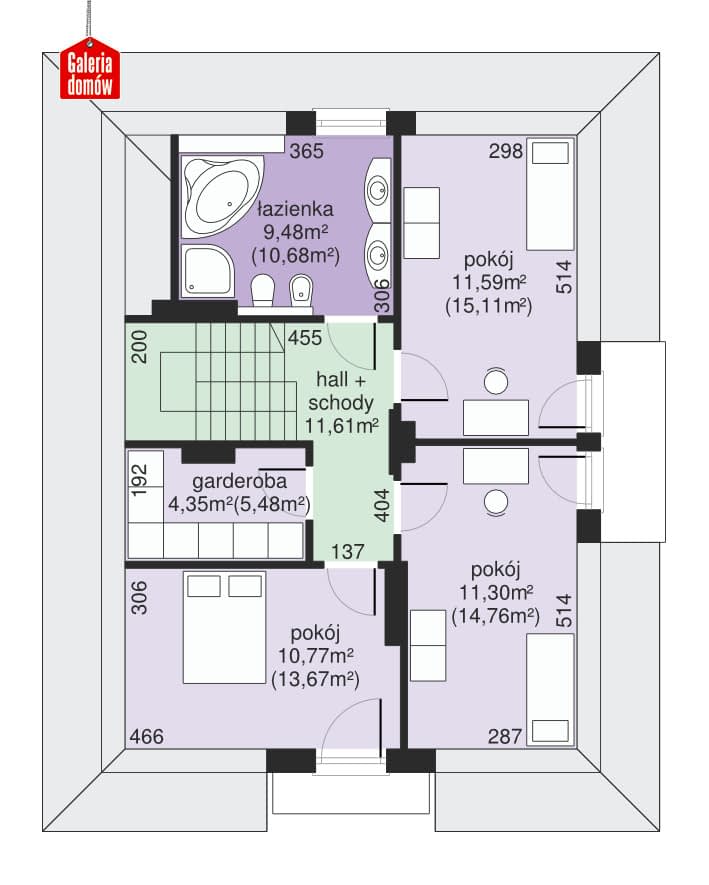
Poddasze
- 1 - Hall + schody11.61 m²
- 2 - Łazienka9.48 m²
- 3 - Pokój11.59 m²
- 4 - Pokój11.3 m²
- 5 - Pokój10.77 m²
- 6 - Garderoba4.35 m²
Przekrój
Sytuacja
Dane techniczne
- Powierzchnia użytkowa122.17 m²
- Powierzchnia zabudowy102.97 m²
- KominekTak
- Liczba łazienek2
- Liczba pokoi5
- Kubatura600.67 m³
- Wysokość domu8.97 m
- Minimalne wymiary działki19.3 x 16.65m
- GarażBez garażu
- Rodzaj dachuCzterospadowy
- Kąt nach. dachu45°
Instalacja grzewcza
- Instalacja grzewczainstalacja solarna, instalacja wentylacji mechanicznej
Zawartość projektu
Każdy egzemplarz dokumentacji składa się z z 6 egzemplarzy.Architekt wykonujący przystosowanie projektu gotowego tworzy projekt budowlany składający się z dwóch części - projektu architektoniczno-budowlanego (3 egzemplarze) oraz projektu technicznego (3 egzemplarze).
Projekt gotowy zawiera:
-projekt architektoniczny - zawierający opis oraz rysunki techniczne,
-projekt konstrukcyjny - składający się z opisu, obliczeń statycznych, rysunków oraz zestawień stali konstrukcyjnej i elementów więźby
-projekt wewnętrznych instalacji sanitarnych i grzewczych obejmujący instalacje: c.o., wodną, kanalizacyjną i gazową - zawierający opis, rysunki techniczne i zestawienia materiałów
-projekt wewnętrznej instalacji elektrycznej i odgromowej - składający się z opisu oraz rysunków technicznych.
We wszystkich egzemplarzach znajdą Państwo dołączony komplet uprawnień oraz niezbędne zaświadczenia projektantów o wpisach do izb zawodowych.
Zgoda na zmiany w pełnym zakresie dołączana jest automatycznie do projektu gotowego. Projektant dokonujący adaptacji projektu może wprowadzić następujące zmiany:
- wynikające z dostosowania budynku do warunków lokalnych
- zmiana technologii w zakresie użytych materiałów
- zmiana ilości, wielkości i usytuowania otworów okiennych i drzwiowych
- zmiana funkcji niektórych pomieszczeń
- zmiana wysokości pomieszczeń
- przesunięcie lub likwidacja niektórych ścian działowych
- zmiana obrysu zewnętrznego budynku
- adaptacja poddasza na cele mieszkalne
- zmiana wysokości ścian kolankowych
- zmiana geometrii połaci dachowych: kąta nachylenia, ilości i układu połaci dachowych (np. zmiana z wielospadowego, na dwuspadowy lub odwrotnie)
- zmiana lukarn na okna połaciowe (lub odwrotnie)
- zmiany szerokości biegów schodowych, liczby stopni i wymiarów schodów
- instalacji wewnętrznych
- zmiana ilości, wielkości i usytuowania trzonów kominowych
- zmiana wielkości i kształtu tarasów zewnętrznych
- wprowadzenie częściowego (całkowitego) podpiwniczenia budynku lub rezygnacja z podpiwniczenia
- dobudowanie garażu (wiaty garażowej) lub rezygnacja z garażu
- wykonanie lustrzanego odbicia
- likwidacja lub dodanie balkonu
- zmiana formy wejścia do budynku
- dobudowa do istniejącego budynku lub zestawienie w zabudowie bliźniaczej
- zmiana sposobu użytkowania budynku
- zmiany w układzie konstrukcji budynku na podstawie opracowania przez uprawnionego inżyniera budownictwa lądowego
Zmiany powyższe powinny być zaznaczone kolorem czerwonym w projekcie gotowym i podpisane przez osobę uprawnioną. W uzasadnionych przypadkach należy wykonać rysunki zamienne. Za zakres i poprawność przystosowania projektu gotowego (w tym wprowadzonych zmian) oraz za jego zgodność z obowiązującymi normami i przepisami budowlanymi w dniu składania projektu do zatwierdzenia, odpowiedzialność ponosi projektant przystosowujący projekt gotowy. Obowiązki z tytułu sprawowania nadzoru autorskiego przyjmuje na siebie projektant przystosowujący projekt gotowy.
Inne warianty tego projektu
Dodatki
Bezpłatne dodatki
GratisZestaw umów
GratisZmiany w projekcie
GratisTablica budowy
GratisDziennik budowy














