- Typ projektuWolnostojący
- Powierzchnia użytkowa245.25 m²
- KondygnacjePiętrowy
- GarażDwustanowiskowy
- DachWielospadowy
- Kąt nach. dachu40°
- Odbicie lustrzaneNie
- Czas realizacjimax. czas realizacji 10 dni Zobacz więcej >
Opis
Zgodność z WT 2021 i Eurokodami
Ze względu na dostosowywanie projektu do standardu WT 2021, czas realizacji może się różnić od standardowego.
Skontaktuj się z nami aby poznać szczegóły dotyczące wybranego projektu.
Opis projektu
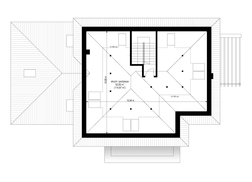
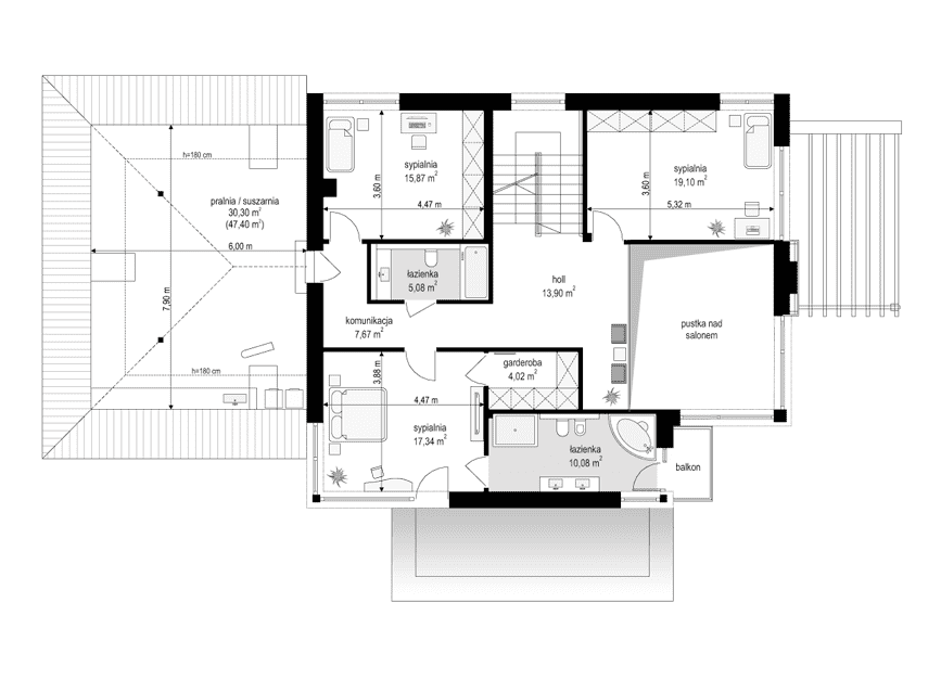
Projekt domu Dom z widokiem 2 C to projekt piętrowego domu jednorodzinnego o nowoczesnej architekturze, z kolekcji popularnych „Domów z widokiem”. Budynek został złożony z dwóch zasadniczych brył - z piętrowego rdzenia, przykrytego dachem w kształcie litery „L”, oraz parterowej bryły garażu przekrytego trzyspadowym dachem. Z uwagi na dość duży kąt nachylenia dachów, nad piętrem mieści się jeszcze spory strych, który można z powodzeniem zaadaptować na poddasze użytkowe z dodatkowymi pomieszczeniami. Bryła budynku ozdobiona jest ładnym detalem. Narożne okna, duże przeszklenia, kamienne i drewniane okładziny ścian - wszystkie te elementy dodają elewacjom domu szyku i elegancji. Budynek ma reprezentacyjny wygląd - przywołuje na myśl wrażenie komfortu i luksusu, a także solidności i trwałości zastosowanych materiałów i rozwiązań. Wnętrze zostało zaprojektowane z podziałem na przestrzeń dzienną i gospodarczą na parterze, oraz sypialnie na piętrze. Do domu wchodzimy dobrze oświetlonym przedsionkiem z szatnią, od razu do ładnego holu, a dalej do salonu z pustką i pięknymi reprezentacyjnymi schodami, oraz dużej kuchni z wyspą, oraz jadalnią. W części gospodarczej na parterze mamy dwustanowiskowy garaż z dodatkową przestrzenią magazynową, oraz osobną kotłownię. Salon i jadalnia otwierają się dużymi przeszkleniami na szeroki taras częściowo osłonięty pergolą. Z narożnego okna kuchni widzimy wejście i wjazd do domu. Na piętrze zaprojektowano apartament rodziców z garderobą, łazienką i własnym tarasem dostępnym z sypialni, oraz dwie sypialnie dziecięce z łazienką . Hol na piętrze pełni też funkcję antresoli nad salonem, w estetyczny sposób łącząc ze sobą górę i dół. Nad garażem mamy dużą dodatkową przestrzeń strychową, którą można wykorzystać w dowolny sposób. Na poddaszu nad piętrem mamy jeszcze ponad 60-metrowe studio, które również może być w łatwy sposób zaadaptowane na przestrzeń użytkową domu. Projekt domu Dom z widokiem 2 C to doskonała propozycja dla Inwestorów chcących dużego domu , ale mających ograniczenia powierzchni zabudowy lub niewielkiej działki, a do tego obowiązek budowy domu z dachem o większym kącie nachylenia połaci. Projekt domu Dom z widokiem 2 C doskonale pasować będzie na działkę z ogródkiem z boku, oraz na działkę z wjazdem na posesję od strony nasłonecznionej - na przykład od południa. W budynku zastosowano energooszczędne materiały i technologie, dzięki czemu dom będzie niedrogi w późniejszej eksploatacji. Zapraszamy do zapoznania się z pełną ofertą pracowni MG Projekt tej serii: Dom z widokiem, Dom z widokiem 2, Dom z widokiem 3, Dom z widokiem 3F, Dom z widokiem 4, Dom z widokiem 5, Dom z widokiem 6, Dom z widokiem 6B, Dom z widokiem B, Dom z widokiem E.
Konstrukcja
- Fundamentybetonowe ławy i ściany fundamentowe z bloczków betonowych
- Ściany zewnętrzneściany murowane - pustaki porotherm 25 + styropian
- Stropżelbetowy monolityczny nad parterem i piętrem
- Elewacjetynk cienkowarstwowy na styropianie
- Pokrycie dachublacha na rąbek lub dachówka
Rzuty
Dane techniczne
- Powierzchnia użytkowa245.25 m²
- Powierzchnia netto265.61 m²
- Powierzchnia zabudowy220.47 m²
- KominekTak
- Liczba łazienek3
- Liczba pokoi4
- Powierzchnia dachu340.5 m²
- Kubatura1545 m³
- Długość domu14.09 m
- Szerokość domu23.05 m
- Wysokość domu11.8 m
- Poddaszestrych
- Minimalne wymiary działki22.09 x 30.05m
- GarażDwustanowiskowy
- Rodzaj dachuWielospadowy
- Kąt nach. dachu40°
Koszty budowy
- Stan surowy307981 zł
- Stan surowy zamknięty449429 zł
- Koszt wykończenia396070 zł
- Koszt instalacji75091 zł
Zawartość projektu
W komplecie nowej wersji dokumentacji projektowej znajdują się 3 egzemplarze projektu architektoniczno-budowlanego oraz 3 egzemplarze projektu technicznego
Projekt architektoniczno-budowlany zawierający:
-opis architektoniczny z elementami konstrukcji,
-część rysunkowa: rzut parteru, poddasza/piętra, rzut dachu w skali 1:100, przekroje skala 1:50,
elewacje skala 1:100.
Projekt techniczny zawierający:
-opis techniczny i konstrukcyjny (obliczenia statyczne - w zależności od projektu włączone w projekt lub stanowiące odrębną teczkę).
Część rysunkowa architektura i konstrukcja:
-rzuty fundamentów, parteru, poddasza, stropu, więźby, dachu / w skali 1:50,
-przekroje przez budynek / budynek skali 1:50,
-elewacje budynku / w skali 1:50 (*niektóre projekty posiadają rysunki w skali 1:100 lub 1:75),
-zestawienie stolarki budowlanej okiennej i drzwiowej,
-szczegóły konstrukcji i ewentualne szczegóły budowlane,
Część instalacyjna:
-część opisowa do projektów instalacji elektrycznych, wodno-kanalizacyjnych, grzewczych, gazowych (jeśli występują).
Część rysunkowa do projektów instalacji:
-schematy instalacji elektrycznych, schemat rozdzielni, plan instalacji odgromowej,
-schematy instalacji wodno-kanalizacyjnej i ciepłej wody,
-schematy instalacji grzewczych,
-schemat instalacji gazowej (jeśli występują).
Do projektu dołączane jest zestawienie materiałowe, z wykazem elementów drewnianych oraz stali budowlanej.
Do projektu dołączone są kopie uprawnień wszystkich projektantów, oraz aktualne zaświadczenia o przynależności do izb zawodowych.
Projekt zawiera oświadczenie projektantów o poprawności projektu w świetle Prawa Budowlanego, a także zawiera informację dotyczącą bezpieczeństwa i ochrony zdrowia ( BIOZ).
Do projektu dołączona jest także zgoda na zmiany adaptacyjne. Zgoda dołączana jest do każdego projektu bezpłatnie. Na Państwa życzenie zakres zgody na zmiany możemy dowolnie rozszerzyć.
Pracownia zezwala na następujące zmiany i odstępstwa od projektu architektoniczno-budowlanego w trakcie jego przystosowywania do lokalizacji:
- Zmianę obrysu zewnętrznego ścian zewnętrznych.
- Zmianę obrysu wewnętrznego ścian zewnętrznych.
- Zmianę układu ścian wewnętrznych działowych.
- Zmianę funkcji, ilości i usytuowania poszczególnych pomieszczeń na dowolnej kondygnacji w projekcie.
- Zmianę ukształtowania, ilości i kąta nachylenia połaci dachowych.
- Zmianę ilości, umiejscowienia i wielkości otworów okiennych i drzwiowych.
- Zmianę rodzaju materiału i technologii wykonania ścian zewnętrznych oraz wewnętrznych oraz ścian fundamentowych.
- Zmianę rodzaju i technologii wykonania stropów nad dowolną kondygnacją.
- Zmianę umiejscowienia, kształtu i materiału wykonania schodów w budynku.
- Zmianę wielkości, kształtu i materiałów, bądź likwidacja: tarasów, podestów i balkonów.
- Likwidację lub dodanie dowolnej ilości:
- lukarn,
- wykuszy,
- podcieni,
- balkonów,
- loggii,
- kolumn,
- pilastrów,
- ganków,
- werand.
- Zmianę materiałów wykończeniowych, instalacyjnych, izolacyjnych.
- Zmianę rodzaju pokrycia dachowego.
- Doprojektowanie bądź likwidacja podpiwniczenia - częściowego lub całkowitego.
Dodatki
Bezpłatne dodatki
GratisZestaw umów
GratisZmiany w projekcie
PromocjaProjekt szamba szczelnego
GratisTablica budowy
GratisDziennik budowy
Płatne dodatki

Pakiet wentylacja mechaniczna i kominek DGP
550 zł

Kosztorys inwestorski
600 zł

Pakiet odkurzacz centralny
550 zł

Wersja elektroniczna projektu
600 zł

Pakiet instalacja solarna
550 zł

Pakiet ogrzewanie podłogowe
550 zł

Pakiet powietrzna pompa ciepła
550 zł

Pakiet płaszcz wodny
550 zł

Pakiet kotłownia na paliwo stałe
550 zł

Pakiet klimatyzacja w domu
550 zł

Projekt ogrodzenia
750 zł

Pakiet instalacja fotowoltaiczna
550 zł

Pakiet kominek z DGP
500 zł

Pakiet gruntowa pompa ciepła
550 zł

Projekt altan i grilów ogrodowych
850 zł

Dodatkowy egzemplarz do projektu
650 zł












