- Typ projektuWolnostojący
- Powierzchnia użytkowa221.63 m²
- KondygnacjePiętrowy
- GarażDwustanowiskowy
- DachWielospadowy
- Kąt nach. dachu25°
- Odbicie lustrzaneNie
- Czas realizacjimax. czas realizacji 10 dni Zobacz więcej >
Opis
Zgodność z WT 2021 i Eurokodami
Ze względu na dostosowywanie projektu do standardu WT 2021, czas realizacji może się różnić od standardowego.
Skontaktuj się z nami aby poznać szczegóły dotyczące wybranego projektu.
Opis projektu
Wariant projektu ze zmienionym układem pomieszczeń, powiększonym garażem. Zmniejszona głębokość budynku o 1 m, zmienione okna i lokalizacja kotłowni, powiększony balkon.
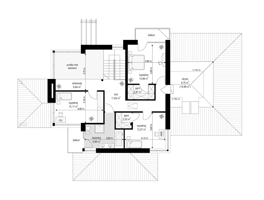
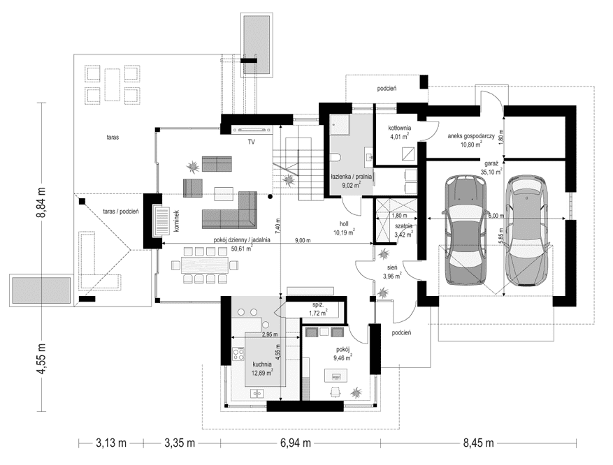
Projekt domu Dom z widokiem 6 jest kolejną wersją popularnego projektu Dom z widokiem. To wariant o zupełnie inaczej zaprojektowanym wnętrzu. Mianowicie część dzienna, salon i tarasy umieszczono tu w tylnej części domu. W związku z tym dom doskonale nadaje się na klasyczną działkę z ogrodem za domem i wejściem i wjazdem na działkę od nienasłonecznionej części działki. Projekt domu Dom z widokiem 6 to wyjątkowy projekt. Łączy w sobie wszystkie ciekawe elementy swoich poprzedników, ale ma też dodatkowe atrakcje, dające razem udaną propozycję pięknej nowoczesnej willi. Tak jak w pozostałych Domach z widokiem piętrowy rdzeń domu obudowany jest tutaj parterowymi mniejszymi bryłami. Cały budynek przykryty jest wielospadowymi łagodnymi dachami z szerokimi okapami. Motywem przewodnim są narożne duże okna - przeszklenia salonu, jadalni, kuchni. Szklany dwukondygnacyjny narożnik salonu z pustką ozdabia tym razem elewację tylną - ogrodową. Dom urozmaicony jest kamiennymi i drewnianymi okładzinami ścian, oraz daszkami, balkonami i pergolą nad tarasem. I choć w bryle domu nie brakuje „atrakcji”, to wszystkie elementy tworzą spójną i elegancką całość. Równie ciekawie prezentuje się wnętrze Domu z widokiem 6. Centralną część parteru stanowi piękny salon, z pustką nad jego fragmentem, oraz nad schodami będącymi ozdobą wnętrza. Z antresoli na piętrze możemy podziwiać pokój dzienny i widok na ogród. Do domu dostajemy się przeszklonym narożnym wejściem do przedsionka, a stąd do holu i pokoju dziennego. Przy wejściu mamy dodatkowy pokój – gabinet, a po przeciwległej stronie holu łazienkę z pralnią. Z przedsionka możemy przejść do garażu i pomieszczeń gospodarczych z kotłownią. Ładna kuchnia z dodatkową spiżarnią dostępna jest od strony holu i jadalni. Tarasy wokół przestrzeni dziennej układają się w literę L - część tarasu jest zadaszona. Piętro domu to trzy sypialnie i duża centralna łazienka. Sypialnia rodziców i jedna sypialni dziecięcych ma garderobę. Druga sypialnia dzieci - szafę wbudowaną. Część powierzchni piętra zajmuje malownicza antresola i otwarcie przestrzenne na parter. Nad garażem znajduje się stryszek gospodarczy dostępny z holu. Projekt domu Dom z widokiem 6 jest nieco mniejszy od swoich poprzedników, ale dzięki temu tańszy w realizacji. Jednocześnie dom nie traci na swojej atrakcyjności i na poczuciu przestronności jego wnętrza. Projekt domu Dom z widokiem 6 jest doskonałą propozycją dla inwestorów marzących o reprezentacyjnym, eleganckim, piętrowym domu, o nowoczesnej architekturze, oraz funkcjonalnym i oryginalnym wnętrzu. Zapraszamy do zapoznania się z pełną ofertą pracowni MG Projekt tej serii: Dom z widokiem, Dom z widokiem 2, Dom z widokiem 2C, Dom z widokiem 3, Dom z widokiem 3F, Dom z widokiem 4, Dom z widokiem 5, Dom z widokiem 6B, Dom z widokiem B, Dom z widokiem E.
Konstrukcja
- Fundamentybetonowe ławy i ściany fundamentowe z bloczków betonowych
- Ściany zewnętrzneściany murowane - pustaki porotherm 25 + styropian + tynk cienkowarstwowy
- Stropżelbetowy monolityczny nad parterem i piętrem
- Elewacjetynk cienkowarstwowy na styropianie
- Pokrycie dachudachówka ceramiczna
Rzuty
Dane techniczne
- Powierzchnia użytkowa221.63 m²
- Powierzchnia netto227.5 m²
- Powierzchnia zabudowy222.25 m²
- KominekTak
- Liczba łazienek2
- Liczba pokoi5
- Powierzchnia dachu308.68 m²
- Kubatura956 m³
- Długość domu13.39 m
- Szerokość domu18.74 m
- Wysokość domu8.82 m
- Minimalne wymiary działki22.32 x 28.74m
- GarażDwustanowiskowy
- Rodzaj dachuWielospadowy
- Kąt nach. dachu25°
Koszty budowy
- Stan surowy373555 zł
- Stan surowy zamknięty429063 zł
- Koszt wykończenia346967 zł
- Koszt instalacji100397 zł
Zawartość projektu
W komplecie nowej wersji dokumentacji projektowej znajdują się 3 egzemplarze projektu architektoniczno-budowlanego oraz 3 egzemplarze projektu technicznego
Projekt architektoniczno-budowlany zawierający:
-opis architektoniczny z elementami konstrukcji,
-część rysunkowa: rzut parteru, poddasza/piętra, rzut dachu w skali 1:100, przekroje skala 1:50,
elewacje skala 1:100.
Projekt techniczny zawierający:
-opis techniczny i konstrukcyjny (obliczenia statyczne - w zależności od projektu włączone w projekt lub stanowiące odrębną teczkę).
Część rysunkowa architektura i konstrukcja:
-rzuty fundamentów, parteru, poddasza, stropu, więźby, dachu / w skali 1:50,
-przekroje przez budynek / budynek skali 1:50,
-elewacje budynku / w skali 1:50 (*niektóre projekty posiadają rysunki w skali 1:100 lub 1:75),
-zestawienie stolarki budowlanej okiennej i drzwiowej,
-szczegóły konstrukcji i ewentualne szczegóły budowlane,
Część instalacyjna:
-część opisowa do projektów instalacji elektrycznych, wodno-kanalizacyjnych, grzewczych, gazowych (jeśli występują).
Część rysunkowa do projektów instalacji:
-schematy instalacji elektrycznych, schemat rozdzielni, plan instalacji odgromowej,
-schematy instalacji wodno-kanalizacyjnej i ciepłej wody,
-schematy instalacji grzewczych,
-schemat instalacji gazowej (jeśli występują).
Do projektu dołączane jest zestawienie materiałowe, z wykazem elementów drewnianych oraz stali budowlanej.
Do projektu dołączone są kopie uprawnień wszystkich projektantów, oraz aktualne zaświadczenia o przynależności do izb zawodowych.
Projekt zawiera oświadczenie projektantów o poprawności projektu w świetle Prawa Budowlanego, a także zawiera informację dotyczącą bezpieczeństwa i ochrony zdrowia ( BIOZ).
Do projektu dołączona jest także zgoda na zmiany adaptacyjne. Zgoda dołączana jest do każdego projektu bezpłatnie. Na Państwa życzenie zakres zgody na zmiany możemy dowolnie rozszerzyć.
Pracownia zezwala na następujące zmiany i odstępstwa od projektu architektoniczno-budowlanego w trakcie jego przystosowywania do lokalizacji:
- Zmianę obrysu zewnętrznego ścian zewnętrznych.
- Zmianę obrysu wewnętrznego ścian zewnętrznych.
- Zmianę układu ścian wewnętrznych działowych.
- Zmianę funkcji, ilości i usytuowania poszczególnych pomieszczeń na dowolnej kondygnacji w projekcie.
- Zmianę ukształtowania, ilości i kąta nachylenia połaci dachowych.
- Zmianę ilości, umiejscowienia i wielkości otworów okiennych i drzwiowych.
- Zmianę rodzaju materiału i technologii wykonania ścian zewnętrznych oraz wewnętrznych oraz ścian fundamentowych.
- Zmianę rodzaju i technologii wykonania stropów nad dowolną kondygnacją.
- Zmianę umiejscowienia, kształtu i materiału wykonania schodów w budynku.
- Zmianę wielkości, kształtu i materiałów, bądź likwidacja: tarasów, podestów i balkonów.
- Likwidację lub dodanie dowolnej ilości:
- lukarn,
- wykuszy,
- podcieni,
- balkonów,
- loggii,
- kolumn,
- pilastrów,
- ganków,
- werand.
- Zmianę materiałów wykończeniowych, instalacyjnych, izolacyjnych.
- Zmianę rodzaju pokrycia dachowego.
- Doprojektowanie bądź likwidacja podpiwniczenia - częściowego lub całkowitego.
Dodatki
Bezpłatne dodatki
GratisZestaw umów
GratisZmiany w projekcie
PromocjaProjekt szamba szczelnego
GratisTablica budowy
GratisDziennik budowy
Płatne dodatki

Pakiet wentylacja mechaniczna i kominek DGP
550 zł

Kosztorys inwestorski
600 zł

Pakiet odkurzacz centralny
550 zł

Wersja elektroniczna projektu
600 zł

Pakiet instalacja solarna
550 zł

Pakiet ogrzewanie podłogowe
550 zł

Pakiet powietrzna pompa ciepła
550 zł

Pakiet płaszcz wodny
550 zł

Pakiet kotłownia na paliwo stałe
550 zł

Pakiet klimatyzacja w domu
550 zł

Projekt ogrodzenia
750 zł

Pakiet instalacja fotowoltaiczna
550 zł

Pakiet kominek z DGP
500 zł

Pakiet gruntowa pompa ciepła
550 zł

Projekt altan i grilów ogrodowych
850 zł

Dodatkowy egzemplarz do projektu
650 zł



















