Promocja ważna do
25-02-2026
- Typ projektuWolnostojący
- StylTradycyjny
- Powierzchnia użytkowa162.04 m²
- KondygnacjeParterowy, z poddaszem
- GarażDwustanowiskowy
- Kąt nach. dachu35°
- Odbicie lustrzaneTak
- Czas realizacjido 7 dni roboczych Zobacz więcej >
Opis
Zgodność z WT 2021 i Eurokodami
Ze względu na dostosowywanie projektu do standardu WT 2021, czas realizacji może się różnić od standardowego.
Skontaktuj się z nami aby poznać szczegóły dotyczące wybranego projektu.
Opis projektu
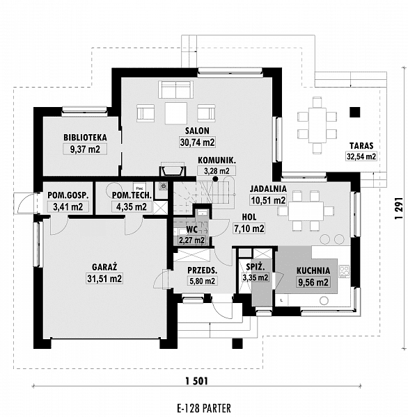
Projekt nowoczesnego domu z czterospadowym dachem. Dom E-128 to prosta bryła połączona z uniwersalnym układem funkcjonalnym. W części dziennej zaplanowano salon z jadalnią oraz otwartą kuchnię z jadalnią. W części sypialnej zaplanowano: trzy sypialnie (w tym jedną z łazienką), pomieszczenie rekreacyjne oraz pełnowartościową łazienkę z wanną i prysznicem.
Konstrukcja
| Ściany zewnętrzne | ceramika + 18cm styropian |
| Stropy | wylewane żelbetowe |
| Dachy - pokrycie | dachówka cementowa |
| Dachy - ocieplenie | 25-30cm wełna mineralna |
| Ocieplenie posadzki na gruncie | 20cm styropian |
| Okna | drewniane |
| Wykończenie cokołów | klinkier lub kamień |
Rzuty
Dane techniczne
- Powierzchnia użytkowa162.04 m²
- Powierzchnia netto237.51 m²
- Powierzchnia zabudowy172.72 m²
- Powierzchnia dachu280 m²
- Kubatura586.47 m³
- Wysokość domu7.99 m
- Minimalne wymiary działki21.91 x 23.01m
- GarażDwustanowiskowy
- Kąt nach. dachu35°
Koszty budowy
- Koszt budowy814800 zł
- Stan surowy487400 zł
- Koszt wykończenia221300 zł
- Koszt instalacji106100 zł
Zawartość projektu
Trzy egzemplarze projektu architektoniczno - budowlanego, składające się z:
- projektu w branży architektonicznej.
Trzy egzemplarze projektu technicznego, składające się z:
- projektu w branży konstrukcyjnej wraz z obliczeniami statycznymi
- projektu instalacji sanitarnej wewnętrznej wodno-kanalizacyjnej i ciepłej wody
- projektu instalacji sanitarnej centralnego ogrzewania
- projektu instalacji sanitarnej wewnętrznej gazowej
- projektu instalacji wewnętrznych elektrycznych
W ramach adaptacji projektu mogą Państwo (przez uprawnionego projektanta), wprowadzić następujące zmiany w dokumentacji nie wymagające naszej zgody:
- dostosowanie fundamentów i konstrukcji do warunków geotechnicznych występujących na danym terenie,
- zmiana programu funkcjonalnego budynku związana z likwidacją lub przesuwaniem ścianek działowych i otworów drzwiowych, również w ścianach nośnych,
- zmiana szerokości i kształtu schodów,
- zmiana technologii stropów przy zachowaniu koncepcji układu konstrukcyjnego,
- zmiana nachylenia połaci dachowych w granicach 5°,
- zmiana ilości, wielkości i rozmieszczenia otworów okiennych i drzwiowych,
- zmiana technologii budowlanych i materiałów wykończeniowych pod warunkiem nie pogorszenia ich jakości i parametrów termicznych,
- zmiana rodzaju ogrzewania i zmiany adaptacyjne projektów instalacyjnych,
- wykonanie projektu podpiwniczenia budynku,
- zmniejszenie lub powiększenie garażu w ramach adaptacji projektu,
- rezygnacja lub doprojektowanie balkonów.
Zgodę na inne zmiany, jeśli będą możliwe do wprowadzenia i nie będą miały negatywnego wpływu na architekturę budynku, wystawiamy na życzenie Inwestora, bezpłatnie, w oddzielnym oświadczeniu dołączanym do dokumentacji technicznej.
Polecane projekty
Dodatki
Bezpłatne dodatki
GratisZestaw umów
GratisZmiany w projekcie
GratisTablica budowy
GratisDziennik Budowy
Płatne dodatki

Kosztorys budowlany
649 zł

Dodatkowy egzemplarz projektu
499 zł

Wentylacja mechaniczna + DGP
649 zł

Ogrzewanie podłogowe
549 zł

Kotłownia na paliwo stałe
499 zł

Pompa ciepła gruntowa
549 zł

Kominek płaszcz wodny
449 zł

Instalacja solarna
449 zł

Odkurzacz centralny
399 zł

Klimatyzacja
399 zł

Pakiet energooszczędny
399 zł

Pakiet - Architektura ogrodowa
499 zł

Pakiet - Nowoczesne ogrodzenia
499 zł

Pakiet - Szambo szczelne
349 zł

Przydomowa oczyszczalnia ścieków
399 zł

Pompa ciepła powietrzna
549 zł

Pakiet - Przydomowa retencja
349 zł


















