- Typ projektuWolnostojący
- StylTradycyjny
- Powierzchnia użytkowa114.83 m²
- KondygnacjeParterowy, z poddaszem
- GarażJednostanowiskowy
- Kąt nach. dachu40°
- Odbicie lustrzaneTak
- Czas realizacjido 7 dni roboczych Zobacz więcej >
Opis
Zgodność z WT 2021 i Eurokodami
Ze względu na dostosowywanie projektu do standardu WT 2021, czas realizacji może się różnić od standardowego.
Skontaktuj się z nami aby poznać szczegóły dotyczące wybranego projektu.
Opis projektu
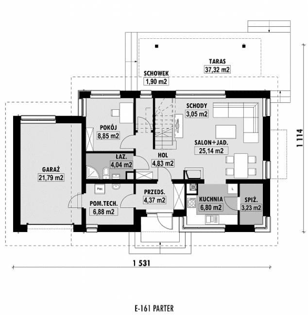
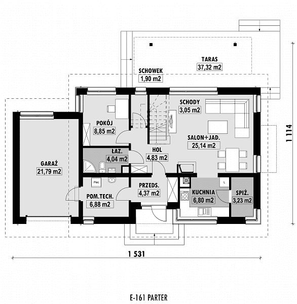
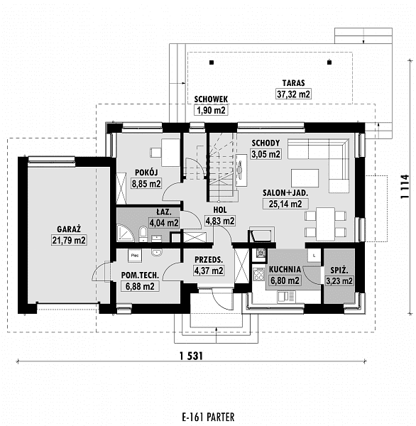
Dom o prostej konstrukcji, w którym fasadę wykończono naturalnymi materiałami (drewno i szara cegła). Salon z jadalnią tworzą jedną przestrzeń, z której zapewniono dostęp do wygodnej, wyposażonej w odrębną spiżarnię kuchni. Na parterze znajduje się także oddzielony pokój idealny na gabinet a także praktyczny schowek pod schodami. Na piętrze zaprojektowane zostały 3 sypialnie, łazienka oraz pomieszczenie na pralnię.
Konstrukcja
| Ściany | ceramika + styropian 18cm |
| Strop | gęstożebrowy Teriva |
| Pokrycie dachowe | dachówka cementowa |
| Ocieplenie posadzki na gruncie | styropian 20cm |
| Ocieplenie dachu | wełna mineralna 25-30cm |
| Stolarka okienna | drewniana |
| Wykończenie zewnętrze | płytki klinkierowe lub kamień |
Rzuty
Dane techniczne
- Powierzchnia użytkowa114.83 m²
- Powierzchnia netto161.51 m²
- Powierzchnia zabudowy137.57 m²
- Powierzchnia dachu215 m²
- Kubatura458.57 m³
- Wysokość domu8.2 m
- Minimalne wymiary działki20.15 x 22.31m
- GarażJednostanowiskowy
- Kąt nach. dachu40°
Koszty budowy
- Koszt budowy586200 zł
- Stan surowy310200 zł
- Koszt wykończenia199200 zł
- Koszt instalacji76800 zł
Zawartość projektu
Trzy egzemplarze projektu architektoniczno - budowlanego, składające się z:
- projektu w branży architektonicznej.
Trzy egzemplarze projektu technicznego, składające się z:
- projektu w branży konstrukcyjnej wraz z obliczeniami statycznymi
- projektu instalacji sanitarnej wewnętrznej wodno-kanalizacyjnej i ciepłej wody
- projektu instalacji sanitarnej centralnego ogrzewania
- projektu instalacji sanitarnej wewnętrznej gazowej
- projektu instalacji wewnętrznych elektrycznych
W ramach adaptacji projektu mogą Państwo (przez uprawnionego projektanta), wprowadzić następujące zmiany w dokumentacji nie wymagające naszej zgody:
- dostosowanie fundamentów i konstrukcji do warunków geotechnicznych występujących na danym terenie,
- zmiana programu funkcjonalnego budynku związana z likwidacją lub przesuwaniem ścianek działowych i otworów drzwiowych, również w ścianach nośnych,
- zmiana szerokości i kształtu schodów,
- zmiana technologii stropów przy zachowaniu koncepcji układu konstrukcyjnego,
- zmiana nachylenia połaci dachowych w granicach 5°,
- zmiana ilości, wielkości i rozmieszczenia otworów okiennych i drzwiowych,
- zmiana technologii budowlanych i materiałów wykończeniowych pod warunkiem nie pogorszenia ich jakości i parametrów termicznych,
- zmiana rodzaju ogrzewania i zmiany adaptacyjne projektów instalacyjnych,
- wykonanie projektu podpiwniczenia budynku,
- zmniejszenie lub powiększenie garażu w ramach adaptacji projektu,
- rezygnacja lub doprojektowanie balkonów.
Zgodę na inne zmiany, jeśli będą możliwe do wprowadzenia i nie będą miały negatywnego wpływu na architekturę budynku, wystawiamy na życzenie Inwestora, bezpłatnie, w oddzielnym oświadczeniu dołączanym do dokumentacji technicznej.
Polecane projekty
Dodatki
Bezpłatne dodatki
GratisZestaw umów
GratisZmiany w projekcie
GratisTablica budowy
GratisDziennik Budowy
Płatne dodatki

Kosztorys budowlany
649 zł

Dodatkowy egzemplarz projektu
499 zł

Wentylacja mechaniczna + DGP
649 zł

Ogrzewanie podłogowe
549 zł

Kotłownia na paliwo stałe
499 zł

Pompa ciepła gruntowa
549 zł

Kominek płaszcz wodny
449 zł

Instalacja solarna
449 zł

Odkurzacz centralny
399 zł

Klimatyzacja
399 zł

Pakiet energooszczędny
399 zł

Pakiet - Architektura ogrodowa
499 zł

Pakiet - Nowoczesne ogrodzenia
499 zł

Pakiet - Szambo szczelne
349 zł

Przydomowa oczyszczalnia ścieków
399 zł

Pompa ciepła powietrzna
549 zł

Pakiet - Przydomowa retencja
349 zł













