- Typ projektuWolnostojący
- StylTradycyjny
- Powierzchnia użytkowa128.86 m²
- KondygnacjeParterowy, z poddaszem
- GarażJednostanowiskowy
- Kąt nach. dachu40°
- Odbicie lustrzaneTak
- Czas realizacjido 7 dni roboczych Zobacz więcej >
Opis
Zgodność z WT 2021 i Eurokodami
Ze względu na dostosowywanie projektu do standardu WT 2021, czas realizacji może się różnić od standardowego.
Skontaktuj się z nami aby poznać szczegóły dotyczące wybranego projektu.
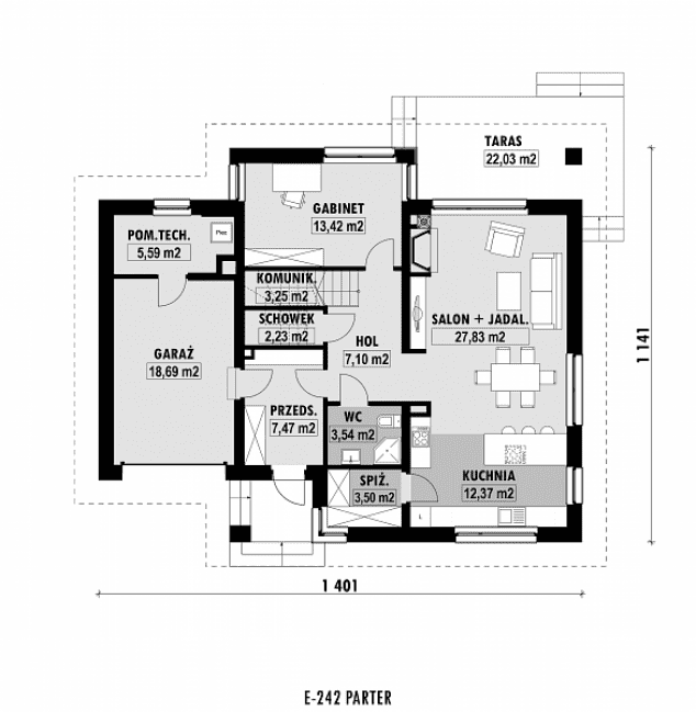
Rzuty
Dane techniczne
- Powierzchnia użytkowa128.86 m²
- Powierzchnia netto200.04 m²
- Powierzchnia zabudowy147.31 m²
- Powierzchnia dachu230 m²
- Kubatura507.44 m³
- Wysokość domu8.82 m
- Minimalne wymiary działki20.41 x 22.01m
- GarażJednostanowiskowy
- Kąt nach. dachu40°
Koszty budowy
- Koszt budowy627300 zł
- Stan surowy363500 zł
- Koszt wykończenia169500 zł
- Koszt instalacji94300 zł
Zawartość projektu
Trzy egzemplarze projektu architektoniczno - budowlanego, składające się z:
- projektu w branży architektonicznej.
Trzy egzemplarze projektu technicznego, składające się z:
- projektu w branży konstrukcyjnej wraz z obliczeniami statycznymi
- projektu instalacji sanitarnej wewnętrznej wodno-kanalizacyjnej i ciepłej wody
- projektu instalacji sanitarnej centralnego ogrzewania
- projektu instalacji sanitarnej wewnętrznej gazowej
- projektu instalacji wewnętrznych elektrycznych
W ramach adaptacji projektu mogą Państwo (przez uprawnionego projektanta), wprowadzić następujące zmiany w dokumentacji nie wymagające naszej zgody:
- dostosowanie fundamentów i konstrukcji do warunków geotechnicznych występujących na danym terenie,
- zmiana programu funkcjonalnego budynku związana z likwidacją lub przesuwaniem ścianek działowych i otworów drzwiowych, również w ścianach nośnych,
- zmiana szerokości i kształtu schodów,
- zmiana technologii stropów przy zachowaniu koncepcji układu konstrukcyjnego,
- zmiana nachylenia połaci dachowych w granicach 5°,
- zmiana ilości, wielkości i rozmieszczenia otworów okiennych i drzwiowych,
- zmiana technologii budowlanych i materiałów wykończeniowych pod warunkiem nie pogorszenia ich jakości i parametrów termicznych,
- zmiana rodzaju ogrzewania i zmiany adaptacyjne projektów instalacyjnych,
- wykonanie projektu podpiwniczenia budynku,
- zmniejszenie lub powiększenie garażu w ramach adaptacji projektu,
- rezygnacja lub doprojektowanie balkonów.
Zgodę na inne zmiany, jeśli będą możliwe do wprowadzenia i nie będą miały negatywnego wpływu na architekturę budynku, wystawiamy na życzenie Inwestora, bezpłatnie, w oddzielnym oświadczeniu dołączanym do dokumentacji technicznej.
Polecane projekty
Dodatki
Bezpłatne dodatki
GratisZestaw umów
GratisZmiany w projekcie
GratisTablica budowy
GratisDziennik Budowy
Płatne dodatki

Kosztorys budowlany
599 zł

Dodatkowy egzemplarz projektu
449 zł

Wentylacja mechaniczna + DGP
599 zł

Ogrzewanie podłogowe
499 zł

Kotłownia na paliwo stałe
449 zł

Pompa ciepła gruntowa
499 zł

Kominek płaszcz wodny
399 zł

Instalacja solarna
399 zł

Odkurzacz centralny
349 zł

Klimatyzacja
349 zł

Pakiet energooszczędny
349 zł

Pakiet - Architektura ogrodowa
449 zł

Pakiet - Nowoczesne ogrodzenia
499 zł

Pakiet - Szambo szczelne
299 zł

Przydomowa oczyszczalnia ścieków
349 zł

Pompa ciepła powietrzna
499 zł

Pakiet - Przydomowa retencja
299 zł












