- Typ projektuSzeregowiec
- StylNowoczesny
- Powierzchnia użytkowa131.47 m²
- Kondygnacje
- GarażJednostanowiskowy
- DachDwuspadowy
- Kąt nach. dachu40°
- Odbicie lustrzaneNie
- Czas realizacji7-10 dni roboczych Zobacz więcej >
Opis
Zgodność z WT 2021 i Eurokodami
Ze względu na dostosowywanie projektu do standardu WT 2021, czas realizacji może się różnić od standardowego.
Skontaktuj się z nami aby poznać szczegóły dotyczące wybranego projektu.
Opis projektu
Projekt domu Edmonton z zabudowie szeregowej to prosty układ konstrukcyjny, znacznie ograniczający koszty budowy, a jednocześnie tworzący miły dla oka rytm lukarn. Lekką stylistykę podkreśla zastosowanie różnych kolorów do każdego domku, co nawiązuje do szeregowych osiedli Holandii, czy Belgii. Układ funkcjonalny to nowoczesne wnętrza, gdzie na parterze znajduje się część dzienna, sypialnie na poddaszu, a na najwyższej kondygnacji otwarte studio do zagospodarowania wedle potrzeby mieszkańców. Plusem jest także wbudowany garaż z przejściem do domu. Dostępna jest wersja z kominkiem.
Rzuty
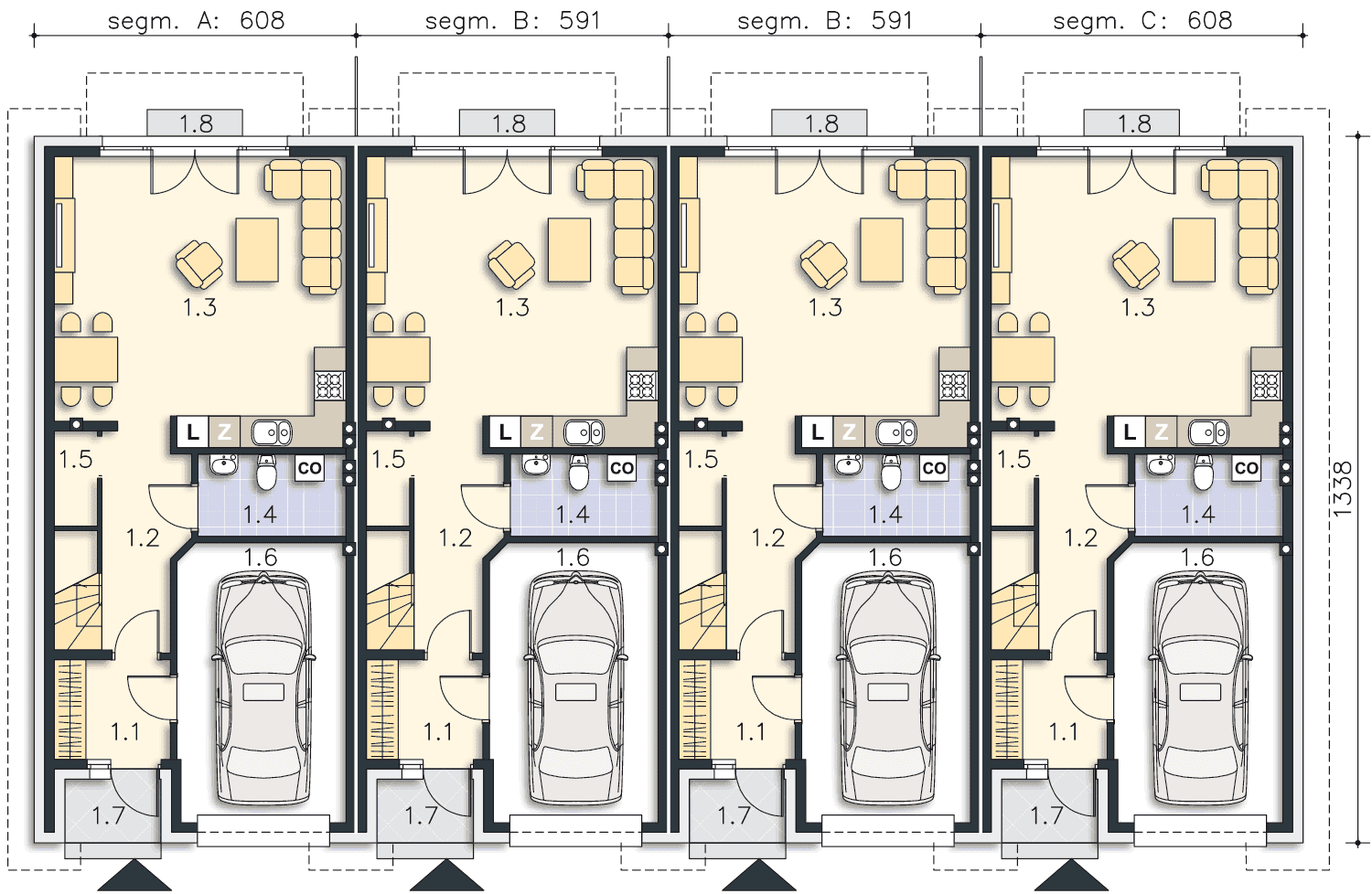
Parter
- m²
- 1. Wiatrołap4.08
- 2. Komunikacja6.23
- 3. Pokój dzienny, kuchnia29.03
- 4. Łazienka, c.o.4.25
- 5. Schowek1.08
- 6. Garaż16.63
- 7. Podest3.12
- 8. Podest1
Poddasze
Studio
Usytuowanie na działce
Przekrój
Dane techniczne
- Powierzchnia użytkowa131.47 m²
- Powierzchnia netto172.26 m²
- Powierzchnia zabudowy81.48 m²
- Liczba łazienek1
- Liczba pokoi5
- Kubatura664 m³
- Minimalne wymiary działki21.4 x 6m
- GarażJednostanowiskowy
- Rodzaj dachuDwuspadowy
- Kąt nach. dachu40°
Instalacja grzewcza
- EUco32.05 kwH/m²/rok
Koszty budowy
- Koszt budowy526700 zł
- Stan surowy332700 zł
Zawartość projektu
Dokumentacje projektowe naszych domów są zgodne z Rozporządzeniem Ministra Rozwoju z dnia 11 września 2020 r. w sprawie szczegółowego zakresu i formy projektu budowlanego. Projekt gotowy, w skład którego wchodzi projekt architektoniczno-budowlany, projekt techniczny, charakterystyka energetyczna, wymaga przystosowania do warunków lokalnych przez projektanta adaptującego.
Projekt architektoniczno-budowlany i projekt techniczny stanowią zakres projektu gotowego i sprzedawane są w 3 egzemplarzach każdy – razem 6 zeszytów
Projekt architektoniczno-budowlany zawiera część opisową oraz część rysunkową.
Część opisowa projektu architektoniczno-budowlanego obejmuje następujący zakres:
- Przeznaczenie i program użytkowy budynku
- Charakterystyczne parametry techniczne
- Forma architektoniczna i funkcja obiektu
- Wpływ obiektu na środowisko
- Sposób posadowienia
- Technologia wykonania
- Warunki ochrony przeciwpożarowej
- Instalacje
Część rysunkowa projektu architektoniczno-budowlanego obejmuje następujące rysunki:
- Elewacje - frontowa, ogrodowa, boczne
- Rzut parteru - Rzut więźby dachowej
- Aksonometria więźby dachowej
- Rzut dachu
- Przekroje poprzeczne
- Zestawienie stolarki
Projekt techniczny zawiera część opisową, część rysunkową oraz charakterystykę energetyczną.
Część opisowa projektu technicznego obejmuje następujący zakres:
- Układ konstrukcyjny budynku w tym: schematy konstrukcyjne, obliczenia statyczne – założenia ogólne, podstawowe wyniki obliczeń , zestawienie obciążeń dopuszczalnych dla wiązarów dachowych- jeśli występują,
- Sposób posadowienia
- Rozwiązania konstrukcyjno-materiałowe: ściany, strop/stropy, nadproża okienne i drzwiowe, wieńce, dach, schody na poddasze nieużytkowe, kominy i wentylacje, izolacje, powłoki zabezpieczające, posadzki i podłogi, tynki i okładziny, stolarka okienna i drzwiowa, obróbki blacharskie, rynny i rury spustowe, taras i płyta wejściowa
- Zestawienia materiałów w tym: dane powierzchniowe przegród, zestawienie stali zbrojeniowej
- Opis instalacji sanitarnych w tym: instalacja wodociągowa, kanalizacja wewnętrzna, instalacja gazu – jeśli występuje, instalacja centralnego ogrzewania, dobór źródła ciepła,
- Opis instalacji elektrycznych w tym: zasilanie budynku, instalacje elektryczne, instalacja telefoniczna – jeśli występuje, instalacje wyrównawcze, ochrona przeciwpożarowa, ochrona instalacji, instalacja odgromowa, ochrona przeciwporażeniowa, obliczenia techniczne
Część rysunkowa obejmuje następujące rysunki:
- Rzut fundamentów
- Przekroje ław fundamentowych / płyty fundamentowej
- Stopy fundamentowe – jeśli występują
- Rysunek zestawczy konstrukcji
- Szczegóły wieńców – jeśli występują
- Rozwinięcie ścian zewnętrznych
- Rzuty kondygnacji - instalacja wod-kan., gazowa
- Aksonometria instalacji wodociągowej
- Aksonometria instalacji gazowej
- Rozwinięcie instalacji kanalizacyjnej
- Rzut parteru - instalacja c.o.
- Rozwinięcie instalacji c.o.
- Rzuty kondygnacji - instalacja elektryczna
- Schemat rozdziału energii
Charakterystyka energetyczna zawiera:
- wyniki obliczeń energetycznych określających całkowite zapotrzebowanie na energię
- analizę alternatywnych źródeł ciepła i wyniki optymalizacji energetycznej.
Dopuszczalne zmiany w ramach adaptacji nie wymagające zgody projektanta:
- dostosowanie fundamentów do warunków geotechnicznych występujących na danym terenie,
- zmiana programu funkcjonalnego budynku związana z likwidacją lub przesuwaniem ścianek działowych i otworów drzwiowych, również w ścianach nośnych,
- zmiana szerokości i kształtu schodów,
- zmiana technologii stropów przy zachowaniu koncepcji układu konstrukcyjnego,
- zmiana nachylenia połaci dachowych w granicach 5 st.,
- zmiana ilości, wielkości i rozmieszczenia otworów okiennych i drzwiowych,
- zmiana technologii budowlanych i materiałów wykończeniowych pod warunkiem nie pogorszenia ich jakości i parametrów termicznych,
- zmiana rodzaju ogrzewania i zmiany adaptacyjne projektów instalacyjnych,
- wykonanie projektu podpiwniczenia budynku lub jego likwidacji,
- zabudowanie wiaty garażowej lub rezygnacja z wiaty (jeśli występuje w projekcie),
- rezygnacja z balkonów przy ścianach szczytowych (jeśli występują w projekcie),
- realizacja projektu w wersji lewostronnej (lustrzanego odbicia).
Najczęściej pojawiające się zmiany, które wprowadzamy lub na które wydajemy bezpłatną zgodę to:
- zmiana kąta nachylenia dachu,
- podpiwniczenie budynku,
- zmiana technologii ścian, stropu, fundamentów,
- zmiana wymiarów domu,
- likwidacja, doprojektowanie lub poszerzenie garażu,
- podniesienie ścianki kolankowej,
- zmiany wielkości i usytuowania okien i drzwi,
- zmiany funkcji pomieszczeń,
- zmiana systemu ogrzewania (gaz/paliwo stałe/pompa ciepła oraz grzejniki/ogrzewanie podłogowe).
Dodatki
Bezpłatne dodatki
GratisDziennik budowy
GratisTablica budowy
GratisZestaw umów
GratisZmiany w projekcie
Płatne dodatki

Kosztorys ślepy
369 zł

Kosztorys inwestorski
738 zł

Dodatkowy egzemplarz projektu
492 zł









