Projekt domu Egon II z garażem
Promocja ważna do
24-04-2026
- Typ projektuWolnostojący
- Powierzchnia użytkowa95 m²
- Kondygnacje
- GarażJednostanowiskowy
- DachPłaski
- Kąt nach. dachu3°
- Odbicie lustrzaneTak
- Czas realizacjimax. czas realizacji 10 dni Zobacz więcej >
Opis
Zgodność z WT 2021 i Eurokodami
Ze względu na dostosowywanie projektu do standardu WT 2021, czas realizacji może się różnić od standardowego.
Skontaktuj się z nami aby poznać szczegóły dotyczące wybranego projektu.
Opis projektu
Projekt niewielkiego domu piętrowego Egon II z płaskim dachem i garażem.
Konstrukcja
Rzuty
Parter
- m²
- 1. Wiatrołap6.1
- 2. Hol4.4
- 3. Schowek1.1
- 4. Łazienka3.6
- 5. Kuchnia6.7
- 6. Salon20.7
- 7. Schody4
- 8. Kotłownia*7.3
- 9. Garaż*18.5
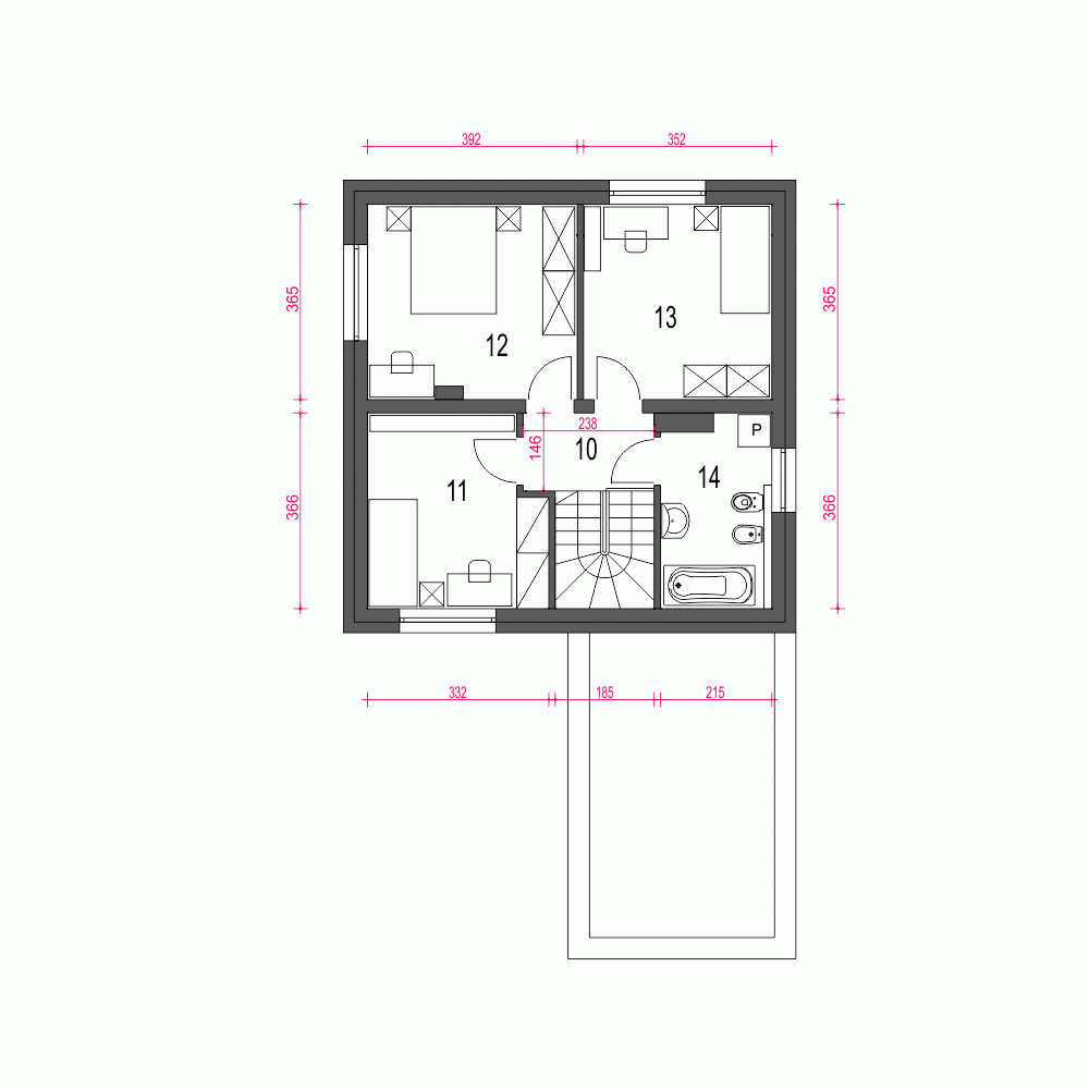
Piętro
Przekrój
Usytuowanie na działce
Dane techniczne
- Powierzchnia użytkowa95 m²
- Powierzchnia zabudowy98 m²
- KominekTak
- Liczba łazienek2
- Liczba pokoi4
- Powierzchnia dachu100 m²
- Kubatura1 m³
- Długość domu14.6 m
- Szerokość domu8.5 m
- Wysokość domu7.2 m
- Minimalne wymiary działki22.6 x 16.5m
- GarażJednostanowiskowy
- Rodzaj dachuPłaski
- Kąt nach. dachu3°
Instalacja grzewcza
- Instalacja grzewczaGaz, Paliwo stałe
- Instalacja opcjonalna
Zawartość projektu
Zgodnie ze znowelizowaną Ustawą Prawo Budowlane art.34 ust.3, na projekt budowlany składają się trzy części:
- projekt zagospodarowania działki lub terenu
- projekt architektoniczno-budowlany
- projekt techniczny
Nasze projekty oferujemy w 3 egzemplarzach, zawierających projekt architektoniczno-budowlany i projekt techniczny. Projekt zagospodarowania działki lub terenu nie wchodzi w skład projektu oferowanego do sprzedaży. Projekt ten należy zlecić we własnym zakresie lokalnemu projektantowi, który opracuje go na podstawie danych zawartych w projekcie architektoniczno-budowlanym i technicznym, po dostosowaniu projektu do warunków lokalnych i wymagań inwestora.
UWAGA: wszystkie egzemplarze projektu zabezpieczone są hologramami, w części rysunkowej posiadają nadruki zabezpieczające w kolorze zielonym. Zalecamy aby po otrzymaniu przesyłki kontrolować czy na pierwszych stronach projektu znajduje się hologram i czy na rysunkach widoczne są w/w nadruki potwierdzające oryginalność projektu.
Wyrażamy zgodę na wszelkie zmiany zgodne z obowiązującymi przepisami pod warunkiem wprowadzenia ich przez uprawnioną osobę.
Wszystkie zmiany wymienione powyżej powinny być naniesione na oryginał projektu katalogowego trwałą techniką graficzną w kolorze czerwonym lub dołączone jako aneks i podpisane przez osobę uprawnioną dokonująca adaptacji.
**ważne informacje
Projekt w fazie koncepcji dostępny z wydłużonym terminem realizacji. Przy zamówieniu ustalamy termin i pobieramy zadatek 50% podstawowej ceny projektu (jako koszty usługi przygotowania dokumentacji do standardu projektu gotowego, w przypadku rezygnacji z usługi, zadatek nie podlega zwrotowi).
Cena za dodatkowy egzemplarz projektu jest zależna od nazwy projektu!
Dodatki
Bezpłatne dodatki
GratisZestaw umów
GratisZmiany w projekcie
GratisTablica budowy
GratisDziennik budowy
Płatne dodatki

Kosztorys - stan wykończony
540 zł

Projekt wentylacji mechanicznej
1 000 zł








