- Typ projektuWolnostojący
- Powierzchnia użytkowa103 m²
- Kondygnacje
- GarażBez garażu
- DachDwuspadowy
- Kąt nach. dachu45°
- Odbicie lustrzaneTak
- Czas realizacji30 dni roboczych Zobacz więcej >
Opis
Zgodność z WT 2021 i Eurokodami
Ze względu na dostosowywanie projektu do standardu WT 2021, czas realizacji może się różnić od standardowego.
Skontaktuj się z nami aby poznać szczegóły dotyczące wybranego projektu.
Opis projektu
Hazi to nowoczesny, kompaktowy dom jednorodzinny z dwuspadowym dachem bez okapów, przeznaczony dla 4-osobowej rodziny. Prosta i elegancka bryła łączy estetykę współczesnej architektury z funkcjonalnością.Na parterze znajduje się przestronny salon z otwartą kuchnią i jadalnią, dodatkowy pokój (np. gabinet lub sypialnia), łazienka z prysznicem oraz pomieszczenie techniczne. Duże przeszklenia łączą wnętrze z ogrodem i tarasem, tworząc przyjazną przestrzeń do wypoczynku.Na poddaszu zaplanowano trzy sypialnie (dwie z garderobami) oraz łazienkę. Hazi to dom ekologiczny, łatwy w budowie i ekonomiczny w użytkowaniu – idealny dla rodzin ceniących wygodę, nowoczesność i rozsądne koszty.
Konstrukcja
fundamenty: betonowe
ściany zewnętrzne: porotherm+styropian termo organika
ściany wewnętrzne: porotherm
rodzaj stropu: teriva
elewacje: tynk strukturalny, okładzina drewnopodobna
pokrycie dachu: dachówka ceramiczna
Rzuty
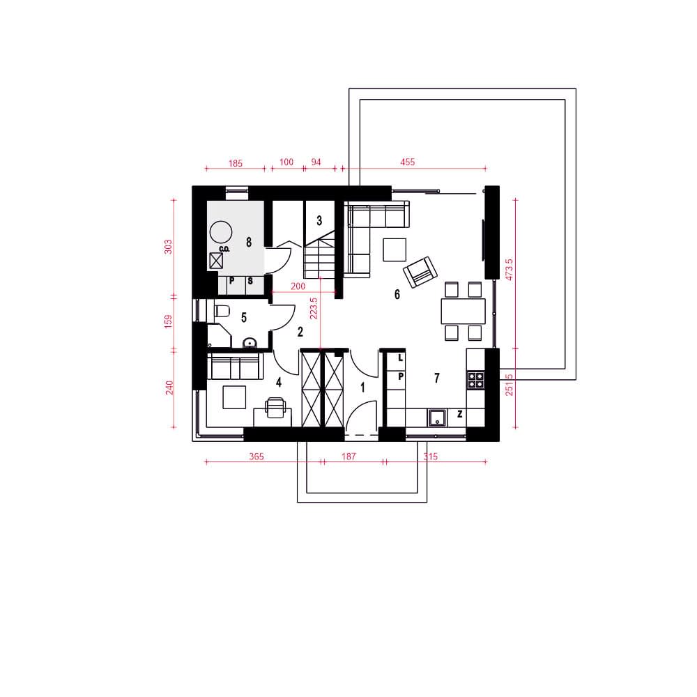
Parter
- m²
- 1. Wiatrołap4.3
- 2. Hol6.7
- 3. Schody4.2
- 4. Gabinet8.6
- 5. Łazienka3.1
- 6. Salon21.3
- 7. Kuchnia7.8
- 8. Pom. techniczne*5.2
Piętro
Dane techniczne
- Powierzchnia użytkowa103 m²
- Powierzchnia zabudowy80.4 m²
- KominekTak
- Liczba łazienek2
- Liczba pokoi5
- Powierzchnia dachu113.8 m²
- Długość domu8.3 m
- Szerokość domu9.9 m
- Wysokość domu9 m
- Minimalne wymiary działki16.3 x 17.9m
- GarażBez garażu
- Rodzaj dachuDwuspadowy
- Kąt nach. dachu45°
Instalacja grzewcza
- Instalacja grzewczaGaz
- Instalacja opcjonalna
Zawartość projektu
Zgodnie ze znowelizowaną Ustawą Prawo Budowlane art.34 ust.3, na projekt budowlany składają się trzy części:
- projekt zagospodarowania działki lub terenu
- projekt architektoniczno-budowlany
- projekt techniczny
Nasze projekty oferujemy w 3 egzemplarzach, zawierających projekt architektoniczno-budowlany i projekt techniczny. Projekt zagospodarowania działki lub terenu nie wchodzi w skład projektu oferowanego do sprzedaży. Projekt ten należy zlecić we własnym zakresie lokalnemu projektantowi, który opracuje go na podstawie danych zawartych w projekcie architektoniczno-budowlanym i technicznym, po dostosowaniu projektu do warunków lokalnych i wymagań inwestora.
UWAGA: wszystkie egzemplarze projektu zabezpieczone są hologramami, w części rysunkowej posiadają nadruki zabezpieczające w kolorze zielonym. Zalecamy aby po otrzymaniu przesyłki kontrolować czy na pierwszych stronach projektu znajduje się hologram i czy na rysunkach widoczne są w/w nadruki potwierdzające oryginalność projektu.
Wyrażamy zgodę na wszelkie zmiany zgodne z obowiązującymi przepisami pod warunkiem wprowadzenia ich przez uprawnioną osobę.
Wszystkie zmiany wymienione powyżej powinny być naniesione na oryginał projektu katalogowego trwałą techniką graficzną w kolorze czerwonym lub dołączone jako aneks i podpisane przez osobę uprawnioną dokonująca adaptacji.
**ważne informacje
Projekt w fazie koncepcji dostępny z wydłużonym terminem realizacji. Przy zamówieniu ustalamy termin i pobieramy zadatek 50% podstawowej ceny projektu (jako koszty usługi przygotowania dokumentacji do standardu projektu gotowego, w przypadku rezygnacji z usługi, zadatek nie podlega zwrotowi).
Cena za dodatkowy egzemplarz projektu jest zależna od nazwy projektu!
Dodatki
Bezpłatne dodatki
GratisZestaw umów
GratisZmiany w projekcie
GratisTablica budowy
GratisDziennik budowy
Płatne dodatki

Kosztorys - stan wykończony
540 zł

Projekt wentylacji mechanicznej
1 000 zł










