- Typ projektuWolnostojący
- StylNowoczesny
- Powierzchnia użytkowa203.78 m²
- KondygnacjeParterowy, z poddaszem
- GarażJednostanowiskowy
- DachDwuspadowy
- Odbicie lustrzaneTak
- Czas realizacji7 dni Zobacz więcej >
Opis
Zgodność z WT 2021 i Eurokodami
Ze względu na dostosowywanie projektu do standardu WT 2021, czas realizacji może się różnić od standardowego.
Skontaktuj się z nami aby poznać szczegóły dotyczące wybranego projektu.
Opis projektu
Budynek zaprojektowany w technologii drewna klejonego HBE, jest przykładem budownictwa energooszczędnego i ekologicznego. Drewno klejone HBE to masywne płyty drewniane o grubości 10,0cm posiadające doskonałą izolacyjność termiczną oraz pozytywnie wpływające na mikroklimat wewnątrz.
Atrakcyjnym akcentem jest drewniana konstrukcja wnęki z ażurowym zadaszeniem tarasu. Całość utrzymana w ciepłej białej stylistyce z dodatkiem drewna.
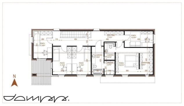
Strefa wejściowa złożona z wygodnego przedsionka, garażu jednostanowiskowego uzupełniona została o niezbędną kotłownię. W części centralnej zaprojektowano gabinet oraz szeroki korytarz prowadzący do jadalni oraz półotwartej kuchni uzupełnionej o spiżarnię. Ostatnim pomieszczeniem jest pokój dzienny wyposażony w witrynę do czytania.
Na poziomie poddasza zaprojektowano pokój gościnny mogący pełnić rolę drugiego gabinetu, sypialnię główną z łazienką i garderobą oraz 3 pokoje uzupełnione o łazienkę z pralnią. Zaproponowany układ będzie idealny dla rodziny wielodzietnej lub rodziny, w której dwie osoby pracują w domu.
Rzuty
Dane techniczne
- Powierzchnia użytkowa203.78 m²
- Powierzchnia zabudowy131.8 m²
- Liczba łazienek3
- Liczba pokoi7
- Długość domu7 m
- Szerokość domu18.78 m
- Wysokość domu8.835 m
- Minimalne wymiary działki15 x 26.78m
- GarażJednostanowiskowy
- Rodzaj dachuDwuspadowy
Instalacja grzewcza
- Instalacja opcjonalna
Zawartość projektu
Projekt budowlany - zawartość dokumentacji.
Autor projektu upoważnia bezterminowo projektantów posiadających wystarczające [w odniesieniu do zakresu i przeznaczenia projektu] i wymagane przepisami uprawnienia, działających z wyboru Inwestora, do wprowadzenia zmian i włączenie ich w skład pełnej dokumentacji projektu architektoniczno-budowlanego, podpisywanej przez tego projektanta [adaptacji projektu]. Autor projektu upoważnia projektantów, o których mowa powyżej do dokonywania przez tych projektantów i na ich odpowiedzialność następujących zmian w projekcie:
- realizacji budynku w lustrzanym odbiciu;
- zmiana materiałów budowlanych elementów konstrukcyjnych budynku tj. fundamenty, ściany, stropy, schody, więźba dachowa pod warunkiem zachowania bezpieczeństwa konstru
- zmiana usytuowania wewnętrznych ścian konstrucyjnych i niekonstrukcyjnych pod warunkiem zachowania bezpieczeństwa konstrukcji;
- zmiana wymiarów zewnętrznych budynku w zakresie 5%;
- zmiana kąta nachylenia dachu w zakresie 5%;
- podpiwniczenie budynku w całości lub części;
- zmiana usytuowania i geometrii schodów wewnętrznych;
- zmiana usytuowania ścian działowych i wewnętrznych otworów drzwiowych;
- zmiana wewnętrznych instalacji saniatrnych i elektrycznych z dostosowaniem ich do warunków przyłączenia oraz aranżacji wnętrz;
- zmiana źródła ciepła oraz instalacji centralnego ogrzewania z dostosowaniem jej do warunków przyłączenia, lokalnych możliwości oraz aranżacji wnętrz;
- zmiany sposobu wentylacji budynku, a w przypadku rezygnacji z realizacji instalacji wentylacji mechanicznej z odzyskiem ciepła wyraża się zgodę na doprojektowanie kominów wentylacyjnych;
Dodatki
Bezpłatne dodatki
GratisZestaw umów
GratisZmiany w projekcie
GratisTablica budowy
GratisDziennik budowy








