Projekt domu Kalikst z garażem
Promocja ważna do
24-04-2026
- Typ projektuWolnostojący
- Powierzchnia użytkowa102.1 m²
- Kondygnacje
- GarażJednostanowiskowy
- DachDwuspadowy
- Kąt nach. dachu30°
- Odbicie lustrzaneTak
- Czas realizacjimax. czas realizacji 10 dni Zobacz więcej >
Opis
Zgodność z WT 2021 i Eurokodami
Ze względu na dostosowywanie projektu do standardu WT 2021, czas realizacji może się różnić od standardowego.
Skontaktuj się z nami aby poznać szczegóły dotyczące wybranego projektu.
Opis projektu
Projekt domu Kalikst z przybudowanym garażem to nowoczesny dom dla 4-5cio osobowej rodziny. Dom zaprojektowano w technologii murowanej z prefabrykowaną więźbą dachową. Kalikst to funkcjonalny projekt domu łączący strefę ogólnodostępną i prywatną na jednej kondygnacji. W części wejściowej mamy przewidziany wiatrołap z wnękową szafą, pralnię oraz wydzieloną toaletę. W części ogólnodostępnej mamy obszerny salon z miejscem na wygodny, sześcioosobowy stół jadalniany. Dzięki dużym przesuwnym drzwiom tarasowym, dostaniemy się z salonu na zewnątrz, na taras z pergolą. Charakterystycznym elementem salonu, jest duży nowoczesny kominek, usytuowany przy kuchni. Kuchnia z meblami usytuowanymi w kształcie litery "u" i z dodatkową przestrzenią na osobną spiżarnię, zapewnia komfortową przestrzeń do pracy. Narożne okna kuchenne gwarantują odpowiednią ilość światła zewnętrznego. Część prywatna dostępna jest z niedużego korytarza, który doświetlony jest dwoma świetlikami rurowymi umiejscowionymi w suficie. W tej strefie mamy zaprojektowane trzy pokoje sypialne, wspólną wygodną łazienkę z wanna i prysznicem oraz przechodnią garderobę. Z garderoby dostaniemy się do przybudowanego garażu, za którym mamy zaprojektowaną kotłownią na paliwo stałe. Kalikst to atrakcyjna propozycja domu energooszczędnego, o nowoczesnej architekturze i charakterystycznej elewacji, w nowoczesnych odcieniach szarości i czerni, skontrastowanych ciepłym kolorem okładziny drewnopodobnej. Kalikst w wariancie z garażem, to projekt domu z serii "eco" - ekonomiczny w budowie i w utrzymaniu.
Konstrukcja
fundamenty: betonowe
ściany zewnętrzne: porotherm+styropian termo organika
ściany wewnętrzne: porotherm
rodzaj stropu: prefabrykowane wiązary dachowe mitek
elewacje: tynk strukturalny/ okładzina drewniana/drewnopodobna
pokrycie dachu: dachówka ceramiczna
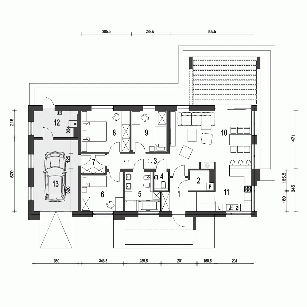
Rzuty
Parter
- m²
- 1. Wiatrołap6
- 2. Pralnia*2.8
- 3. Korytarz6.2
- 4. WC1.7
- 5. Łazienka8.1
- 6. Sypialnia10.3
- 7. Garderoba3.1
- 8. Sypialnia13
- 9. Sypialnia9.4
- 10. Salon + jadalnia31.9
- 11. Kuchnia + spiżarnia12.4
- 12. Kotłownia*7.3
- 13. Garaż*20
Przekrój
Usytuowanie na działce
Dane techniczne
- Powierzchnia użytkowa102.1 m²
- Powierzchnia zabudowy169.5 m²
- KominekTak
- Liczba łazienek1
- Liczba pokoi4
- Powierzchnia dachu190 m²
- Kubatura314 m³
- Długość domu9.4 m
- Szerokość domu18.9 m
- Wysokość domu6.9 m
- Minimalne wymiary działki18.9 x 26.9m
- GarażJednostanowiskowy
- Rodzaj dachuDwuspadowy
- Kąt nach. dachu30°
Instalacja grzewcza
- Instalacja grzewczaGaz, Paliwo stałe
- Instalacja opcjonalna
Zawartość projektu
Zgodnie ze znowelizowaną Ustawą Prawo Budowlane art.34 ust.3, na projekt budowlany składają się trzy części:
- projekt zagospodarowania działki lub terenu
- projekt architektoniczno-budowlany
- projekt techniczny
Nasze projekty oferujemy w 3 egzemplarzach, zawierających projekt architektoniczno-budowlany i projekt techniczny. Projekt zagospodarowania działki lub terenu nie wchodzi w skład projektu oferowanego do sprzedaży. Projekt ten należy zlecić we własnym zakresie lokalnemu projektantowi, który opracuje go na podstawie danych zawartych w projekcie architektoniczno-budowlanym i technicznym, po dostosowaniu projektu do warunków lokalnych i wymagań inwestora.
UWAGA: wszystkie egzemplarze projektu zabezpieczone są hologramami, w części rysunkowej posiadają nadruki zabezpieczające w kolorze zielonym. Zalecamy aby po otrzymaniu przesyłki kontrolować czy na pierwszych stronach projektu znajduje się hologram i czy na rysunkach widoczne są w/w nadruki potwierdzające oryginalność projektu.
Wyrażamy zgodę na wszelkie zmiany zgodne z obowiązującymi przepisami pod warunkiem wprowadzenia ich przez uprawnioną osobę.
Wszystkie zmiany wymienione powyżej powinny być naniesione na oryginał projektu katalogowego trwałą techniką graficzną w kolorze czerwonym lub dołączone jako aneks i podpisane przez osobę uprawnioną dokonująca adaptacji.
**ważne informacje
Projekt w fazie koncepcji dostępny z wydłużonym terminem realizacji. Przy zamówieniu ustalamy termin i pobieramy zadatek 50% podstawowej ceny projektu (jako koszty usługi przygotowania dokumentacji do standardu projektu gotowego, w przypadku rezygnacji z usługi, zadatek nie podlega zwrotowi).
Cena za dodatkowy egzemplarz projektu jest zależna od nazwy projektu!
Dodatki
Bezpłatne dodatki
GratisZestaw umów
GratisZmiany w projekcie
GratisTablica budowy
GratisDziennik budowy
Płatne dodatki

Kosztorys - stan wykończony
540 zł

Projekt wentylacji mechanicznej
1 000 zł










