- Typ projektuWolnostojący
- StylNowoczesny
- Powierzchnia użytkowa190.05 m²
- KondygnacjePiętrowy
- GarażDwustanowiskowy
- Kąt nach. dachu25°
- Odbicie lustrzaneNie
- Czas realizacjimax. czas realizacji 10 dni Zobacz więcej >
Opis
Zgodność z WT 2021 i Eurokodami
Ze względu na dostosowywanie projektu do standardu WT 2021, czas realizacji może się różnić od standardowego.
Skontaktuj się z nami aby poznać szczegóły dotyczące wybranego projektu.
Opis projektu
Wariant projektu z poszerzonym piętrem o 1m zrównując je ze ścianą parteru, zlikwidanym daszkiem nad wykuszem, wyprostowanym narożnikiem przy kuchni. Przesuniętym podcieniem przy salonie (powiększenie salonu). Skrócenie tarasu od strony ogrodowej i poszerzenie od strony bocznej. Zaprojektowanie okna narożnego w sypialni na piętrze, likwidacja okna bocznego. Poszerzenie balkonu o 1m oraz przesunięcie drzwi balkonowych tak aby zachować symetrię na elewacji tylnej. Wyrównanie powierzchni sypialni od strony tylnej Powiększenie pralni oraz zaprojektowanie drzwi z korytarza. Wymiary i układ łazienek i pralni tak jak w Kasjopea 7.
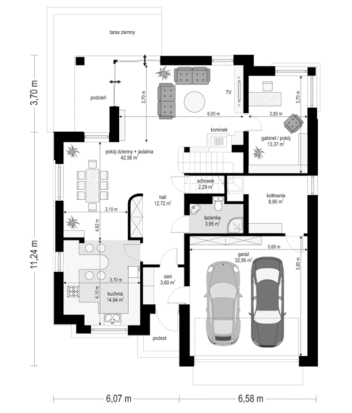
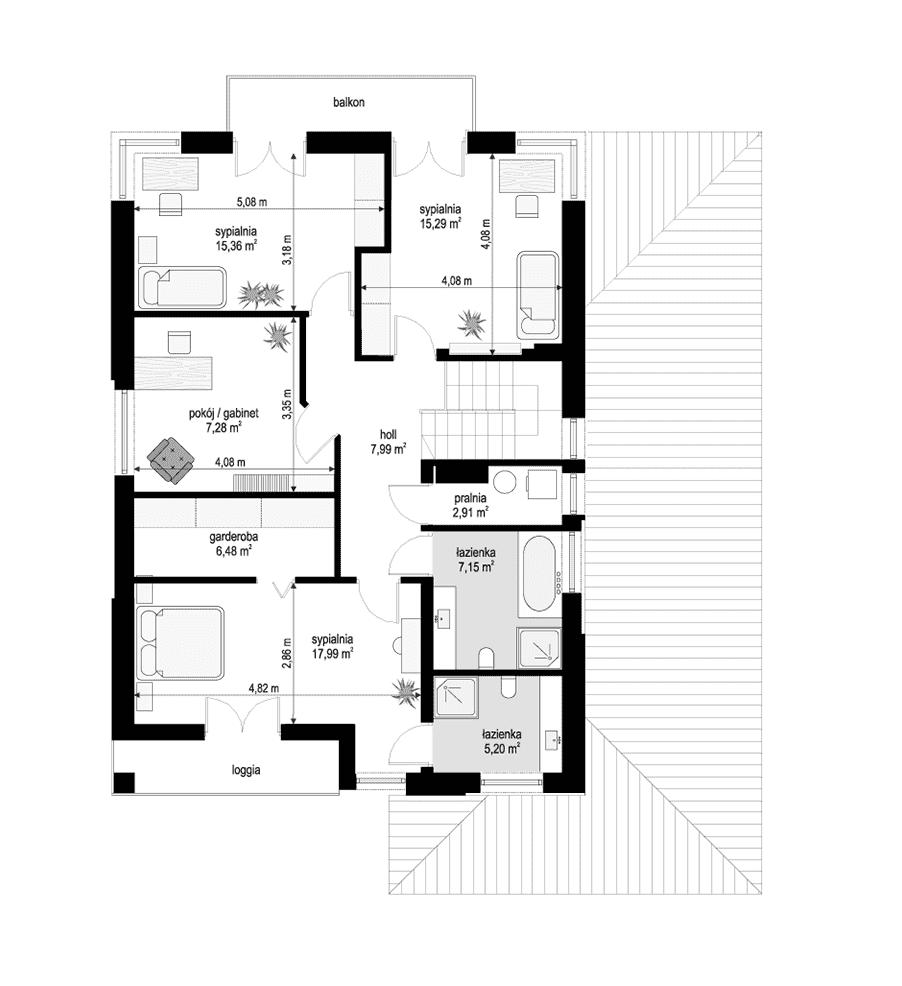
Projekt domu Kasjopea 3 to przeznaczony dla rodziny cztero-sześcioosobowej dom jednorodzinny. Piętrowy budynek przykryty wielospadowym dachem. Zwarta, prosta w budowie bryła budynku z dobudowanym garażem została urozmaicona okładziną klinkierową elewacji, oraz podcieniami - wejściowym i ogrodowym. W Kasjopea 3 położyliśmy szczególny nacisk na czystość i prostotę formy budynku. Oszczędny detal dodaje bryle dyskretnej elegancji. Wnętrze również zaplanowano tak, aby podziały pomieszczeń były klarowne - bez zbędnych korytarzy, a same pokoje były przestronne i miały optymalny kształt. Na parterze zaprojektowano salon z jadalnią i holem, z częściowo otwartą kuchnią, oraz dodatkowy pokój - gabinet lub sypialnię gościnną. Na piętrze umieszczono trzy sypialnie z garderobami i szafami wbudowanymi, oraz dużą łazienkę. Istnieje możliwość wygospodarowania dodatkowego czwartego pokoju na piętrze - likwidując garderobę. Pracownia posiada wersję odbicia lustrzanego projektu Kasjopea 3 oraz kilka wersji: podstawowa (projekt domu Kasjopea) i jej wersja odświeżona (projekt domu Kasjopea 8), bliźniak (projekt domu Kasjopea 2), pomniejszona (projekt domu Kasjopea 4), komfortowa (projekt domu Kasjopea 5), największa (projekt domu Kasjopea 6), z nowocześniejszą architekturą (projekt domu Kasjopea 7) oraz z wyższym kątem nachylenia dachu (projekt domu Kasjopea 7 B).
Konstrukcja
- Fundamentybetonowe ławy i ściany fundamentowe z bloczków betonowych
- Ściany zewnętrzneściany murowane - pustaki porotherm + styropian + tynk
- StropTeriva
- Elewacjetynk cienkowarstwowy
- Pokrycie dachudachówka
Rzuty
Dane techniczne
- Powierzchnia użytkowa190.05 m²
- Powierzchnia netto198.95 m²
- Powierzchnia zabudowy170.7 m²
- KominekTak
- Liczba łazienek3
- Liczba pokoi6
- Powierzchnia dachu250.68 m²
- Kubatura842 m³
- Długość domu14.94 m
- Szerokość domu12.65 m
- Wysokość domu8.79 m
- Minimalne wymiary działki22.94 x 20.65m
- GarażDwustanowiskowy
- Kąt nach. dachu25°
Koszty budowy
- Stan surowy228649 zł
- Stan surowy zamknięty326833 zł
- Koszt wykończenia331102 zł
- Koszt instalacji88384 zł
Zawartość projektu
W komplecie nowej wersji dokumentacji projektowej znajdują się 3 egzemplarze projektu architektoniczno-budowlanego oraz 3 egzemplarze projektu technicznego
Projekt architektoniczno-budowlany zawierający:
-opis architektoniczny z elementami konstrukcji,
-część rysunkowa: rzut parteru, poddasza/piętra, rzut dachu w skali 1:100, przekroje skala 1:50,
elewacje skala 1:100.
Projekt techniczny zawierający:
-opis techniczny i konstrukcyjny (obliczenia statyczne - w zależności od projektu włączone w projekt lub stanowiące odrębną teczkę).
Część rysunkowa architektura i konstrukcja:
-rzuty fundamentów, parteru, poddasza, stropu, więźby, dachu / w skali 1:50,
-przekroje przez budynek / budynek skali 1:50,
-elewacje budynku / w skali 1:50 (*niektóre projekty posiadają rysunki w skali 1:100 lub 1:75),
-zestawienie stolarki budowlanej okiennej i drzwiowej,
-szczegóły konstrukcji i ewentualne szczegóły budowlane,
Część instalacyjna:
-część opisowa do projektów instalacji elektrycznych, wodno-kanalizacyjnych, grzewczych, gazowych (jeśli występują).
Część rysunkowa do projektów instalacji:
-schematy instalacji elektrycznych, schemat rozdzielni, plan instalacji odgromowej,
-schematy instalacji wodno-kanalizacyjnej i ciepłej wody,
-schematy instalacji grzewczych,
-schemat instalacji gazowej (jeśli występują).
Do projektu dołączane jest zestawienie materiałowe, z wykazem elementów drewnianych oraz stali budowlanej.
Do projektu dołączone są kopie uprawnień wszystkich projektantów, oraz aktualne zaświadczenia o przynależności do izb zawodowych.
Projekt zawiera oświadczenie projektantów o poprawności projektu w świetle Prawa Budowlanego, a także zawiera informację dotyczącą bezpieczeństwa i ochrony zdrowia ( BIOZ).
Do projektu dołączona jest także zgoda na zmiany adaptacyjne. Zgoda dołączana jest do każdego projektu bezpłatnie. Na Państwa życzenie zakres zgody na zmiany możemy dowolnie rozszerzyć.
Pracownia zezwala na następujące zmiany i odstępstwa od projektu architektoniczno-budowlanego w trakcie jego przystosowywania do lokalizacji:
- Zmianę obrysu zewnętrznego ścian zewnętrznych.
- Zmianę obrysu wewnętrznego ścian zewnętrznych.
- Zmianę układu ścian wewnętrznych działowych.
- Zmianę funkcji, ilości i usytuowania poszczególnych pomieszczeń na dowolnej kondygnacji w projekcie.
- Zmianę ukształtowania, ilości i kąta nachylenia połaci dachowych.
- Zmianę ilości, umiejscowienia i wielkości otworów okiennych i drzwiowych.
- Zmianę rodzaju materiału i technologii wykonania ścian zewnętrznych oraz wewnętrznych oraz ścian fundamentowych.
- Zmianę rodzaju i technologii wykonania stropów nad dowolną kondygnacją.
- Zmianę umiejscowienia, kształtu i materiału wykonania schodów w budynku.
- Zmianę wielkości, kształtu i materiałów, bądź likwidacja: tarasów, podestów i balkonów.
- Likwidację lub dodanie dowolnej ilości:
- lukarn,
- wykuszy,
- podcieni,
- balkonów,
- loggii,
- kolumn,
- pilastrów,
- ganków,
- werand.
- Zmianę materiałów wykończeniowych, instalacyjnych, izolacyjnych.
- Zmianę rodzaju pokrycia dachowego.
- Doprojektowanie bądź likwidacja podpiwniczenia - częściowego lub całkowitego.
Dodatki
Bezpłatne dodatki
GratisZestaw umów
GratisZmiany w projekcie
PromocjaProjekt szamba szczelnego
GratisTablica budowy
GratisDziennik budowy
Płatne dodatki

Pakiet wentylacja mechaniczna i kominek DGP
550 zł

Kosztorys inwestorski
600 zł

Pakiet odkurzacz centralny
550 zł

Wersja elektroniczna projektu
600 zł

Pakiet instalacja solarna
550 zł

Pakiet ogrzewanie podłogowe
550 zł

Pakiet powietrzna pompa ciepła
550 zł

Pakiet płaszcz wodny
550 zł

Pakiet kotłownia na paliwo stałe
550 zł

Pakiet klimatyzacja w domu
550 zł

Projekt ogrodzenia
750 zł

Pakiet instalacja fotowoltaiczna
550 zł

Pakiet kominek z DGP
500 zł

Pakiet gruntowa pompa ciepła
550 zł

Projekt altan i grilów ogrodowych
850 zł

Dodatkowy egzemplarz do projektu
650 zł


































