Projekt domu L-81 z bali
Promocja ważna do
23-04-2026
- Typ projektuWolnostojący
- Powierzchnia użytkowa127.4 m²
- KondygnacjeParterowy, z poddaszem, z piwnicą
- GarażBez garażu
- Kąt nach. dachu45°
- Odbicie lustrzaneTak
- Czas realizacjido 10 dni roboczych Zobacz więcej >
Opis
Zgodność z WT 2021 i Eurokodami
Ze względu na dostosowywanie projektu do standardu WT 2021, czas realizacji może się różnić od standardowego.
Skontaktuj się z nami aby poznać szczegóły dotyczące wybranego projektu.
Opis projektu
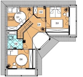
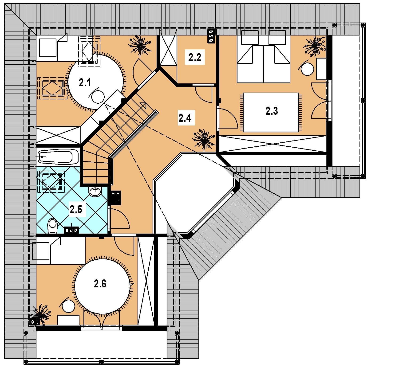
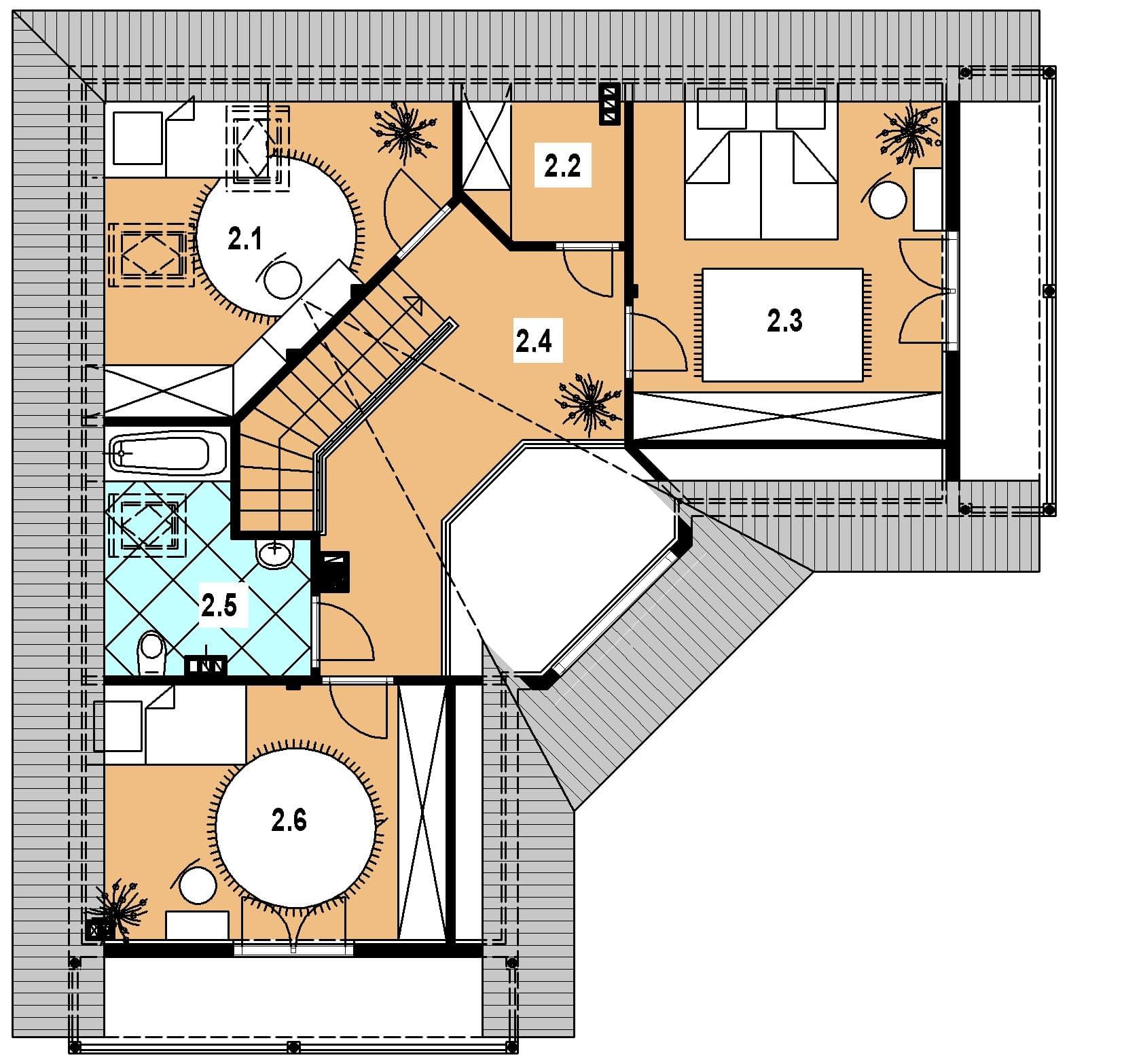
Projekt domu L-81 „DOM ODLEGŁA” – parterowy dom z poddaszem użytkowym z bali, w kształcie litery L Projekt domu L-81 „DOM ODLEGŁA” to wyjątkowa propozycja dla miłośników naturalnego budownictwa z bali, którzy cenią solidność, zdrowy mikroklimat i ponadczasowy wygląd. Ten dom parterowy z poddaszem użytkowym w kształcie litery L zachwyca swoim charakterem oraz funkcjonalnym układem pomieszczeń, idealnie dopasowanym do potrzeb rodzin poszukujących przestrzeni blisko natury. Centralnym punktem projektu jest zadaszone wyjście na taras, nad którym umieszczono efektowne doświetlenie w formie wolego oczka, zapewniające naturalne światło i podkreślające góralski klimat konstrukcji z bali. Od strony ogrodu dom otwiera się dużymi przeszkleniami, tworząc harmonijną całość łączącą wnętrze z krajobrazem. Parter zachwyca przemyślanym układem funkcjonalnym. Znajduje się tu kuchnia z wygodną spiżarnią, przestronna jadalnia oraz przytulna sypialnia. Dopełnieniem są: praktyczny wiatrołap, elegancka łazienka oraz dwa duże pomieszczenia gospodarcze, idealne na kotłownię, pralnię czy warsztat domowy. Wyjątkową atrakcją architektoniczną są schody prowadzące na poddasze, które przechodzą nad pokojem dziennym. Sam salon jest otwarty aż do połaci dachu, bez stropu, co potęguje wrażenie przestrzeni i naturalnej, drewnianej monumentalności. Nad strefą dzienną zaprojektowano nastrojową antresolę, idealną na strefę relaksu, bibliotekę lub miejsce do pracy. Na poddaszu znajdują się trzy komfortowe sypialnie oraz dodatkowa łazienka. Dwa pokoje posiadają duże balkony, z których roztacza się malowniczy widok na otoczenie – idealne na poranną kawę czy wieczorny odpoczynek. Projekt domu L-81 „DOM ODLEGŁA” w technologii z bali to połączenie naturalnego piękna, energooszczędności i przemyślanej architektury. Doskonale sprawdzi się zarówno jako dom całoroczny, jak i klimatyczna rezydencja wypoczynkowa.Rzuty
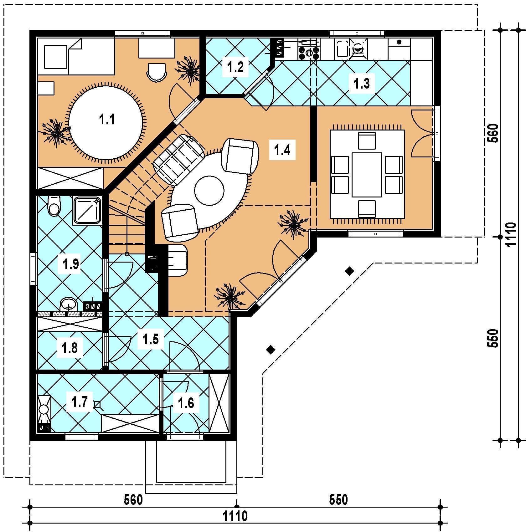
Parter
- sypialnia 13.90 spiżarka 2.20 kuchnia 7.70 pokój dzienny 31.10 hall 6.70 wiatrołap 2.60 pom. gospodarcze 4.70 pom. gospodarcze 2.40 łazienka 5.100
Poddasze
Dane techniczne
- Powierzchnia użytkowa127.4 m²
- Powierzchnia zabudowy96 m²
- Kubatura540.8 m³
- Wysokość domu7.33 m
- Piwnicatak
- PoddaszeUżytkowe
- Minimalne wymiary działki19.5 x 19.5m
- GarażBez garażu
- Kąt nach. dachu45°
Zawartość projektu
Dokumentacja obejmuje 3 egzemplarze projektu architektoniczno-budowlanego oraz 3 teczki projektu technicznego.
Architektura
- Opis techniczny do części architektonicznej
- Część rysunkowa
- Zestawienie podstawowych materiałów
Konstrukcja
- Opis techniczny
- Obliczenia statyczne
- Schematy konstrukcyjne
Projekt wewnętrznej instalacji C.O.; WOD-KAN; GAZ
- Opis techniczny instalacji
- Zestawienie podstawowych materiałów
- Część rysunkowa
Projekt elektrycznych instalacji wewnętrznych
- Opis techniczny
- Część rysunkowa
Projektant dokonujący adaptacji projektu gotowego może wprowadzić w nim następujący zakres zmian bez naruszenia praw autorskich firmy:
- Zaprojektować użycie innych materiałów budowlanych na konstrukcję budynku {ściany i stropy} pod warunkiem zachowania wymagań konstrukcji i ochrony cieplnej budynku oraz jego elewacji.
- Wprowadzić zmiany w usytuowaniu niekonstrukcyjnych ścianek działowych i otworów drzwiowych wewnątrz domu.
- Wprowadzić zmiany materiałów wykończeniowych na zewnątrz oraz wewnątrz domu.
- Wprowadzić zmiany usytuowania i rodzaju armatury sanitarnej i instalacji elektrycznej.
- Wprowadzić częściowe lub całkowite podpiwniczenie budynku przy zachowaniu poziomu posadzki parteru na wysokości nie przekraczającej 60 cm ponad poziom terenu projektowanego.
- Przesuwać okna na elewacji pod warunkiem zachowania prawidłowej kompozycji elewacji polegające na zachowaniu wspólnej linii usytuowania okien nad sobą lub obok siebie.
- Projekt powiększenia lub zmniejszenia garażu może być wykonany przez projektanta adaptującego w zakresie adaptacji projektu gotowego do konkretnej działki budowlanej.
Wprowadzenie innych zmian do projektu wymaga uzyskania pisemnej zgody autora projektu, która jest wystawiana po uprzednim zgłoszeniu inwestora. Wszelkie zmiany należy nanieść na projekcie w kolorze czerwonym trwałą i czytelną techniką (lub wykonać rysunki zamienne)
Uwaga: Istnieje możliwość zakupu dodatkowego egzemplarza projektu.
Dodatki
Bezpłatne dodatki
GratisZestaw umów
GratisZmiany w projekcie
GratisTablica budowy
GratisDziennik budowy














