Projekt domu LAMIA
Promocja ważna do
22-02-2026
- Typ projektuWolnostojący
- Powierzchnia użytkowa119.97 m²
- Kondygnacjez poddaszem
- GarażJednostanowiskowy
- DachDwuspadowy
- Kąt nach. dachu43°
- Odbicie lustrzaneTak
- Czas realizacjido 10 dni roboczych Zobacz więcej >
Opis
Zgodność z WT 2021 i Eurokodami
Ze względu na dostosowywanie projektu do standardu WT 2021, czas realizacji może się różnić od standardowego.
Skontaktuj się z nami aby poznać szczegóły dotyczące wybranego projektu.
Konstrukcja
- powierzchnia zabudowy budynku (bez tarasu i schodów zewn.) - 104,84m2
- powierzchnia tarasu i schodów zewnętrznych - 27,94m2
- parteru - 79,11 m2
- tarasu - 11.93 m2
- poddasza - 64,29 m2
- powierzchnia całkowita - 241,44m2
- kubatura części przekrytej i zamkniętej ze wszystkich stron 575,56m3
- kubatura częśći przekrytej nie zamknietej ze szystkich stron 13,49m3
- kubatura części nieprzekrytej i osłoniętej (taras, balkon) 16,24m3
- ściany zewnętrzne murowane grubości 30 cm + 12 cm styropian
- ściany wewnętrzne (nośne) gr. 25 cm i działowe gr. 12 cm
- wszystkie ściany wykonane z pustaków ceramicznych "POROTHERM"
- strop gęstożebrowy "POROTHERM" o gr. 23 cm
- konstrukcja więźby dachowej drewniana w układzie krokwiowo-jętkowym
- pokrycie dachu dachówka ceramiczna
- projekt posiada kominek
- instalacja grzewcza: kocioł gazowy w kotłowni
- wymiary bramy garażowej 2,4 x 2,4m
Rzuty
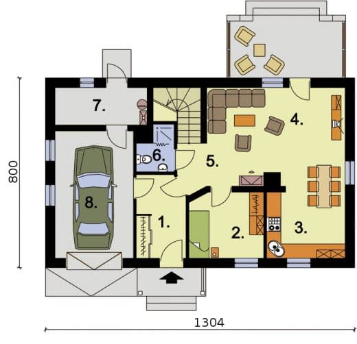
Przyziemie
- 5. Komunikacja4.62
- 2. Pokój8.45
- 3. Kuchnia z aneksem jadalnym9.72
- 4. Pokój dzienny23.49
- 6. Łazienka2.43
- 1. Wiatrołap6.97
- 7. Kotłownia5.97
- 8. Garaż17.46
- 9. Taras11.93
Poddasze
Dane techniczne
- Powierzchnia użytkowa119.97 m²
- Powierzchnia zabudowy104.84 m²
- Liczba pokoi15
- Powierzchnia dachu189 m²
- Kubatura716 m³
- Wysokość domu8.43 m
- PoddaszeUżytkowe
- Minimalne wymiary działki21.04 x 18.45m
- GarażJednostanowiskowy
- Rodzaj dachuDwuspadowy
- Kąt nach. dachu43°
Zawartość projektu
Projekty są dostępne w wersji książkowej, drukowanej w tak zwanym w nowym trybie 3 egzemplarze projektu architektoniczno-budowlanego oraz 3 egzemplarze projektu technicznego. Na życzenie przesyłamy rzuty i przekroje wersji podstawowych dokumentacji w formacie PDF
Każdy projekt architektoniczno-budowlany domu składa się z następujących części:
- strona tytułowa,
- oświadczenie
- część opisowa projektu architektoniczno-budowlanego,
- projektowana charakterystyka energetyczna z analizą,
- część rysunkowej projektu architektoniczno-budowlanego,
- zaświadczenia i uprawnienia.
Każdy projekt techniczny domu składa się z:
- strony tytułowej,
- oświadczenia,
- części opisowej projektu technicznego,
- części rysunkowej projektu technicznego,
- części konstrukcyjnej,
- zaświadczenia i uprawnień,
- zestawień drewna i stali,
-instalacji elektrycznej i odgromowej,
-instalacji sanitarnych, gazowych i centralnego ogrzewania.
Do projektu na życzenie dołączamy obliczenia statyczno-wytrzymałościowe.
Inwestor otrzymuje 3 opieczętowane sztuki projektu architektoniczno-budowlanego oraz 3 egzemplarze projektu technicznego tworzące komplet, każdy z plombą zabezpieczającą i oryginalnym hologramem biura.
Pierwszy egzemplarz tomu I zawiera zgodę in blanco na wszystkie zmiany wprowadzane do projektu po zakupie przez lokalnego wybranego na własną rękę przez Inwestora architekta adaptującego/kierownika budowy. Do teczki projektów dołączamy także zaświadczenia i aktualne wpisy do Izb autorów projektu oraz wpisy aktualne na czas sporządzenia projektu.
Dodatki
Bezpłatne dodatki
GratisZestaw umów
GratisZmiany w projekcie
GratisTablica budowy
GratisDziennik budowy
Płatne dodatki

Kosztorys
470 zł

Dodatkowy egzemplarz projektu
450 zł

Projekt wentylacji mechanicznej z rekuperatorem
450 zł

Projekt fotowoltaiki dla domu
750 zł

Projekt instalacji z ogrzewaniem podłogowym
400 zł

Elektroniczna wersja projektu
600 zł









