- Typ projektuWolnostojący
- Powierzchnia użytkowa173.8 m²
- Kondygnacje
- GarażBez garażu
- DachDwuspadowy
- Kąt nach. dachu40°
- Odbicie lustrzaneTak
- Czas realizacjimax. czas realizacji 10 dni Zobacz więcej >
Opis
Zgodność z WT 2021 i Eurokodami
Ze względu na dostosowywanie projektu do standardu WT 2021, czas realizacji może się różnić od standardowego.
Skontaktuj się z nami aby poznać szczegóły dotyczące wybranego projektu.
Opis projektu
Lena to nowoczesny dom z poddaszem do adaptacji, wyróżniający się prostą bryłą, dużymi przeszkleniami i elegancką białą elewacją ze szarą dachówką.Na parterze zaplanowano trzy sypialnie oraz przestronną strefę dzienną z salonem, kuchnią i jadalnią z wyjściem na taras. Dodatkowo przewidziano łazienkę, wc, spiżarnię, pomieszczenie techniczne i wygodne wejście z miejscem na szafy.Poddasze pozostaje otwarte na aranżację – można tam stworzyć dodatkowe pokoje, łazienkę, gabinet lub przestrzeń rekreacyjną.Dom łączy nowoczesny wygląd z funkcjonalnością i dbałością o środowisko
Konstrukcja
fundamenty: betonowe
ściany zewnętrzne: porotherm+styropian termo organika
ściany wewnętrzne: porotherm
rodzaj stropu: teriva
elewacje: tynk strukturalny
pokrycie dachu: dachówka ceramiczna
Rzuty
Parter
- m²
- 1. Wiatrołap2.9
- 2. Komunikacja10.9
- 3. WC1.9
- 4. Kuchnia12.9
- 5. Spiżarnia2.2
- 6. Salon25.3
- 7. Schody9.5
- 8. Pokój12.8
- 9. Pokój15
- 10. Pokój14.5
- 11. Łazienka5.3
- 12. Pom. techniczne*4.9
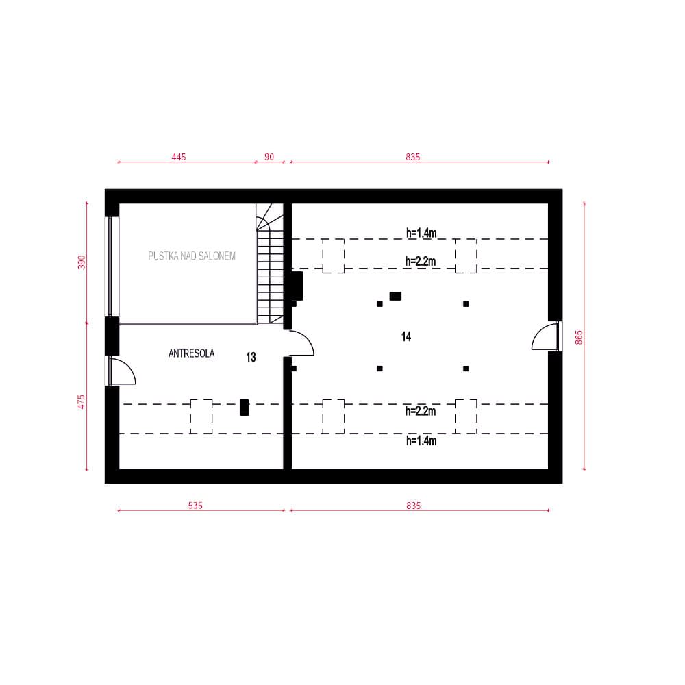
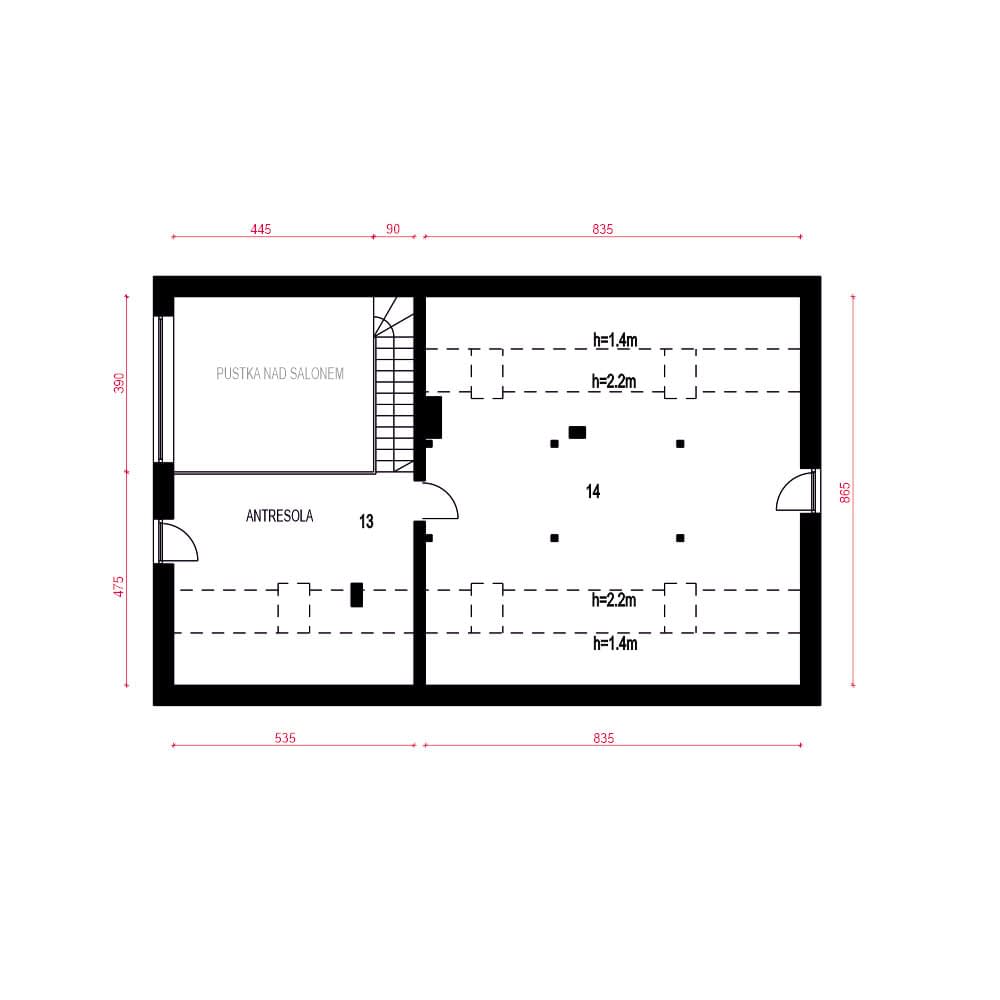
Piętro
Dane techniczne
- Powierzchnia użytkowa173.8 m²
- Powierzchnia zabudowy142.6 m²
- KominekTak
- Liczba łazienek1
- Liczba pokoi4
- Powierzchnia dachu186.2 m²
- Długość domu9.7 m
- Szerokość domu15 m
- Wysokość domu8 m
- Minimalne wymiary działki17.7 x 23m
- GarażBez garażu
- Rodzaj dachuDwuspadowy
- Kąt nach. dachu40°
Instalacja grzewcza
- Instalacja grzewczaGaz
Zawartość projektu
Zgodnie ze znowelizowaną Ustawą Prawo Budowlane art.34 ust.3, na projekt budowlany składają się trzy części:
- projekt zagospodarowania działki lub terenu
- projekt architektoniczno-budowlany
- projekt techniczny
Nasze projekty oferujemy w 3 egzemplarzach, zawierających projekt architektoniczno-budowlany i projekt techniczny. Projekt zagospodarowania działki lub terenu nie wchodzi w skład projektu oferowanego do sprzedaży. Projekt ten należy zlecić we własnym zakresie lokalnemu projektantowi, który opracuje go na podstawie danych zawartych w projekcie architektoniczno-budowlanym i technicznym, po dostosowaniu projektu do warunków lokalnych i wymagań inwestora.
UWAGA: wszystkie egzemplarze projektu zabezpieczone są hologramami, w części rysunkowej posiadają nadruki zabezpieczające w kolorze zielonym. Zalecamy aby po otrzymaniu przesyłki kontrolować czy na pierwszych stronach projektu znajduje się hologram i czy na rysunkach widoczne są w/w nadruki potwierdzające oryginalność projektu.
Wyrażamy zgodę na wszelkie zmiany zgodne z obowiązującymi przepisami pod warunkiem wprowadzenia ich przez uprawnioną osobę.
Wszystkie zmiany wymienione powyżej powinny być naniesione na oryginał projektu katalogowego trwałą techniką graficzną w kolorze czerwonym lub dołączone jako aneks i podpisane przez osobę uprawnioną dokonująca adaptacji.
**ważne informacje
Projekt w fazie koncepcji dostępny z wydłużonym terminem realizacji. Przy zamówieniu ustalamy termin i pobieramy zadatek 50% podstawowej ceny projektu (jako koszty usługi przygotowania dokumentacji do standardu projektu gotowego, w przypadku rezygnacji z usługi, zadatek nie podlega zwrotowi).
Cena za dodatkowy egzemplarz projektu jest zależna od nazwy projektu!
Dodatki
Bezpłatne dodatki
GratisZestaw umów
GratisZmiany w projekcie
GratisTablica budowy
GratisDziennik budowy
Płatne dodatki

Kosztorys - stan wykończony
540 zł

Projekt wentylacji mechanicznej
1 000 zł











