Promocja ważna do
24-04-2026
- Typ projektuWolnostojący
- Powierzchnia użytkowa110.2 m²
- Kondygnacje
- GarażBez garażu
- DachDwuspadowy
- Kąt nach. dachu40°
- Odbicie lustrzaneTak
- Czas realizacjimax. czas realizacji 10 dni Zobacz więcej >
Opis
Zgodność z WT 2021 i Eurokodami
Ze względu na dostosowywanie projektu do standardu WT 2021, czas realizacji może się różnić od standardowego.
Skontaktuj się z nami aby poznać szczegóły dotyczące wybranego projektu.
Opis projektu
Projekt gotowy Lerka to dom stanowiący doskonały melanż tradycji i nowoczesności. Dom charakteryzuje się prostą formą i nieskomplikowaną funkcją użytkową. Minimalizm i ład w elewacjach budynku wpływa na obniżenie kosztów budowy. Ze względu na ekonomię zrezygnowano z balkonów i lukarn, w zamian zastosowano nowoczesne okna typu porfenetr zapewniające doskonałe doświetlenie pomieszczeń. Parter stanowiący dzienną strefę domu zawiera hol, łazienkę, salon z kuchnią i spiżarnią a także dodatkowy pokój z przeznaczeniem na gabinet lub pokój gościnny.Piętro czyli strefa nocna to 3 wygodne sypialnie oraz łazienka a także garderoba z pralnią.
Konstrukcja
Rzuty
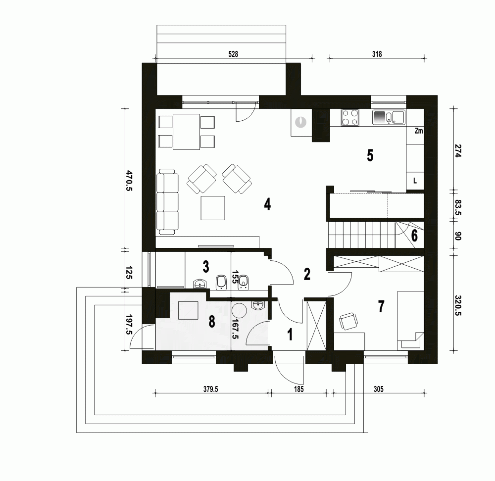
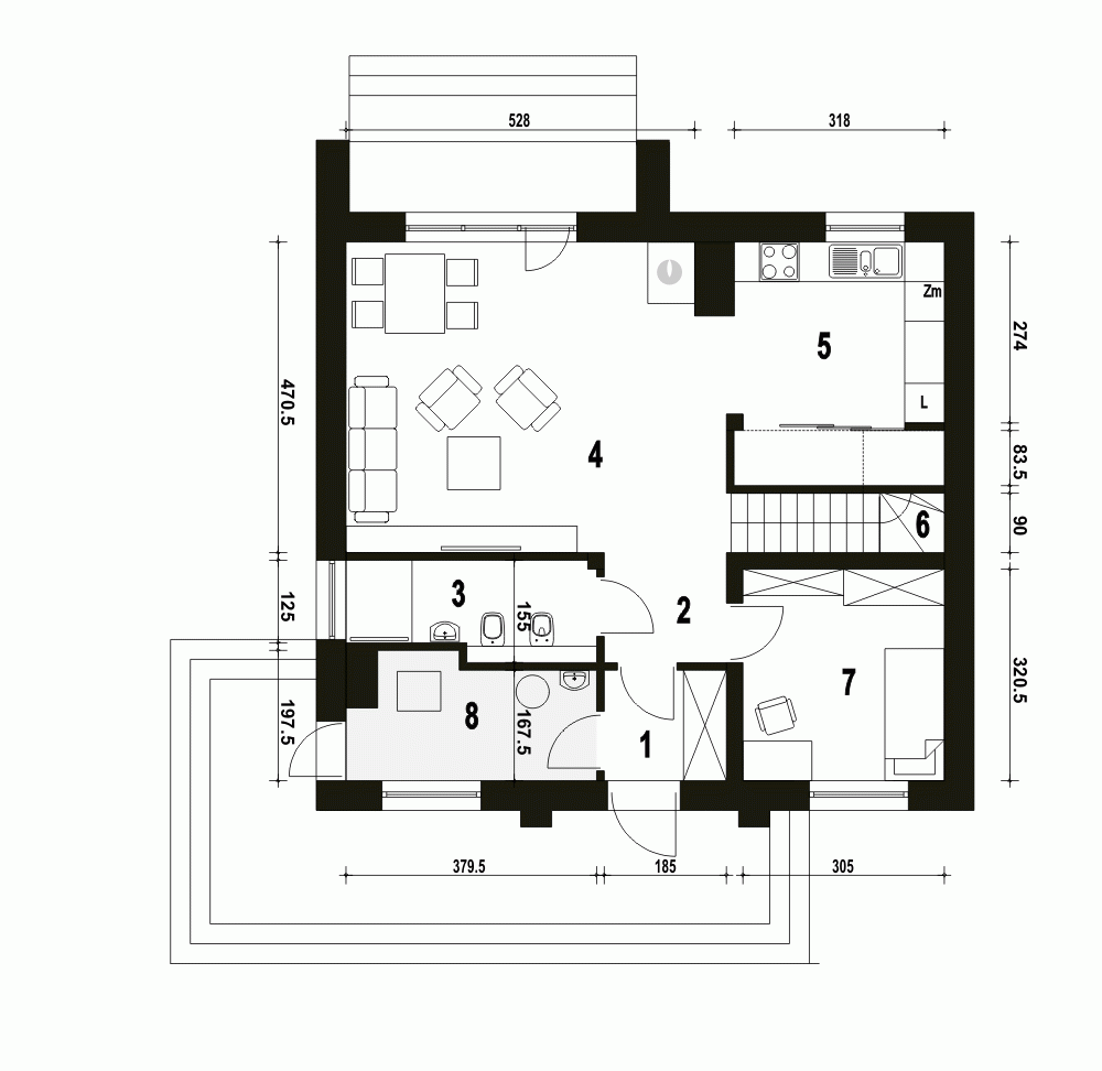
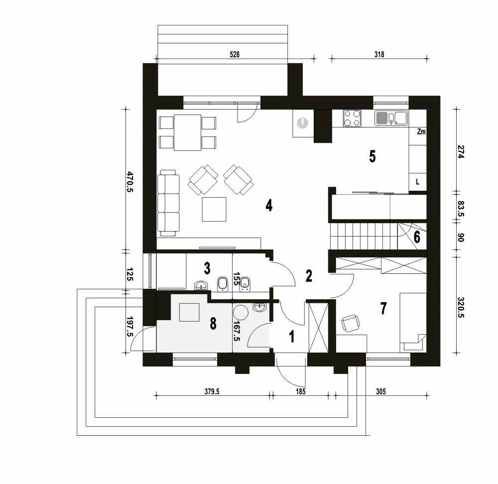
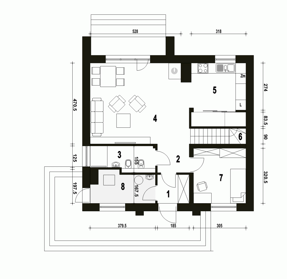
Parter
- m²
- 1. Wiatrołap3
- 2. Hol3
- 3. Łazienka5.2
- 4. Salon26.3
- 5. Kuchnia+spiżarnia11.3
- 6. Schody4
- 7. Pokój9.6
- 8. Pom. tech.*6.4
Piętro
- m²
- 9. Hol6.2
- 10. Sypialnia11.4
- 11. Sypialnia11
- 12. Sypialnia13.2
- 13. Łazienka6.2
- 14. Pralnia + Garderoba*4.2
Przekrój
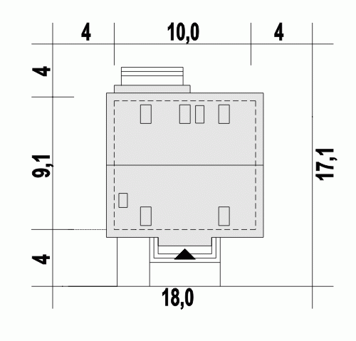
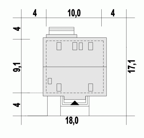
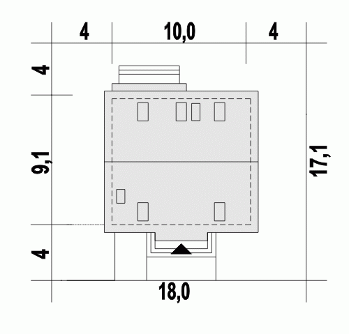
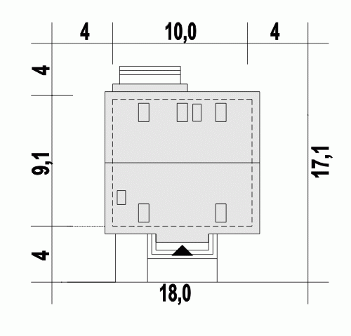
Usytuowanie na działce
Dane techniczne
- Powierzchnia użytkowa110.2 m²
- Powierzchnia zabudowy92 m²
- KominekTak
- Liczba łazienek2
- Liczba pokoi5
- Powierzchnia dachu149.6 m²
- Długość domu9.1 m
- Szerokość domu10 m
- Wysokość domu8.7 m
- Minimalne wymiary działki17.1 x 18m
- GarażBez garażu
- Rodzaj dachuDwuspadowy
- Kąt nach. dachu40°
Instalacja grzewcza
- Instalacja grzewczaGaz, Paliwo stałe
Zawartość projektu
Zgodnie ze znowelizowaną Ustawą Prawo Budowlane art.34 ust.3, na projekt budowlany składają się trzy części:
- projekt zagospodarowania działki lub terenu
- projekt architektoniczno-budowlany
- projekt techniczny
Nasze projekty oferujemy w 3 egzemplarzach, zawierających projekt architektoniczno-budowlany i projekt techniczny. Projekt zagospodarowania działki lub terenu nie wchodzi w skład projektu oferowanego do sprzedaży. Projekt ten należy zlecić we własnym zakresie lokalnemu projektantowi, który opracuje go na podstawie danych zawartych w projekcie architektoniczno-budowlanym i technicznym, po dostosowaniu projektu do warunków lokalnych i wymagań inwestora.
UWAGA: wszystkie egzemplarze projektu zabezpieczone są hologramami, w części rysunkowej posiadają nadruki zabezpieczające w kolorze zielonym. Zalecamy aby po otrzymaniu przesyłki kontrolować czy na pierwszych stronach projektu znajduje się hologram i czy na rysunkach widoczne są w/w nadruki potwierdzające oryginalność projektu.
Wyrażamy zgodę na wszelkie zmiany zgodne z obowiązującymi przepisami pod warunkiem wprowadzenia ich przez uprawnioną osobę.
Wszystkie zmiany wymienione powyżej powinny być naniesione na oryginał projektu katalogowego trwałą techniką graficzną w kolorze czerwonym lub dołączone jako aneks i podpisane przez osobę uprawnioną dokonująca adaptacji.
**ważne informacje
Projekt w fazie koncepcji dostępny z wydłużonym terminem realizacji. Przy zamówieniu ustalamy termin i pobieramy zadatek 50% podstawowej ceny projektu (jako koszty usługi przygotowania dokumentacji do standardu projektu gotowego, w przypadku rezygnacji z usługi, zadatek nie podlega zwrotowi).
Cena za dodatkowy egzemplarz projektu jest zależna od nazwy projektu!
Dodatki
Bezpłatne dodatki
GratisZestaw umów
GratisZmiany w projekcie
GratisTablica budowy
GratisDziennik budowy
Płatne dodatki

Kosztorys - stan wykończony
540 zł

Projekt wentylacji mechanicznej
1 000 zł















