Projekt domu Madras z garażem
- Typ projektuWolnostojący
- Powierzchnia użytkowa116.2 m²
- Kondygnacje
- GarażJednostanowiskowy
- Kąty nach. dachu40°, 25°
- Odbicie lustrzaneTak
- Czas realizacjido 10 dni roboczych Zobacz więcej >
Opis
Zgodność z WT 2021 i Eurokodami
Ze względu na dostosowywanie projektu do standardu WT 2021, czas realizacji może się różnić od standardowego.
Skontaktuj się z nami aby poznać szczegóły dotyczące wybranego projektu.
Opis projektu
Projekt Madras jest propozycją taniego domu z dachem dwuspadowym i garażem dostawionym do ściany szczytowej. Prosta, łatwa w realizacji bryła otrzymała żywą kolorystykę połączoną z przemyślanymi detalami wykończenia: gzymsy na granicy różnych kolorów tynku, płytki klinkierowe na nadprożach i ścianie przy wejściu oraz drewnianą podbitkę pobieloną w kolorze zbliżonym do ścian. W efekcie domek emanuje ciepłem. Również i wnętrze nie rozczarowuje: aż cztery pokoje oprócz salonu i jednoprzestrzenna strefa dzienna z kominkiem i dużymi oknami od strony ogrodu. Przy strefie wejściowej ulokowano pozostałe pomieszczenia: łazienkę z prysznicem oraz pomieszczenie gospodarcze, przez które przechodzi się do garażu. Dokumentacja dostępna jest także w odbiciu lustrzanym.Rzuty
Parter
- 1. wiatrołap3.9
- 2. hall8.5
- 3. pokój dzienny z kuchnią30
- 4. pokój12.3
- 5. łazienka3.9
- 6. pom. gospodarcze6.6
- 7. spiżarnia1.5
- 8. garaż19.3
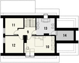
Piętro
Rzut na działce
Dane techniczne
- Powierzchnia użytkowa116.2 m²
- Powierzchnia zabudowy112.3 m²
- Kubatura604 m³
- Wysokość domu8.13 m
- Minimalne wymiary działki21.8 x 16.7m
- GarażJednostanowiskowy
- Kąty nach. dachu40°, 25°
Koszty budowy
- Stan surowy155668 zł
Zawartość projektu
Dokumentacja projektowa dostarczana jest Państwu w trzech identycznych egzemplarzach projektu architektoniczno-budowlanego służących do uzyskania pozwolenia na budowę jednego domu wraz z jednym, dwutomowym egzemplarzem projektu technicznego, który nie jest załączany do wniosku o pozwolenie na budowę i nie podlega urzędowemu zatwierdzeniu. Wszystkie projekty domów są zgodne z warunkami technicznymi WT 2021.
W projekcie architektoniczno-budowlanym opisane zostały podstawowe dane budynku, takie jak: zestawienie powierzchni pomieszczeń, warstwy budowlane, materiały wykończeniowe, dane dotyczące warunków ochrony przeciwpożarowej. Rysunki przedstawiają elewacje, rzuty fundamentów i wszystkich kondygnacji, rzut dachu oraz przekrój. Wykonane są w skali 1:100 za wyjątkiem przekrojów pokazanych w większej skali - 1:50.
Pierwszy tom projektu technicznego zawiera opis branż konstrukcyjnej, instalacji sanitarnych oraz wewnętrznych instalacji elektrycznych, a także charakterystykę energetyczną oraz analizę środowiskowo-ekonomiczną. Na rysunkach konstrukcyjnych pokazane są fundamenty wraz z przekrojami szczegółowymi oraz rzut konstrukcji i stropu, na którym zlokalizowane są wszystkie elementy z podaniem sposobu ich zbrojenia, więźba wraz z zestawieniem drewna oraz zestawienie stolarki otworowej. Projekt instalacji elektrycznych obejmuje rozdzielnicę budynku i lokalizację wszystkich gniazd wtykowych, źródeł światła i wyłączników, fotowoltaikę oraz schematy instalacji odgromowej. W części instalacji sanitarnych zawarte są rzuty kondygnacji z poszczególnymi instalacjami (w zakresie wewnętrznej instalacji wod.-kan, c.o., gazu i wentylacji mechanicznej z rekuperacją) oraz rozwinięcia. Drugi tom projektu technicznego stanowią obliczenia konstrukcyjne.
Darmowy zielony pakiet do projektu oznacza, że w tej samej cenie można otrzymać wariant z ogrzewaniem przy zastosowaniu ekologicznej pompy ciepła powietrze-woda i podłogówką we wszystkich pomieszczeniach, zamiast standardowego pieca gazowego zasilającego stalowe grzejniki płytowe.
Prosimy podczas składania zamówienia poinformować nas o wybranej opcji centralnego ogrzewania, która ma znaleźć się w dokumentacji.
Bezpłatna zgoda na zmiany na etapie adaptacji: do każdego z projektów wydajemy całkowicie bezpłatną zgodę na wprowadzenie praktycznie dowolnych zmian dopasowujących domek do indywidualnych wymagań inwestora. Radzimy jednak bezwzględnie wprowadzić je jeszcze przed uzyskaniem pozwolenia na budowę i przy udziale adaptujących też inne branże, nie tylko architekturę. Szczególne polecany jest udział konstruktora, jeżeli zmieniane są poszczególne elementy konstrukcyjne lub wręcz cały schemat konstrukcji. Prosimy nie zapomnieć o podaniu planowanych zmian podczas składania zamówienia na projekt, ale można też o zgodę wystąpić w dowolnym terminie już po jego zakupie.
Polecane projekty
Dodatki
Bezpłatne dodatki
GratisZestaw umów
GratisZmiany w projekcie
GratisZielony pakiet z pompą ciepła
GratisTablica budowy
GratisDziennik budowy
Płatne dodatki

Kosztorys stanu deweloperskiego
950 zł













