- Typ projektuWolnostojący
- StylDworkowy
- Powierzchnia użytkowa351.85 m²
- KondygnacjePiętrowy
- GarażTrzystanowiskowy lub więcej
- Kąt nach. dachu27°
- Odbicie lustrzaneNie
- Czas realizacjimax. czas realizacji 10 dni Zobacz więcej >
Opis
Zgodność z WT 2021 i Eurokodami
Ze względu na dostosowywanie projektu do standardu WT 2021, czas realizacji może się różnić od standardowego.
Skontaktuj się z nami aby poznać szczegóły dotyczące wybranego projektu.
Opis projektu
Wariant domku w wersji z garażem trzystanowiskowym oraz większą powierzchnią techniczną.
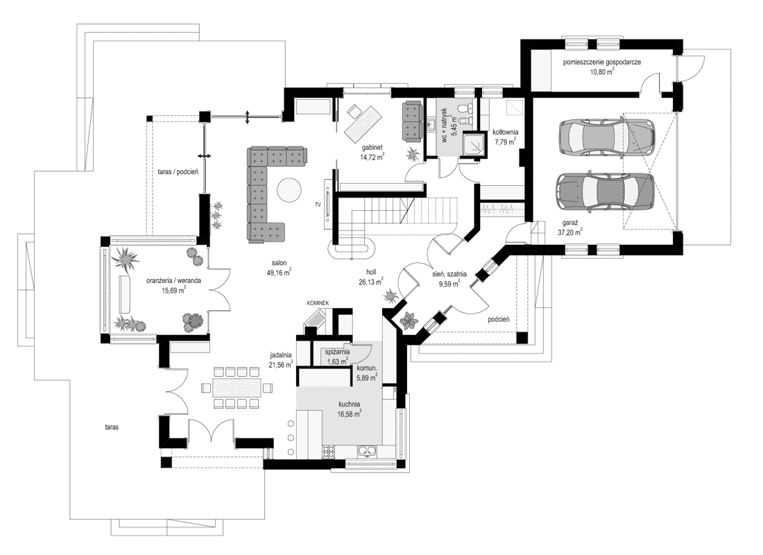
Projekt domu Malibu to wspaniała podmiejska rezydencja na ładną działkę. Budynek urzeka pięknymi otwarciami pomieszczeń na ogród, oraz bardzo reprezentacyjnym wejściem. Piętrowy dom, zaprojektowano łącząc ze sobą trzy bryły: dwukondygnacyjną główną bryłę budynku, oraz dwie parterowe z poddaszami - garażową i kryjącą kuchnię i jadalnię. Wejście ze ściętego narożnika, przez podcień stanowi złamanie formy typowego wejścia do rezydencji. Inspiracją przy projektowaniu domu Malibu były wzory śródziemnomorskich, włoskich czy francuskich willi, co zdecydowanie wyróżnia go spośród architektury polskiej tradycji dworkowej. Złamanie zasady symetrii bryły i wnętrza dało wolność w kształtowaniu funkcji poszczególnych pomieszczeń. Dom Malibu, jak na rezydencję w południowym stylu przystało otoczony jest tarasami, podcieniami, dużymi przeszkleniami, łączącymi wnętrze z otaczającym ogrodem. Dodatkowym urozmaiceniem są balkony i tarasy na piętrze. Wnętrze domu to: otwarta jednoprzestrzenna część dzienna, z salonem, jadalnią, pięknie przeszkloną oranżerią, reprezentacyjnym holem i częściowo otwartą kuchnią. Dodatkowo na parterze zaplanowano pokój - gabinet, oraz garaż i pomieszczenia techniczne. Na piętrze mieszczą się cztery sypialnie z garderobami i dwiema łazienkami, oraz pralnia, pokój rekreacyjny nad garażem, oraz osobne schody na strych nad piętrem, gdzie można zaaranżować duży pokój - studio, lub pozostawić strych. Budynek jest duży, reprezentacyjny, ale zaprojektowano go bez niepotrzebnej rozrzutności, z dbałością o funkcjonalność każdego fragmentu wnętrza. Pracownia posiada projekt domu Malibu w odbiciu lustrzanym.
Konstrukcja
- Fundamentybetonowe ławy i ściany fundamentowe z bloczków betonowych
- Ściany zewnętrzneściany murowane - pustaki porotherm 25 + styropian + tynk cienkowarstwowy
- StropTeriva
- Elewacjetynk cienkowarstwowy na styropianie
- Pokrycie dachudachówka
Rzuty
Dane techniczne
- Powierzchnia użytkowa351.85 m²
- Powierzchnia netto364 m²
- Powierzchnia zabudowy294.56 m²
- KominekTak
- Liczba łazienek3
- Liczba pokoi7
- Powierzchnia dachu387.75 m²
- Kubatura2019 m³
- Długość domu24.6 m
- Szerokość domu18.16 m
- Wysokość domu10.34 m
- Poddaszestrych
- Minimalne wymiary działki32.6 x 31.6m
- GarażTrzystanowiskowy lub więcej
- Kąt nach. dachu27°
Koszty budowy
- Stan surowy297960 zł
- Stan surowy zamknięty465481 zł
- Koszt wykończenia456674 zł
- Koszt instalacji118352 zł
Zawartość projektu
W komplecie nowej wersji dokumentacji projektowej znajdują się 3 egzemplarze projektu architektoniczno-budowlanego oraz 3 egzemplarze projektu technicznego
Projekt architektoniczno-budowlany zawierający:
-opis architektoniczny z elementami konstrukcji,
-część rysunkowa: rzut parteru, poddasza/piętra, rzut dachu w skali 1:100, przekroje skala 1:50,
elewacje skala 1:100.
Projekt techniczny zawierający:
-opis techniczny i konstrukcyjny (obliczenia statyczne - w zależności od projektu włączone w projekt lub stanowiące odrębną teczkę).
Część rysunkowa architektura i konstrukcja:
-rzuty fundamentów, parteru, poddasza, stropu, więźby, dachu / w skali 1:50,
-przekroje przez budynek / budynek skali 1:50,
-elewacje budynku / w skali 1:50 (*niektóre projekty posiadają rysunki w skali 1:100 lub 1:75),
-zestawienie stolarki budowlanej okiennej i drzwiowej,
-szczegóły konstrukcji i ewentualne szczegóły budowlane,
Część instalacyjna:
-część opisowa do projektów instalacji elektrycznych, wodno-kanalizacyjnych, grzewczych, gazowych (jeśli występują).
Część rysunkowa do projektów instalacji:
-schematy instalacji elektrycznych, schemat rozdzielni, plan instalacji odgromowej,
-schematy instalacji wodno-kanalizacyjnej i ciepłej wody,
-schematy instalacji grzewczych,
-schemat instalacji gazowej (jeśli występują).
Do projektu dołączane jest zestawienie materiałowe, z wykazem elementów drewnianych oraz stali budowlanej.
Do projektu dołączone są kopie uprawnień wszystkich projektantów, oraz aktualne zaświadczenia o przynależności do izb zawodowych.
Projekt zawiera oświadczenie projektantów o poprawności projektu w świetle Prawa Budowlanego, a także zawiera informację dotyczącą bezpieczeństwa i ochrony zdrowia ( BIOZ).
Do projektu dołączona jest także zgoda na zmiany adaptacyjne. Zgoda dołączana jest do każdego projektu bezpłatnie. Na Państwa życzenie zakres zgody na zmiany możemy dowolnie rozszerzyć.
Pracownia zezwala na następujące zmiany i odstępstwa od projektu architektoniczno-budowlanego w trakcie jego przystosowywania do lokalizacji:
- Zmianę obrysu zewnętrznego ścian zewnętrznych.
- Zmianę obrysu wewnętrznego ścian zewnętrznych.
- Zmianę układu ścian wewnętrznych działowych.
- Zmianę funkcji, ilości i usytuowania poszczególnych pomieszczeń na dowolnej kondygnacji w projekcie.
- Zmianę ukształtowania, ilości i kąta nachylenia połaci dachowych.
- Zmianę ilości, umiejscowienia i wielkości otworów okiennych i drzwiowych.
- Zmianę rodzaju materiału i technologii wykonania ścian zewnętrznych oraz wewnętrznych oraz ścian fundamentowych.
- Zmianę rodzaju i technologii wykonania stropów nad dowolną kondygnacją.
- Zmianę umiejscowienia, kształtu i materiału wykonania schodów w budynku.
- Zmianę wielkości, kształtu i materiałów, bądź likwidacja: tarasów, podestów i balkonów.
- Likwidację lub dodanie dowolnej ilości:
- lukarn,
- wykuszy,
- podcieni,
- balkonów,
- loggii,
- kolumn,
- pilastrów,
- ganków,
- werand.
- Zmianę materiałów wykończeniowych, instalacyjnych, izolacyjnych.
- Zmianę rodzaju pokrycia dachowego.
- Doprojektowanie bądź likwidacja podpiwniczenia - częściowego lub całkowitego.
Dodatki
Bezpłatne dodatki
GratisZestaw umów
GratisZmiany w projekcie
PromocjaProjekt szamba szczelnego
GratisTablica budowy
GratisDziennik budowy
Płatne dodatki

Pakiet wentylacja mechaniczna i kominek DGP
550 zł

Kosztorys inwestorski
600 zł

Pakiet odkurzacz centralny
550 zł

Wersja elektroniczna projektu
600 zł

Pakiet instalacja solarna
550 zł

Pakiet ogrzewanie podłogowe
550 zł

Pakiet powietrzna pompa ciepła
550 zł

Pakiet płaszcz wodny
550 zł

Pakiet kotłownia na paliwo stałe
550 zł

Pakiet klimatyzacja w domu
550 zł

Projekt ogrodzenia
750 zł

Pakiet instalacja fotowoltaiczna
550 zł

Pakiet kominek z DGP
500 zł

Pakiet gruntowa pompa ciepła
550 zł

Projekt altan i grilów ogrodowych
850 zł

Dodatkowy egzemplarz do projektu
650 zł


























