- Typ projektuLetniskowy
- StylTradycyjny
- Powierzchnia użytkowa67.06 m²
- KondygnacjeParterowy, z poddaszem
- GarażBez garażu
- DachDwuspadowy
- Kąty nach. dachu35°, 45°
- Odbicie lustrzaneNie
- Czas realizacjimax. czas realizacji 10 dni Zobacz więcej >
Opis
Zgodność z WT 2021 i Eurokodami
Ze względu na dostosowywanie projektu do standardu WT 2021, czas realizacji może się różnić od standardowego.
Skontaktuj się z nami aby poznać szczegóły dotyczące wybranego projektu.
Opis projektu
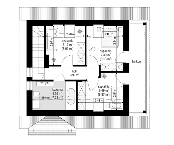
Projekt domu Milutki przeznaczony jest dla trzy-czteroosobowej rodziny. Dom został zaprojektowany jako jednorodzinny całoroczny, może też służyć jako budynek letniskowy. Prostokątny rzut parteru został przykryty dwuspadowym dachem, mieszczącym w sobie poddasze użytkowe. Ciekawą bryłę urozmaicono zadaszeniem tarasu i balkonem od strony ogrodu, oraz wspartym na dwóch kolumienkach daszkiem nad wejściem. Architektura domu łączy w sobie tradycyjną formę, z nowoczesnym detalem i materiałami. Projekt dzięki swojej bezpretensjonalności doskonale wpisuje się w każde otoczenie. Milutki dobrze będzie wyglądał i w górach, i na Mazurach :-). Wnętrze domu podzielono na część dzienną na parterze i sypialnie na poddaszu. Połączone pomieszczenia salonu, kuchni i holu tworzą dużą otwartą wspólną przestrzeń. Sprytnie umiejscowione schody na piętro są ozdobą pokoju dziennego. Centralnie umieszczony komin obsługuje zarówno kominek w salonie jak i kocioł w sąsiedniej kotłowni. Kotłownia zaprojektowana jako gazowa, może być łatwo dostosowana dla pieca na paliwo stałe. Na poddaszu znalazło się miejsce dla trzech niewielkich sypialni i łazienki. Ścianki działowe poddasza można łatwo i dowolnie przestawiać, zmieniając konfigurację pomieszczeń. Projekt domu Milutki uwzględnia bardzo dobre ocieplenia przegród. Dom jest energooszczędny - zastosowano w nim nowoczesne instalacje. Dzięki prostej i niedrogiej w realizacji konstrukcji z jednej strony i zastosowanym energooszczędnym technologiom z drugiej strony, dom będzie tani w budowie i późniejszej eksploatacji. Projekt domu Milutki jest idealną propozycją dla liczących pieniądze Inwestorów pragnących mieszkać w oszczędnym i uroczym domku jednorodzinnym. Pracownia posiada odbicie lustrzane projektu.
Konstrukcja
- Fundamentybetonowe ławy i ściany fundamentowe z bloczków betonowych
- Ściany zewnętrzneściany murowane - pustaki gazobeton 24 + styropian + tynk cienkowarstwowy
- StropTeriva
- Elewacjetynk cienkowarstwowy na styropianie
- Pokrycie dachudachówka ceramiczna
Rzuty
Dane techniczne
- Powierzchnia użytkowa67.06 m²
- Powierzchnia netto71.77 m²
- Powierzchnia zabudowy56.64 m²
- KominekTak
- Liczba łazienek2
- Liczba pokoi4
- Powierzchnia dachu123.53 m²
- Kubatura312 m³
- Długość domu7.28 m
- Szerokość domu7.78 m
- Wysokość domu7.89 m
- Poddaszeużytkowe
- Minimalne wymiary działki15.48 x 16.03m
- GarażBez garażu
- Rodzaj dachuDwuspadowy
- Kąty nach. dachu35°, 45°
Koszty budowy
- Stan surowy99673 zł
- Stan surowy zamknięty145211 zł
- Koszt wykończenia162419 zł
- Koszt instalacji73929 zł
Zawartość projektu
W komplecie nowej wersji dokumentacji projektowej znajdują się 3 egzemplarze projektu architektoniczno-budowlanego oraz 3 egzemplarze projektu technicznego
Projekt architektoniczno-budowlany zawierający:
-opis architektoniczny z elementami konstrukcji,
-część rysunkowa: rzut parteru, poddasza/piętra, rzut dachu w skali 1:100, przekroje skala 1:50,
elewacje skala 1:100.
Projekt techniczny zawierający:
-opis techniczny i konstrukcyjny (obliczenia statyczne - w zależności od projektu włączone w projekt lub stanowiące odrębną teczkę).
Część rysunkowa architektura i konstrukcja:
-rzuty fundamentów, parteru, poddasza, stropu, więźby, dachu / w skali 1:50,
-przekroje przez budynek / budynek skali 1:50,
-elewacje budynku / w skali 1:50 (*niektóre projekty posiadają rysunki w skali 1:100 lub 1:75),
-zestawienie stolarki budowlanej okiennej i drzwiowej,
-szczegóły konstrukcji i ewentualne szczegóły budowlane,
Część instalacyjna:
-część opisowa do projektów instalacji elektrycznych, wodno-kanalizacyjnych, grzewczych, gazowych (jeśli występują).
Część rysunkowa do projektów instalacji:
-schematy instalacji elektrycznych, schemat rozdzielni, plan instalacji odgromowej,
-schematy instalacji wodno-kanalizacyjnej i ciepłej wody,
-schematy instalacji grzewczych,
-schemat instalacji gazowej (jeśli występują).
Do projektu dołączane jest zestawienie materiałowe, z wykazem elementów drewnianych oraz stali budowlanej.
Do projektu dołączone są kopie uprawnień wszystkich projektantów, oraz aktualne zaświadczenia o przynależności do izb zawodowych.
Projekt zawiera oświadczenie projektantów o poprawności projektu w świetle Prawa Budowlanego, a także zawiera informację dotyczącą bezpieczeństwa i ochrony zdrowia ( BIOZ).
Do projektu dołączona jest także zgoda na zmiany adaptacyjne. Zgoda dołączana jest do każdego projektu bezpłatnie. Na Państwa życzenie zakres zgody na zmiany możemy dowolnie rozszerzyć.
Pracownia zezwala na następujące zmiany i odstępstwa od projektu architektoniczno-budowlanego w trakcie jego przystosowywania do lokalizacji:
- Zmianę obrysu zewnętrznego ścian zewnętrznych.
- Zmianę obrysu wewnętrznego ścian zewnętrznych.
- Zmianę układu ścian wewnętrznych działowych.
- Zmianę funkcji, ilości i usytuowania poszczególnych pomieszczeń na dowolnej kondygnacji w projekcie.
- Zmianę ukształtowania, ilości i kąta nachylenia połaci dachowych.
- Zmianę ilości, umiejscowienia i wielkości otworów okiennych i drzwiowych.
- Zmianę rodzaju materiału i technologii wykonania ścian zewnętrznych oraz wewnętrznych oraz ścian fundamentowych.
- Zmianę rodzaju i technologii wykonania stropów nad dowolną kondygnacją.
- Zmianę umiejscowienia, kształtu i materiału wykonania schodów w budynku.
- Zmianę wielkości, kształtu i materiałów, bądź likwidacja: tarasów, podestów i balkonów.
- Likwidację lub dodanie dowolnej ilości:
- lukarn,
- wykuszy,
- podcieni,
- balkonów,
- loggii,
- kolumn,
- pilastrów,
- ganków,
- werand.
- Zmianę materiałów wykończeniowych, instalacyjnych, izolacyjnych.
- Zmianę rodzaju pokrycia dachowego.
- Doprojektowanie bądź likwidacja podpiwniczenia - częściowego lub całkowitego.
Dodatki
Bezpłatne dodatki
GratisZestaw umów
GratisZmiany w projekcie
PromocjaProjekt szamba szczelnego
GratisTablica budowy
GratisDziennik budowy
Płatne dodatki

Pakiet wentylacja mechaniczna i kominek DGP
550 zł

Kosztorys inwestorski
600 zł

Pakiet odkurzacz centralny
550 zł

Wersja elektroniczna projektu
600 zł

Pakiet instalacja solarna
550 zł

Pakiet ogrzewanie podłogowe
550 zł

Pakiet powietrzna pompa ciepła
550 zł

Pakiet płaszcz wodny
550 zł

Pakiet kotłownia na paliwo stałe
550 zł

Pakiet klimatyzacja w domu
550 zł

Projekt ogrodzenia
750 zł

Pakiet instalacja fotowoltaiczna
550 zł

Pakiet kominek z DGP
500 zł

Pakiet gruntowa pompa ciepła
550 zł

Projekt altan i grilów ogrodowych
850 zł

Dodatkowy egzemplarz do projektu
650 zł























