Projekt domu MINESOTA dom letniskowy
- Typ projektuLetniskowy
- Powierzchnia użytkowa46.85 m²
- Kondygnacje
- GarażBez garażu
- DachDwuspadowy
- Kąt nach. dachu35°
- Odbicie lustrzaneTak
- Czas realizacjido 10 dni roboczych Zobacz więcej >
Opis
Zgodność z WT 2021 i Eurokodami
Ze względu na dostosowywanie projektu do standardu WT 2021, czas realizacji może się różnić od standardowego.
Skontaktuj się z nami aby poznać szczegóły dotyczące wybranego projektu.
Opis projektu
Projekt dostępny również jako CAŁOROCZNY!!!
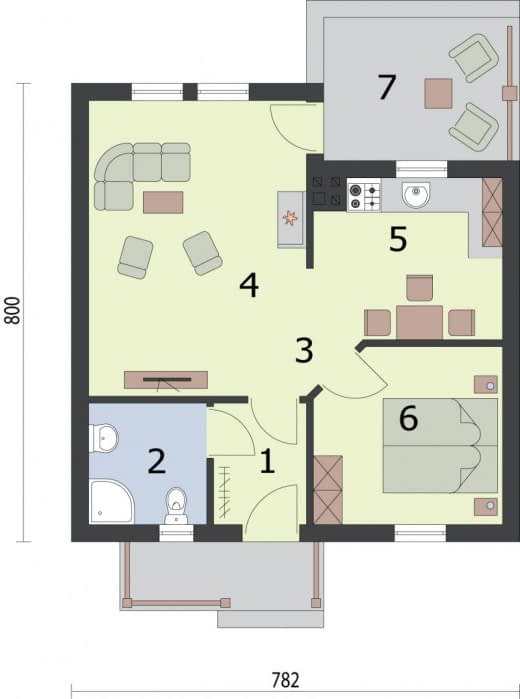
Ten projekt ma w sobie ten sam czar, który za sprawą piosenki Mieczysława Fogga, stał się szczytem marzeń dla wielu pokoleń Polaków. Minesota to właśnie taki "mały biały domek, który wciąż się śni". Pierwsze wrażenia, jakie sprawia można oddać poprzez słowa: elegancki, stonowany - bez zbędnych udziwnień, pełen spokojnego uroku. Zadaszone wejście, płynnie połączone z dwuspadowym dachem zachęca do odwiedzenia wnętrz. Weranda wiedzie do wiatrołapu, z którego przechodzi się do przedpokoju. Po lewej stronie znajduje się łazienka, natomiast po prawej stronie komunikacji jest dość obszerna sypialnia. Od przedpokoju na lewo usytuowany jest pokój dzienny z kominkiem, kuchnia jest półotwartym pomieszczeniem. Taras znajdujący się od północnej strony z pewnością będzie miejscem niejednej wesołej biesiady. Zadaszone wejście od południa zachęca do odwiedzenia wnętrz. Weranda wiedzie do wiatrołapu, z którego przechodzi się do przedpokoju. Po lewej stronie znajduje się łazienka, natomiast po prawej stronie komunikacji jest dość obszerna sypialnia. Od komunikacji na wprost usytuowany jest pokój dzienny z aneksem kuchennym, w którym znajduje się kominek. Jest to miejsce, które z pewnością w zimowe wieczory będzie skupiać życie wypoczywających w domu ludzi. Letnie dni z pewnością nierozłącznie będą kojarzyć się z czasem spędzonym w wesołej atmosferze przy grillu na tarasie. Projekt składa się z części architektonicznej, konstrukcyjnej, wewnętrznych instalacji wod.-kan, c. o. i elektrycznej. W projekcie załączone są podstawowe zestawienie stali, drewna i stolarki okienno-drzwiowej. Do projektu dołączamy bezpłatną zgodę na wprowadzenie zmian, oświadczenie projektantów o wykonaniu projektu zgodnie z obowiązującymi normami i przepisami oraz kserokopie uprawnień projektantów wraz z aktualnym wpisem do izby. W przypadku zamówienia projektu w technologii lekkiej, drewnianej konstrukcji szkieletowej, powierzchnia użytkowa budynku jest o około 7% większa
Konstrukcja
Technologia tradycyjna : - ściany zewnętrzne murowane grubości 30 cm, działowe gr. 12 cm. Wszystkie ściany wykonane z pustaków ceramicznych - konstrukcja więźby dachowej drewniana, pokrycie dachówka ceramiczna. - istnieje możliwość adaptacji obiektu na budynek całoroczny. Technologia szkieletu drewnianego : - ściany zewnętrzne : słupki 4x15 rozstawione max. co 40cm obite zewnątrz płytą OSB 3 1,2cm , a wewnątrz płytą GK 1,25cm , przestrzeń pomiędzy słupkami wypełniona wełną mineralną 15cm. - ściana wewnętrzna : słupki 4x7 rozstawione max. co 40cm obite z dwóch stron płytą GK 1,25cm przestrzeń pomiędzy słupkami wypełniona wełną mineralną 7cm - konstrukcja więźby dachowej drewniana, pokrycie dachówka ceramiczna. - istnieje możliwość adaptacji obiektu na budynek całoroczny
Rzuty
Rzut przyziemia
Dane techniczne
- Powierzchnia użytkowa46.85 m²
- Powierzchnia zabudowy57.94 m²
- Liczba pokoi6
- Kubatura323.9 m³
- Wysokość domu6.39 m
- Minimalne wymiary działki13.82 x 16.35m
- GarażBez garażu
- Rodzaj dachuDwuspadowy
- Kąt nach. dachu35°
Zawartość projektu
Projekty są dostępne w wersji książkowej, drukowanej w tak zwanym w nowym trybie 3 egzemplarze projektu architektoniczno-budowlanego oraz 3 egzemplarze projektu technicznego. Na życzenie przesyłamy rzuty i przekroje wersji podstawowych dokumentacji w formacie PDF
Każdy projekt architektoniczno-budowlany domu składa się z następujących części:
- strona tytułowa,
- oświadczenie
- część opisowa projektu architektoniczno-budowlanego,
- projektowana charakterystyka energetyczna z analizą,
- część rysunkowej projektu architektoniczno-budowlanego,
- zaświadczenia i uprawnienia.
Każdy projekt techniczny domu składa się z:
- strony tytułowej,
- oświadczenia,
- części opisowej projektu technicznego,
- części rysunkowej projektu technicznego,
- części konstrukcyjnej,
- zaświadczenia i uprawnień,
- zestawień drewna i stali,
-instalacji elektrycznej i odgromowej,
-instalacji sanitarnych, gazowych i centralnego ogrzewania.
Do projektu na życzenie dołączamy obliczenia statyczno-wytrzymałościowe.
Inwestor otrzymuje 3 opieczętowane sztuki projektu architektoniczno-budowlanego oraz 3 egzemplarze projektu technicznego tworzące komplet, każdy z plombą zabezpieczającą i oryginalnym hologramem biura.
Pierwszy egzemplarz tomu I zawiera zgodę in blanco na wszystkie zmiany wprowadzane do projektu po zakupie przez lokalnego wybranego na własną rękę przez Inwestora architekta adaptującego/kierownika budowy. Do teczki projektów dołączamy także zaświadczenia i aktualne wpisy do Izb autorów projektu oraz wpisy aktualne na czas sporządzenia projektu.
Dodatki
Bezpłatne dodatki
GratisZestaw umów
GratisZmiany w projekcie
GratisTablica budowy
GratisDziennik budowy
Płatne dodatki

Kosztorys
470 zł

Dodatkowy egzemplarz projektu
450 zł

Projekt wentylacji mechanicznej z rekuperatorem
450 zł

Projekt fotowoltaiki dla domu
750 zł

Projekt instalacji z ogrzewaniem podłogowym
400 zł

Elektroniczna wersja projektu
600 zł








