Projekt domu MIRANDA
- Typ projektuWolnostojący
- Powierzchnia użytkowa116.73 m²
- Kondygnacjez poddaszem
- GarażJednostanowiskowy
- DachDwuspadowy
- Kąt nach. dachu40°
- Odbicie lustrzaneTak
- Czas realizacjido 10 dni roboczych Zobacz więcej >
Opis
Opis projektu
Konstrukcja
- powierzchnia zabudowy - 98,46m2
- kubatura - 655,45m3
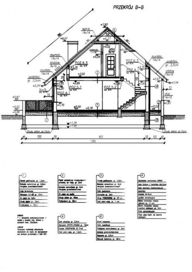
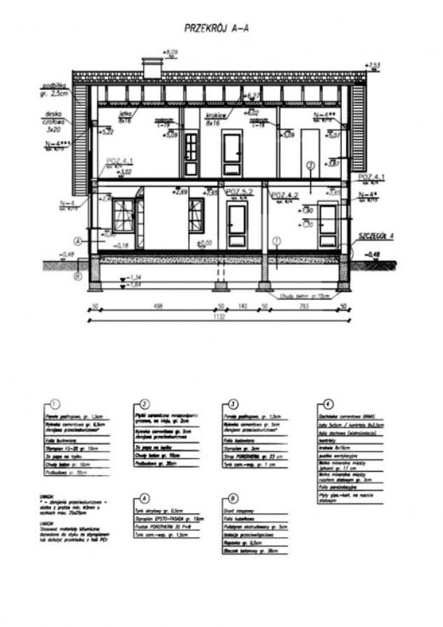
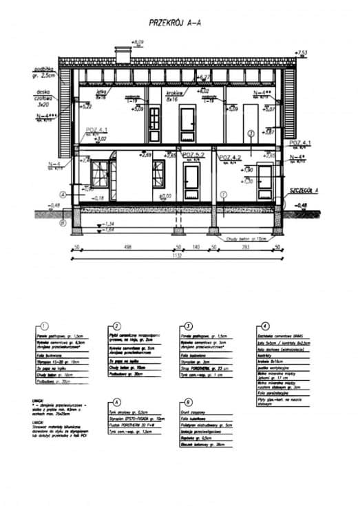
- ściany zewnętrzne murowane grubości 30 cm + 10 cm styropian
- ściany wewnętrzne (nośne) gr. 25 cm i działowe gr. 12 cm
- wszystkie ściany wykonane z pustaków ceramicznych "POROTHERM"
- strop gęstożebrowy "POROTHERM" o gr. 23 cm
- konstrukcja więźby dachowej drewniana w układzie krokwiowo-jętkowym
- pokrycie dachówka ceramiczna
- instalacja grzewcza: kocioł gazowy w kotłowni
Rzuty
- 4. Pokój dzienny25.82
- 2. Komunikacja8.06
- 5. Łazienka4.95
- 6. Kotłownia4.97
- 7. Garaż17.28
- 1. Wiatrołap3.97
- 3. Kuchnia z jadalnią9.74
Przekrój A-A
Przekrój B-B
Dane techniczne
- Powierzchnia użytkowa116.73 m²
- Powierzchnia zabudowy98.46 m²
- Liczba pokoi11
- Powierzchnia dachu179 m²
- Kubatura655.45 m³
- Wysokość domu8.01 m
- PoddaszeUżytkowe
- Minimalne wymiary działki19.4 x 17.2m
- GarażJednostanowiskowy
- Rodzaj dachuDwuspadowy
- Kąt nach. dachu40°
Zawartość projektu
Projekty są dostępne w wersji książkowej, drukowanej w tak zwanym w nowym trybie 3 egzemplarze projektu architektoniczno-budowlanego oraz 3 egzemplarze projektu technicznego. Na życzenie przesyłamy rzuty i przekroje wersji podstawowych dokumentacji w formacie PDF
Każdy projekt architektoniczno-budowlany domu składa się z następujących części:
- strona tytułowa,
- oświadczenie
- część opisowa projektu architektoniczno-budowlanego,
- projektowana charakterystyka energetyczna z analizą,
- część rysunkowej projektu architektoniczno-budowlanego,
- zaświadczenia i uprawnienia.
Każdy projekt techniczny domu składa się z:
- strony tytułowej,
- oświadczenia,
- części opisowej projektu technicznego,
- części rysunkowej projektu technicznego,
- części konstrukcyjnej,
- zaświadczenia i uprawnień,
- zestawień drewna i stali,
-instalacji elektrycznej i odgromowej,
-instalacji sanitarnych, gazowych i centralnego ogrzewania.
Do projektu na życzenie dołączamy obliczenia statyczno-wytrzymałościowe.
Inwestor otrzymuje 3 opieczętowane sztuki projektu architektoniczno-budowlanego oraz 3 egzemplarze projektu technicznego tworzące komplet, każdy z plombą zabezpieczającą i oryginalnym hologramem biura.
Pierwszy egzemplarz tomu I zawiera zgodę in blanco na wszystkie zmiany wprowadzane do projektu po zakupie przez lokalnego wybranego na własną rękę przez Inwestora architekta adaptującego/kierownika budowy. Do teczki projektów dołączamy także zaświadczenia i aktualne wpisy do Izb autorów projektu oraz wpisy aktualne na czas sporządzenia projektu.
Dodatki
Bezpłatne dodatki
GratisZestaw umów
GratisZmiany w projekcie
GratisTablica budowy
GratisDziennik budowy
Płatne dodatki

Kosztorys
370 zł

Dodatkowy egzemplarz projektu
450 zł

Projekt wentylacji mechanicznej z rekuperatorem
450 zł

Projekt fotowoltaiki dla domu
750 zł

Projekt instalacji z ogrzewaniem podłogowym
400 zł










