Projekt domu MODENA dom letniskowy
- Typ projektuLetniskowy
- Powierzchnia użytkowa45.76 m²
- KondygnacjeParterowy
- GarażJednostanowiskowy
- DachDwuspadowy
- Kąt nach. dachu30°
- Odbicie lustrzaneTak
- Czas realizacjido 10 dni roboczych Zobacz więcej >
Opis
Zgodność z WT 2021 i Eurokodami
Ze względu na dostosowywanie projektu do standardu WT 2021, czas realizacji może się różnić od standardowego.
Skontaktuj się z nami aby poznać szczegóły dotyczące wybranego projektu.
Opis projektu
Projekt dostępny również jako CAŁOROCZNY!!!
Zobacz czym różni się projekt domku letniskowego od domu całorocznego?
Modena to prześliczny domek letniskowy, który sprawi, że będziesz za nim tęsknić zaraz po tym jak skończy się urlop! Deskowany szczyt oraz drewniane wykończenia elewacji spowodują, że wyraźnie wyczujesz harmonię między tym uroczym budynkiem a naturą, która go otacza. Nieodparty podziw budzą drewniane okiennice, którymi każdego poranka do wnętrza domku zostaną wpuszczone promyki dopiero co wschodzącego słońca, dzięki którym już od pierwszej chwili dzień stanie się piękniejszy. Jeżeli jesteś otwarty na większą ilość światła, przy równie zachwycających okiennicach, to koniecznie zobacz Malabo! Nie musisz martwić się o stan portfela, ponieważ Modena została zaprojektowana tak, aby jej niewielka powierzchnia dachu, wynikająca z małego kontu jego nachylenia, skupiona była na niskich kosztach. Innymi słowy Modena to domek dla każdego! Wszystkie wygody, którymi dotychczas cieszyłeś się wyłącznie w domu/mieszkaniu zostaną zapewnione, gdyż w budynku znajdują się najpotrzebniejsze pomieszczenia użytku codziennego + dodatkowo garaż. Do tego domek został wyposażony w werandę, na której wspólne wakacyjne posiłki przyniosą nieograniczoną radość, oraz niewielki pomieszczenie gospodarcze.
Projekt składa się z części architektonicznej, konstrukcyjnej, wewnętrznych instalacji wod.-kan, c. o. i elektrycznej. W projekcie załączone są podstawowe zestawienie stali, drewna i stolarki okienno-drzwiowej. Do projektu dołączamy bezpłatną zgodę na wprowadzenie zmian, oświadczenie projektantów o wykonaniu projektu zgodnie z obowiązującymi normami i przepisami oraz kserokopie uprawnień projektantów wraz z aktualnym wpisem do izby. W przypadku zamówienia projektu w technologii lekkiej, drewnianej konstrukcji szkieletowej, powierzchnia użytkowa budynku jest o około 7% większa.
Konstrukcja
Technologia tradycyjna , ściany zewnętrzne murowane grubości 30 cm, działowe gr. 12 cm. Wszystkie ściany wykonane z pustaków ceramicznych \\"POROTHERM\\". Konstrukcja więźby dachowej drewniana, pokrycie dachówka ceramiczna. Istnieje możliwośc adaptacji obiektu na budynek całoroczny - docieplenie warstwą styropianu gr. 10 cm.
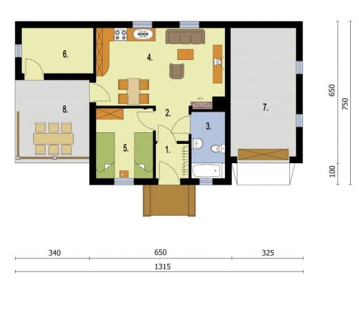
Rzuty
Rzut parteru
Dane techniczne
- Powierzchnia użytkowa45.76 m²
- Powierzchnia zabudowy79.02 m²
- Powierzchnia dachu135 m²
- Kubatura316 m³
- Wysokość domu4.96 m
- Minimalne wymiary działki15.5 x 21.2m
- GarażJednostanowiskowy
- Rodzaj dachuDwuspadowy
- Kąt nach. dachu30°
Zawartość projektu
Projekty są dostępne w wersji książkowej, drukowanej w tak zwanym w nowym trybie 3 egzemplarze projektu architektoniczno-budowlanego oraz 3 egzemplarze projektu technicznego. Na życzenie przesyłamy rzuty i przekroje wersji podstawowych dokumentacji w formacie PDF
Każdy projekt architektoniczno-budowlany domu składa się z następujących części:
- strona tytułowa,
- oświadczenie
- część opisowa projektu architektoniczno-budowlanego,
- projektowana charakterystyka energetyczna z analizą,
- część rysunkowej projektu architektoniczno-budowlanego,
- zaświadczenia i uprawnienia.
Każdy projekt techniczny domu składa się z:
- strony tytułowej,
- oświadczenia,
- części opisowej projektu technicznego,
- części rysunkowej projektu technicznego,
- części konstrukcyjnej,
- zaświadczenia i uprawnień,
- zestawień drewna i stali,
-instalacji elektrycznej i odgromowej,
-instalacji sanitarnych, gazowych i centralnego ogrzewania.
Do projektu na życzenie dołączamy obliczenia statyczno-wytrzymałościowe.
Inwestor otrzymuje 3 opieczętowane sztuki projektu architektoniczno-budowlanego oraz 3 egzemplarze projektu technicznego tworzące komplet, każdy z plombą zabezpieczającą i oryginalnym hologramem biura.
Pierwszy egzemplarz tomu I zawiera zgodę in blanco na wszystkie zmiany wprowadzane do projektu po zakupie przez lokalnego wybranego na własną rękę przez Inwestora architekta adaptującego/kierownika budowy. Do teczki projektów dołączamy także zaświadczenia i aktualne wpisy do Izb autorów projektu oraz wpisy aktualne na czas sporządzenia projektu.
Dodatki
Bezpłatne dodatki
GratisZestaw umów
GratisZmiany w projekcie
GratisTablica budowy
GratisDziennik budowy
Płatne dodatki

Kosztorys
470 zł

Dodatkowy egzemplarz projektu
450 zł

Projekt wentylacji mechanicznej z rekuperatorem
450 zł

Projekt fotowoltaiki dla domu
750 zł

Projekt instalacji z ogrzewaniem podłogowym
400 zł

Elektroniczna wersja projektu
600 zł








