- Typ projektuWolnostojący
- Powierzchnia użytkowa106.6 m²
- Kondygnacje
- GarażBez garażu
- DachDwuspadowy
- Kąt nach. dachu35°
- Odbicie lustrzaneTak
- Czas realizacjimax. czas realizacji 10 dni Zobacz więcej >
Opis
Zgodność z WT 2021 i Eurokodami
Ze względu na dostosowywanie projektu do standardu WT 2021, czas realizacji może się różnić od standardowego.
Skontaktuj się z nami aby poznać szczegóły dotyczące wybranego projektu.
Opis projektu
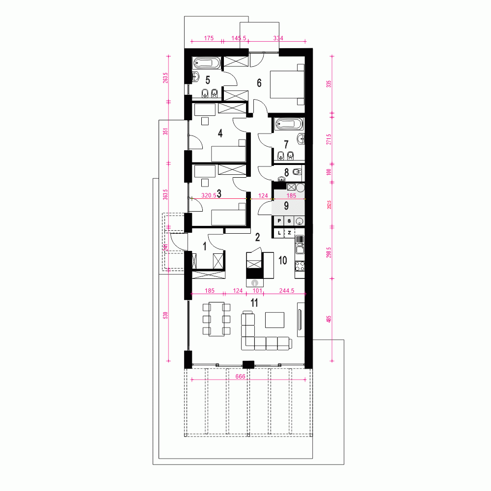
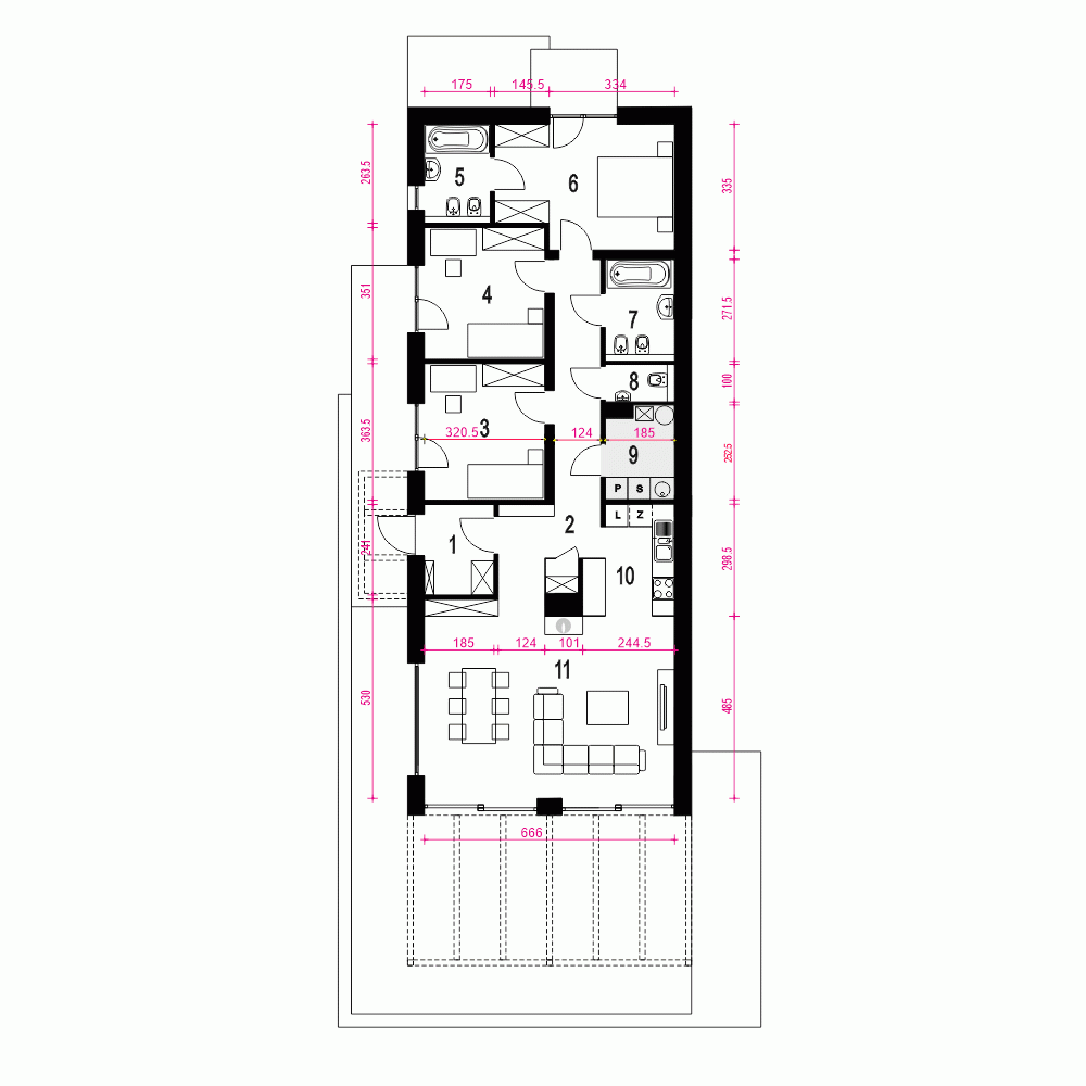
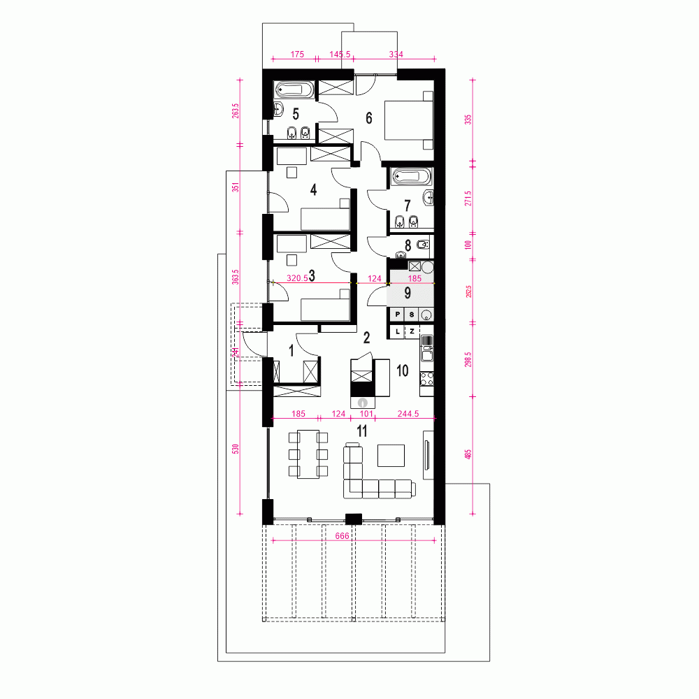
Projekt domu jednorodzinnego Natan II to projekt domu na wąską działkę, w układzie szczytowym względem frontu działki. Dom zaprojektowano na planie wydłużonego prostokąta, z prostym dwuspadowym dachem, z wykończeniem jednorodnym materiałem z nielicznymi elementami drewnianymi. Z jednej strony dom pozbawiony jest okien, co pozwala zbliżyć się budynkiem na co najmniej 3m od granicy działki. Jest to propozycja kompaktowego domu parterowego przeznaczonego dla czteroosobowej rodziny. Projekt przewiduje wygodną strefę dzienną (z salonem z wyjściem na częściowo zadaszony taras, z kuchnią, małym schowkiem - spiżarnią, wc oraz funkcjonalną strefę nocną (3 sypialnie, w tym jedna z prywatną łazienką i garderobą, duża ogólnodostępna łazienka z oknem oraz kotłownia). Dużym atutem tego domu jest salon, nad którym nie ma stropu a przestrzeń nad nim ograniczają dopiero połacie dachowe. Prosta konstrukcja domu i bryły, przełoży się na niskie koszty budowy, odczuwalne w trakcie realizacji inwestycji.
Konstrukcja
fundamenty: betonowe
ściany zewnętrzne: pustak ceram. porotherm+styropian termo organika
ściany wewnętrzne: pustak porotherm
rodzaj stropu: drewniany
elewacje: tynk strukturalny/okł. kamienna/klinkierowa
pokrycie dachu: dachówka cem. lub cer.
Rzuty
Parter
- m²
- 1. Wiatrołap4.3
- 2. Hol13.9
- 3. Sypialnia11.5
- 4. Sypialnia11.1
- 5. Łazienka4.5
- 6. Sypialnia z garderobą14.8
- 7. Łazienka4.9
- 8. WC1.8
- 9. Kotłownia+pralnia*4.3
- 10. Kuchnia6.4
- 11. Salon + jadalnia33.4
Przekrój
Usytuowanie na działce
Dane techniczne
- Powierzchnia użytkowa106.6 m²
- Powierzchnia zabudowy143.1 m²
- KominekTak
- Liczba łazienek2
- Liczba pokoi4
- Powierzchnia dachu175 m²
- Kubatura299 m³
- Długość domu18.9 m
- Szerokość domu7.6 m
- Wysokość domu6.1 m
- Minimalne wymiary działki26.9 x 14.6m
- GarażBez garażu
- Rodzaj dachuDwuspadowy
- Kąt nach. dachu35°
Instalacja grzewcza
- Instalacja grzewczaGaz
Zawartość projektu
Zgodnie ze znowelizowaną Ustawą Prawo Budowlane art.34 ust.3, na projekt budowlany składają się trzy części:
- projekt zagospodarowania działki lub terenu
- projekt architektoniczno-budowlany
- projekt techniczny
Nasze projekty oferujemy w 3 egzemplarzach, zawierających projekt architektoniczno-budowlany i projekt techniczny. Projekt zagospodarowania działki lub terenu nie wchodzi w skład projektu oferowanego do sprzedaży. Projekt ten należy zlecić we własnym zakresie lokalnemu projektantowi, który opracuje go na podstawie danych zawartych w projekcie architektoniczno-budowlanym i technicznym, po dostosowaniu projektu do warunków lokalnych i wymagań inwestora.
UWAGA: wszystkie egzemplarze projektu zabezpieczone są hologramami, w części rysunkowej posiadają nadruki zabezpieczające w kolorze zielonym. Zalecamy aby po otrzymaniu przesyłki kontrolować czy na pierwszych stronach projektu znajduje się hologram i czy na rysunkach widoczne są w/w nadruki potwierdzające oryginalność projektu.
Wyrażamy zgodę na wszelkie zmiany zgodne z obowiązującymi przepisami pod warunkiem wprowadzenia ich przez uprawnioną osobę.
Wszystkie zmiany wymienione powyżej powinny być naniesione na oryginał projektu katalogowego trwałą techniką graficzną w kolorze czerwonym lub dołączone jako aneks i podpisane przez osobę uprawnioną dokonująca adaptacji.
**ważne informacje
Projekt w fazie koncepcji dostępny z wydłużonym terminem realizacji. Przy zamówieniu ustalamy termin i pobieramy zadatek 50% podstawowej ceny projektu (jako koszty usługi przygotowania dokumentacji do standardu projektu gotowego, w przypadku rezygnacji z usługi, zadatek nie podlega zwrotowi).
Cena za dodatkowy egzemplarz projektu jest zależna od nazwy projektu!
Dodatki
Bezpłatne dodatki
GratisZestaw umów
GratisZmiany w projekcie
GratisTablica budowy
GratisDziennik budowy
Płatne dodatki

Kosztorys - stan wykończony
540 zł

Projekt wentylacji mechanicznej
1 000 zł







