- Typ projektuWolnostojący
- StylNowoczesny
- Powierzchnia użytkowa257.2 m²
- KondygnacjeParterowy, z poddaszem
- GarażDwustanowiskowy
- DachDwuspadowy
- Odbicie lustrzaneTak
- Czas realizacji5 dni roboczych Zobacz więcej >
Opis
Zgodność z WT 2021 i Eurokodami
Ze względu na dostosowywanie projektu do standardu WT 2021, czas realizacji może się różnić od standardowego.
Skontaktuj się z nami aby poznać szczegóły dotyczące wybranego projektu.
Opis projektu
Ta zaprojektowana w najdrobniejszych szczegółach willa nadaje nowego znaczenia określeniu „komfortowe życie”. W tym wypadku komfortowe życie oznacza życie na 257 m2, w luksusowym domu zapewniającym optymalną przestrzeń każdemu użytkownikowi.
Projekt NewHouse 728 idealnie wpisuje się na działki z wjazdem od południa.
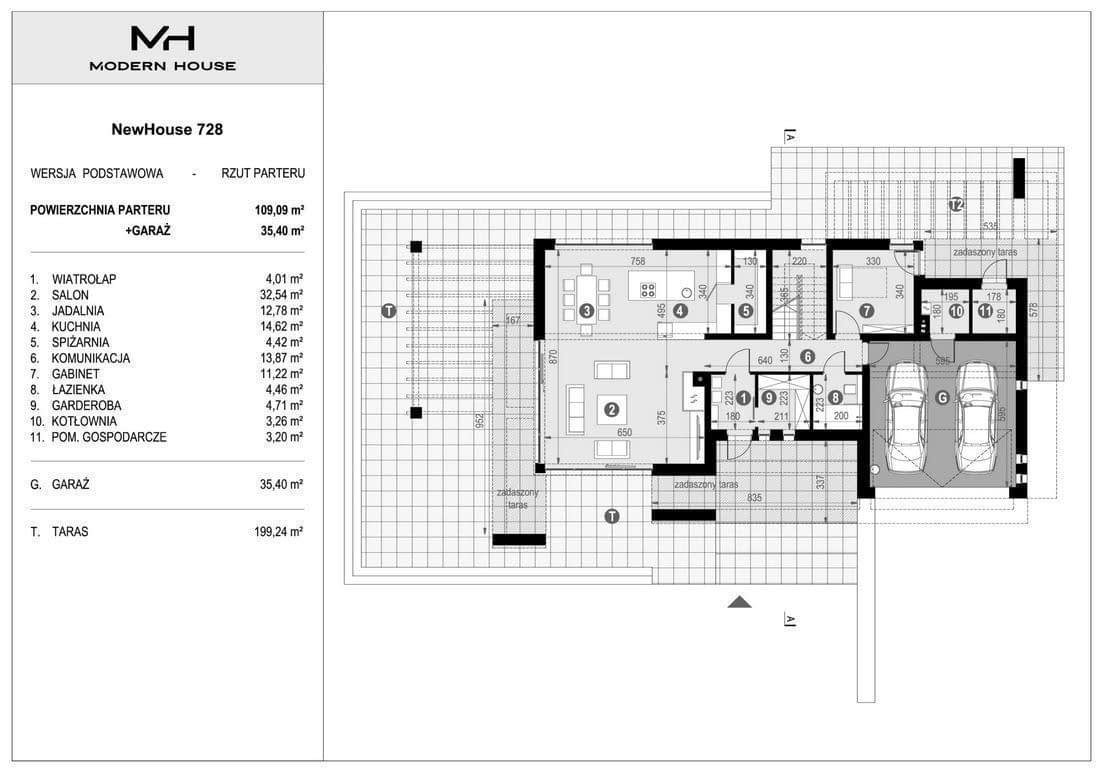
Na parterze najwięcej przestrzeni zajmuje przestronny salon (33 m2) z kominkiem, który wyróżnia się ogromnymi, panoramicznymi przeszkleniami. To one zapewniają, że wnętrza tej nowoczesnej willi będą zawsze idealnie doświetlone. Jeśli zechcesz być jeszcze bliżej światła, natury, ogrodu – z salonu wystarczy zrobić krok, by znaleźć się na ogromnym tarasie skrytym pod charakterystycznym dla naszej pracowni belkowaniem. Łączna powierzchnia tarasu okalającego tę nowoczesną willę wynosi 199 m2.
Dzienną przestrzeń powiększa jadalnia (13 m2), przy której zaplanowano kuchnię (15 m2). Wyjątkowości tym pomieszczeniom nadaje niezwykłe okno, przez które możecie podziwiać piękno swojego ogrodu. Utrzymaniu porządku w kuchni pomoże duża spiżarnia (4 m2), gdzie zmieści się wiele składników czy sprzętów AGD. Podobną pomocniczą rolę pełnić będzie garderoba (5 m2), pomieszczenie gospodarcze (3 m2) oraz kotłownia (3 m2).
Na parterze tego jednorodzinnego domu przewidziano pokaźnych rozmiarów gabinet (11 m2), posiadający własne wyjście na zadaszony taras.
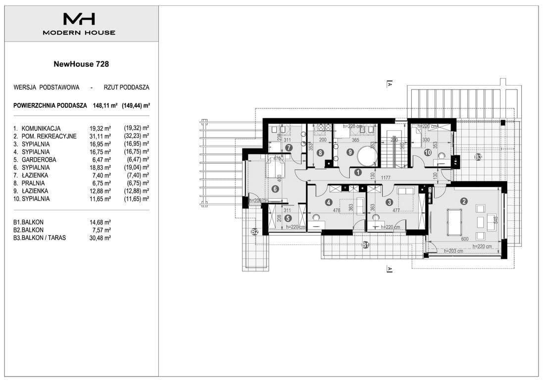
Poddasze (148 m2) to strefa prywatna, przeznaczona dla domowników. Mieszczą się tu cztery przestronne sypialnie (11, dwie po 17 oraz 19 m2). Główna sypialnia dysponuje prywatną łazienką i garderobą, to tzw. master bedroom. Na poddaszu jest również ogólnodostępna łazienka (13 m2). Na uwagę zasługuje duże pomieszczenie rekreacyjne (31 m2), które można zaadoptować na przykład na własną siłownię, spa lub dużą bawialnię.
Częścią nowoczesnej willi NewHouse 728 jest mieszczący dwa pojazdy garaż.
Rzuty
Dane techniczne
- Powierzchnia użytkowa257.2 m²
- Powierzchnia zabudowy208.23 m²
- Liczba łazienek3
- Liczba pokoi5
- Kubatura1499 m³
- Długość domu22.12 m
- Szerokość domu26.41 m
- Wysokość domu8.95 m
- PoddaszeUżytkowe
- Minimalne wymiary działki25.12 x 30.73m
- GarażDwustanowiskowy
- Rodzaj dachuDwuspadowy
Instalacja grzewcza
- Instalacja opcjonalna
Zawartość projektu
Zgodnie z obowiązującym Rozporządzeniem Ministra Rozwoju w sprawie szczegółowego zakresu i formy projektu budowlanego dokumentacja projektowa składa się z 3 egzemplarzy projektu architektoniczno – budowlanego oraz 3 egzemplarzy projektu technicznego.
W skład projektu architektoniczno – budowlanego wchodzi:
- opis techniczny zgodny z §20 ust. 1 pkt 1 – 4 , 6 – 13 w/w Rozporządzenia,
- rzuty wszystkich kondygnacji w zakresie niezbędnym do przedstawienia układu funkcjonalno- -przestrzennego i rozwiązań architektoniczno-budowlanych,
- charakterystyczne przekroje, w zakresie niezbędnym do przedstawienia układu funkcjonalno-przestrzennego, z nawiązaniem do poziomu terenu, ukazujące powiązanie z podłożem oraz przyległymi obiektami,
- widoki elewacji oraz dachu lub przekrycia w liczbie dostatecznej do wyjaśnienia formy architektonicznej obiektu budowlanego, w tym jego wyglądu zewnętrznego ze wszystkich widocznych stron, ze wskazaniem materiałów wykończeniowych i kolorystyki,
- zestawienie stolarki okiennej i drzwiowej,
- zestawienie więźby dachowej.
W skład projektu technicznego wchodzi:
I. Projekt konstrukcji:
- opis techniczny wraz z obliczeniami statycznymi,
- rysunki techniczne,
- zestawienie stali zbrojeniowej.
II. Projekt wewnętrznych instalacji sanitarnych:
- opis techniczny instalacji wodno-kanalizacyjnej, centralnego ogrzewania, instalacji gazowej, wentylacji mechanicznej,
- obliczenia instalacyjne,
- rysunki techniczne rozwiązań instalacyjnych.
III. Projekt wewnętrznych instalacji elektrycznych:
- opis techniczny instalacji elektrycznych,
- schematy instalacji elektrycznych,
- rysunki techniczne.
Osoba dokonująca adaptacji projektu może bez dodatkowej zgody autora wprowadzić następujące zmiany do opracowania:
- Zmiana materiałów ściennych i izolacyjnych – przy zachowaniu odpowiedniej wytrzymałości i ciepłochronności oraz odpowiedniego, założonego oporu dyfuzyjnego i innych właściwości fizykochemicznych dla wybranych przegród,
- Zmiana rodzaju stropów wraz z dostosowaniem układu konstrukcyjnego budynku przy zachowaniu wymaganej wytrzymałości oraz izolacji akustycznej,
- Zmiana materiałów wykończeniowych: posadzek, tynków, pokrycia dachu, izolacji przy zachowaniu niezbędnych parametrów wytrzymałościowych oraz parametrów przenikania ciepła,
- Zmiana kolorystyki i wykończenia elewacji,
- Zmiana zewnętrznych wymiarów budynku w granicach do 5% przy zachowaniu dopuszczalnych wymiarów rozpiętości konstrukcji wynikających z zastosowanych materiałów i technologii oraz z zachowaniem odpowiednich (zgodnych z przepisami) izolacji termicznych ścian zewnętrznych,
- Zmiana wymiarów fundamentów wynikająca z dostosowania obiektu do warunków gruntowych i głębokości przemarzania gruntu oraz zmiana ław na płytę fundamentową,
- Zmiana wymiarów przekrojów lub rozstawu elementów więźby dachowej wynikająca z dostosowania konstrukcji dachu budynku do odpowiedniej strefy obciążenia śniegiem i wiatrem,
- Zmiana kąta nachylenia połaci dachu max. o 10° oraz wysięgu okapów – po dokonaniu dodatkowych obliczeń konstrukcyjnych,
- Zmiana ustroju więźby dachowej przy zachowaniu odpowiedniej wytrzymałości i nośności konstrukcji dachu oraz z zachowaniem głównych założeń geometrycznych dachu,
- Zmiana wielkości i kształtu tarasu naziemnego lub rezygnacja z niego,
- Zmiana rozwiązań funkcjonalnych wewnątrz budynku polegająca m.in. na przesunięciu lub likwidacji ścian działowych,
- Zmiana lokalizacji, ilości i kształtu okien oraz drzwi przy zachowaniu charakteru i estetyki elewacji oraz wymaganej izolacyjności, doświetlenia pomieszczeń oraz warunków ewakuacji,
- Wprowadzenie częściowego lub całkowitego podpiwniczenia budynku – po dokonaniu dodatkowych obliczeń konstrukcyjnych,
- Zmiany w projektach instalacji wodno-kanalizacyjnej, c.o., elektrycznej oraz gazowej i wentylacji mechanicznej (jeżeli występuje) przy zachowaniu obowiązujących norm i przepisów, a wynikające ze zmian materiałowych, typów dobranych urządzeń i dostępności mediów na działce budowlanej,
- Zmiana sposobu wentylacji budynku z wentylacji grawitacyjnej na wentylację mechaniczną (lub odwrotnie) oraz zmiana źródła ciepła po dokonaniu dodatkowych opracowań.
Dodatki
Bezpłatne dodatki
GratisZestaw umów
GratisZmiany w projekcie
GratisTablica budowy
GratisDziennik budowy
GratisProjekt w wersji pdf
Płatne dodatki

Zbiornik na nieczystości (szambo)
450 zł

Projekt dodatkowego ogrzewania podłogowego
500 zł

Pompa ciepła powietrzna + ogrzewanie podłogowe
800 zł

Szczegółowy kosztorys inwestorski
450 zł

Dodatkowy egzemplarz projektu
500 zł














