Projekt domu NewHouse 770 w1
Promocja ważna do
01-04-2026
- Typ projektuWolnostojący
- StylTradycyjny
- Powierzchnia użytkowa166.17 m²
- KondygnacjeParterowy
- GarażDwustanowiskowy
- DachWielospadowy
- Odbicie lustrzaneTak
- Czas realizacji30 dni roboczych Zobacz więcej >
Opis
Zgodność z WT 2021 i Eurokodami
Ze względu na dostosowywanie projektu do standardu WT 2021, czas realizacji może się różnić od standardowego.
Skontaktuj się z nami aby poznać szczegóły dotyczące wybranego projektu.
Opis projektu
NewHouse 770 w1 to wyjątkowo przemyślany parterowy projekt domu z 4 sypialniami.
Sercem domu jest przestronny salon o powierzchni 45 m² z kominkiem. Otwarta kuchnia z dużym narożnym przeszkleniem została zaprojektowana z myślą o codziennej wygodzie i estetyce. Centralnym elementem kuchni jest funkcjonalny półwysep z płytą grzewczą oraz siedziskami, idealny na szybkie śniadania, poranną kawę czy rozmowy w trakcie gotowania. Całość uzupełnia praktyczna spiżarnia, która pozwala utrzymać porządek i doskonałą ergonomię pracy .
Projekt NewHouse 770 w1 oferuje aż 4 komfortowe sypialnie: sypialnia małżeńska została zaprojektowana jako prywatna strefa typu master bedroom – z własną łazienką i garderobą, trzy pokoje dziecięce.
Do dyspozycji mieszkańców pozostają dwie łazienki ogólnodostępne: główna – z wanną i prysznicem, dwoma umywalkami, toaletą i bidetem, druga – z prysznicem, idealna dla dzieci lub gości. Całość uzupełnia pralnia połączona z kotłownią.
Od strony wejścia zaprojektowano wiatrołap z dużą garderobą, który zapewnia porządek i wygodę już od progu.
Konstrukcja
- Fundamenty tradycyjne - na ławach fundamentowych
- Ściany dwuwarstwowe pustak ceramiczny 25 cm + styropian 20 cm / wełna minera 16 cm
- Strop żelbetowy wylewany
- Dach tradycyjna więźba dachowa pokryta dachówką ceramiczną
- Elewacja tynk w kolorze białym i grafitowym, połączony z drewnem elewacyjnym lub lamelami elewacyjnymi Super Premium Qulanti oraz szarym tynkiem o strukturze betonu
- Ogrzewanie gazowe- piec kondensacyjny, ogrzewanie podłogowe we wszystkich pomieszczeniach
- Wentylacja mechaniczna z rekuperacją
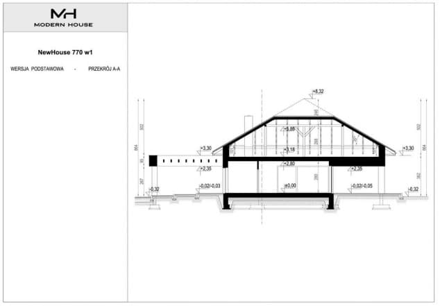
Rzuty
Dane techniczne
- Powierzchnia użytkowa166.17 m²
- Powierzchnia zabudowy251.8 m²
- Liczba łazienek3
- Liczba pokoi4
- Kubatura1375 m³
- Długość domu20.8 m
- Szerokość domu16.15 m
- Wysokość domu8.64 m
- Minimalne wymiary działki28.65 x 24.15m
- GarażDwustanowiskowy
- Rodzaj dachuWielospadowy
Instalacja grzewcza
- Instalacja opcjonalna
Zawartość projektu
Zgodnie z obowiązującym Rozporządzeniem Ministra Rozwoju w sprawie szczegółowego zakresu i formy projektu budowlanego dokumentacja projektowa składa się z 3 egzemplarzy projektu architektoniczno – budowlanego oraz 3 egzemplarzy projektu technicznego.
W skład projektu architektoniczno – budowlanego wchodzi:
- opis techniczny zgodny z §20 ust. 1 pkt 1 – 4 , 6 – 13 w/w Rozporządzenia,
- rzuty wszystkich kondygnacji w zakresie niezbędnym do przedstawienia układu funkcjonalno- -przestrzennego i rozwiązań architektoniczno-budowlanych,
- charakterystyczne przekroje, w zakresie niezbędnym do przedstawienia układu funkcjonalno-przestrzennego, z nawiązaniem do poziomu terenu, ukazujące powiązanie z podłożem oraz przyległymi obiektami,
- widoki elewacji oraz dachu lub przekrycia w liczbie dostatecznej do wyjaśnienia formy architektonicznej obiektu budowlanego, w tym jego wyglądu zewnętrznego ze wszystkich widocznych stron, ze wskazaniem materiałów wykończeniowych i kolorystyki,
- zestawienie stolarki okiennej i drzwiowej,
- zestawienie więźby dachowej.
W skład projektu technicznego wchodzi:
I. Projekt konstrukcji:
- opis techniczny wraz z obliczeniami statycznymi,
- rysunki techniczne,
- zestawienie stali zbrojeniowej.
II. Projekt wewnętrznych instalacji sanitarnych:
- opis techniczny instalacji wodno-kanalizacyjnej, centralnego ogrzewania, instalacji gazowej, wentylacji mechanicznej,
- obliczenia instalacyjne,
- rysunki techniczne rozwiązań instalacyjnych.
III. Projekt wewnętrznych instalacji elektrycznych:
- opis techniczny instalacji elektrycznych,
- schematy instalacji elektrycznych,
- rysunki techniczne.
Osoba dokonująca adaptacji projektu może bez dodatkowej zgody autora wprowadzić następujące zmiany do opracowania:
- Zmiana materiałów ściennych i izolacyjnych – przy zachowaniu odpowiedniej wytrzymałości i ciepłochronności oraz odpowiedniego, założonego oporu dyfuzyjnego i innych właściwości fizykochemicznych dla wybranych przegród,
- Zmiana rodzaju stropów wraz z dostosowaniem układu konstrukcyjnego budynku przy zachowaniu wymaganej wytrzymałości oraz izolacji akustycznej,
- Zmiana materiałów wykończeniowych: posadzek, tynków, pokrycia dachu, izolacji przy zachowaniu niezbędnych parametrów wytrzymałościowych oraz parametrów przenikania ciepła,
- Zmiana kolorystyki i wykończenia elewacji,
- Zmiana zewnętrznych wymiarów budynku w granicach do 5% przy zachowaniu dopuszczalnych wymiarów rozpiętości konstrukcji wynikających z zastosowanych materiałów i technologii oraz z zachowaniem odpowiednich (zgodnych z przepisami) izolacji termicznych ścian zewnętrznych,
- Zmiana wymiarów fundamentów wynikająca z dostosowania obiektu do warunków gruntowych i głębokości przemarzania gruntu oraz zmiana ław na płytę fundamentową,
- Zmiana wymiarów przekrojów lub rozstawu elementów więźby dachowej wynikająca z dostosowania konstrukcji dachu budynku do odpowiedniej strefy obciążenia śniegiem i wiatrem,
- Zmiana kąta nachylenia połaci dachu max. o 10° oraz wysięgu okapów – po dokonaniu dodatkowych obliczeń konstrukcyjnych,
- Zmiana ustroju więźby dachowej przy zachowaniu odpowiedniej wytrzymałości i nośności konstrukcji dachu oraz z zachowaniem głównych założeń geometrycznych dachu,
- Zmiana wielkości i kształtu tarasu naziemnego lub rezygnacja z niego,
- Zmiana rozwiązań funkcjonalnych wewnątrz budynku polegająca m.in. na przesunięciu lub likwidacji ścian działowych,
- Zmiana lokalizacji, ilości i kształtu okien oraz drzwi przy zachowaniu charakteru i estetyki elewacji oraz wymaganej izolacyjności, doświetlenia pomieszczeń oraz warunków ewakuacji,
- Wprowadzenie częściowego lub całkowitego podpiwniczenia budynku – po dokonaniu dodatkowych obliczeń konstrukcyjnych,
- Zmiany w projektach instalacji wodno-kanalizacyjnej, c.o., elektrycznej oraz gazowej i wentylacji mechanicznej (jeżeli występuje) przy zachowaniu obowiązujących norm i przepisów, a wynikające ze zmian materiałowych, typów dobranych urządzeń i dostępności mediów na działce budowlanej,
- Zmiana sposobu wentylacji budynku z wentylacji grawitacyjnej na wentylację mechaniczną (lub odwrotnie) oraz zmiana źródła ciepła po dokonaniu dodatkowych opracowań.
Dodatki
Bezpłatne dodatki
GratisZestaw umów
GratisZmiany w projekcie
GratisTablica budowy
GratisDziennik budowy
GratisProjekt w wersji pdf
Płatne dodatki

Zbiornik na nieczystości (szambo)
450 zł

Projekt dodatkowego ogrzewania podłogowego
500 zł

Pompa ciepła powietrzna + ogrzewanie podłogowe
800 zł

Szczegółowy kosztorys inwestorski
450 zł

Dodatkowy egzemplarz projektu
500 zł













