- Typ projektuWolnostojący
- StylNowoczesny
- Powierzchnia użytkowa178.05 m²
- KondygnacjePiętrowy
- GarażDwustanowiskowy
- Kąt nach. dachu25°
- Odbicie lustrzaneNie
- Czas realizacjimax. czas realizacji 10 dni Zobacz więcej >
Opis
Zgodność z WT 2021 i Eurokodami
Ze względu na dostosowywanie projektu do standardu WT 2021, czas realizacji może się różnić od standardowego.
Skontaktuj się z nami aby poznać szczegóły dotyczące wybranego projektu.
Opis projektu
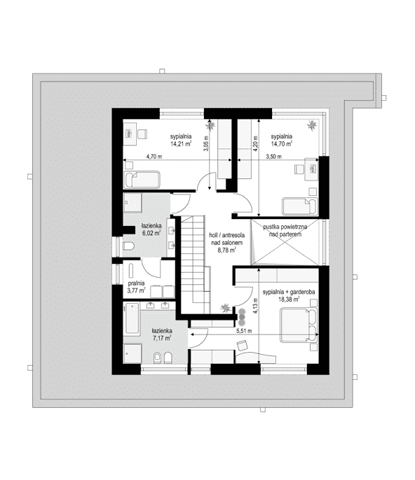
Projekt domu Orkan jest propozycją nowoczesnej, komfortowej willi miejskiej, będącej spełnieniem marzeń o wygodnym życiu w otoczeniu pięknych przedmiotów. Projekt domu Orkan ma oryginalną formę i stylistykę. Łączy w sobie cechy domu piętrowego z domem parterowym, z mocno przenikającym się wnętrzem z otaczającym ogrodem. Dzięki cofnięciu głównego piętrowego rdzenia budynku uzyskaliśmy bardziej rozczłonkowaną, bliższą ludzkiej skali bryłę domu. Taki zabieg wprowadził do architektury projektu właściwe proporcje i skalę. Dom jest jednocześnie duży i mały, wysoki i niski, rozległy i zwarty w sobie. Sylwetkę budynku zaprojektowano wprowadzając wzajemnie kontrastujące ze sobą fragmenty jasnych i ciemnych ścian. Duże przeszklenia okien i drzwi balkonowych dobrze doświetlają wnętrze i łączą pomieszczenia z ogrodem. Na parterze zaprojektowano otwartą część dzienną, z salonem, jadalnią, holem z pięknie wyeksponowanymi schodami, oraz kuchnią. Na dolnej kondygnacji mamy też - co jest rzadkością w niedużych domach piętrowych - dwa dodatkowe pokoje : apartament sypialny z łazienką i garderobą i pokój - gabinet. Dzięki temu mamy w projekcie pięć pokoi i salon. Na parterze mieści się podwójny garaż i kotłownia. Na piętrze znajdują się trzy sypialnie, dwie łazienki i pralnia. Kondygnacje połączone są ze sobą otworem schodowym z dwukondygnacyjną ścianą – galerią, oraz dodatkowo pustką nad jadalnią z antresolą na piętrze (pustkę można też zabudować dodając kolejny pokój na piętrze). Orkan ma dość prostą konstrukcję, zaprojektowano go z energooszczędnych nowoczesnych materiałów. Koszty utrzymania budynku nie będą wysokie. Projekt domu Orkan jest doskonałą propozycją dla osób zamierzających budować dom piętrowy, ale chcący czegoś bardziej oryginalnego niż zwykła piętrowa kostka, a jednocześnie pragnących domu o nowoczesnej architekturze. Zapraszamy !
Konstrukcja
- Fundamentybetonowe ławy i ściany fundamentowe z bloczków betonowych
- Ściany zewnętrzneściany murowane - pustaki porotherm 25 + styropian
- Stropmonolityczny betonowy
- Elewacjetynk cienkowarstwowy
- Pokrycie dachudachówka
Rzuty
Dane techniczne
- Powierzchnia użytkowa178.05 m²
- Powierzchnia netto183.82 m²
- Powierzchnia zabudowy181.68 m²
- KominekTak
- Liczba łazienek4
- Liczba pokoi6
- Powierzchnia dachu158.5 m²
- Kubatura983 m³
- Długość domu14.41 m
- Szerokość domu13.82 m
- Wysokość domu8.9 m
- Minimalne wymiary działki22.41 x 21.07m
- GarażDwustanowiskowy
- Kąt nach. dachu25°
Koszty budowy
- Stan surowy320685 zł
- Stan surowy zamknięty403742 zł
- Koszt wykończenia326435 zł
- Koszt instalacji105876 zł
Zawartość projektu
W komplecie nowej wersji dokumentacji projektowej znajdują się 3 egzemplarze projektu architektoniczno-budowlanego oraz 3 egzemplarze projektu technicznego
Projekt architektoniczno-budowlany zawierający:
-opis architektoniczny z elementami konstrukcji,
-część rysunkowa: rzut parteru, poddasza/piętra, rzut dachu w skali 1:100, przekroje skala 1:50,
elewacje skala 1:100.
Projekt techniczny zawierający:
-opis techniczny i konstrukcyjny (obliczenia statyczne - w zależności od projektu włączone w projekt lub stanowiące odrębną teczkę).
Część rysunkowa architektura i konstrukcja:
-rzuty fundamentów, parteru, poddasza, stropu, więźby, dachu / w skali 1:50,
-przekroje przez budynek / budynek skali 1:50,
-elewacje budynku / w skali 1:50 (*niektóre projekty posiadają rysunki w skali 1:100 lub 1:75),
-zestawienie stolarki budowlanej okiennej i drzwiowej,
-szczegóły konstrukcji i ewentualne szczegóły budowlane,
Część instalacyjna:
-część opisowa do projektów instalacji elektrycznych, wodno-kanalizacyjnych, grzewczych, gazowych (jeśli występują).
Część rysunkowa do projektów instalacji:
-schematy instalacji elektrycznych, schemat rozdzielni, plan instalacji odgromowej,
-schematy instalacji wodno-kanalizacyjnej i ciepłej wody,
-schematy instalacji grzewczych,
-schemat instalacji gazowej (jeśli występują).
Do projektu dołączane jest zestawienie materiałowe, z wykazem elementów drewnianych oraz stali budowlanej.
Do projektu dołączone są kopie uprawnień wszystkich projektantów, oraz aktualne zaświadczenia o przynależności do izb zawodowych.
Projekt zawiera oświadczenie projektantów o poprawności projektu w świetle Prawa Budowlanego, a także zawiera informację dotyczącą bezpieczeństwa i ochrony zdrowia ( BIOZ).
Do projektu dołączona jest także zgoda na zmiany adaptacyjne. Zgoda dołączana jest do każdego projektu bezpłatnie. Na Państwa życzenie zakres zgody na zmiany możemy dowolnie rozszerzyć.
Pracownia zezwala na następujące zmiany i odstępstwa od projektu architektoniczno-budowlanego w trakcie jego przystosowywania do lokalizacji:
- Zmianę obrysu zewnętrznego ścian zewnętrznych.
- Zmianę obrysu wewnętrznego ścian zewnętrznych.
- Zmianę układu ścian wewnętrznych działowych.
- Zmianę funkcji, ilości i usytuowania poszczególnych pomieszczeń na dowolnej kondygnacji w projekcie.
- Zmianę ukształtowania, ilości i kąta nachylenia połaci dachowych.
- Zmianę ilości, umiejscowienia i wielkości otworów okiennych i drzwiowych.
- Zmianę rodzaju materiału i technologii wykonania ścian zewnętrznych oraz wewnętrznych oraz ścian fundamentowych.
- Zmianę rodzaju i technologii wykonania stropów nad dowolną kondygnacją.
- Zmianę umiejscowienia, kształtu i materiału wykonania schodów w budynku.
- Zmianę wielkości, kształtu i materiałów, bądź likwidacja: tarasów, podestów i balkonów.
- Likwidację lub dodanie dowolnej ilości:
- lukarn,
- wykuszy,
- podcieni,
- balkonów,
- loggii,
- kolumn,
- pilastrów,
- ganków,
- werand.
- Zmianę materiałów wykończeniowych, instalacyjnych, izolacyjnych.
- Zmianę rodzaju pokrycia dachowego.
- Doprojektowanie bądź likwidacja podpiwniczenia - częściowego lub całkowitego.
Dodatki
Bezpłatne dodatki
GratisZestaw umów
GratisZmiany w projekcie
PromocjaProjekt szamba szczelnego
GratisTablica budowy
GratisDziennik budowy
Płatne dodatki

Pakiet wentylacja mechaniczna i kominek DGP
550 zł

Kosztorys inwestorski
600 zł

Pakiet odkurzacz centralny
550 zł

Wersja elektroniczna projektu
600 zł

Pakiet instalacja solarna
550 zł

Pakiet ogrzewanie podłogowe
550 zł

Pakiet powietrzna pompa ciepła
550 zł

Pakiet płaszcz wodny
550 zł

Pakiet kotłownia na paliwo stałe
550 zł

Pakiet klimatyzacja w domu
550 zł

Projekt ogrodzenia
750 zł

Pakiet instalacja fotowoltaiczna
550 zł

Pakiet kominek z DGP
500 zł

Pakiet gruntowa pompa ciepła
550 zł

Projekt altan i grilów ogrodowych
850 zł

Dodatkowy egzemplarz do projektu
650 zł






















