- Typ projektuWolnostojący
- StylNowoczesny
- Powierzchnia użytkowa118.98 m²
- KondygnacjeParterowy, z poddaszem
- GarażBez garażu
- DachDwuspadowy
- Kąt nach. dachu36°
- Odbicie lustrzaneTak
- Czas realizacjimax. czas realizacji 10 dni Zobacz więcej >
Opis
Zgodność z WT 2021 i Eurokodami
Ze względu na dostosowywanie projektu do standardu WT 2021, czas realizacji może się różnić od standardowego.
Skontaktuj się z nami aby poznać szczegóły dotyczące wybranego projektu.
Opis projektu
Wygodny dom z poddaszem, w którym na parterze zaprojektowano otwartą część dzienną która stanowi duży, słoneczny salon połączony z aneksem kuchennym. Ponadto na tej kondygnacji znajdują się pomieszczenia łazienki i kotłowni. W strefie nocnej na poddaszu przewidziano trzy sypialnie i dwie łazienki.Rzuty
Parter
- 1.1 - wiatrołap5.28 m²
- 1.2 - komunikacja7.71 m²
- 1.3 - łazienka3.51 m²
- 1.4 - kotłownia7.49 m²
- 1.5 - salon45.21 m²
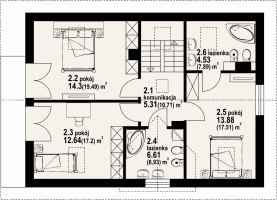
Poddasze
- 2.1 - komunikacja5.31 m²
- 2.2 - pokój14.3 m²
- 2.3 - pokój12.64 m²
- 2.4 - łazienka6.61 m²
- 2.5 - pokój13.88 m²
- 2.6 - łazienka4.53 m²
Sytuacja
Dane techniczne
- Powierzchnia użytkowa118.98 m²
- Powierzchnia netto155.05 m²
- Powierzchnia zabudowy99 m²
- KominekTak
- Liczba łazienek3
- Liczba pokoi4
- Powierzchnia dachu162.92 m²
- Kubatura517.5 m³
- Wysokość domu7.81 m
- Minimalne wymiary działki20.02 x 16.52m
- GarażBez garażu
- Rodzaj dachuDwuspadowy
- Kąt nach. dachu36°
Instalacja grzewcza
- Instalacja grzewczakomplet instalacji, kocioł na paliwo stałe lub kocioł gazowy
Koszty budowy
- Koszt budowy163929 zł
- Koszt wykończenia148480 zł
- Koszt instalacji69771 zł
Zawartość projektu
Zamówiony u nas projekt gotowy otrzymacie Państwo w komplecie składającym się z trzech egzemplarzy projektu architektoniczno-budowlanego wykonanego zgodnie z przepisami Prawa budowlanego (Prawo budowlane - tekst jednolity, Dz. U. 2020 poz. 1333).
Część opisowa projektu architektoniczno-budowlanego składa się z:
opisu architektonicznego zawierającego m.in. opis przyjętych rozwiązań, zestawienia powierzchni (użytkowej, zabudowy, netto), kubatury oraz powierzchni poszczególnych pomieszczeń.
Część rysunkowa projektu architektoniczno-budowlanego składa się między innymi z:
rzutów kondygnacji użytkowych (parteru i jeśli występują: poddasza, piętra, piwnic),
rzutu dachu,
przekroi poprzecznych i ewentualnie podłużnych,
elewacji,
zestawienia stolarki okiennej i drzwiowej.
Ponadto projekt gotowy obejmuje trzy egzemplarze opracowań branżowych stanowiące części projektu technicznego, a mianowicie:
projekt konstrukcji,
projekt instalacji wodno-kanalizacyjnej,
projekt instalacji centralnego ogrzewania,
projekt instalacji gazowej (jeżeli występuje),
projekt instalacji elektrycznej i odgromowej.
Część opisowa projektu technicznego składa się z:
- opisu konstrukcyjnego zawierającego m.in. opis materiałów, z których wykonane są elementy konstrukcyjne, obliczenia statyczne wraz z przyjętymi obciążeniami, zestawienia drewna konstrukcyjnego i zestawienie stali,
- opisu instalacji centralnego ogrzewania, wod-kan, gazowej (jeżeli występuje), elektrycznej i odgromowej precyzującego przyjęte w tych branżach rozwiązania, sposób wykonania instalacji i zapotrzebowania na poszczególne media.
Część rysunkowa projektu technicznego składa się między innymi z:
- rzutu fundamentów,
- rzutów konstrukcyjnych poszczególnych kondygnacji,
- rysunków niezbędnych elementów konstrukcyjnych, zbrojenia płyt oraz innych elementów żelbetowych,
- rzutu więźby dachowej,
- rzutów instalacji centralnego ogrzewania oraz schematu technologicznego kotłowni (jeżeli występują),
- rzutów instalacji wod-kan,
- rzutów oraz rozwinięcia instalacji gazowej (jeżeli występuje),
- rzutów instalacji elektrycznej,
- schematu tablicy TM,
- rzutu instalacji odgromowej.
Do dokumentacji dołączone są projektowana charakterystyka energetyczna, kopie uprawnień oraz przynależności do izb zawodowych projektantów oraz standardowa zgoda na zmiany w projekcie. Komplet dokumentacji znajduje się w praktycznej i estetycznej teczce.
Inne warianty tego projektu
Polecane projekty
Dodatki
Bezpłatne dodatki
GratisZestaw umów
GratisZmiany w projekcie
GratisTablica budowy
GratisDziennik budowy
Płatne dodatki

Dodatkowy egzemplarz projektu
500 zł













