- Typ projektuWolnostojący
- Powierzchnia użytkowa119.7 m²
- KondygnacjeParterowy
- GarażBez garażu
- DachDwuspadowy
- Kąt nach. dachu45°
- Odbicie lustrzaneTak
- Czas realizacjido 5 dni roboczych Zobacz więcej >
Opis
Zgodność z WT 2021 i Eurokodami
Ze względu na dostosowywanie projektu do standardu WT 2021, czas realizacji może się różnić od standardowego.
Skontaktuj się z nami aby poznać szczegóły dotyczące wybranego projektu.
Opis projektu
Projekt Pag A to idealny dom dla miłośników minimalizmu. Charakteryzuje się on prostą bryłą, dwuspadowym dachem, nowoczesnymi lukarnami i garażem jednostanowiskowym. Ze względu na nieduże gabaryty, projekt ten nadaje się na stosunkowo wąskie działki.
Salon, kuchnia oraz jadalnia tworzą jedną przestrzeń i stanowią komfortową strefę dzienną domu. Takie rozwiązanie zapewnia przyszłym mieszkańcom nieograniczone możliwości w aranżacji wnętrza. Kuchnia z wyspą usytuowana została od strony ogrodu w sąsiedztwie obszernego tarasu. Salon z dużymi oknami i wyjściem na boczny taras, zaprojektowany został od frontu domu co umożliwia lokalizację tego projektu na działkach z wjazdem od południa. Dwustronny kominek wizualnie oddziela kuchnię z jadalnią od salonu i dodatkowo dogrzewa całą przestrzeń parteru. Na parterze domu zaprojektowano ponadto spiżarnię obok kuchni, pralnię w sąsiedztwie w.c. oraz pomieszczenie gospodarcze. Do garażu dostajemy się poprzez wiatrołap.
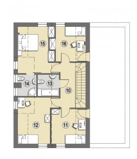
Strefa nocna na poddaszu to cztery komfortowe sypialnie i wspólna łazienka. Sypialnia gospodarzy posiada własną, jasną łazienkę z prysznicem oraz wnęki na pojemne szafy. Z dwóch sypialni przewidziano wyjście na taras nad garażem. Przemyślany układ pomieszczeń obu kondygnacji, zapewnia przyszłym mieszkańcom, komfort użytkowania.
Nowoczesny charakter elewacji ma ogromny wpływ na wnętrze domu. Duże przeszklenia powodują, że strefa dzienna płynnie łączy się z przydomowym ogrodem, a całe wnętrze jest jasne i zyskuje nowoczesny charakter.
Na zewnątrz dom charakteryzuje prosta w budowie bryła oraz oszczędne detale. Ze względu na ponadczasowy i uniwersalny charakter, oraz tradycyjne materiały projekt domu Pag A doskonale wkomponuje się w każde otoczenie.
Rzuty
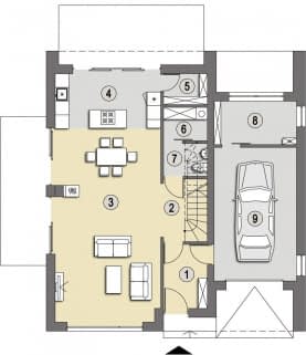
Parter
- m²
- 1. wiatrołap5.2
- 2. korytarz2.6
- 3. pokój dzienny + jadalnia38.5
- 4. kuchnia10.8
- 5. spiżarnia2.5
- 6. pralnia2.7
- 7. w.c.2.7
- 8. pom. gospodarcze6.9
- 9. garaż21.1
Poddasze
Dane techniczne
- Powierzchnia użytkowa119.7 m²
- Powierzchnia zabudowy138.8 m²
- Wysokość domu8.29 m
- PoddaszeUżytkowe
- Minimalne wymiary działki20.24 x 19.34m
- GarażBez garażu
- Rodzaj dachuDwuspadowy
- Kąt nach. dachu45°
Zawartość projektu
Projekty są oferowane w formie zgodnej z nowym Prawem Budowlanym i składają się z 3 egzemplarzy projektu architektoniczno-budowlanych i 3 egzemplarzy projektu technicznego.
Nowelizacja ustawy prawa budowlanego wprowadziła podział projektu budowlanego na:
- projekt techniczny
- projekt architektoniczno-budowlany
- projekt zagospodarowania działki lub terenu, (wykonuje miejscowy projektant adaptujący)
Projekt zagospodarowania działki lub terenu, obejmujący usytuowanie budynku, układ komunikacyjny oraz informacje dotyczące obszaru oddziaływania obiektu wraz z projektem architektoniczno-budowlanym będą tą częścią projektu budowlanego, która będzie zatwierdzana przez organ administracji architektoniczno-budowlanej. Projekt techniczny nie będzie przedkładany do urzędu i zatwierdzany, natomiast ma być przekazany kierownikowi budowy.
Projekt architektoniczno-budowlany zawiera:
- opis architektoniczny z elementami konstrukcji,
- część rysunkowa:
- rzut parteru, poddasza/piętra, rzut dachu w skali1:100,
- przekroje, skala 1:50,
- elewacje, skala 1:100.
Projekt techniczny zawiera:
- opis techniczny i konstrukcyjny - obliczenia statyczne,
- część rysunkowa architektura i konstrukcja:
- rzuty fundamentów, parteru, poddasza, stropu, więźby, dachu w skali 1:100,
- przekroje przez budynek w skali 1:75,
- elewacje budynku w skali 1:100
- zestawienie stolarki okiennej i drzwiowej,
- szczegóły konstrukcji. - część instalacyjna:
- część opisowa do projektów instalacji elektrycznych, wodno-kanalizacyjnych, grzewczych, gazowych (jeśli występują), - część rysunkowa do projektów instalacji:
- schemat instalacji elektrycznych, schemat rozdzielni,
- schemat instalacji wodno-kanalizacyjnej i ciepłej wody,
- schemat instalacji grzewczych,
- schemat instalacji gazowej (jeśli występuje).
Do projektu dołączone są również:
- kopie uprawnień wszystkich projektantów oraz zaświadczenia o przynależności do izb zawodowych,
- oświadczenie projektantów o poprawności projektu w świetle Prawa Budowlanego,
- informacje dotyczące bezpieczeństwa i ochrony zdrowia w zakresie budynku (BIOZ),
- zgoda na zmiany adaptacyjne.
Zmiany, które będziesz chciał wprowadzić uwzględnimy w treści dokumentu, który bezpłatnie dołączamy do każdego zamówionego projektu (Autorska zgoda na zmiany w projekcie) i zostaną one naniesione na projekt przez architekta adaptującego. W treści standardowo dołączanego dokumentu znajdują się:
- Dostosowanie budynku do warunków gruntowych.
- Zmiana wymiarów fundamentów, wynikająca z dostosowania obiektu do warunków gruntowych.
- Wprowadzenie całkowitego lub częściowego podpiwniczenia budynku - pod warunkiem nie przekroczenia poziomu posadzki na parterze o 50 cm ponad poziom terenu.
- Zmiana wymiarów przekrojów lub rozstawu elementów więźby dachowej, wynikająca z dostosowania budynku do odpowiedniej strefy śniegowej lub wiatrowej.
- Zmiana rodzaju stropów - przy zachowaniu układu konstrukcji.
- Zmiana warstw ścian zewnętrznych - przy zachowaniu współczynnika przenikalności cieplnej.
- Zmiana kąta nachylenia dachu do 5°- przy zwróceniu uwagi na nośność elementów więźby dachowej.
- Zmiana instalacji wodno - kanalizacyjnej, gazowej, CO, elektrycznej - przy zachowaniu obowiązujących norm.
- Zmiana materiałów wykończeniowych - posadzek, tynków, dachówki, izolacji cieplnej i przeciwwilgociowej - przy zachowaniu niezbędnych parametrów wytrzymałości (szczególnie dla zmiany pokrycia dachowego) oraz parametrów przenikania ciepła.
- Zmiana rozwiązań funkcjonalnych wewnątrz budynku poprzez przesunięcie lub likwidację ścian działowych.
- Zmiana usytuowania, ilości i kształtu okien oraz drzwi.
- Zmiana projektu polegająca na wykonaniu lustrzanego odbicia budynku.
- Zmiana konstrukcji - szerokości biegów schodowych, liczby stopni i wymiarów schodów.
- Zmiana pokrycia dachowego - przy zachowaniu zaprojektowanych spadków i ciężaru pokrycia.
- Dobudowanie garażu lub wiaty garażowej.
Dodatki
Bezpłatne dodatki
GratisZestaw umów
GratisZmiany w projekcie
GratisTablica budowy
GratisDziennik budowy
GratisProjektowana charakterystyka energetyczna
Płatne dodatki

Projekt wentylacji mechanicznej z rekuperacją
750 zł

Ogrzewanie podłogowe
700 zł

















