- Typ projektuWolnostojący
- Powierzchnia użytkowa122.8 m²
- Kondygnacje
- GarażJednostanowiskowy
- DachDwuspadowy
- Kąt nach. dachu35°
- Odbicie lustrzaneTak
- Czas realizacjimax. czas realizacji 10 dni Zobacz więcej >
Opis
Zgodność z WT 2021 i Eurokodami
Ze względu na dostosowywanie projektu do standardu WT 2021, czas realizacji może się różnić od standardowego.
Skontaktuj się z nami aby poznać szczegóły dotyczące wybranego projektu.
Opis projektu
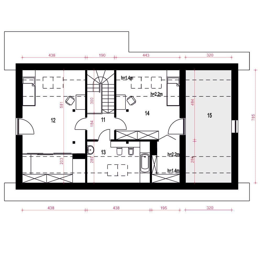
Paprotka z garażem to projekt oszczędnego domu z dwuspadowym dachem, idealnego dla czteroosobowej rodziny. Główne wejście prowadzi do wiatrołapu z praktycznymi szafami, a stamtąd do holu ze schodami, który dzieli przestrzeń na sypialnię i część dzienną. Obok schodów znajduje się funkcjonalna sypialnia dwuosobowa, a naprzeciwko - niewielka łazienka z prysznicem i pralką. Dalej korytarzem mamy dostęp do pomieszczenia technicznego i garażu.Strefa dzienna obejmuje salon z kuchnią i jadalnią. Przy kuchni zlokalizowano użyteczną spiżarnię oraz kominek, a salon łączy się z ogrodem poprzez zadaszony taras. W centralnej części tej strefy znajduje się miejsce na jadalnię. Wygodne schody prowadzą na poddasze, gdzie umieszczono dwie duże sypialnie z garderobami oraz wspólną łazienkę. Z jednej z sypialń mozna dostać się na strych nad garażem. Pod schodami przewidziano praktyczną garderobę.Ten projekt reprezentuje propozycję ekonomicznego i ekologicznego domu, doskonale nadającego się do zamieszkania przez cały rok, ze względu na uniwersalną architekturę.
Konstrukcja
Rzuty
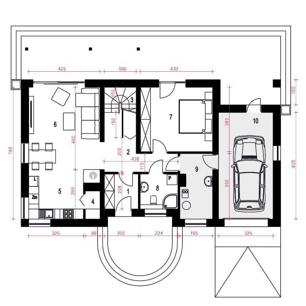
Parter
- m²
- 1. Wiatrołap4.1
- 2. Hol z garderobą9.4
- 3. Schody4.1
- 4. Spiżarnia1.4
- 5. Kuchnia7
- 6. Salon23.9
- 7. Pokój16.3
- 8. Łazienka4.5
- 9. Pom. techniczne CO*7.2
- 10. Garaż*20.4
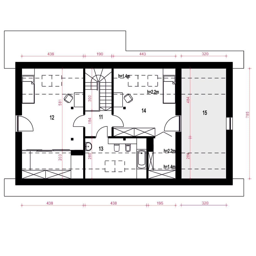
Piętro
Dane techniczne
- Powierzchnia użytkowa122.8 m²
- Powierzchnia zabudowy135.9 m²
- KominekTak
- Liczba łazienek2
- Liczba pokoi4
- Powierzchnia dachu230.5 m²
- Kubatura451 m³
- Długość domu8.9 m
- Szerokość domu15.6 m
- Wysokość domu7.7 m
- Minimalne wymiary działki16.9 x 23.6m
- GarażJednostanowiskowy
- Rodzaj dachuDwuspadowy
- Kąt nach. dachu35°
Instalacja grzewcza
- Instalacja grzewczaGaz
Zawartość projektu
Zgodnie ze znowelizowaną Ustawą Prawo Budowlane art.34 ust.3, na projekt budowlany składają się trzy części:
- projekt zagospodarowania działki lub terenu
- projekt architektoniczno-budowlany
- projekt techniczny
Nasze projekty oferujemy w 3 egzemplarzach, zawierających projekt architektoniczno-budowlany i projekt techniczny. Projekt zagospodarowania działki lub terenu nie wchodzi w skład projektu oferowanego do sprzedaży. Projekt ten należy zlecić we własnym zakresie lokalnemu projektantowi, który opracuje go na podstawie danych zawartych w projekcie architektoniczno-budowlanym i technicznym, po dostosowaniu projektu do warunków lokalnych i wymagań inwestora.
UWAGA: wszystkie egzemplarze projektu zabezpieczone są hologramami, w części rysunkowej posiadają nadruki zabezpieczające w kolorze zielonym. Zalecamy aby po otrzymaniu przesyłki kontrolować czy na pierwszych stronach projektu znajduje się hologram i czy na rysunkach widoczne są w/w nadruki potwierdzające oryginalność projektu.
Wyrażamy zgodę na wszelkie zmiany zgodne z obowiązującymi przepisami pod warunkiem wprowadzenia ich przez uprawnioną osobę.
Wszystkie zmiany wymienione powyżej powinny być naniesione na oryginał projektu katalogowego trwałą techniką graficzną w kolorze czerwonym lub dołączone jako aneks i podpisane przez osobę uprawnioną dokonująca adaptacji.
**ważne informacje
Projekt w fazie koncepcji dostępny z wydłużonym terminem realizacji. Przy zamówieniu ustalamy termin i pobieramy zadatek 50% podstawowej ceny projektu (jako koszty usługi przygotowania dokumentacji do standardu projektu gotowego, w przypadku rezygnacji z usługi, zadatek nie podlega zwrotowi).
Cena za dodatkowy egzemplarz projektu jest zależna od nazwy projektu!
Polecane projekty
Dodatki
Bezpłatne dodatki
GratisZestaw umów
GratisZmiany w projekcie
GratisTablica budowy
GratisDziennik budowy
Płatne dodatki

Kosztorys - stan wykończony
540 zł

Projekt wentylacji mechanicznej
1 000 zł












