Projekt domu Pogodna II z garażem 2st.
Promocja ważna do
24-04-2026
- Typ projektuWolnostojący
- Powierzchnia użytkowa134.9 m²
- Kondygnacje
- GarażDwustanowiskowy
- DachWielospadowy
- Kąt nach. dachu25°
- Odbicie lustrzaneTak
- Czas realizacjimax. czas realizacji 10 dni Zobacz więcej >
Opis
Zgodność z WT 2021 i Eurokodami
Ze względu na dostosowywanie projektu do standardu WT 2021, czas realizacji może się różnić od standardowego.
Skontaktuj się z nami aby poznać szczegóły dotyczące wybranego projektu.
Opis projektu
Pododna II to propozycja domu dedykowanego 3-4 osobowej rodzinie. Prosta bryła budynku przewidziana na planie kwadratu została przekryta kopertowym dachem o niewielkim kacie nachylenia. Strefa wejściowa do budynku wraz z garażem to spójna całość. Nowoczesna stylistyka elewacji stawia na naturalne barwy i materiały, dominują tu drewno i cegła. Funkcja domu to 3 pokoje sypialne w tym jedna typu masterbedroom z osobną łazienką i garderobą a także wspólna łazienka dla pozostałych mieszkańców. Pogodna kryje w swej bryle również salon z jadalnią i otwartą kuchnią ze spiżarnią. W strefie wejściowej znajdziemy dodatkową garderobę i wc. Z holu dostępna jest kotłownia a z niej garaż. Natomiast ze stanowiącego serce domu salonu dostaniemy się na przestronny, zadaszony taras.
Konstrukcja
fundamenty: betonowe
ściany zewnętrzne: porotherm+styropian termo organika
rodzaj stropu: teriva i
elewacje: tynk strukturalny
pokrycie dachu: dachówka cem. lub cer.
Rzuty
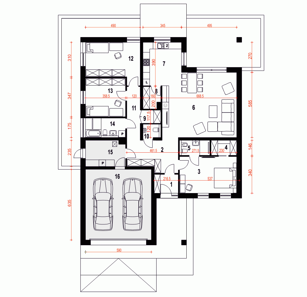
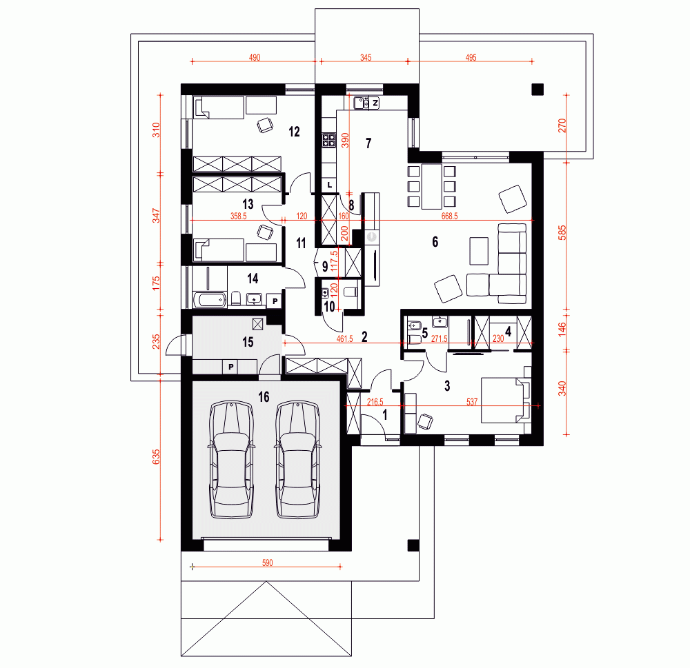
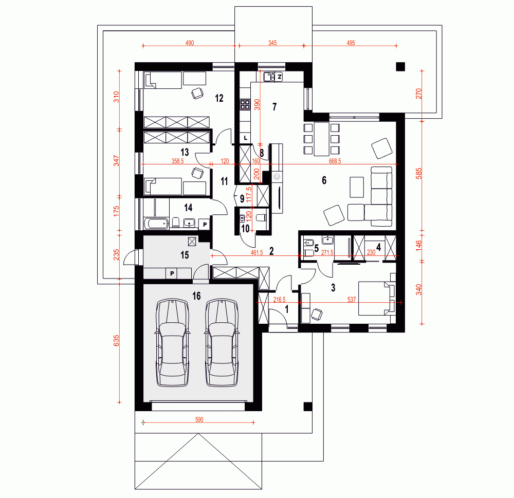
Parter
- m²
- 1. Wiatrołap3.5
- 2. Hol9.2
- 3. Pokój16.6
- 4. Garderoba3.5
- 5. Łazienka3
- 6. Salon37.6
- 7. Kuchnia12.3
- 8. Spiżarnia2.7
- 9. Garderoba2.1
- 10. WC1.8
- 11. Korytarz8.3
- 12. Pokój15.9
- 13. Pokój12.2
- 14. Łazienka6.1
- 15. Pom. techniczne z CO*8
- 16. Garaż*36.3
Przekrój
Usytuowanie na działce
Dane techniczne
- Powierzchnia użytkowa134.9 m²
- Powierzchnia zabudowy224.5 m²
- KominekTak
- Liczba łazienek2
- Liczba pokoi4
- Powierzchnia dachu332 m²
- Kubatura484 m³
- Długość domu18.7 m
- Szerokość domu14.5 m
- Wysokość domu7 m
- Minimalne wymiary działki26.7 x 22.5m
- GarażDwustanowiskowy
- Rodzaj dachuWielospadowy
- Kąt nach. dachu25°
Instalacja grzewcza
- Instalacja grzewczaGaz
Zawartość projektu
Zgodnie ze znowelizowaną Ustawą Prawo Budowlane art.34 ust.3, na projekt budowlany składają się trzy części:
- projekt zagospodarowania działki lub terenu
- projekt architektoniczno-budowlany
- projekt techniczny
Nasze projekty oferujemy w 3 egzemplarzach, zawierających projekt architektoniczno-budowlany i projekt techniczny. Projekt zagospodarowania działki lub terenu nie wchodzi w skład projektu oferowanego do sprzedaży. Projekt ten należy zlecić we własnym zakresie lokalnemu projektantowi, który opracuje go na podstawie danych zawartych w projekcie architektoniczno-budowlanym i technicznym, po dostosowaniu projektu do warunków lokalnych i wymagań inwestora.
UWAGA: wszystkie egzemplarze projektu zabezpieczone są hologramami, w części rysunkowej posiadają nadruki zabezpieczające w kolorze zielonym. Zalecamy aby po otrzymaniu przesyłki kontrolować czy na pierwszych stronach projektu znajduje się hologram i czy na rysunkach widoczne są w/w nadruki potwierdzające oryginalność projektu.
Wyrażamy zgodę na wszelkie zmiany zgodne z obowiązującymi przepisami pod warunkiem wprowadzenia ich przez uprawnioną osobę.
Wszystkie zmiany wymienione powyżej powinny być naniesione na oryginał projektu katalogowego trwałą techniką graficzną w kolorze czerwonym lub dołączone jako aneks i podpisane przez osobę uprawnioną dokonująca adaptacji.
**ważne informacje
Projekt w fazie koncepcji dostępny z wydłużonym terminem realizacji. Przy zamówieniu ustalamy termin i pobieramy zadatek 50% podstawowej ceny projektu (jako koszty usługi przygotowania dokumentacji do standardu projektu gotowego, w przypadku rezygnacji z usługi, zadatek nie podlega zwrotowi).
Cena za dodatkowy egzemplarz projektu jest zależna od nazwy projektu!
Polecane projekty
Dodatki
Bezpłatne dodatki
GratisZestaw umów
GratisZmiany w projekcie
GratisTablica budowy
GratisDziennik budowy
Płatne dodatki

Kosztorys - stan wykończony
540 zł

Projekt wentylacji mechanicznej
1 000 zł

















