- Typ projektuWolnostojący
- StylDworkowy
- Powierzchnia użytkowa253.71 m²
- KondygnacjeParterowy, z poddaszem
- GarażDwustanowiskowy
- DachWielospadowy
- Kąt nach. dachu30°
- Odbicie lustrzaneNie
- Czas realizacjimax. czas realizacji 10 dni Zobacz więcej >
Opis
Zgodność z WT 2021 i Eurokodami
Ze względu na dostosowywanie projektu do standardu WT 2021, czas realizacji może się różnić od standardowego.
Skontaktuj się z nami aby poznać szczegóły dotyczące wybranego projektu.
Opis projektu
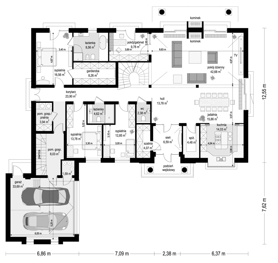
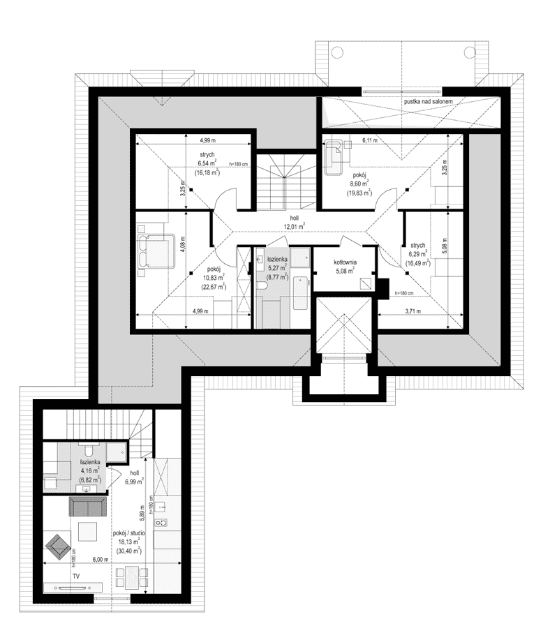
Projekt domu Rezydencja Parkowa 3 D jest to kolejny projekt domu z docenionej przez Klientów kolekcji „Rezydencja parkowa”. Tym razem jest to projekt Rezydencja parkowa 3 wariant D. Projekt choć zachowuje ogólnie podobną stylistykę i detale, to jednak różni się zasadniczo od bazowej wersji. Przede wszystkim budynek jest zwężony, zmniejszony, ma zagospodarowane poddasze, a prócz tego ma przewidziane nad garażem na poddaszu dodatkowe mieszkanko – służbówkę dla gosposi. Architektura domu Rezydencja Parkowa 3 D nawiązuje do polskiego dworku, oraz do detali amerykańskich rezydencji. Elewacja frontowa urozmaicona jest pięknym wejściowym podcieniem z kolumnami i łukowym oknem. Dobudowana część garażowa tworzy boczą oficynę, a cały front układa się w literę L. Od strony ogrodu dom ozdabia szeroki podcień nad tarasem i piękne wysokie łukowe okno salonu, otwierające wnętrze na ogród. Kilka słów o wnętrzu: Na parterze przewidziano otwartą część dzienną salonu połączonego z jadalnią i holem. Przestrzeń dzienna otwiera się szerokim podwyższonym przeszkleniem na obszerny podcień, taras i ogród. Wysokie okno w salonie zastosowano dzięki pustce nad częścią salonu, które otwiera wnętrze aż do sufitu. Z boku przy obszernej sieni mamy zaprojektowaną piękną kuchnię ze spiżarnią. W części prywatnej parteru przewidziano część państwa domu: sypialnię z łazienką i garderobą, oraz duży gabinet – bibliotekę. W skrzydle gospodarczym budynku mamy dwustanowiskowy wygodny garaż, dwa pomieszczenia gospodarcze (w tym pralnię) , oraz osobne wejście i schody na poddasze nad garażem z osobnym mieszkaniem dla gosposi. Na poddaszu domu zaprojektowano dwie wygodne sypialnie, łazienkę i dodatkowe dwa pomieszczenia strychowe, bądź magazynowe. Dom Rezydencja Parkowa 3 D jest komfortową, reprezentacyjną willą dla 3-4cioosobowej rodziny. Zwarta bryła i przemyślana konstrukcja zapewni szybką i efektywną budowę., a zastosowane w projekcie energooszczędne materiały i technologie zapewnią niedrogie koszty późniejszego utrzymania domu. Zapraszamy do zapoznania się z pełną ofertą pracowni MG Projekt: (projekt domu Rezydencja Parkowa), (projekt domu Rezydencja Parkowa 2), (projekt domu Rezydencja Parkowa 3), (projekt domu Rezydencja Parkowa 3C), (projekt domu Rezydencja Parkowa 4).Uwaga do kosztów realizacji:Koszty dotyczą projektu z piwnicą i z poddaszem. Przy wariancie bez piwnicy oraz z niezagospodarowanym strychem koszt budowy jest niższy - odpowiednio o: SSO - 50 313 zł / SSZ - 54 580 zł /RW - 65 566 zł / RDPK - 120 146 zł
Projekt domu Rezydencja parkowa 3 jest kolejną wersją cieszącego się popularnością projektu z serii „Rezydencja parkowa”. Dom został zaprojektowany jako zmniejszona wersja, o mniejszych wymiarach zewnętrznych, powierzchni zabudowy i powierzchni parteru. Do budynku dodano jednak poddasze użytkowe o powierzchni ponad 50 m2, oraz ponad stumetrową piwnicę. Także gdy razem zliczymy wszystkie kondygnacje dom jest duży. Można wybudować go z piwnicą lub bez, oraz z zagospodarowanym poddaszem, lub pozostawionym strychem nieużytkowym. Wszystko zależy od potrzeb Inwestora i obszerności jego portfela. Piwnicę i poddasze można wykończyć w drugim etapie. To rozłoży koszty budowy na dłuższy okres, a jednocześnie dodatkowa powierzchnia zapewnia bufor zapasowej przestrzeni, która może okazać się przydatna po kilku latach mieszkania. Projekt domu Rezydencja parkowa 3 został zaprojektowany jako podmiejska lub wiejska rezydencja, nawiązująca architekturą do dworków polskich, oraz amerykańskich wilii z przedmieść. Dom został zamknięty w prostokątnej bryle, z dobudowaną częścią garażową. Całość jest przekryta łagodnym wielospadowym dachem. Elewacje ozdabiają detale: wejściowy portyk, wykusze, podcienie, ciekawe okna z łukami. Wszystkie elementy są stylowe, ale całość osadzona jest we współczesności, z nowoczesnymi materiałami i kolorystyką. Dzięki takiemu połączeniu dom jest klasyczny a jednocześnie nowoczesny - tak architektura nigdy się nie zestarzeje. Wnętrze domu: na parterze zaprojektowano wszystkie potrzebne pomieszczenia. Cały program funkcjonalny dla 4-5cioosobowej rodziny. Jest tutaj jednoprzestrzenne wnętrze dzienne otwarte na antresolę na poddaszu. Jest też część z sypialniami, łazienkami i garderobami. W części gospodarczej znajduje się garaż i pomieszczenia gospodarcze. W wersji podstawowej projektu do dyspozycji mieszkańców jest spore poddasze, z dodatkowymi pokojami, oraz duża piwnica. Można oczywiście wykonać dom bez podpiwniczenia. To kwestia decyzji inwestora. W projekcie zastosowano nowoczesne materiały i energooszczędne rozwiązania. Projekt domu Rezydencja parkowa 3 – jak na swoją skalę - ma dość prostą konstrukcję i powinien być łatwy w budowie. Utrzymanie domu dzięki energooszczędnym rozwiązaniom i zwartej bryle również będzie się mieścić w rozsądnych kwotach. Podane koszty realizacji dotyczą projektu Rezydencja Parkowa 3 z piwnicą i poddaszem . Koszty bez piwnicy podano osobno . Projekt dostępny jest w odbiciu lustrzanym oraz kilku wersjach: (Rezydencja Parkowa), (Rezydencja Parkowa 2), (Rezydencja Parkowa 3C), (Rezydencja Parkowa 3D), (Rezydencja Parkowa 4).Uwaga do kosztów realizacji:Koszty dotyczą projektu z piwnicą i z poddaszem. Przy wariancie bez piwnicy oraz z niezagospodarowanym strychem koszt budowy jest niższy - odpowiednio o: SSO - 50 313 zł / SSZ - 54 580 zł /RW - 65 566 zł / RDPK - 120 146 zł(Rezydencja Parkowa), (Rezydencja Parkowa 2), (Rezydencja Parkowa 3), (Rezydencja Parkowa 3C), (Rezydencja Parkowa 3D), (Rezydencja Parkowa 4).
Konstrukcja
- Fundamentybetonowe ławy i ściany fundamentowe z bloczków betonowych
- Ściany zewnętrzneściany murowane - pustaki porotherm 25 + styropian
- Stropmonolityczny żelbetowy nad parterem
- Elewacjetynk cienkowarstwowy
- Pokrycie dachudachówka
Rzuty
Dane techniczne
- Powierzchnia użytkowa253.71 m²
- Powierzchnia netto266.75 m²
- Powierzchnia zabudowy291 m²
- KominekTak
- Liczba łazienek4
- Liczba pokoi6
- Powierzchnia dachu415.38 m²
- Kubatura1225 m³
- Długość domu24.12 m
- Szerokość domu20.7 m
- Wysokość domu7.66 m
- Poddaszeużytkowe
- Minimalne wymiary działki31.12 x 27.7m
- GarażDwustanowiskowy
- Rodzaj dachuWielospadowy
- Kąt nach. dachu30°
Koszty budowy
- Stan surowy285852 zł
- Stan surowy zamknięty433585 zł
- Koszt wykończenia370909 zł
- Koszt instalacji92789 zł
Zawartość projektu
W komplecie nowej wersji dokumentacji projektowej znajdują się 3 egzemplarze projektu architektoniczno-budowlanego oraz 3 egzemplarze projektu technicznego
Projekt architektoniczno-budowlany zawierający:
-opis architektoniczny z elementami konstrukcji,
-część rysunkowa: rzut parteru, poddasza/piętra, rzut dachu w skali 1:100, przekroje skala 1:50,
elewacje skala 1:100.
Projekt techniczny zawierający:
-opis techniczny i konstrukcyjny (obliczenia statyczne - w zależności od projektu włączone w projekt lub stanowiące odrębną teczkę).
Część rysunkowa architektura i konstrukcja:
-rzuty fundamentów, parteru, poddasza, stropu, więźby, dachu / w skali 1:50,
-przekroje przez budynek / budynek skali 1:50,
-elewacje budynku / w skali 1:50 (*niektóre projekty posiadają rysunki w skali 1:100 lub 1:75),
-zestawienie stolarki budowlanej okiennej i drzwiowej,
-szczegóły konstrukcji i ewentualne szczegóły budowlane,
Część instalacyjna:
-część opisowa do projektów instalacji elektrycznych, wodno-kanalizacyjnych, grzewczych, gazowych (jeśli występują).
Część rysunkowa do projektów instalacji:
-schematy instalacji elektrycznych, schemat rozdzielni, plan instalacji odgromowej,
-schematy instalacji wodno-kanalizacyjnej i ciepłej wody,
-schematy instalacji grzewczych,
-schemat instalacji gazowej (jeśli występują).
Do projektu dołączane jest zestawienie materiałowe, z wykazem elementów drewnianych oraz stali budowlanej.
Do projektu dołączone są kopie uprawnień wszystkich projektantów, oraz aktualne zaświadczenia o przynależności do izb zawodowych.
Projekt zawiera oświadczenie projektantów o poprawności projektu w świetle Prawa Budowlanego, a także zawiera informację dotyczącą bezpieczeństwa i ochrony zdrowia ( BIOZ).
Do projektu dołączona jest także zgoda na zmiany adaptacyjne. Zgoda dołączana jest do każdego projektu bezpłatnie. Na Państwa życzenie zakres zgody na zmiany możemy dowolnie rozszerzyć.
Pracownia zezwala na następujące zmiany i odstępstwa od projektu architektoniczno-budowlanego w trakcie jego przystosowywania do lokalizacji:
- Zmianę obrysu zewnętrznego ścian zewnętrznych.
- Zmianę obrysu wewnętrznego ścian zewnętrznych.
- Zmianę układu ścian wewnętrznych działowych.
- Zmianę funkcji, ilości i usytuowania poszczególnych pomieszczeń na dowolnej kondygnacji w projekcie.
- Zmianę ukształtowania, ilości i kąta nachylenia połaci dachowych.
- Zmianę ilości, umiejscowienia i wielkości otworów okiennych i drzwiowych.
- Zmianę rodzaju materiału i technologii wykonania ścian zewnętrznych oraz wewnętrznych oraz ścian fundamentowych.
- Zmianę rodzaju i technologii wykonania stropów nad dowolną kondygnacją.
- Zmianę umiejscowienia, kształtu i materiału wykonania schodów w budynku.
- Zmianę wielkości, kształtu i materiałów, bądź likwidacja: tarasów, podestów i balkonów.
- Likwidację lub dodanie dowolnej ilości:
- lukarn,
- wykuszy,
- podcieni,
- balkonów,
- loggii,
- kolumn,
- pilastrów,
- ganków,
- werand.
- Zmianę materiałów wykończeniowych, instalacyjnych, izolacyjnych.
- Zmianę rodzaju pokrycia dachowego.
- Doprojektowanie bądź likwidacja podpiwniczenia - częściowego lub całkowitego.
Dodatki
Bezpłatne dodatki
GratisZestaw umów
GratisZmiany w projekcie
PromocjaProjekt szamba szczelnego
GratisTablica budowy
GratisDziennik budowy
Płatne dodatki

Pakiet wentylacja mechaniczna i kominek DGP
550 zł

Kosztorys inwestorski
600 zł

Pakiet odkurzacz centralny
550 zł

Wersja elektroniczna projektu
600 zł

Pakiet instalacja solarna
550 zł

Pakiet ogrzewanie podłogowe
550 zł

Pakiet powietrzna pompa ciepła
550 zł

Pakiet płaszcz wodny
550 zł

Pakiet kotłownia na paliwo stałe
550 zł

Pakiet klimatyzacja w domu
550 zł

Projekt ogrodzenia
750 zł

Pakiet instalacja fotowoltaiczna
550 zł

Pakiet kominek z DGP
500 zł

Pakiet gruntowa pompa ciepła
550 zł

Projekt altan i grilów ogrodowych
850 zł

Dodatkowy egzemplarz do projektu
650 zł





































