- Typ projektuWolnostojący
- StylNowoczesny
- Powierzchnia użytkowa303.62 m²
- KondygnacjePiętrowy
- GarażDwustanowiskowy
- DachPłaski
- Kąt nach. dachu0.2°
- Odbicie lustrzaneTak
- Czas realizacji7-10 dni roboczych Zobacz więcej >
Opis
Zgodność z WT 2021 i Eurokodami
Ze względu na dostosowywanie projektu do standardu WT 2021, czas realizacji może się różnić od standardowego.
Skontaktuj się z nami aby poznać szczegóły dotyczące wybranego projektu.
Opis projektu
Duży, nowoczesny, energooszczędny dom z płaskim, zielonym dachem i dwustanowiskowym garażem, dedykowany wymagającym inwestorom – ceniącym przestrzeń i komfort. Na parterze znajduje się salon z wysokim sufitem i dużymi przeszkleniami – dzięki temu pomieszczenie jest idealnie doświetlone i przestronne. Obok wygodnej kuchni zlokalizowano jadalnię, a przy wejściu znajduje się gabinet, idealny dla osób pracujących w domu oraz ogólnodostępna łazienka. Jest tu też kameralnie usytuowana sypialnia z obszerną garderobą i łazienką. Centralnie zlokalizowane schody prowadzą na drugą kondygnację, gdzie przewidziano trzy sypialnie oraz strefę rekreacyjną: siłownię, saunę i pokój kąpielowy. Na tym poziomie znajduje się także garderoba i pralnia. Taki układ funkcjonalny domu trafi z pewnością w gusta wymagających inwestorów, którzy cenią nie tylko wygodne mieszkanie, ale też możliwość aktywnego spędzania czasu.
Rzuty
Parter
- m²
- 1. Wiatrołap7.54
- 2. Komunikacja16.13
- 3. Jadalnia22.42
- 4. Kuchnia14.5
- 5. Pokój dzienny44.72
- 6. Pokój21.76
- 7. Garderoba8.38
- 8. Łazienka9.73
- 9. Łazienka5.98
- 10. Pokój15.86
- 11. Pom.pomocnicze9.62
- 12. Kotłownia8.85
- 13. Garaż38.08
- 14. Taras18.78
- 15. Taras82.92
- 16. Podest2.4
Piętro
- m²
- 1. Schody3.96
- 2. Komunikacja14.82
- 3. Sala ćwiczeń26.93
- 4. Sauna4.03
- 5. Łazienka13.01
- 6. Pralnia6.03
- 7. Pokój18.44
- 8. Garderoba8.01
- 9. Pokój22.42
- 10. Pokój18.95
- 11. Balkon22.8
Usytuowanie na działce
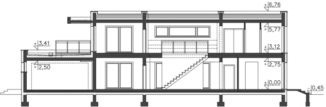
Przekrój
Dane techniczne
- Powierzchnia użytkowa303.62 m²
- Powierzchnia netto385.07 m²
- Powierzchnia zabudowy288.07 m²
- Liczba łazienek4
- Liczba pokoi6
- Kubatura1723 m³
- Minimalne wymiary działki25.5 x 31m
- GarażDwustanowiskowy
- Rodzaj dachuPłaski
- Kąt nach. dachu0.2°
Instalacja grzewcza
- Instalacja grzewczaGaz
- Instalacja opcjonalna
- EUco24.6 kwH/m²/rok
Koszty budowy
- Koszt budowy1339900 zł
- Stan surowy846400 zł
Zawartość projektu
Dokumentacje projektowe naszych domów są zgodne z Rozporządzeniem Ministra Rozwoju z dnia 11 września 2020 r. w sprawie szczegółowego zakresu i formy projektu budowlanego. Projekt gotowy, w skład którego wchodzi projekt architektoniczno-budowlany, projekt techniczny, charakterystyka energetyczna, wymaga przystosowania do warunków lokalnych przez projektanta adaptującego.
Projekt architektoniczno-budowlany i projekt techniczny stanowią zakres projektu gotowego i sprzedawane są w 3 egzemplarzach każdy – razem 6 zeszytów
Projekt architektoniczno-budowlany zawiera część opisową oraz część rysunkową.
Część opisowa projektu architektoniczno-budowlanego obejmuje następujący zakres:
- Przeznaczenie i program użytkowy budynku
- Charakterystyczne parametry techniczne
- Forma architektoniczna i funkcja obiektu
- Wpływ obiektu na środowisko
- Sposób posadowienia
- Technologia wykonania
- Warunki ochrony przeciwpożarowej
- Instalacje
Część rysunkowa projektu architektoniczno-budowlanego obejmuje następujące rysunki:
- Elewacje - frontowa, ogrodowa, boczne
- Rzut parteru - Rzut więźby dachowej
- Aksonometria więźby dachowej
- Rzut dachu
- Przekroje poprzeczne
- Zestawienie stolarki
Projekt techniczny zawiera część opisową, część rysunkową oraz charakterystykę energetyczną.
Część opisowa projektu technicznego obejmuje następujący zakres:
- Układ konstrukcyjny budynku w tym: schematy konstrukcyjne, obliczenia statyczne – założenia ogólne, podstawowe wyniki obliczeń , zestawienie obciążeń dopuszczalnych dla wiązarów dachowych- jeśli występują,
- Sposób posadowienia
- Rozwiązania konstrukcyjno-materiałowe: ściany, strop/stropy, nadproża okienne i drzwiowe, wieńce, dach, schody na poddasze nieużytkowe, kominy i wentylacje, izolacje, powłoki zabezpieczające, posadzki i podłogi, tynki i okładziny, stolarka okienna i drzwiowa, obróbki blacharskie, rynny i rury spustowe, taras i płyta wejściowa
- Zestawienia materiałów w tym: dane powierzchniowe przegród, zestawienie stali zbrojeniowej
- Opis instalacji sanitarnych w tym: instalacja wodociągowa, kanalizacja wewnętrzna, instalacja gazu – jeśli występuje, instalacja centralnego ogrzewania, dobór źródła ciepła,
- Opis instalacji elektrycznych w tym: zasilanie budynku, instalacje elektryczne, instalacja telefoniczna – jeśli występuje, instalacje wyrównawcze, ochrona przeciwpożarowa, ochrona instalacji, instalacja odgromowa, ochrona przeciwporażeniowa, obliczenia techniczne
Część rysunkowa obejmuje następujące rysunki:
- Rzut fundamentów
- Przekroje ław fundamentowych / płyty fundamentowej
- Stopy fundamentowe – jeśli występują
- Rysunek zestawczy konstrukcji
- Szczegóły wieńców – jeśli występują
- Rozwinięcie ścian zewnętrznych
- Rzuty kondygnacji - instalacja wod-kan., gazowa
- Aksonometria instalacji wodociągowej
- Aksonometria instalacji gazowej
- Rozwinięcie instalacji kanalizacyjnej
- Rzut parteru - instalacja c.o.
- Rozwinięcie instalacji c.o.
- Rzuty kondygnacji - instalacja elektryczna
- Schemat rozdziału energii
Charakterystyka energetyczna zawiera:
- wyniki obliczeń energetycznych określających całkowite zapotrzebowanie na energię
- analizę alternatywnych źródeł ciepła i wyniki optymalizacji energetycznej.
Dopuszczalne zmiany w ramach adaptacji nie wymagające zgody projektanta:
- dostosowanie fundamentów do warunków geotechnicznych występujących na danym terenie,
- zmiana programu funkcjonalnego budynku związana z likwidacją lub przesuwaniem ścianek działowych i otworów drzwiowych, również w ścianach nośnych,
- zmiana szerokości i kształtu schodów,
- zmiana technologii stropów przy zachowaniu koncepcji układu konstrukcyjnego,
- zmiana nachylenia połaci dachowych w granicach 5 st.,
- zmiana ilości, wielkości i rozmieszczenia otworów okiennych i drzwiowych,
- zmiana technologii budowlanych i materiałów wykończeniowych pod warunkiem nie pogorszenia ich jakości i parametrów termicznych,
- zmiana rodzaju ogrzewania i zmiany adaptacyjne projektów instalacyjnych,
- wykonanie projektu podpiwniczenia budynku lub jego likwidacji,
- zabudowanie wiaty garażowej lub rezygnacja z wiaty (jeśli występuje w projekcie),
- rezygnacja z balkonów przy ścianach szczytowych (jeśli występują w projekcie),
- realizacja projektu w wersji lewostronnej (lustrzanego odbicia).
Najczęściej pojawiające się zmiany, które wprowadzamy lub na które wydajemy bezpłatną zgodę to:
- zmiana kąta nachylenia dachu,
- podpiwniczenie budynku,
- zmiana technologii ścian, stropu, fundamentów,
- zmiana wymiarów domu,
- likwidacja, doprojektowanie lub poszerzenie garażu,
- podniesienie ścianki kolankowej,
- zmiany wielkości i usytuowania okien i drzwi,
- zmiany funkcji pomieszczeń,
- zmiana systemu ogrzewania (gaz/paliwo stałe/pompa ciepła oraz grzejniki/ogrzewanie podłogowe).
Dodatki
Bezpłatne dodatki
GratisDziennik budowy
GratisTablica budowy
GratisZestaw umów
GratisZmiany w projekcie
Płatne dodatki

Kosztorys ślepy
369 zł

Kosztorys inwestorski
738 zł

Dodatkowy egzemplarz projektu
492 zł








