- Typ projektuWolnostojący
- StylTradycyjny
- Powierzchnia użytkowa92.76 m²
- KondygnacjeParterowy, z poddaszem
- GarażBez garażu
- DachDwuspadowy
- Odbicie lustrzaneTak
- Czas realizacjido 10 dni roboczych Zobacz więcej >
Opis
Opis projektu
Dom parterowy z użytkowym poddaszem, przeznaczony dla 4 osobowej rodziny. Likwidując okna w jednej ze ścian bocznych budynek można zmieścić na działce o szer. 15.0 m. Nad wyjściem na taras można zamocować markizę, która zacieni taras w upalne dni. Od strony ogrodowej dom ma dużą powierzchnię dachową (bez elementów wystających nad dach) dlatego można na niej zlokalizować panele fotowoltaiczne lub kolektory słoneczne.
Konstrukcja
TECHNOLOGIA BUDOWY
- ściany fundamentowe – bloczek betonowy
- ściany zewnętrzne – beton komórkowy gr. 24cm + styropian gr. 12cm
- ściana zewnętrzna w wariancie „PLUS” – beton komórkowy gr. 24cm + styropian gr. 20cm
- ściany wewnętrzne – bloczek silikatowy gr. 24cm
- strop – Teriva
- konstrukcja dachu – drewniana
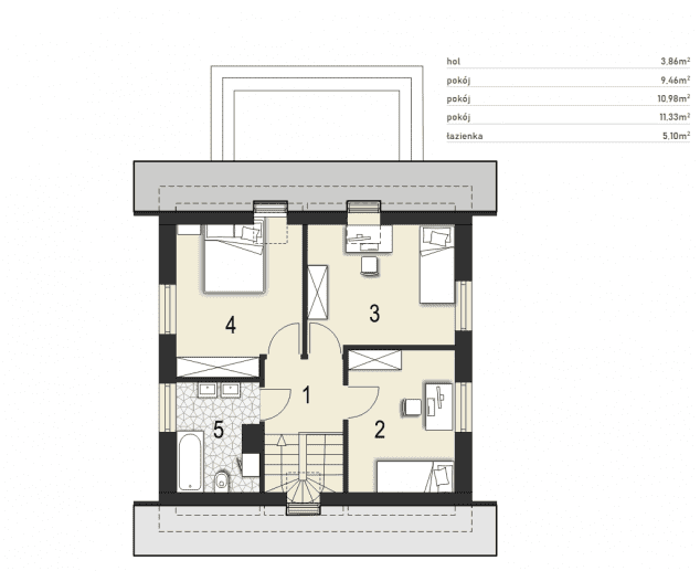
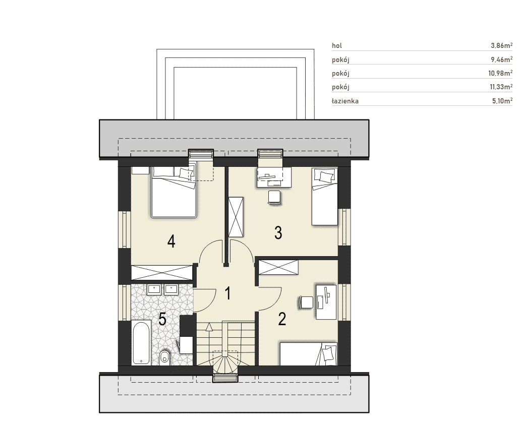
Rzuty
Dane techniczne
- Powierzchnia użytkowa92.76 m²
- Powierzchnia zabudowy70.31 m²
- Liczba łazienek1
- Liczba pokoi3
- Powierzchnia dachu142 m²
- Wysokość domu8.99 m
- Minimalne wymiary działki19.03 x 15.98m
- GarażBez garażu
- Rodzaj dachuDwuspadowy
Instalacja grzewcza
- Instalacja opcjonalna
Zawartość projektu
Ważne informacje: Zaktualizowane projekty będą się różniły nieznacznie wym.zewnętrznymi (będą szersze i dłuższe o ok. 20cm ze względu na pogrubienie izolacji na ścianach zew.) i systemem grzewczym (przeważnie będzie pompa ciepła i panele fotowoltaiczne).
Otrzymują Państwo KOMPLET składający się z:
3 egzemplarze dokumentacji technicznej, w skład której wchodzi:
1. Architektura
2. Konstrukcja
3. Instalacje wewnętrzne
Architektura:
- Opis techniczny
- Elewacje
- Rzuty kondygnacji
- Rzut dachu
- Przekroje
Konstrukcja:
- Opis techniczny
- Rzut fundamentów
- Rzut stropów i nadproży
- Rzut więźby dachowej
Instalacje wewnętrzne:
- Opis techniczny
- Instalacja wewnętrzna wody ciepłej, zimnej
- Instalacja wewnętrzna kanalizacji
- Instalacja wewnętrzna c.o.
- Instalacja wewnętrzne elektryczna
- Instalacja wewnętrzne gazowa (jak jest zaprojektowana dla danego projektu)
- instalacje wentylacji mechanicznej (jak jest zaprojektowana dla danego projektu)
1 egz. materiałów pomocniczych,w skład którego wchodzi:
- Wyciąg z obliczeń statyczno -wytrzymałościowych
- Charakterystyka energetyczna dla projektowanego budynku
- Charakterystyka energetyczna dla układu hybrydowego
- Charakterystyka energetyczna dla układu konwencjonalnego
- Analiza porównawcza źródeł ciepła
- Rysunki wykonawcze elementów żelbetowych
- Zestawienie stali zbrojeniowej do rozrysowanych elementów żelbetowych
- Zestawienie elementów konstrukcyjnych więźby dachowej
- Zestawienie stolarki okiennej i drzwiowej
Do niektórych projektów dodatkowo dołączamy:
- Instalacje wewnętrzną gazowa
- Ogrzewanie elektryczne
- Instalację wentylacji mechanicznej
- Detale architektoniczne
Projektant dokonujący adaptacji projektu może bez zgody autora wprowadzić zmiany dotyczące:
- Zmiany wymiarów fundamentów wynikające z dostosowania budynku do lokalnych warunków gruntowych.
- Wprowadzenia całkowitego lub częściowego podpiwniczenia budynku pod warunkiem nie wynoszenia poziomu parteru w stosunku do poziomu terenu.
- Zaprojektować użycie innych materiałów na konstrukcję budynku (ściany stropy) przy zachowaniu wymaganych przepisami i normami parametrów i pod warunkiem zachowania walorów użytkowych budynku.
- Rodzaju stropów - przy zachowaniu układu konstrukcji i zachowaniu wymaganych przepisami i normami parametrów
- Materiałów ścian zewnętrznych i wykończeniowych (tynki, posadzki, dachówki, izolacji cieplnej i przeciwwilgociowej) pod warunkiem utrzymania wymaganych parametrów (tj. np. wytrzymałość, ciepłochłonność).
- Programu użytkowego wewnątrz budynku; np. przesunięcia lub likwidacji ścian działowych i zmiany lokalizacji, ilosci i kształtu okien oraz drzwi, przy zachowaniu wymaganych przepisami i normami parametrów.
- Zmiana przekrojów elementów konstrukcji dachowej wynikająca z dostosowania do materiałów pokrycia lub z dostosowania budynku do innych stref śniegowych i wiatrowych niż podano w projekcie
- Kolorystyki elewacji, detali dekoracyjnych, kształtu podjazdów i tarasów
- Instalacji: wodnej, kanalizacyjnej, gazowej, elektrycznej i centralnego ogrzewania - pod warunkiem zachowania obowiązujących norm i przepisów prawa budowlanego.
Powyższe zmiany powinny zostać naniesione na oryginał projektu trwałą techniką graficzną w kolorze czerwonym i dokonane z zachowaniem obowiązujących norm i przepisów prawa budowlanego przez osoby posiadające do tego odpowiednie uprawnienia. W uzasadnionych przypadkach należy sporządzić rysunki zamienne i dołączyć je jako aneks. Jakiekolwiek inne zmiany ponad wyszczególnione wyżej mogą być dokonane wyłącznie za zgodą autora projektu lub pracowni.
Powyższe zmiany są dokładane do każdego projektu.
Zmiany wykraczające poza zakres zmian należy wypisać przy zamówieniu projektu.
Dodatki
Bezpłatne dodatki
GratisZestaw umów
GratisZmiany w projekcie
GratisTablica budowy
GratisDziennik budowy









