- Typ projektuWolnostojący
- StylTradycyjny
- Powierzchnia użytkowa91.9 m²
- KondygnacjeParterowy, z poddaszem
- GarażBez garażu
- DachDwuspadowy
- Odbicie lustrzaneTak
- Czas realizacji7 dni Zobacz więcej >
Opis
Zgodność z WT 2021 i Eurokodami
Ze względu na dostosowywanie projektu do standardu WT 2021, czas realizacji może się różnić od standardowego.
Skontaktuj się z nami aby poznać szczegóły dotyczące wybranego projektu.
Opis projektu
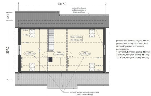
Terrier 7 bez garażu, to niewielki, typowo parterowy dom, bez podpiwniczenia z możliwością adaptacji poddasza na cele mieszkalne. Zwarta bryła, oparta na rzucie prostokąta, została zaprojektowana z symetryczną fasadą frontową i wejściem podkreślonym prostym zadaszeniem. Budynek jest przekryty dwuspadowym dachem o tradycyjnej konstrukcji drewnianej i kalenicy usytuowanej równolegle do elewacji frontowej. Funkcjonalne, doskonale doświetlone wnętrze podzielono w klasyczny sposób na strefę dzienną, nocną oraz gospodarczą. Na tę pierwszą składają się otwarta kuchnia na rozległy pokój dzienny z kominkiem oraz wyjściem na częściowo zadaszony taras. Przeciwległą stronę przeznaczono pod część prywatną złożoną z łazienki, oraz trzech zgrabnych pokoi. W jednym pokoju sypialnym jest zaprojektowana przestronna garderoba, którą w ramach adaptacji można przekształcić w dodatkową łazienkę, dostępną tylko z pokoju lub ogólnego korytarza. W pokoju dziennym zaprojektowano drewniane schody prowadzące na poziom strychu użytkowego, poddasza. Strych użytkowy, w ramach adaptacji można przeznaczyć na cele mieszkalne, można podzielić na dwa duże pokoje, korytarz lub dodatkową garderobę. Zaprojektowano konstrukcję dachu o bardzo prostym układzie krokwiowo – jętkowym, bez podparcia pośredniego - co umożliwia swobodną aranżacje pomieszczeń poddasza. W budynku zaprojektowano również pomieszczenie kotłowni, standardowo z kotłem na paliwo stałe - „pellet”. Istnieje możliwość zamówienia dokumentacji projektowej w wersji ogrzewania gazowego ze wspomaganiem instalacją solarną lub ogrzewania nowoczesną pompą ciepła typu powietrze – woda (zapytaj o cenę). W całym budynku zastosowano ogrzewanie podłogowe. Budynek stanowi kompromis tradycyjnej formy, współczesnej estetyki oraz regionalnych materiałów, takich jak okładzina z drewna elewacyjnego, szlachetna dachówka ceramiczna. Ponadczasowa architektura tego zgrabnego i przytulnego domu sprawia że, z łatwością wpisze się w niemal każdy krajobraz.
Konstrukcja
Posadowienie bezpośrednie na zbrojonych ławach fundamentowych wykonanych z betonu B 20, lawy o szerokości 60 cm i wysokości 40 cm. Ściany fundamentowe: murowane z bloczków betonowych typu M6. Ściany zewnętrzne i wewnętrzne, nośne z bloczków gazobetonowych gr. 24 cm (lub pustaki z ceramiki poryzowanej gr. 25 cm), murowane na zaprawie systemowej, ciepłochronnej. Do ocieplenia budynku zaprojektowano użycie styropianu grafitowego gr. 15 cm, o współczynniku „lambda” wynoszącym 0,031 W(mK) i „oporze cieplnym” nie mniejszym niż Rd – 4,0 m2k/W. Wartości współczynników przenikania ciepła przez przegrody są dostosowane do wymogów WT2021 również wymogów izolacyjnych ze standardu NF 40. Ściany wewnętrzne działowe zaprojektowano z bloczków gazobetonowych gr. 12 cm. Strop zaprojektowano jako gęstożebrowy typu „Terriva - E” z wypełnieniem pustakami betonowymi, zalewany wraz z wieńcami betonem B 20. Konstrukcja dachu, drewniana, drewno klasy C24, więźba dachu o bardzo prostym układzie krokwiowo – jętkowym, bez podparcia pośredniego - co umożliwia swobodną aranżacje pomieszczeń poddasza. Pokrycie dachu zaprojektowano z dachówki ceramicznej lub betonowej, alternatywnie pokrycie można wykonać z blachy ocynkowanej, powlekanej, mocowanej na rąbek stojący. Projekt pod względem konstrukcyjnym spełnia normy zgodne z Eurokodami. Zastosowanie materiałów budowlanych (do ocieplenia ścian, dachu, podłogi na gruncie, odpowiednich okien i drzwi), wymogów izolacyjnych ze standardu NF 40 użytych w projekcie gwarantuje uzyskanie wskaźnika rocznego obliczeniowego zapotrzebowania na energię pierwotną dla budynku „Ep” poniżej 70 kWh/(m2·rok). Do ogrzewania budynku zaprojektowano instalację wewnętrzną C.O. z ekologicznym kotłem na biomasę (granulat drzewny – pellet) lub zasilaną nowoczesną pompą ciepła typu „powietrze–woda”, w całym budynku zastosowano ogrzewanie podłogowe. Są dostępne dwa podstawowe rodzaje ogrzewania z instalacjami – Inwestor wybiera odpowiedni rodzaj na etapie zamówienia projektu, ogrzewanie na „pellet” lub „pompa ciepła”, projekt jest wtedy w pełni przystosowany w zakresie technicznym
Rzuty
Dane techniczne
- Powierzchnia użytkowa91.9 m²
- Powierzchnia zabudowy118.14 m²
- Liczba łazienek1
- Liczba pokoi3
- Kubatura406.4 m³
- Długość domu13.17 m
- Szerokość domu8.97 m
- Wysokość domu6.92 m
- PoddaszeDo adaptacji
- Minimalne wymiary działki20.17 x 17.97m
- GarażBez garażu
- Rodzaj dachuDwuspadowy
Instalacja grzewcza
- Instalacja opcjonalna
Zawartość projektu
* ważne informacje
Każda wersja standardowa projektu została zaprojektowana pod ogrzewanie za pomocą kotła na Pellet.
W przypadku zmiany wersji ogrzewania np:
- gaz + solar to dodatkowo 350 zł do ceny projektu,
- pompa ciepła powietrze-woda + ogrzewanie podłogowe to dodatkowo 350 zł do ceny projektu.
Dodatki
Bezpłatne dodatki
GratisZestaw umów
GratisZmiany w projekcie
GratisTablica budowy
GratisDziennik budowy











