Projekt domu Słoneczna z wiatą
- Typ projektuWolnostojący
- Powierzchnia użytkowa108 m²
- Kondygnacje
- GarażZ wiatą garażową
- DachWielospadowy
- Kąt nach. dachu40°
- Odbicie lustrzaneTak
- Czas realizacjimax. czas realizacji 10 dni Zobacz więcej >
Opis
Zgodność z WT 2021 i Eurokodami
Ze względu na dostosowywanie projektu do standardu WT 2021, czas realizacji może się różnić od standardowego.
Skontaktuj się z nami aby poznać szczegóły dotyczące wybranego projektu.
Opis projektu
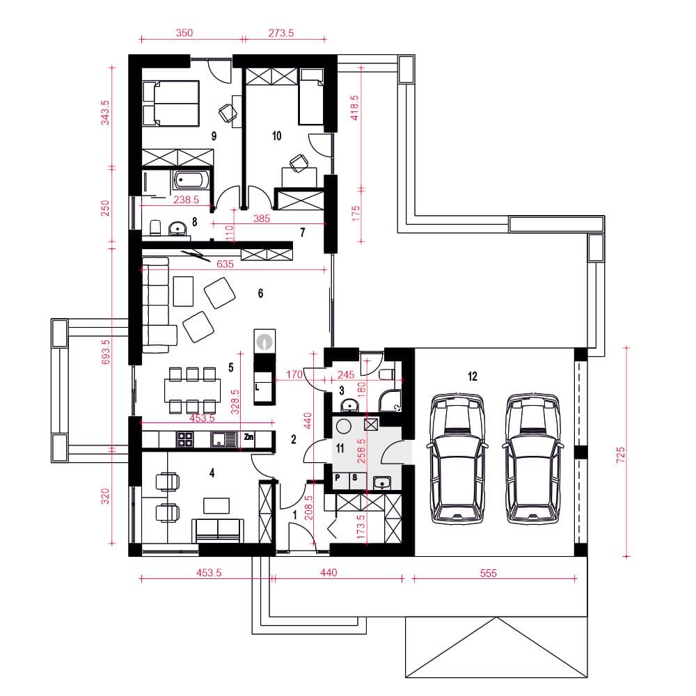
Słoneczna to nowoczesny dom dla 3-4 osobowej rodziny, z tradycyjnymi murowanymi ścianami i prefabrykowanymi, drewnianymi wiązarami dachowymi. Bryła budynku tworzy literę L. Wejście od frontu prowadzi do wiatrołapu z garderobą, a następnie do holu. Pokój-gabinet, mała łazienka, pomieszczenie techniczne i kuchnia z jadalnią i salonem są dostępne z holu. Część prywatna obejmuje dwie sypialnie i dużą łazienkę. Strefa dziennej przestrzeni jest otwarta po dach, a z jadalni i salonu można bezpośrednio wyjść na tarasy, łącząc wnętrze z otoczeniem. Pomieszczenie techniczne prowadzi pod wiatę, a mała łazienka z drzwiami tarasowymi umożliwia korzystanie z niej w letnie dni. Elewacja w minimalistycznym stylu łączy drewno z antracytowymi wstawkami, a ciemnoszary dach nadaje domowi charakteru. Słoneczna spełnia nowoczesne potrzeby życia, otaczając mieszkańców przytulnym ogrodowym dziedzińcem.
Konstrukcja
Rzuty
Parter
Dane techniczne
- Powierzchnia użytkowa108 m²
- Powierzchnia zabudowy190.6 m²
- KominekTak
- Liczba łazienek2
- Liczba pokoi4
- Powierzchnia dachu248.8 m²
- Długość domu17.6 m
- Szerokość domu16.1 m
- Wysokość domu6.7 m
- Minimalne wymiary działki25.6 x 23.1m
- GarażZ wiatą garażową
- Rodzaj dachuWielospadowy
- Kąt nach. dachu40°
Instalacja grzewcza
- Instalacja grzewczaGaz
Zawartość projektu
Zgodnie ze znowelizowaną Ustawą Prawo Budowlane art.34 ust.3, na projekt budowlany składają się trzy części:
- projekt zagospodarowania działki lub terenu
- projekt architektoniczno-budowlany
- projekt techniczny
Nasze projekty oferujemy w 3 egzemplarzach, zawierających projekt architektoniczno-budowlany i projekt techniczny. Projekt zagospodarowania działki lub terenu nie wchodzi w skład projektu oferowanego do sprzedaży. Projekt ten należy zlecić we własnym zakresie lokalnemu projektantowi, który opracuje go na podstawie danych zawartych w projekcie architektoniczno-budowlanym i technicznym, po dostosowaniu projektu do warunków lokalnych i wymagań inwestora.
UWAGA: wszystkie egzemplarze projektu zabezpieczone są hologramami, w części rysunkowej posiadają nadruki zabezpieczające w kolorze zielonym. Zalecamy aby po otrzymaniu przesyłki kontrolować czy na pierwszych stronach projektu znajduje się hologram i czy na rysunkach widoczne są w/w nadruki potwierdzające oryginalność projektu.
Wyrażamy zgodę na wszelkie zmiany zgodne z obowiązującymi przepisami pod warunkiem wprowadzenia ich przez uprawnioną osobę.
Wszystkie zmiany wymienione powyżej powinny być naniesione na oryginał projektu katalogowego trwałą techniką graficzną w kolorze czerwonym lub dołączone jako aneks i podpisane przez osobę uprawnioną dokonująca adaptacji.
**ważne informacje
Projekt w fazie koncepcji dostępny z wydłużonym terminem realizacji. Przy zamówieniu ustalamy termin i pobieramy zadatek 50% podstawowej ceny projektu (jako koszty usługi przygotowania dokumentacji do standardu projektu gotowego, w przypadku rezygnacji z usługi, zadatek nie podlega zwrotowi).
Cena za dodatkowy egzemplarz projektu jest zależna od nazwy projektu!
Dodatki
Bezpłatne dodatki
GratisZestaw umów
GratisZmiany w projekcie
GratisTablica budowy
GratisDziennik budowy
Płatne dodatki

Kosztorys - stan wykończony
540 zł

Projekt wentylacji mechanicznej
1 000 zł









