Projekt domu Strzyżyk II A1 z garażem 2st.
- Typ projektuWolnostojący
- Powierzchnia użytkowa129.4 m²
- Kondygnacje
- GarażDwustanowiskowy
- DachDwuspadowy
- Kąt nach. dachu40°
- Odbicie lustrzaneTak
- Czas realizacjimax. czas realizacji 10 dni Zobacz więcej >
Opis
Zgodność z WT 2021 i Eurokodami
Ze względu na dostosowywanie projektu do standardu WT 2021, czas realizacji może się różnić od standardowego.
Skontaktuj się z nami aby poznać szczegóły dotyczące wybranego projektu.
Opis projektu
Strzyżyk II to propozycja dla 4-5 osobowej rodziny. Bryła budynku przekryta jest dwuspadowym dachem. Układ funkcjonalny domu dostosowano do potrzeb mieszkańców. Wejście do domu prowadzi przez wiatrołap do holu wokół którego zlokalizowano salon z otwartą kuchnią i spiżarnią oraz kominkiem oraz pokój gościnny z łazienką. Dom wyposażono w pomieszczenie z piecem co oraz garaż.Poddasze stanowi strefa nocna, znajdziemy tu trzy sypialnie, łazienkę oraz garderobę. Zewnętrzny wizerunek budynku cechuje prostota i elegancja.
Konstrukcja
Rzuty
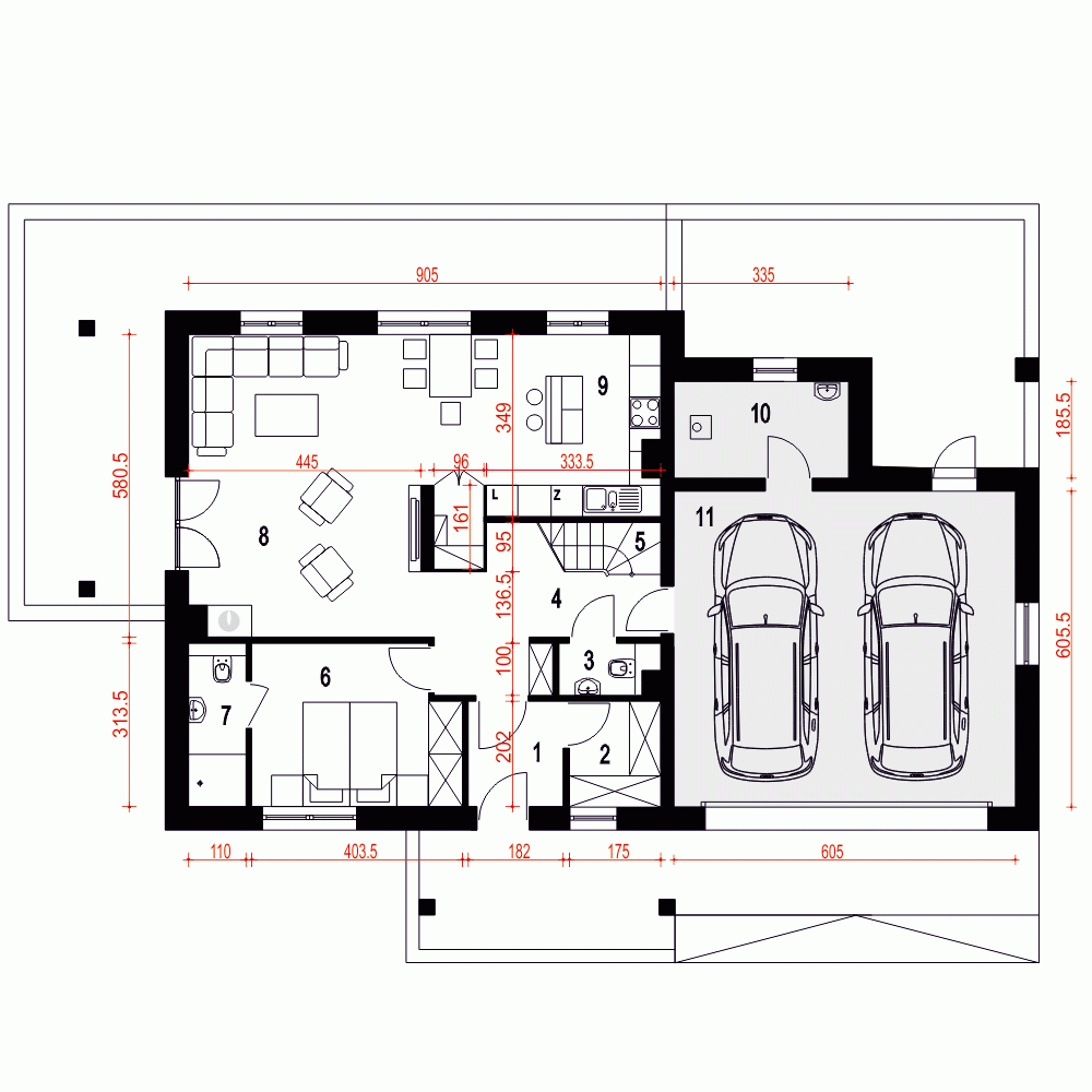
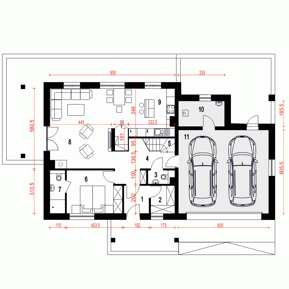
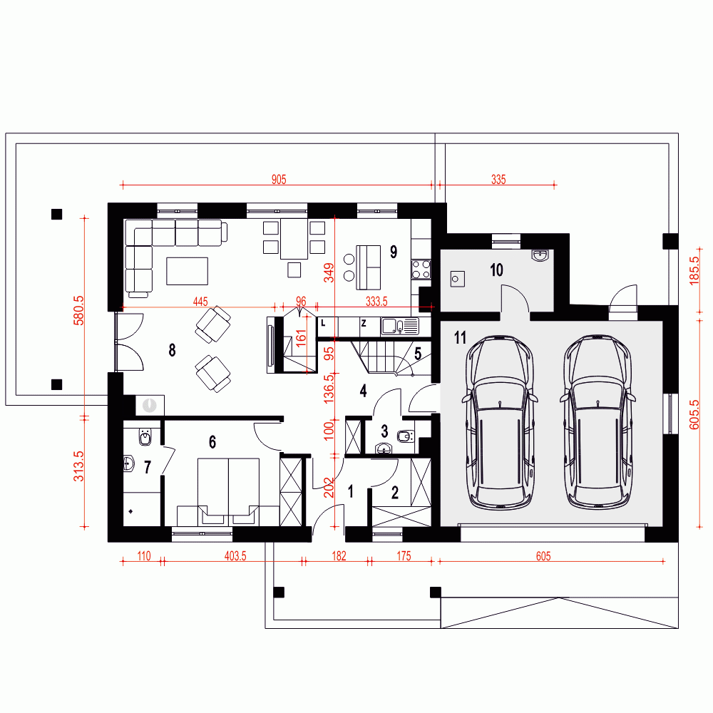
Parter
- m²
- 1. Wiatrołap3.6
- 2. Garderoba3.4
- 3. WC1.7
- 4. Hol8.5
- 5. Schody4.1
- 6. Pokój11.7
- 7. Łazienka3.3
- 8. Salon29
- 9. Kuchnia i spiżarnia12.6
- 10. Pom. gospod. z CO*6
- 11. Garaż*35.6
Piętro
Przekrój
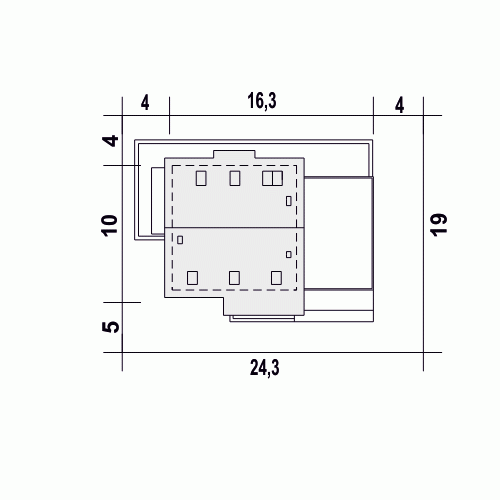
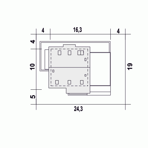
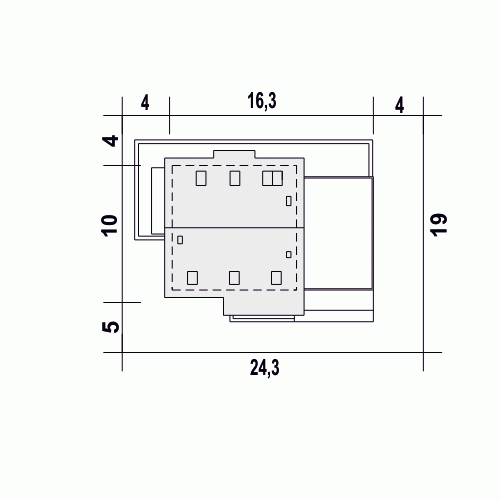
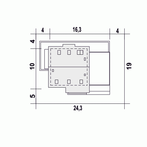
Usytuowanie na działce
Dane techniczne
- Powierzchnia użytkowa129.4 m²
- Powierzchnia zabudowy156.9 m²
- KominekTak
- Liczba łazienek2
- Liczba pokoi5
- Powierzchnia dachu185.5 m²
- Długość domu10 m
- Szerokość domu16.3 m
- Wysokość domu8.8 m
- Minimalne wymiary działki19 x 24.3m
- GarażDwustanowiskowy
- Rodzaj dachuDwuspadowy
- Kąt nach. dachu40°
Instalacja grzewcza
- Instalacja grzewczaGaz
Zawartość projektu
Zgodnie ze znowelizowaną Ustawą Prawo Budowlane art.34 ust.3, na projekt budowlany składają się trzy części:
- projekt zagospodarowania działki lub terenu
- projekt architektoniczno-budowlany
- projekt techniczny
Nasze projekty oferujemy w 3 egzemplarzach, zawierających projekt architektoniczno-budowlany i projekt techniczny. Projekt zagospodarowania działki lub terenu nie wchodzi w skład projektu oferowanego do sprzedaży. Projekt ten należy zlecić we własnym zakresie lokalnemu projektantowi, który opracuje go na podstawie danych zawartych w projekcie architektoniczno-budowlanym i technicznym, po dostosowaniu projektu do warunków lokalnych i wymagań inwestora.
UWAGA: wszystkie egzemplarze projektu zabezpieczone są hologramami, w części rysunkowej posiadają nadruki zabezpieczające w kolorze zielonym. Zalecamy aby po otrzymaniu przesyłki kontrolować czy na pierwszych stronach projektu znajduje się hologram i czy na rysunkach widoczne są w/w nadruki potwierdzające oryginalność projektu.
Wyrażamy zgodę na wszelkie zmiany zgodne z obowiązującymi przepisami pod warunkiem wprowadzenia ich przez uprawnioną osobę.
Wszystkie zmiany wymienione powyżej powinny być naniesione na oryginał projektu katalogowego trwałą techniką graficzną w kolorze czerwonym lub dołączone jako aneks i podpisane przez osobę uprawnioną dokonująca adaptacji.
**ważne informacje
Projekt w fazie koncepcji dostępny z wydłużonym terminem realizacji. Przy zamówieniu ustalamy termin i pobieramy zadatek 50% podstawowej ceny projektu (jako koszty usługi przygotowania dokumentacji do standardu projektu gotowego, w przypadku rezygnacji z usługi, zadatek nie podlega zwrotowi).
Cena za dodatkowy egzemplarz projektu jest zależna od nazwy projektu!
Dodatki
Bezpłatne dodatki
GratisZestaw umów
GratisZmiany w projekcie
GratisTablica budowy
GratisDziennik budowy
Płatne dodatki

Kosztorys - stan wykończony
540 zł

Projekt wentylacji mechanicznej
1 000 zł















