Projekt domu Talia bliźniak BL2 z garażem
Promocja ważna do
24-04-2026
- Typ projektuBliźniak
- Powierzchnia użytkowa247.4 m²
- Kondygnacje
- GarażJednostanowiskowy
- DachPłaski
- Kąt nach. dachu3°
- Odbicie lustrzaneTak
- Czas realizacji30 dni roboczych Zobacz więcej >
Opis
Zgodność z WT 2021 i Eurokodami
Ze względu na dostosowywanie projektu do standardu WT 2021, czas realizacji może się różnić od standardowego.
Skontaktuj się z nami aby poznać szczegóły dotyczące wybranego projektu.
Opis projektu
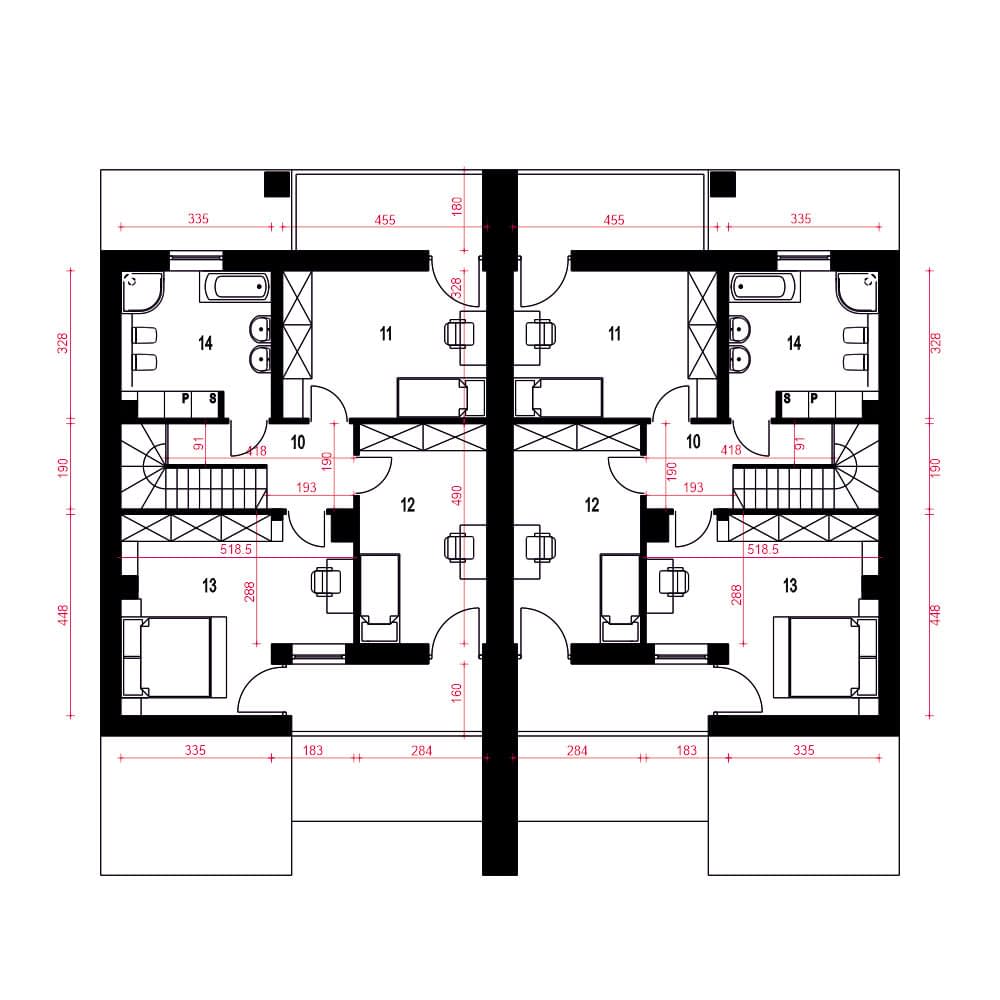
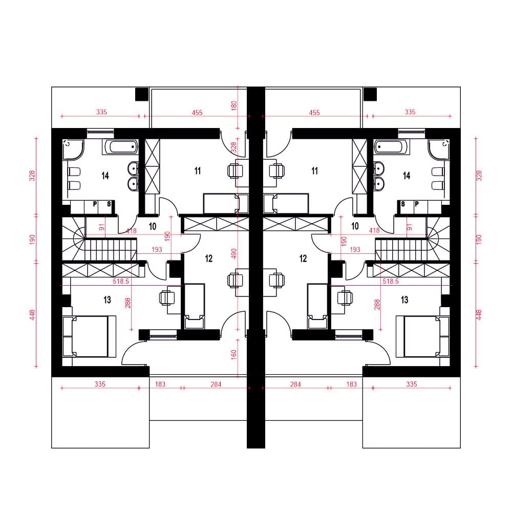
Poniższy opis odnosi się do jednego segmentu:Talia to nowoczesny, funkcjonalny dom rodzinny, dostępny jako wolnostojący lub w zabudowie bliźniaczej. Jego kompaktowa forma pozwala na posadowienie na wąskich działkach, co czyni go atrakcyjnym dla deweloperów.Parter obejmuje wiatrołap z wejściem do pomieszczenia gospodarczego i garażu, garderobę pod schodami, małą łazienkę, pokój oraz przestronną strefę dzienną z kuchnią, jadalnią i salonem. Garaż łączy się z częścią mieszkalną przez pomieszczenie techniczne.Na piętrze znajdują się trzy sypialnie, duża łazienka oraz wnęki na pralkę i suszarkę. Każda sypialnia ma dostęp do balkonu. Zielone tarasy nad garażem i pokojem na parterze podkreślają nowoczesny, ekologiczny charakter domu, który doskonale wpisuje się w estetykę współczesnych osiedli.
Konstrukcja
Rzuty
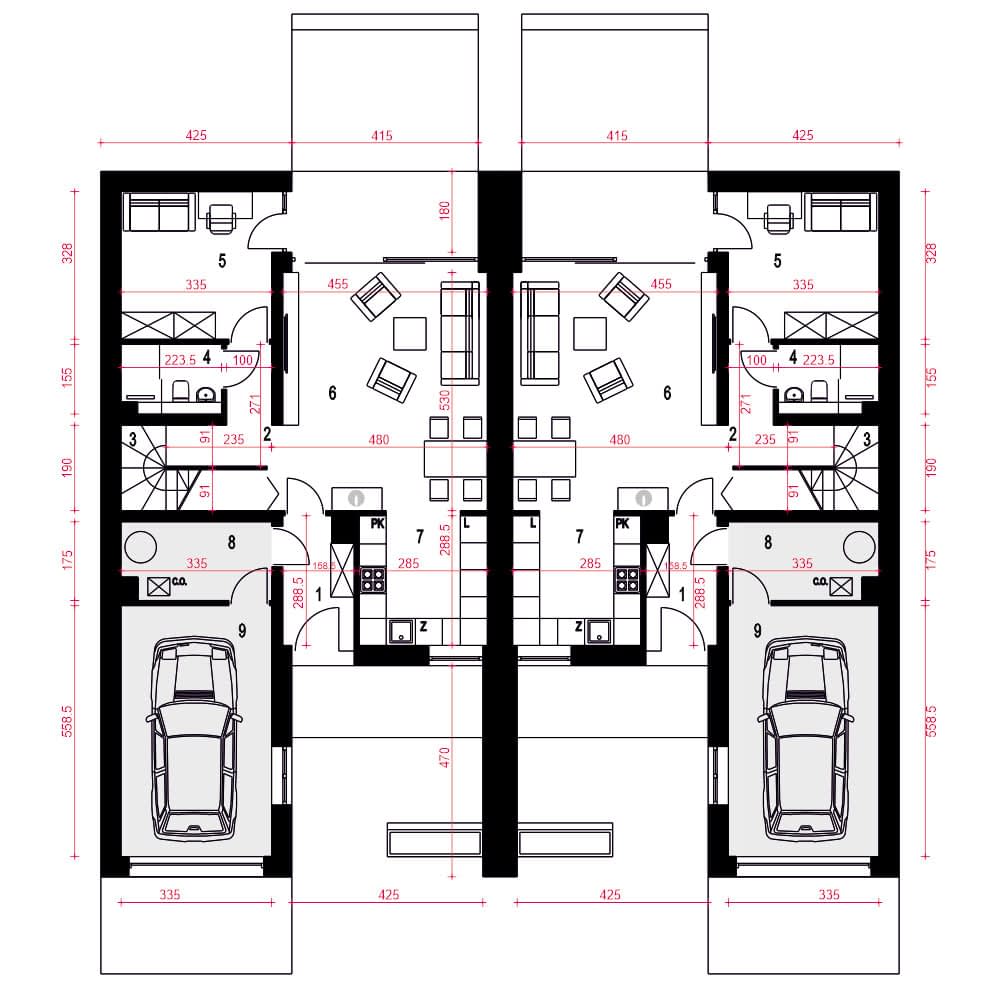
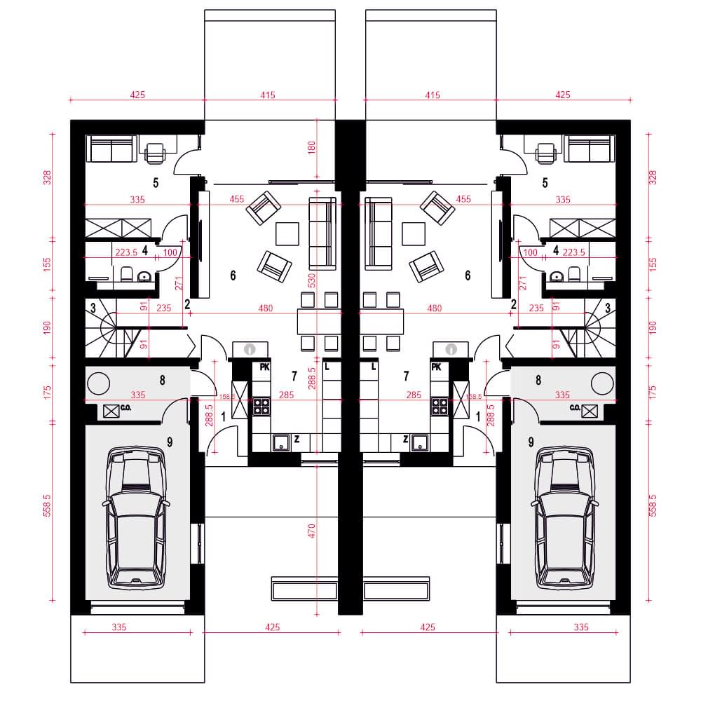
Parter
- m²
- 1. Wiatrołap4.1
- 2. Hol5.5
- 3. Schody3.9
- 4. Łazienka3.3
- 5. Pokój10.8
- 6. Salon + Jadalnia24.1
- 7. Kuchnia8.1
- 8. Pom. gosp. + C.O*5.5
- 9. Garaż*18.4
Piętro
Dane techniczne
- Powierzchnia użytkowa247.4 m²
- Powierzchnia zabudowy226 m²
- KominekTak
- Liczba łazienek4
- Liczba pokoi10
- Powierzchnia dachu249.8 m²
- Długość domu15.8 m
- Szerokość domu18 m
- Wysokość domu6.8 m
- Minimalne wymiary działki23.8 x 24m
- GarażJednostanowiskowy
- Rodzaj dachuPłaski
- Kąt nach. dachu3°
Instalacja grzewcza
- Instalacja grzewczaGaz
- Instalacja opcjonalna
Zawartość projektu
Zgodnie ze znowelizowaną Ustawą Prawo Budowlane art.34 ust.3, na projekt budowlany składają się trzy części:
- projekt zagospodarowania działki lub terenu
- projekt architektoniczno-budowlany
- projekt techniczny
Nasze projekty oferujemy w 3 egzemplarzach, zawierających projekt architektoniczno-budowlany i projekt techniczny. Projekt zagospodarowania działki lub terenu nie wchodzi w skład projektu oferowanego do sprzedaży. Projekt ten należy zlecić we własnym zakresie lokalnemu projektantowi, który opracuje go na podstawie danych zawartych w projekcie architektoniczno-budowlanym i technicznym, po dostosowaniu projektu do warunków lokalnych i wymagań inwestora.
UWAGA: wszystkie egzemplarze projektu zabezpieczone są hologramami, w części rysunkowej posiadają nadruki zabezpieczające w kolorze zielonym. Zalecamy aby po otrzymaniu przesyłki kontrolować czy na pierwszych stronach projektu znajduje się hologram i czy na rysunkach widoczne są w/w nadruki potwierdzające oryginalność projektu.
Wyrażamy zgodę na wszelkie zmiany zgodne z obowiązującymi przepisami pod warunkiem wprowadzenia ich przez uprawnioną osobę.
Wszystkie zmiany wymienione powyżej powinny być naniesione na oryginał projektu katalogowego trwałą techniką graficzną w kolorze czerwonym lub dołączone jako aneks i podpisane przez osobę uprawnioną dokonująca adaptacji.
**ważne informacje
Projekt w fazie koncepcji dostępny z wydłużonym terminem realizacji. Przy zamówieniu ustalamy termin i pobieramy zadatek 50% podstawowej ceny projektu (jako koszty usługi przygotowania dokumentacji do standardu projektu gotowego, w przypadku rezygnacji z usługi, zadatek nie podlega zwrotowi).
Cena za dodatkowy egzemplarz projektu jest zależna od nazwy projektu!
Dodatki
Bezpłatne dodatki
GratisZestaw umów
GratisZmiany w projekcie
GratisTablica budowy
GratisDziennik budowy
Płatne dodatki

Kosztorys - stan wykończony
540 zł

Projekt wentylacji mechanicznej
1 000 zł











