Projekt domu Tomaszek III Novum z garażem
- Typ projektuWolnostojący
- Powierzchnia użytkowa105.9 m²
- Kondygnacje
- GarażJednostanowiskowy
- DachWielospadowy
- Kąt nach. dachu25°
- Odbicie lustrzaneTak
- Czas realizacjimax. czas realizacji 10 dni Zobacz więcej >
Opis
Zgodność z WT 2021 i Eurokodami
Ze względu na dostosowywanie projektu do standardu WT 2021, czas realizacji może się różnić od standardowego.
Skontaktuj się z nami aby poznać szczegóły dotyczące wybranego projektu.
Opis projektu
Dom parterowy, niepodpiwniczony, dla 4-5cio osobowej rodziny o prostej i wyważonej bryle z poddaszem przeznaczonym na cele magazynowe. Czytelny i funkcjonalny rozkład pomieszczeń oraz wyraźny ich podział na strefy dzienną i nocną daje poczucie komfortu i wygody. Strefa dzienną zaprojektowano jako otwartą, łączącą wejście główne i część ogrodową działki. Strefę nocną (3 sypialnie) zorganizowano wokół centralnie umieszczonej łazienki, garderoby i spiżarni. Z salonu zaprojektowano wyjście na zadaszony taras. Centralnie zlokalizowany kominek umożliwia rozprowadzenie ciepła po całym domu.
Konstrukcja
fundamenty: betonowe
ściany zewnętrzne: porotherm+styropian termo organika
ściany wewnętrzne: porotherm/ cegł.dziurawka
rodzaj stropu: teriva i
elewacje: tynk, drewno
pokrycie dachu: dachówka ceramiczna
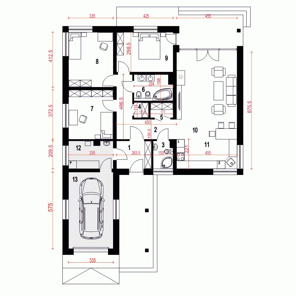
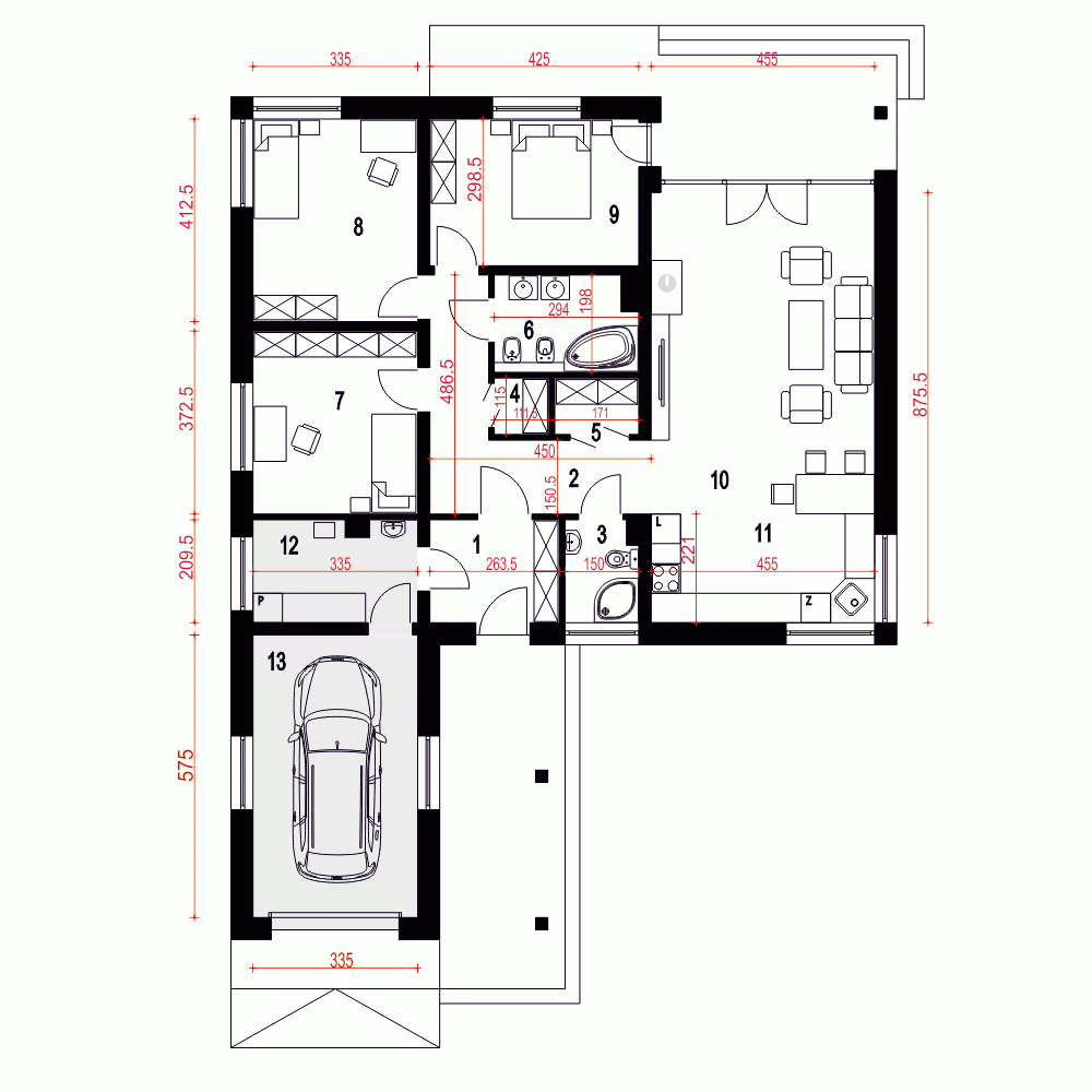
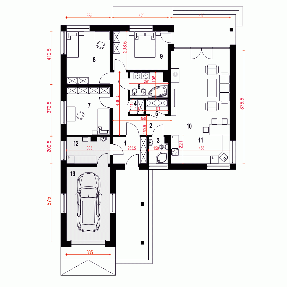
Rzuty
Parter
- m²
- 1. Wiatrołap5.4
- 2. Hol10.5
- 3. WC2.9
- 4. Garderoba1.7
- 5. Spiżarnia2.2
- 6. Łazienka5.4
- 7. Sypialnia12.2
- 8. Sypialnia13.6
- 9. Sypialnia12.5
- 10. Salon29.5
- 11. Kuchnia9.9
- 12. Pom.tech.+CO*6.7
- 13. Garaż*18.7
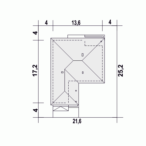
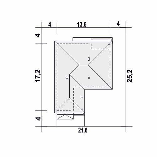
Przekrój
Usytuowanie na działce
Dane techniczne
- Powierzchnia użytkowa105.9 m²
- Powierzchnia zabudowy170.3 m²
- KominekTak
- Liczba łazienek2
- Liczba pokoi4
- Powierzchnia dachu253 m²
- Kubatura291 m³
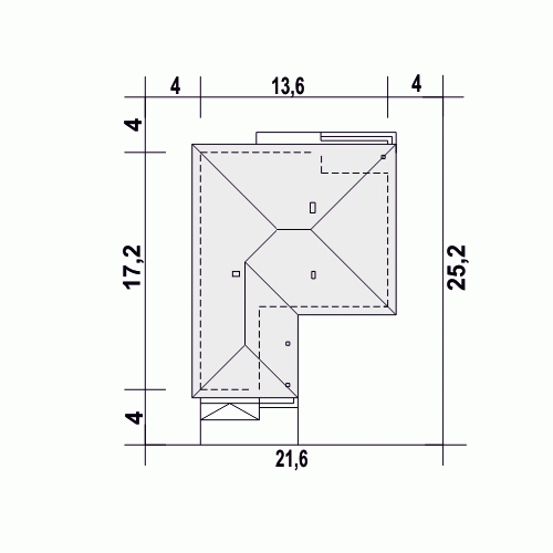
- Długość domu17.2 m
- Szerokość domu13.6 m
- Wysokość domu6.3 m
- Minimalne wymiary działki25.2 x 21.6m
- GarażJednostanowiskowy
- Rodzaj dachuWielospadowy
- Kąt nach. dachu25°
Instalacja grzewcza
- Instalacja grzewczaGaz
- Instalacja opcjonalna
Zawartość projektu
Zgodnie ze znowelizowaną Ustawą Prawo Budowlane art.34 ust.3, na projekt budowlany składają się trzy części:
- projekt zagospodarowania działki lub terenu
- projekt architektoniczno-budowlany
- projekt techniczny
Nasze projekty oferujemy w 3 egzemplarzach, zawierających projekt architektoniczno-budowlany i projekt techniczny. Projekt zagospodarowania działki lub terenu nie wchodzi w skład projektu oferowanego do sprzedaży. Projekt ten należy zlecić we własnym zakresie lokalnemu projektantowi, który opracuje go na podstawie danych zawartych w projekcie architektoniczno-budowlanym i technicznym, po dostosowaniu projektu do warunków lokalnych i wymagań inwestora.
UWAGA: wszystkie egzemplarze projektu zabezpieczone są hologramami, w części rysunkowej posiadają nadruki zabezpieczające w kolorze zielonym. Zalecamy aby po otrzymaniu przesyłki kontrolować czy na pierwszych stronach projektu znajduje się hologram i czy na rysunkach widoczne są w/w nadruki potwierdzające oryginalność projektu.
Wyrażamy zgodę na wszelkie zmiany zgodne z obowiązującymi przepisami pod warunkiem wprowadzenia ich przez uprawnioną osobę.
Wszystkie zmiany wymienione powyżej powinny być naniesione na oryginał projektu katalogowego trwałą techniką graficzną w kolorze czerwonym lub dołączone jako aneks i podpisane przez osobę uprawnioną dokonująca adaptacji.
**ważne informacje
Projekt w fazie koncepcji dostępny z wydłużonym terminem realizacji. Przy zamówieniu ustalamy termin i pobieramy zadatek 50% podstawowej ceny projektu (jako koszty usługi przygotowania dokumentacji do standardu projektu gotowego, w przypadku rezygnacji z usługi, zadatek nie podlega zwrotowi).
Cena za dodatkowy egzemplarz projektu jest zależna od nazwy projektu!
Dodatki
Bezpłatne dodatki
GratisZestaw umów
GratisZmiany w projekcie
GratisTablica budowy
GratisDziennik budowy
Płatne dodatki

Kosztorys - stan wykończony
540 zł

Projekt wentylacji mechanicznej
1 000 zł















