Projekt domu TULUZA dom letniskowy
- Typ projektuLetniskowy
- Powierzchnia użytkowa35.62 m²
- KondygnacjeParterowy
- GarażBez garażu
- DachDwuspadowy
- Kąt nach. dachu38°
- Odbicie lustrzaneTak
- Czas realizacjido 10 dni roboczych Zobacz więcej >
Opis
Zgodność z WT 2021 i Eurokodami
Ze względu na dostosowywanie projektu do standardu WT 2021, czas realizacji może się różnić od standardowego.
Skontaktuj się z nami aby poznać szczegóły dotyczące wybranego projektu.
Opis projektu
Projekt dostępny również jako CAŁOROCZNY!!!
Zobacz czym różni się projekt domku letniskowego od domu całorocznego?
To wyjątkowo uroczy domek letniskowy. Dzięki przemyślanym proporcjom, starannie dobranym elementom wykończeniowym i dekoracyjnym domek prezentuje się naprawdę wspaniale. Patrząc na front budynku, warto zwrócić uwagę na efektowne "przedłużenie" komina wykonane z klinkierowanej cegły, identycznej jak podmurówka i stopnie wiodące do środka. Atrakcyjną, a przy tym bardzo funkcjonalną ozdobą domku jest obszerna weranda, wsparta na solidnych drewnianych słupkach i otoczona drewnianymi barierkami. To wymarzone miejsce na leniwe przedpołudnie, poobiednią sjestę czy przyjęcie, na którym można serwować przysmaki prosto z werandowego rusztu. Podziwiając Tuluzę z zewnątrz, jest się niemal pewnym, że jej mury kryją wygodne i przytulne wnętrza. Wystarczy rzut oka na plan, by potwierdzić te przypuszczenia. Jest tu wiatrołap, komunikacja z garderobą, sypialnia, no i oczywiście serce domu, czyli obszerny pokój dzienny z aneksem kuchennym, kącikiem jadalnym, kominkiem i częścią wypoczynkową. Przedłużeniem tego pomieszczenia jest opisana wcześniej weranda.
Projekt składa się z części architektonicznej, konstrukcyjnej, wewnętrznych instalacji wod.-kan, c. o. i elektrycznej. W projekcie załączone są podstawowe zestawienie stali, drewna i stolarki okienno-drzwiowej. Do projektu dołączamy bezpłatną zgodę na wprowadzenie zmian, oświadczenie projektantów o wykonaniu projektu zgodnie z obowiązującymi normami i przepisami oraz kserokopie uprawnień projektantów wraz z aktualnym wpisem do izby. W przypadku zamówienia projektu w technologii lekkiej, drewnianej konstrukcji szkieletowej, powierzchnia użytkowa budynku jest o około 7% większa. Orientacyjna ilość pustaków porotherm 30 p+w : 1380 szt.
Konstrukcja
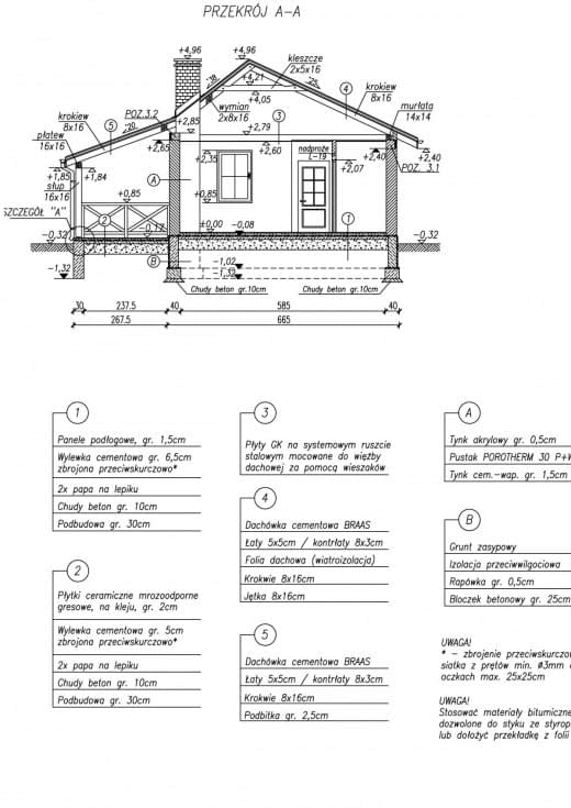
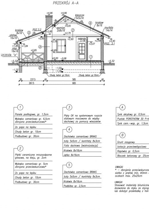
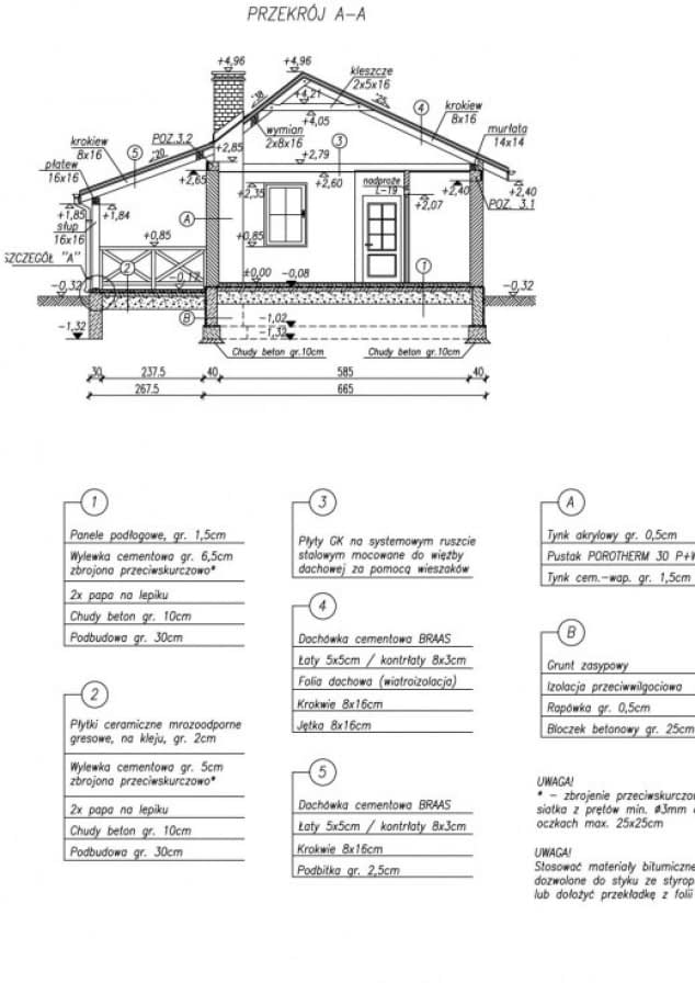
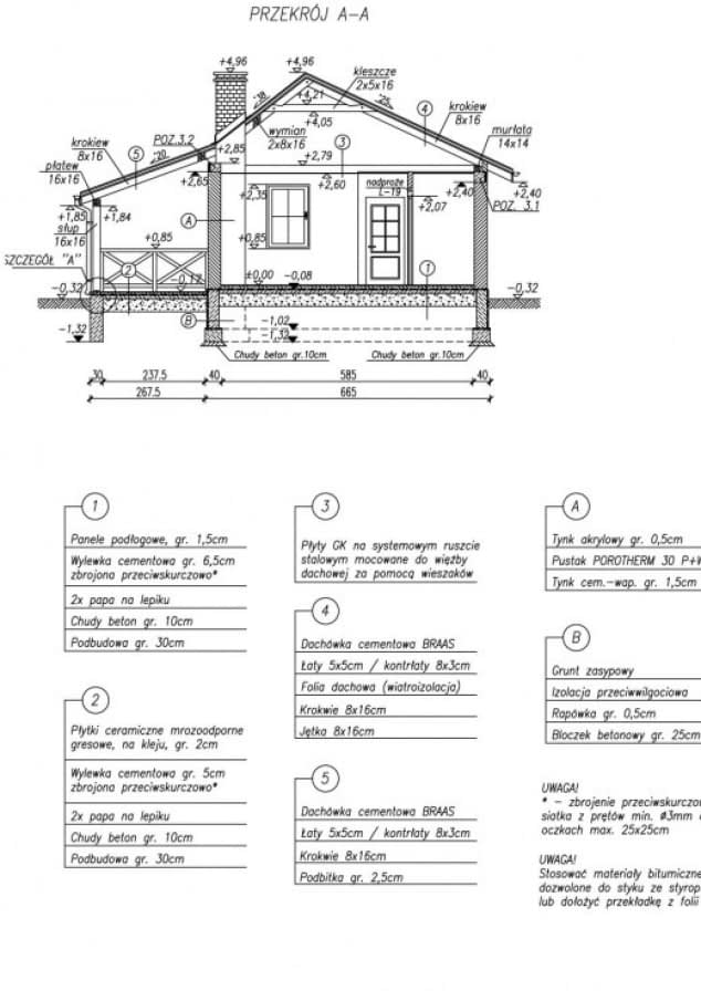
Technologia tradycyjna , ściany zewnętrzne murowane grubości 30 cm, działowe gr. 12 cm. Wszystkie ściany wykonane z pustaków ceramicznych "POROTHERM". Konstrukcja więźby dachowej drewniana, pokrycie dachówka ceramiczna. Istnieje mozliwośc adaptacji obiektu na budynek całoroczny - docieplenie warstwą styropianu gr. 10 cm.
Rzuty
Parter
- Wiatrołap2.27
- Komunikacja z garderobą2.72
- Łazienka4.31
- Sypialnia8.22
- Pokój dzienny z aneksem kuchennym18.1
- Weranda19.25
Przekrój A-A
Dane techniczne
- Powierzchnia użytkowa35.62 m²
- Powierzchnia zabudowy45.84 m²
- Powierzchnia dachu95 m²
- Kubatura198 m³
- Wysokość domu5.28 m
- Minimalne wymiary działki15.1 x 15.25m
- GarażBez garażu
- Rodzaj dachuDwuspadowy
- Kąt nach. dachu38°
Zawartość projektu
Projekty są dostępne w wersji książkowej, drukowanej w tak zwanym w nowym trybie 3 egzemplarze projektu architektoniczno-budowlanego oraz 3 egzemplarze projektu technicznego. Na życzenie przesyłamy rzuty i przekroje wersji podstawowych dokumentacji w formacie PDF
Każdy projekt architektoniczno-budowlany domu składa się z następujących części:
- strona tytułowa,
- oświadczenie
- część opisowa projektu architektoniczno-budowlanego,
- projektowana charakterystyka energetyczna z analizą,
- część rysunkowej projektu architektoniczno-budowlanego,
- zaświadczenia i uprawnienia.
Każdy projekt techniczny domu składa się z:
- strony tytułowej,
- oświadczenia,
- części opisowej projektu technicznego,
- części rysunkowej projektu technicznego,
- części konstrukcyjnej,
- zaświadczenia i uprawnień,
- zestawień drewna i stali,
-instalacji elektrycznej i odgromowej,
-instalacji sanitarnych, gazowych i centralnego ogrzewania.
Do projektu na życzenie dołączamy obliczenia statyczno-wytrzymałościowe.
Inwestor otrzymuje 3 opieczętowane sztuki projektu architektoniczno-budowlanego oraz 3 egzemplarze projektu technicznego tworzące komplet, każdy z plombą zabezpieczającą i oryginalnym hologramem biura.
Pierwszy egzemplarz tomu I zawiera zgodę in blanco na wszystkie zmiany wprowadzane do projektu po zakupie przez lokalnego wybranego na własną rękę przez Inwestora architekta adaptującego/kierownika budowy. Do teczki projektów dołączamy także zaświadczenia i aktualne wpisy do Izb autorów projektu oraz wpisy aktualne na czas sporządzenia projektu.
Dodatki
Bezpłatne dodatki
GratisZestaw umów
GratisZmiany w projekcie
GratisTablica budowy
GratisDziennik budowy
Płatne dodatki

Kosztorys
470 zł

Dodatkowy egzemplarz projektu
450 zł

Projekt wentylacji mechanicznej z rekuperatorem
450 zł

Projekt fotowoltaiki dla domu
750 zł

Projekt instalacji z ogrzewaniem podłogowym
400 zł

Elektroniczna wersja projektu
600 zł









