- Typ projektuWolnostojący
- Powierzchnia użytkowa107.3 m²
- Kondygnacje
- GarażJednostanowiskowy
- DachDwuspadowy
- Kąt nach. dachu40°
- Odbicie lustrzaneTak
- Czas realizacjimax. czas realizacji 10 dni Zobacz więcej >
Opis
Zgodność z WT 2021 i Eurokodami
Ze względu na dostosowywanie projektu do standardu WT 2021, czas realizacji może się różnić od standardowego.
Skontaktuj się z nami aby poznać szczegóły dotyczące wybranego projektu.
Opis projektu
Westa to niewielki projekt domu z poddaszem użytkowym dla 4,5-osobowej rodziny. Charakteryzuje się współczesną formą. Elewację wykończono klinkierem oraz drewnem w ciepłym odcieniu. Nieskomplikowana bryła, dwuspadowy dach i prosta konstrukcja pozwolą na obniżenie kosztów budowy. Wejście do domu jak i taras z tyłu są zadaszone przedłużoną połacią dachową. Wnętrze domu to część dzienna mieszcząca się na parterze, w skład której wchodzi salon z jadalnią oraz aneksem kuchennym - wszystko to tworzy otwartą przestrzeń. Spiżarnia dostępna jest z kuchni. W centralnej części domu znajduje się kominek. Z korytarza dostępny jest pokój, który może służyć również jako gabinet, następnie łazienka i schody. Przestrzeń pod schodami można zagospodarować na schowek. Wiatrołap posiada przejście do garażu, na końcu którego znajduje się kotłownia z wyjściem na zewnątrz.Cześć nocna to poddasze, którego częścią są trzy sypialnie (dwie posiadają garderobę) oraz łazienka z miejscem na wannę jak i prysznic.
Konstrukcja
fundamenty: betonowe
ściany zewnętrzne: porotherm+styropian termo organika
rodzaj stropu: teriva i
elewacje: tynk strukturalny
pokrycie dachu: dachówka cem. lub cer.
Rzuty
Parter
- m²
- 1. Wiatrołap3.9
- 2. Łazienka3.8
- 3. Korytarz6.8
- 4. Schody3.8
- 5. Pokój9.6
- 6. Salon22.6
- 7. Kuchnia7.3
- 8. Spiżarnia2.3
- 9. Garaż*18.8
- 10. Kotłownia*6.4
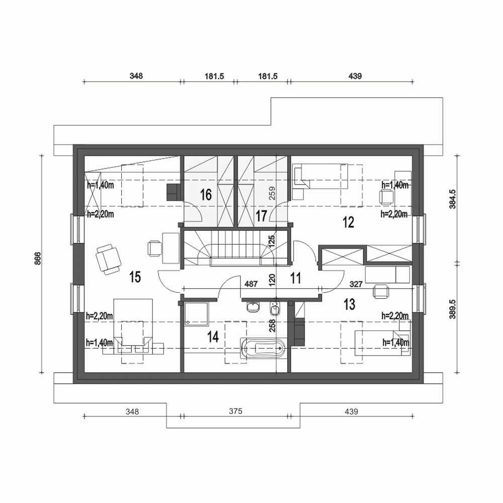
Piętro
- m²
- 11. Korytarz5.7
- 12. Sypialnia9.7
- 13. Sypialnia10.1
- 14. Łazienka4.3
- 15. Sypialnia17.6
- 16. Strych (Garderoba)*2.2
- 17. Strych (Garderoba)*2.2
Przekrój
Usytuowanie na działce
Dane techniczne
- Powierzchnia użytkowa107.3 m²
- Powierzchnia zabudowy110.3 m²
- KominekTak
- Liczba łazienek2
- Liczba pokoi5
- Powierzchnia dachu197 m²
- Kubatura440 m³
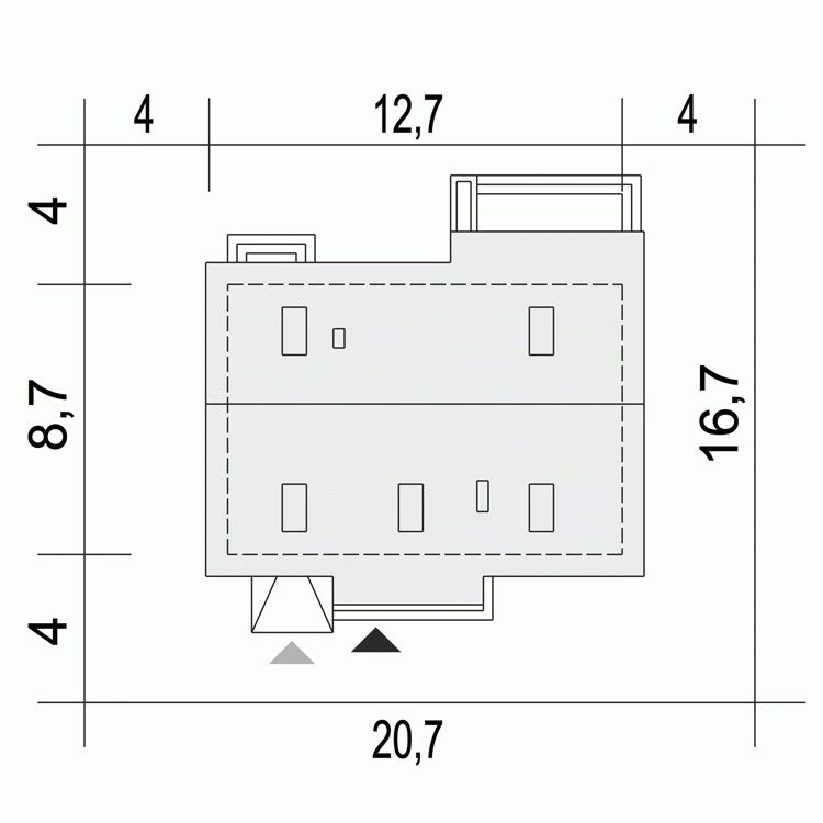
- Długość domu8.7 m
- Szerokość domu12.7 m
- Wysokość domu8.1 m
- Minimalne wymiary działki16.7 x 20.7m
- GarażJednostanowiskowy
- Rodzaj dachuDwuspadowy
- Kąt nach. dachu40°
Instalacja grzewcza
- Instalacja grzewczaGaz, Paliwo stałe
Zawartość projektu
Zgodnie ze znowelizowaną Ustawą Prawo Budowlane art.34 ust.3, na projekt budowlany składają się trzy części:
- projekt zagospodarowania działki lub terenu
- projekt architektoniczno-budowlany
- projekt techniczny
Nasze projekty oferujemy w 3 egzemplarzach, zawierających projekt architektoniczno-budowlany i projekt techniczny. Projekt zagospodarowania działki lub terenu nie wchodzi w skład projektu oferowanego do sprzedaży. Projekt ten należy zlecić we własnym zakresie lokalnemu projektantowi, który opracuje go na podstawie danych zawartych w projekcie architektoniczno-budowlanym i technicznym, po dostosowaniu projektu do warunków lokalnych i wymagań inwestora.
UWAGA: wszystkie egzemplarze projektu zabezpieczone są hologramami, w części rysunkowej posiadają nadruki zabezpieczające w kolorze zielonym. Zalecamy aby po otrzymaniu przesyłki kontrolować czy na pierwszych stronach projektu znajduje się hologram i czy na rysunkach widoczne są w/w nadruki potwierdzające oryginalność projektu.
Wyrażamy zgodę na wszelkie zmiany zgodne z obowiązującymi przepisami pod warunkiem wprowadzenia ich przez uprawnioną osobę.
Wszystkie zmiany wymienione powyżej powinny być naniesione na oryginał projektu katalogowego trwałą techniką graficzną w kolorze czerwonym lub dołączone jako aneks i podpisane przez osobę uprawnioną dokonująca adaptacji.
**ważne informacje
Projekt w fazie koncepcji dostępny z wydłużonym terminem realizacji. Przy zamówieniu ustalamy termin i pobieramy zadatek 50% podstawowej ceny projektu (jako koszty usługi przygotowania dokumentacji do standardu projektu gotowego, w przypadku rezygnacji z usługi, zadatek nie podlega zwrotowi).
Cena za dodatkowy egzemplarz projektu jest zależna od nazwy projektu!
Dodatki
Bezpłatne dodatki
GratisZestaw umów
GratisZmiany w projekcie
GratisTablica budowy
GratisDziennik budowy
Płatne dodatki

Kosztorys - stan wykończony
540 zł

Projekt wentylacji mechanicznej
1 000 zł








