Projekt domu A-151 szkieletowy
Promocja ważna do
23-04-2026
- Typ projektuWolnostojący
- Powierzchnia użytkowa118.4 m²
- KondygnacjeParterowy, z poddaszem, z piwnicą
- GarażBez garażu
- Kąt nach. dachu35°
- Odbicie lustrzaneTak
- Czas realizacjido 10 dni roboczych Zobacz więcej >
Opis
Zgodność z WT 2021 i Eurokodami
Ze względu na dostosowywanie projektu do standardu WT 2021, czas realizacji może się różnić od standardowego.
Skontaktuj się z nami aby poznać szczegóły dotyczące wybranego projektu.
Opis projektu
Projekt domu szkieletowego na działkę ze spadkiem to nowoczesne i funkcjonalne rozwiązanie dla inwestorów szukających połączenia komfortu użytkowania z atrakcyjną formą architektoniczną. Dzięki usytuowaniu budynku na działce o dużym nachyleniu możliwe jest uzyskanie niepowtarzalnych widoków z tarasu oraz przeszklonego salonu, jadalni i kuchni. Układ pomieszczeń Budynek zaprojektowano jako dom wolnostojący, parterowy z użytkowym poddaszem, podpiwniczeniem oraz dachem dwuspadowym o kącie nachylenia 35°. Parter pełni funkcję dzienną – z wiatrołapu prowadzi wejście do hallu, który stanowi główną oś komunikacyjną. Z hallu dostępne są: przestronny salon z kominkiem i wyjściem na taras, kuchnia, aneks jadalny, łazienka oraz sypialnia. Poddasze to komfortowa strefa nocna, gdzie zaplanowano dwie sypialnie z garderobami, połączone funkcjonalnym hallem. Piwnica mieści pomieszczenia gospodarcze oraz otwarte miejsca postojowe, co zwiększa praktyczność projektu. Atuty technologii szkieletowej Dom wykonany w technologii szkieletowej to gwarancja: szybkiej i precyzyjnej budowy, doskonałej izolacyjności termicznej i akustycznej, ekologii i energooszczędności, elastyczności w aranżacji wnętrz. Taki dom szkieletowy z tarasem i poddaszem użytkowym sprawdzi się jako dom całoroczny, ale także jako dom wakacyjny z pięknym widokiem. To idealne połączenie tradycji i nowoczesnych technologii.Rzuty
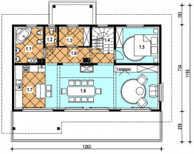
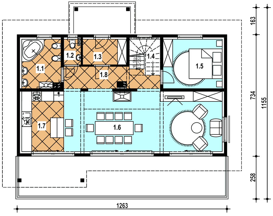
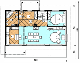
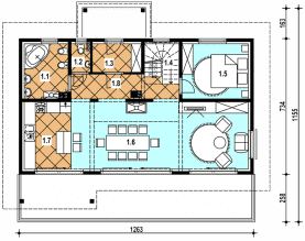
Parter
- łazienka 7.30 wc 1.60 wiatrołap 4.30 latka schodowa 1.70 sypialnia 11.10 pokój dzienny 35.70 kuchnia 9.60 hall 7.600
Poddasze
Dane techniczne
- Powierzchnia użytkowa118.4 m²
- Powierzchnia zabudowy92.8 m²
- Kubatura627.7 m³
- Wysokość domu6.85 m
- Piwnicatak
- PoddaszeUżytkowe
- Minimalne wymiary działki21 x 15.5m
- GarażBez garażu
- Kąt nach. dachu35°
Zawartość projektu
Dokumentacja obejmuje 3 egzemplarze projektu architektoniczno-budowlanego oraz 3 teczki projektu technicznego.
Architektura
- Opis techniczny do części architektonicznej
- Część rysunkowa
- Zestawienie podstawowych materiałów
Konstrukcja
- Opis techniczny
- Obliczenia statyczne
- Schematy konstrukcyjne
Projekt wewnętrznej instalacji C.O.; WOD-KAN; GAZ
- Opis techniczny instalacji
- Zestawienie podstawowych materiałów
- Część rysunkowa
Projekt elektrycznych instalacji wewnętrznych
- Opis techniczny
- Część rysunkowa
Projektant dokonujący adaptacji projektu gotowego może wprowadzić w nim następujący zakres zmian bez naruszenia praw autorskich firmy:
- Zaprojektować użycie innych materiałów budowlanych na konstrukcję budynku {ściany i stropy} pod warunkiem zachowania wymagań konstrukcji i ochrony cieplnej budynku oraz jego elewacji.
- Wprowadzić zmiany w usytuowaniu niekonstrukcyjnych ścianek działowych i otworów drzwiowych wewnątrz domu.
- Wprowadzić zmiany materiałów wykończeniowych na zewnątrz oraz wewnątrz domu.
- Wprowadzić zmiany usytuowania i rodzaju armatury sanitarnej i instalacji elektrycznej.
- Wprowadzić częściowe lub całkowite podpiwniczenie budynku przy zachowaniu poziomu posadzki parteru na wysokości nie przekraczającej 60 cm ponad poziom terenu projektowanego.
- Przesuwać okna na elewacji pod warunkiem zachowania prawidłowej kompozycji elewacji polegające na zachowaniu wspólnej linii usytuowania okien nad sobą lub obok siebie.
- Projekt powiększenia lub zmniejszenia garażu może być wykonany przez projektanta adaptującego w zakresie adaptacji projektu gotowego do konkretnej działki budowlanej.
Wprowadzenie innych zmian do projektu wymaga uzyskania pisemnej zgody autora projektu, która jest wystawiana po uprzednim zgłoszeniu inwestora. Wszelkie zmiany należy nanieść na projekcie w kolorze czerwonym trwałą i czytelną techniką (lub wykonać rysunki zamienne)
Uwaga: Istnieje możliwość zakupu dodatkowego egzemplarza projektu.
Dodatki
Bezpłatne dodatki
GratisZestaw umów
GratisZmiany w projekcie
GratisTablica budowy
GratisDziennik budowy













