- Typ projektuBliźniak
- Powierzchnia użytkowa203.4 m²
- Kondygnacje
- GarażJednostanowiskowy
- DachDwuspadowy
- Kąt nach. dachu35°
- Odbicie lustrzaneTak
- Czas realizacjimax. czas realizacji 10 dni Zobacz więcej >
Opis
Zgodność z WT 2021 i Eurokodami
Ze względu na dostosowywanie projektu do standardu WT 2021, czas realizacji może się różnić od standardowego.
Skontaktuj się z nami aby poznać szczegóły dotyczące wybranego projektu.
Opis projektu
(Uwaga: projekty typu bliźniak oferujemy jako domy dwulokalowe, projekt można zamówić również w zabudowie bliźniaczej)Poniższy opis odnosi sie do jednego segmentu: Dom Aida to tradycyjny, dwukondygnacyjny dom jednorodzinny z użytkowym poddaszem, idealny dla wąskich działek, zabudowy bliźniaczej lub szeregowej. Zaprojektowany na rzucie prostokąta. Salon z jadalnią, kuchnią i kominkiem otwiera się na taras, tworząc przyjemne miejsce spotkań. W strefie komunikacyjnej znajdziemy praktyczną szafę wnękową (wiatrołap), schowek pod schodami, WC, pomieszczenie techniczne, garaż oraz schody na poddasze w centralnej części budynku.Na poddaszu znajdują się trzy sypialnie i obszerna łazienka, z wyjściami na balkony. Dom Aida wyróżnia się proporcjonalnym, symetrycznym kształtem, a pionowe okna balkonowe zapewniają doskonałe naturalne oświetlenie. Polecany dla różnych osiedli dzięki klasycznemu charakterowi architektury, doskonale sprawdzi się w różnych środowiskach miejskich. Dzięki oszczędnej formie i niewielkiej powierzchni użytkowej jest ekonomiczny zarówno w eksploatacji, jak i realizacji. Zewnętrzna elewacja wyróżnia się delikatnym detalem i naturalną kolorystyką, tworząc harmonijny obraz domu Aida.
Konstrukcja
Rzuty
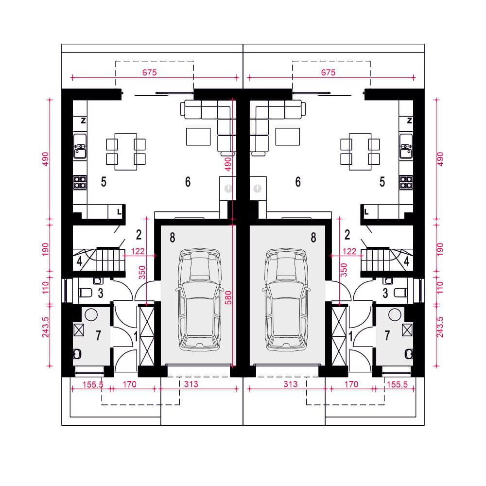
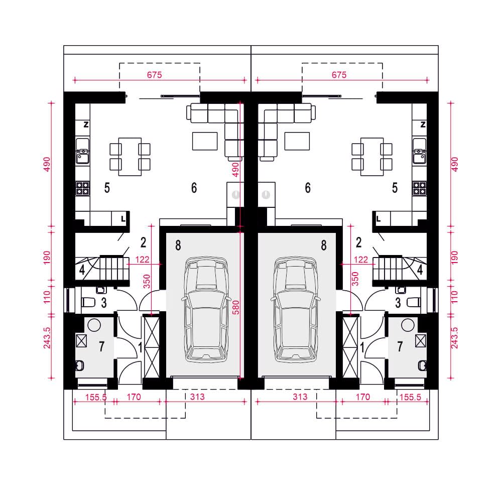
Parter
- m²
- 1. Wiatrołap4
- 2. Hol, garderoba5.9
- 3. WC1.6
- 4. Schody4
- 5. Kuchnia10.4
- 6. Salon21.9
- 7. Pom. tech. CO*3.5
- 8. Garaż*17.9
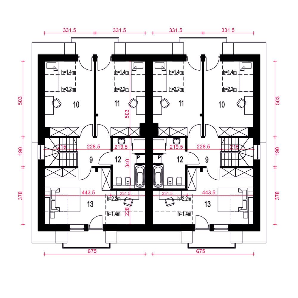
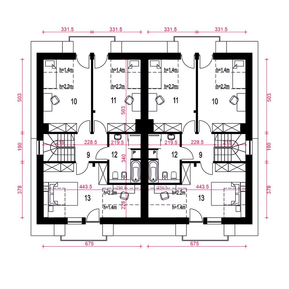
Piętro
Dane techniczne
- Powierzchnia użytkowa203.4 m²
- Powierzchnia zabudowy178 m²
- KominekTak
- Liczba łazienek2
- Liczba pokoi8
- Powierzchnia dachu277.6 m²
- Długość domu12 m
- Szerokość domu15.2 m
- Wysokość domu8.6 m
- Minimalne wymiary działki20 x 23.2m
- GarażJednostanowiskowy
- Rodzaj dachuDwuspadowy
- Kąt nach. dachu35°
Instalacja grzewcza
- Instalacja grzewczaGaz
- Instalacja opcjonalna
Zawartość projektu
Zgodnie ze znowelizowaną Ustawą Prawo Budowlane art.34 ust.3, na projekt budowlany składają się trzy części:
- projekt zagospodarowania działki lub terenu
- projekt architektoniczno-budowlany
- projekt techniczny
Nasze projekty oferujemy w 3 egzemplarzach, zawierających projekt architektoniczno-budowlany i projekt techniczny. Projekt zagospodarowania działki lub terenu nie wchodzi w skład projektu oferowanego do sprzedaży. Projekt ten należy zlecić we własnym zakresie lokalnemu projektantowi, który opracuje go na podstawie danych zawartych w projekcie architektoniczno-budowlanym i technicznym, po dostosowaniu projektu do warunków lokalnych i wymagań inwestora.
UWAGA: wszystkie egzemplarze projektu zabezpieczone są hologramami, w części rysunkowej posiadają nadruki zabezpieczające w kolorze zielonym. Zalecamy aby po otrzymaniu przesyłki kontrolować czy na pierwszych stronach projektu znajduje się hologram i czy na rysunkach widoczne są w/w nadruki potwierdzające oryginalność projektu.
Wyrażamy zgodę na wszelkie zmiany zgodne z obowiązującymi przepisami pod warunkiem wprowadzenia ich przez uprawnioną osobę.
Wszystkie zmiany wymienione powyżej powinny być naniesione na oryginał projektu katalogowego trwałą techniką graficzną w kolorze czerwonym lub dołączone jako aneks i podpisane przez osobę uprawnioną dokonująca adaptacji.
**ważne informacje
Projekt w fazie koncepcji dostępny z wydłużonym terminem realizacji. Przy zamówieniu ustalamy termin i pobieramy zadatek 50% podstawowej ceny projektu (jako koszty usługi przygotowania dokumentacji do standardu projektu gotowego, w przypadku rezygnacji z usługi, zadatek nie podlega zwrotowi).
Cena za dodatkowy egzemplarz projektu jest zależna od nazwy projektu!
Dodatki
Bezpłatne dodatki
GratisZestaw umów
GratisZmiany w projekcie
GratisTablica budowy
GratisDziennik budowy
Płatne dodatki

Kosztorys - stan wykończony
540 zł

Projekt wentylacji mechanicznej
1 000 zł









