Projekt domu Głuszec II A-BL z garażem
- Typ projektuBliźniak
- Powierzchnia użytkowa185.6 m²
- Kondygnacje
- GarażJednostanowiskowy
- DachDwuspadowy
- Kąt nach. dachu35°
- Odbicie lustrzaneTak
- Czas realizacjimax. czas realizacji 10 dni Zobacz więcej >
Opis
Zgodność z WT 2021 i Eurokodami
Ze względu na dostosowywanie projektu do standardu WT 2021, czas realizacji może się różnić od standardowego.
Skontaktuj się z nami aby poznać szczegóły dotyczące wybranego projektu.
Opis projektu
(Uwaga: projekty typu bliźniak oferujemy jako domy dwulokalowe, projekt można zamówić również w zabudowie bliźniaczej)Wariant A-BL1 Głuszca II to połączenie dwóch segmentów w lustrzanych odbiciach ścianami od strony garaży. Opis poniżej odnosi się do jednego segmentu. Projekt domu Głuszec jest przykładem klasycznego domu jednorodzinnego z poddaszem przeznaczonym na cele mieszkalne. Ten dwukondygnacyjny i prosty konstrukcyjnie dom jest dobrą alternatywą na wąskie działki lub do zabudowy bliźniaczej. do budynku prowadzi zadaszone wejście usytuowane z boku budynku. Połączono je z dużą wiatą przed domem. Na parterze zaproponowano strefę wspólną a także dodatkowy pokój mogacy pełnić funkcję gościnnego lub gabinetu. Z salonu z jadalnią i kuchnią można wyjść na taras i kominek. W kuchni znajdziemy spiżarnię a obok niej łazienkę. Dużą kotłownię zaprojektowano od frontu budynku.Na piętrze w projekcie zaproponowano trzy sypialnie, garderobę oraz duża łazienkę.Głuszec to dom ekonomiczny w budowie i eksploatacji. Ze względów ekonomicznych zrezygnowano z balkonów i tarasów. Zastosowane portfenetry i dodatkowo okna połaciowe sprawią, że każde pomieszczenie na poddaszu będzie doskonale doświetlone. Elewacę domu charakteryzuje delikatny detal i naturalna kolorystyka.
Konstrukcja
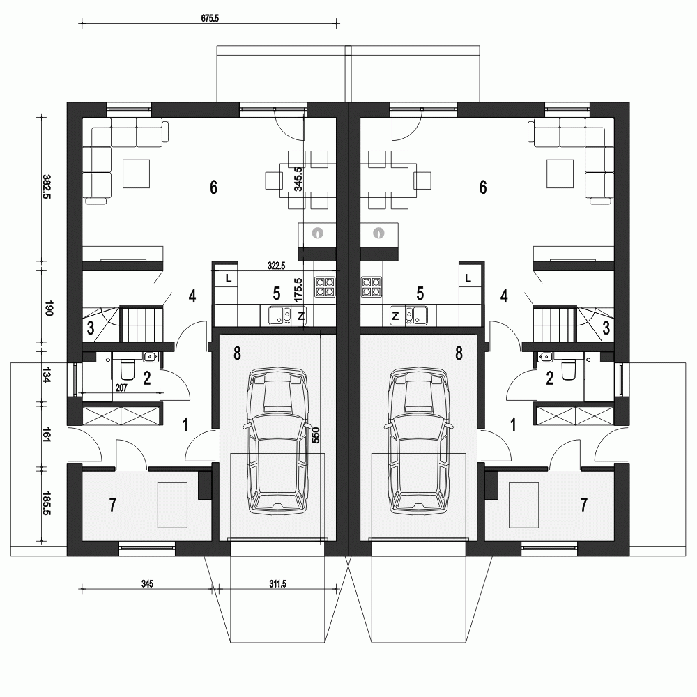
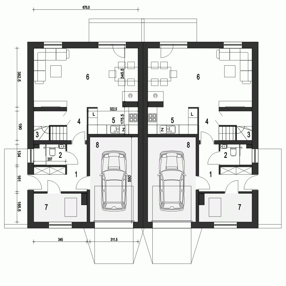
Rzuty
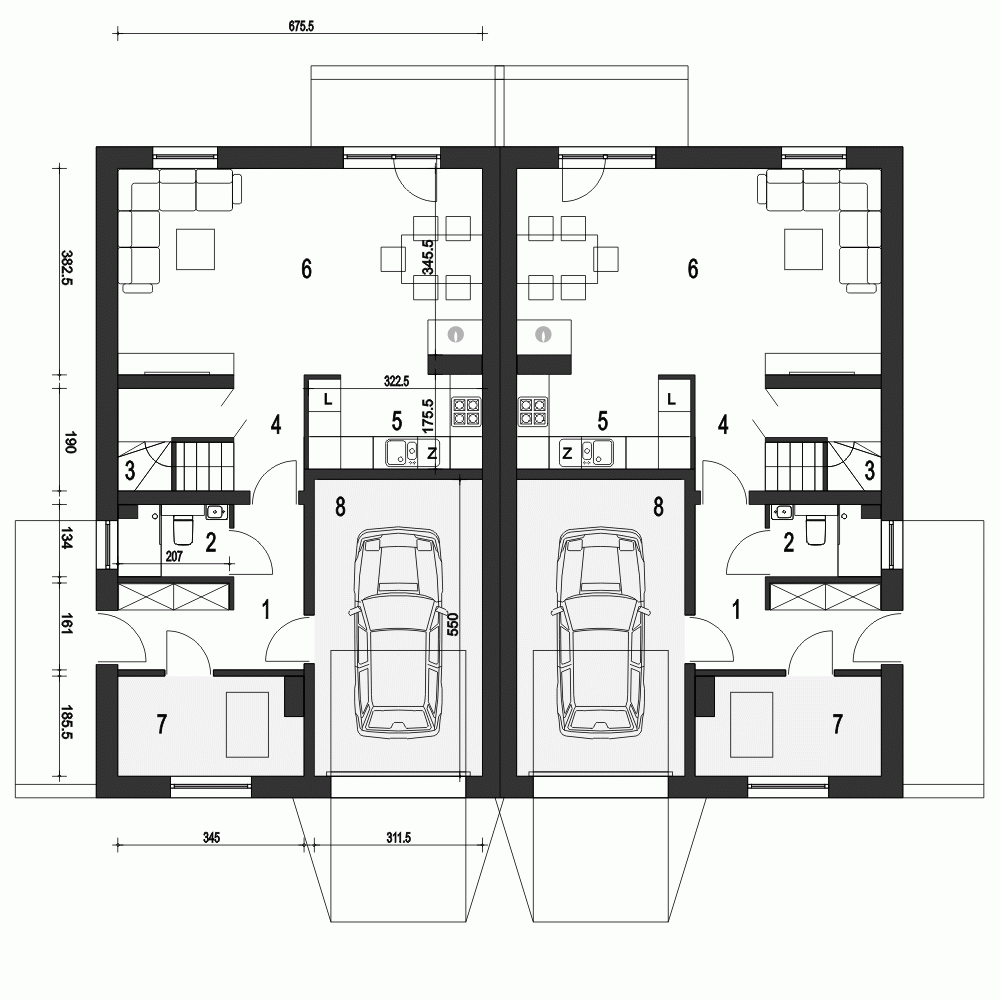
Parter
- m²
- 1. Wiatrołap7.1
- 2. Łazienka2.6
- 3. Schody4
- 4. Komunik.+schowek4
- 5. Kuchnia5.6
- 6. Salon25.1
- 7. Pom. tech. CO*5.8
- 8. Garaż*17
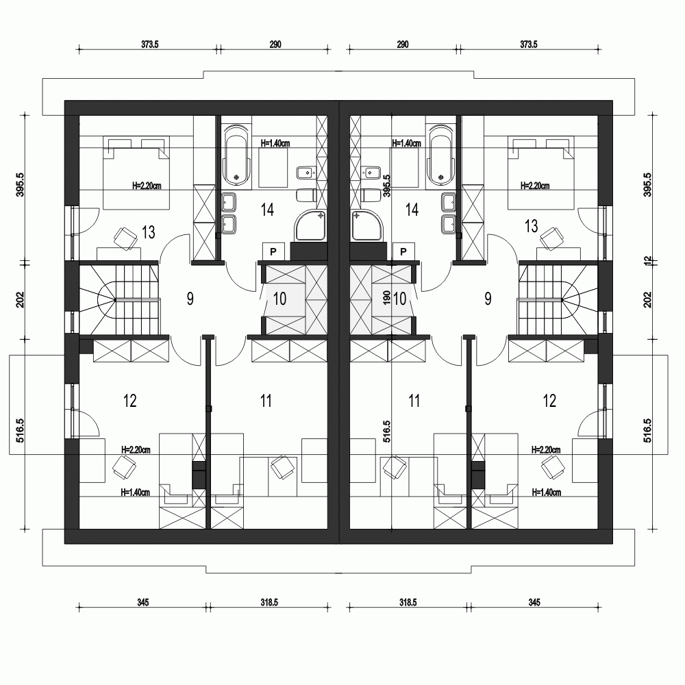
Piętro
- m²
- 9. Hol5.2
- 10. Strych (Garderoba)*3.1
- 11. Sypialnia11.5
- 12. Sypialnia12.1
- 13. Sypialnia9
- 14. Łazienka6.5
Przekrój
Usytuowanie na działce
Dane techniczne
- Powierzchnia użytkowa185.6 m²
- Powierzchnia zabudowy183 m²
- KominekTak
- Liczba łazienek4
- Liczba pokoi8
- Powierzchnia dachu262 m²
- Kubatura638 m³
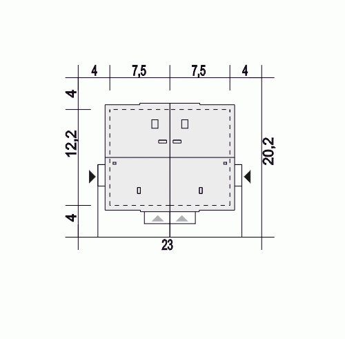
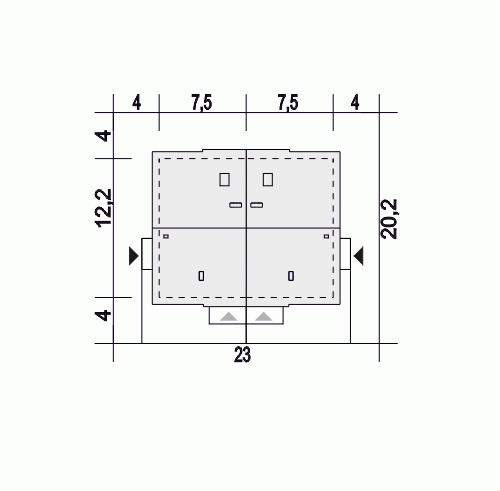
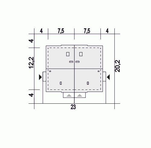
- Długość domu12.2 m
- Szerokość domu15 m
- Wysokość domu8.7 m
- Minimalne wymiary działki20.2 x 23m
- GarażJednostanowiskowy
- Rodzaj dachuDwuspadowy
- Kąt nach. dachu35°
Instalacja grzewcza
- Instalacja grzewczaGaz, Paliwo stałe
- Instalacja opcjonalna
Zawartość projektu
Zgodnie ze znowelizowaną Ustawą Prawo Budowlane art.34 ust.3, na projekt budowlany składają się trzy części:
- projekt zagospodarowania działki lub terenu
- projekt architektoniczno-budowlany
- projekt techniczny
Nasze projekty oferujemy w 3 egzemplarzach, zawierających projekt architektoniczno-budowlany i projekt techniczny. Projekt zagospodarowania działki lub terenu nie wchodzi w skład projektu oferowanego do sprzedaży. Projekt ten należy zlecić we własnym zakresie lokalnemu projektantowi, który opracuje go na podstawie danych zawartych w projekcie architektoniczno-budowlanym i technicznym, po dostosowaniu projektu do warunków lokalnych i wymagań inwestora.
UWAGA: wszystkie egzemplarze projektu zabezpieczone są hologramami, w części rysunkowej posiadają nadruki zabezpieczające w kolorze zielonym. Zalecamy aby po otrzymaniu przesyłki kontrolować czy na pierwszych stronach projektu znajduje się hologram i czy na rysunkach widoczne są w/w nadruki potwierdzające oryginalność projektu.
Wyrażamy zgodę na wszelkie zmiany zgodne z obowiązującymi przepisami pod warunkiem wprowadzenia ich przez uprawnioną osobę.
Wszystkie zmiany wymienione powyżej powinny być naniesione na oryginał projektu katalogowego trwałą techniką graficzną w kolorze czerwonym lub dołączone jako aneks i podpisane przez osobę uprawnioną dokonująca adaptacji.
**ważne informacje
Projekt w fazie koncepcji dostępny z wydłużonym terminem realizacji. Przy zamówieniu ustalamy termin i pobieramy zadatek 50% podstawowej ceny projektu (jako koszty usługi przygotowania dokumentacji do standardu projektu gotowego, w przypadku rezygnacji z usługi, zadatek nie podlega zwrotowi).
Cena za dodatkowy egzemplarz projektu jest zależna od nazwy projektu!
Dodatki
Bezpłatne dodatki
GratisZestaw umów
GratisZmiany w projekcie
GratisTablica budowy
GratisDziennik budowy
Płatne dodatki

Kosztorys - stan wykończony
540 zł

Projekt wentylacji mechanicznej
1 000 zł















