Projekt domu AMADORA dom letniskowy na zgłoszenie do 35m2
- Typ projektuLetniskowy
- Powierzchnia użytkowa16.16 m²
- Kondygnacje
- GarażBez garażu
- Kąt nach. dachu30°
- Odbicie lustrzaneTak
- Czas realizacjido 10 dni roboczych Zobacz więcej >
Opis
Zgodność z WT 2021 i Eurokodami
Ze względu na dostosowywanie projektu do standardu WT 2021, czas realizacji może się różnić od standardowego.
Skontaktuj się z nami aby poznać szczegóły dotyczące wybranego projektu.
Opis projektu
AMADORA - mały domek letniskowy Projekt dostępny również jako
Amadora to wybór dla wszystkich marzących o wypoczynku. Dzięki naszym projektom budynków na zgłoszenia każdego stać na dom letniskowy. Drewniana weranda świetnie komponuje się z brązowym cokolikiem z klinkieru, całości dopełnia dwuspadowy dach utrzymany w podobnej kolorystyce. Przyjaźnie zaprojektowane wnętrze, na które składają się: wiatrołap, pokój dzienny z aneksem kuchennym oraz łazienka są przekonującym argumentem do wybrania właśnie tego projektu.
Projekt składa się z części architektonicznej, konstrukcyjnej, wewnętrznych instalacji wod.-kan i elektrycznych. W projekcie załączone są podstawowe zestawienie stali, drewna i stolarki okienno-drzwiowej. Do projektu dołączamy bezpłatną zgodę na wprowadzenie zmian, oświadczenie projektantów o wykonaniu projektu zgodnie z obowiązującymi normami i przepisami oraz kserokopie uprawnień projektantów wraz z aktualnym wpisem do izby. W przypadku zamówienia projektu w technologii lekkiej, drewnianej konstrukcji szkieletowej, powierzchnia użytkowa budynku jest o około 7% większa.
Konstrukcja
Technologia tradycyjna : - ściany zewnętrzne murowane grubości 30 cm - ściany wewnętrzne działowe gr. 12 cm - wszystkie ściany wykonane z pustaków ceramicznych "POROTHERM" - sufit podwieszany z płyt GK na ruszcie stalowym - konstrukcja więźby dachowej drewniana w układzie krokwiowowym z dolnym belkami - pokrycie dachówka ceramiczna - instalacja grzewcza : konwektor elektryczny - istnieje możliwość adaptacji obiektu na budynek całoroczny - w przypadku wersji całorocznej docieplenie warstwą styropianu gr. 10 cm.
Rzuty
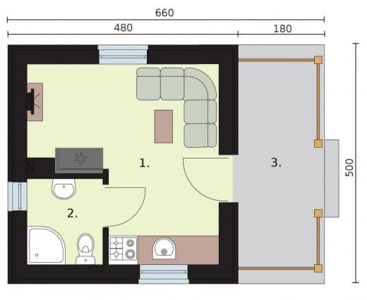
Rzut przyziemia
Przekrój A-A
Dane techniczne
- Powierzchnia użytkowa16.16 m²
- Powierzchnia zabudowy33 m²
- Powierzchnia dachu53 m²
- Kubatura137 m³
- Wysokość domu4.86 m
- Minimalne wymiary działki13.6 x 13m
- GarażBez garażu
- Kąt nach. dachu30°
Zawartość projektu
Projekty są dostępne w wersji książkowej, drukowanej w tak zwanym w nowym trybie 3 egzemplarze projektu architektoniczno-budowlanego oraz 3 egzemplarze projektu technicznego. Na życzenie przesyłamy rzuty i przekroje wersji podstawowych dokumentacji w formacie PDF
Każdy projekt architektoniczno-budowlany domu składa się z następujących części:
- strona tytułowa,
- oświadczenie
- część opisowa projektu architektoniczno-budowlanego,
- projektowana charakterystyka energetyczna z analizą,
- część rysunkowej projektu architektoniczno-budowlanego,
- zaświadczenia i uprawnienia.
Każdy projekt techniczny domu składa się z:
- strony tytułowej,
- oświadczenia,
- części opisowej projektu technicznego,
- części rysunkowej projektu technicznego,
- części konstrukcyjnej,
- zaświadczenia i uprawnień,
- zestawień drewna i stali,
-instalacji elektrycznej i odgromowej,
-instalacji sanitarnych, gazowych i centralnego ogrzewania.
Do projektu na życzenie dołączamy obliczenia statyczno-wytrzymałościowe.
Inwestor otrzymuje 3 opieczętowane sztuki projektu architektoniczno-budowlanego oraz 3 egzemplarze projektu technicznego tworzące komplet, każdy z plombą zabezpieczającą i oryginalnym hologramem biura.
Pierwszy egzemplarz tomu I zawiera zgodę in blanco na wszystkie zmiany wprowadzane do projektu po zakupie przez lokalnego wybranego na własną rękę przez Inwestora architekta adaptującego/kierownika budowy. Do teczki projektów dołączamy także zaświadczenia i aktualne wpisy do Izb autorów projektu oraz wpisy aktualne na czas sporządzenia projektu.
Dodatki
Bezpłatne dodatki
GratisZestaw umów
GratisZmiany w projekcie
GratisTablica budowy
GratisDziennik budowy
Płatne dodatki

Kosztorys
470 zł

Dodatkowy egzemplarz projektu
450 zł

Projekt wentylacji mechanicznej z rekuperatorem
450 zł

Projekt fotowoltaiki dla domu
750 zł

Projekt instalacji z ogrzewaniem podłogowym
400 zł

Elektroniczna wersja projektu
600 zł









